



































































LOVUND
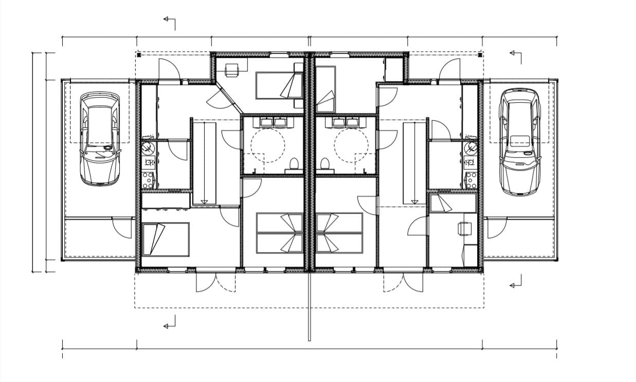
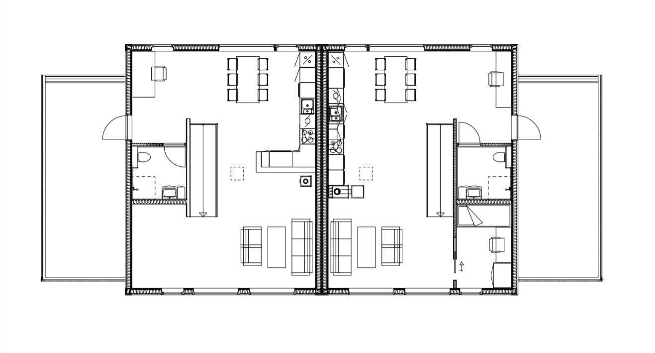
Velkommen til Nedre Vardhågen 1A! Flott, innholdsrik og moderne del av vertikaldelt tomannsbolig i Rein Borettslag. Boligen ligger i et rolig, barnevennlig og nybygd borettslag sentralt på lovund. Perfekt for deg som ønsker å flytte rett inn! Garasje i tilknytning til boligen. Stor terrasse over garasjen, i tillegg til en markterrase. Boligen ble ferdigoppført i juli 2019. 1.etasje: Tre soverom, bad med dusjkabinett, yttergang med stor skyvedørsgarderobe, soveromsgang og vaskerom med utslagsvask. Utgang til markterrasse via hovedsoverom. 2.etasje: Stue med tv-krok, kjøkken, bad med dusjkabinett. Utgang til terrasse. Åpen løsning i 2.etasjen + kjøkkeninnredning med barløsning gir en romslig følelse. Flislagt gulv på bad, vaskerom og yttergang med varmekabler og ellers parkett på alle rom. Slette malte vegger i alle rom, og baderomsplater på bad og vaskerom. Tak i 1.etasjen består av takplater, mens i 2.etasjen er det slett gipstak noe som forsterker den åpne følelsen. Store vinduer i stue og kjøkken med spesialtilpasset lameller, samt altandør ut til markterrase. Resten av vinduene i boligen har up&down plissegardiner. I boligen følger det med garasjeportåpner som kan styres via app hvor som helst i verden! Med mulighet for oppkobling av kamera. Er også montert kodepanel til garasjeport på utsiden. Ytterdøren er utstyrt med yale kodelås. Derfor trenger du ikke tenke på nøkler. Denne har også mulighet for å styres via app, slik at du kan åpne og låse døren hvor du måtte være. Den originale låsen med nøkler medfølger.
*Glassrekkverk i trapp, samt trappevange med slett finish. *Flyttet en vegg på minste soverom, for å gjøre rommet større. *Flyttet en vegg på et soverom, som resulterte i nesten dobbelt så stort rom. Med denne løsningen fikk man også inn skyvedørsgarderobe på soverommet. *Fjernet 1 soverom i andre etasjen. For å åpne stuen mer opp og muligheten for tv-krok. Her kan man sette opp vegg hvis man ønsker soverom. *Slette vegger på alle soverom, isteden for smartpanel. *1-stavs parkett i hele 2.etasjen, isteden for 3-stav. *Flere spotter i stue og kjøkken. *Større kjøkken, med barløsning og integrert vinskap. *Større baderomsinnredning i 1.etasje, som gir mer skapplass. *Varmepumpe *Oras elektronisk avstengnigsventil på vann til oppvaskmaskin. Slik at vannet automatisk stenges 4 timer etter aktivering.
Boligen ligger sentralt på Lovund. Her har du korte gangavstander til det meste (Butikk, spisesteder, skole, barnehage, m.m).
Medlemmer av boligbyggelaget og borettslaget har forkjøpsrett, i henhold til regler om fastprisavklaring. Mer info om dette under punkt 3 i vedtektsdokumentet. Forretningsfører er Mobo Helgeland BBL.
1 883 000 kr (Prisantydning) 2 567 000 kr (Andel av fellesgjeld) --- 4 450 000 kr (Pris inkl. fellesgjeld) Omkostninger 480 kr (Tinglysingsgebyr brl skjøte) 480 kr (Tinglysingsgebyr pantedokument) 4 100 kr (HELP boligkjøperforsikring (valgfritt)) 172 kr (Pantattest) --- 5 232 kr (Omkostninger totalt) --- 4 455 232 kr (Totalpris inkl. omkostninger) NB: Regnestykket forutsetter at det kun tinglyses en låneobligasjon og at eiendommen selges til prisantydning. Det tas forbehold om endringer i offentlige og private gebyrer. Selger er selv ansvarlig for følgende gebyr: 480 kr (Tinglysingsgebyr sikringsobligasjon) 5 995 kr (Eierskiftegebyr)
Kommunenr: 1834
Gårdsnr: 1
Bruksnr: 384
Du møter selger direkte på visning - den personen som vet hvor sola kommer først inn om morgenen og hvor de beste skiløypene ligger. Få all informasjon fra første hånd og still spørsmål direkte til den som kjenner boligen best.
Legg inn bud enkelt og sikkert med BankID-verifisering. Du får SMS-varsler ved nye bud og kan følge budrunden i sanntid. Systemet er mer oversiktlig og lettere å bruke enn tradisjonelle meglersider.
Oppgjørsselskap med konsesjon fra Finanstilsynet håndterer alle formelle aspekter. Kontrakt signeres digitalt med BankID, og overtakelsesprotokollen gjennomføres enkelt på telefon. Alt foregår i henhold til avhendingsloven.


Her kan du sjekke hvordan Propr fungerer - helt uforpliktende.
Ring oss på 23 90 59 00 (9–16, ukedager), eller legg igjen ditt telefonnummer så ringer vi deg opp.
Chat: 9–19 på hverdager, 11–18 på søndager
Send e-post: post@propr.no
Ring oss: 23 90 59 00 (10–16, ukedager)