































LANGHUS / Langhus senter
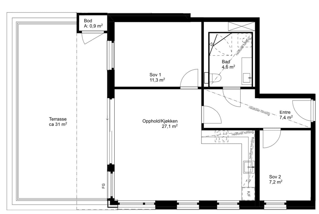
Velkommen til en eksklusiv toppleilighet med privat atmosfære, moderne eleganse og høy standard. Boligen er av nyere dato og fremstår som tilnærmet ny, med gjeldende 5 års reklamasjonsrett – en ekstra trygghet for kjøper. Leiligheten er påkostet med nøye utvalgte materialer og eksklusive detaljer. Kjøkken og bad holder høy standard, med stilrene løsninger og fokus på funksjon og estetikk. Store vindusflater gir rikelig med naturlig lys og en luftig romfølelse, mens den åpne planløsningen skaper god flyt mellom oppholdsrommene. Boligen har utvendige screens på alle vinduer, som gir skjerming for innsyn, regulering av lys og gode forhold for film og avslapning – også på dagtid. Dette bidrar til redusert varmeinnsplipp på sommeren. Et av boligens store høydepunkter er den vestvendte terrassen på hele 31 kvm – perfekt for solrike ettermiddager, sene sommerkvelder og hyggelige sammenkomster. Det medfølger romslig garasjeplass i lukket anlegg med elbillader. Beliggenheten er svært praktisk med kun ca. 5 minutters gange til togstasjon, som gir enkel pendling og nærhet til byen. Høydepunkter: Toppetasje med privat beliggenhet Vestvendt terrasse på 31 kvm Påkostet kjøkken, bad og elektroinstallasjon Nyere bolig med 5 års reklamasjonsrett Store vindusflater og godt lysinnslipp Utvendige screens på alle vinduer Garasjeplass med elbillader Ca. 5 min gange til togstasjon
Boligen har en attraktiv og familievennlig beliggenhet med kort vei til det meste av fasiliteter. Fra boligen er det kun ca. 2 minutters gange til Langhus Senter, som tilbyr dagligvare (MENY), apotek, flere serveringssteder og servicetilbud, samt dyrebutikk. Området byr på gode oppvekstvilkår med flere lekeplasser i nærområdet og et godt utvalg av barnehager innen kort avstand. Sameiet har et aktivt og inkluderende bomiljø, med etablerte trivselsgrupper som arrangerer ulike aktiviteter gjennom uken – en fin mulighet for både store og små til å bli kjent med naboer og skape et godt nærmiljø.
Det er ingen forkjøpsrett på boligen. Om du ikke har mulighet til å komme på visning, holder jeg gjerne privatvisning. Ta kontakt, så finner vi en tid. Jeg har tegnet boligselgerforsikring, og anbefaler også kjøper å tegne boligkjøperforsikring.
11 500 kr (HELP boligkjøperforsikring (valgfritt)) 167 250 kr (Dokumentavgift) 545 kr (Tinglysing av pantedokument) 545 kr (Tinglysing av skjøte) --- 179 840 kr (Omkostninger totalt) --- 6 869 840 kr (Totalpris inkl. omkostninger) NB: Regnestykket forutsetter at det kun tinglyses én låneobligasjon og at eiendommen selges til prisantydning. Det tas forbehold om endringer i offentlige og private gebyrer. Selger er selv ansvarlig for følgende gebyr: 6 725 kr (Eierskiftegebyr) 545 kr (Panterett med urådighet)
Kommunenr: 3207
Gårdsnr: 107
Bruksnr: 867
Seksjonsnr: 24
Du møter selger direkte på visning - den personen som vet hvor sola kommer først inn om morgenen og hvor de beste skiløypene ligger. Få all informasjon fra første hånd og still spørsmål direkte til den som kjenner boligen best.
Legg inn bud enkelt og sikkert med BankID-verifisering. Du får SMS-varsler ved nye bud og kan følge budrunden i sanntid. Systemet er mer oversiktlig og lettere å bruke enn tradisjonelle meglersider.
Oppgjørsselskap med konsesjon fra Finanstilsynet håndterer alle formelle aspekter. Kontrakt signeres digitalt med BankID, og overtakelsesprotokollen gjennomføres enkelt på telefon. Alt foregår i henhold til avhendingsloven.


Her kan du sjekke hvordan Propr fungerer - helt uforpliktende.
Ring oss på 23 90 59 00 (9–16, ukedager), eller legg igjen ditt telefonnummer så ringer vi deg opp.
Chat: 9–19 på hverdager, 11–18 på søndager
Send e-post: post@propr.no
Ring oss: 23 90 59 00 (10–16, ukedager)