

























































REINEN/ Tromsdalen
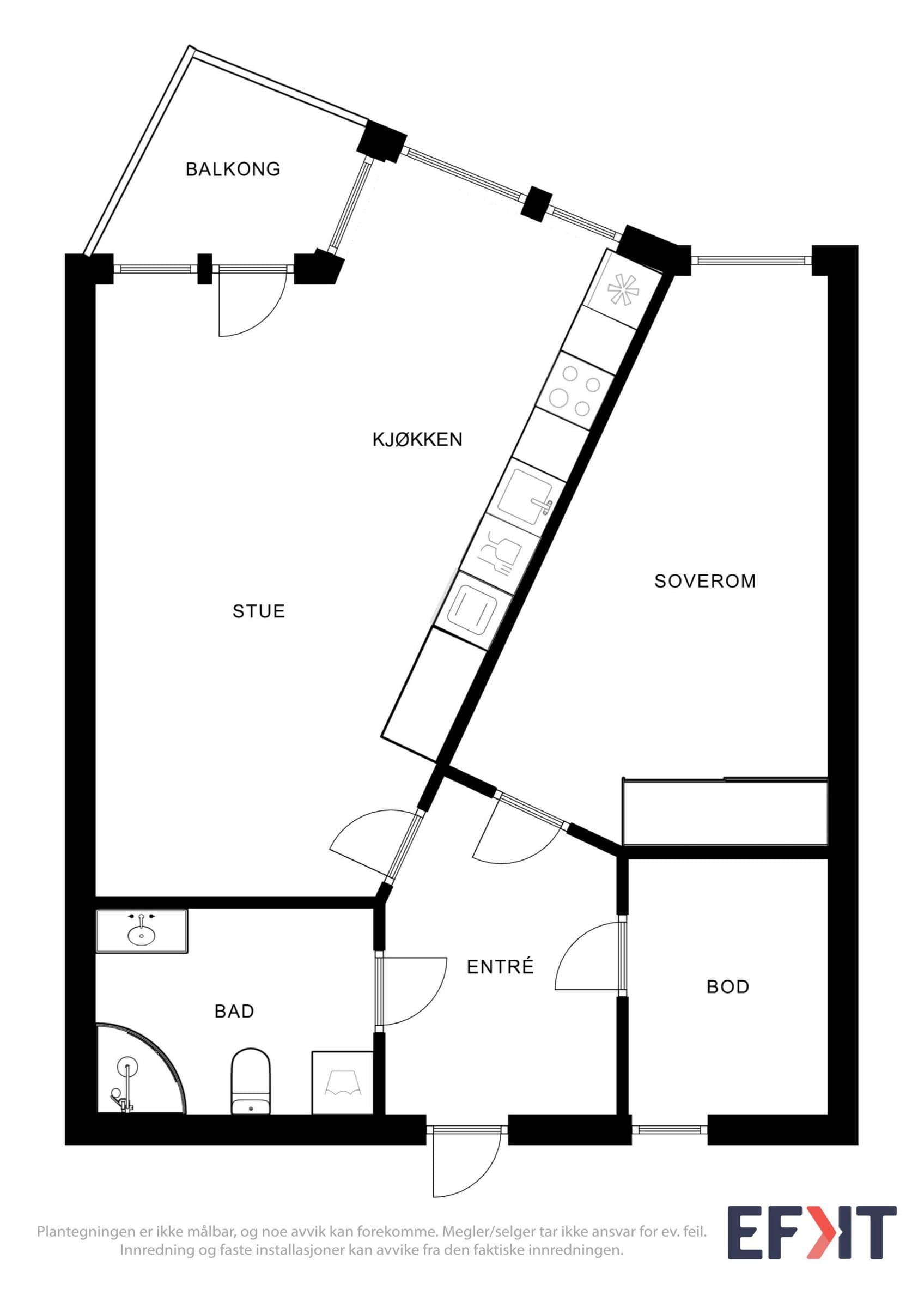
Velkommen til Sommarfjøsveien 91! Attraktiv 3-roms leilighet med panoramautsikt mot Tromsøya, Tromsøysundet og fjellene i sør og vest! Leiligheten har velholdt utførelse, er praktisk innredet og har komfortabelt bomiljø. Den ligger i en høy 2. etg, (som 3. etg.) uten innsyn. Består av stue, kjøkken med spiseplass, 2 soverom, bad/vaskerom med gulvvarme, bod og garasje i underetasjen. Godt naturlig lysinnslipp fra rikelig med vinduer mot sør og vest. Solrik balkong med utgang fra stuen som kan nytes store deler av døgnet. Også fine solforhold på baksiden i svalgang, her møter du trivelige naboer over en kaffekopp. Heisen tar du ned til garasjen hvor bilen står trygt og snøfri på den beste garasjeplassen i blokka (rett frem av porten).
Området rundt leiligheten i Sommarfjøsvegen på Reinen er preget av fine omgivelser med en blanding av eneboliger og mindre leilighetsbygg. Området er trygt og barnevennlig. Nabolaget har en vennlig atmosfære og passer fint for familier og de som ønsker et godt og fredelig boligområde. Leilighetsbygget ligger høyt og øverst i et veletablert boområde. Det er kort vei til flotte turstier, skogs- og fjellområder hvor en kan nyte vakker natur og frisk luft. Flere turstier starter rett bak bygget. God gjesteparkering foran. I nærheten finner man også dagligvarebutikker, barnehage, skole og idrettsanlegg. Du finner Thon Senter Pyramiden en liten spasertur unna, med 45 butikker, kafeer, frisør, post, apotek, vinmonopol ol. I nærområdet finner du også Tromsdalen kirke (Ishavskatedralen) treningssenter, fjellheis, og kort vei ned til sjøen. Det er gode bussforbindelser til sentrum av Tromsø, som ligger en kort kjøretur unna. Flere busstopp kan benyttes på Solstrandveien, rute 28 og 412. Rute 73 kan du ta fra Sommarfjøsveien, rett foran blokka. Fra Pyramiden kjøpesenter kan du ta rute 26 som går til flyplassen via sentrum. ADKOMST Kjør E8 sørover fra Ishavskatedralen - ta av til venstre før Biltrend ved skilt opp til Gammelgård. Sommarfjøsveien er andre vei til venstre. Følg veien helt til toppen.
FORKJØPSRETT Det er forkjøpsrett for borettslagets medlemmer - og medlemmer tilknyttet boligbyggerlaget (Bonord) borettslaget er tilknyttet. Forkjøpsretten har en tidsfrist og avklares etter budaksept. FORSIKRING Det er tegnet boligselgerforsikring for en trygg handel og kjøper anbefales å tegne boligkjøperforsikring. VISNING Har du ikke anledning å komme på fellesvisning, finner jeg gjerne plass til en privat visning - ta kontakt så avtaler vi tidspunkt som passer. SIKRINGSFOND Borettslaget er tilknyttet sikringsfond fra Klare Finans AS og har avtale om Garanterte Felleskostnader (sikring og forskuttering av felleskostnader). IN-ORDNING Veldrevet borettslag med IN- ordning, som er individuell innbetaling av fellesgjeld for de som ønsker det, som da fører til lavere månedlige innbetalinger på husleie. Borettslaget betaler avdrag på lån og har en god vedlikeholdsplan. Velkommen på visning!
KJØKKEN Kjøkkenet er av beste kvalitet fra HTH med integrerte hvitevarer og flere finesser. Benkeskapene har lameller lakkert i slitesterk hvitpigmentert heltre Eik (Nordic Spirit). Det har to høyskap og en skuffeseksjon i Nordisk Grønn, som inneholder kjøl/frys og AEG Steamboost Ovn med dampfunksjon og krydderskuffe med plantelys. Her bevarer du urtene og blomstene lenge! Det er Induksjon Platetopp fra AEG med installert strømutkoblingsenhet for komfyrvakt (SIRO fra RørosHetta) Oppvaskmaskinen er AEG Favorit, med Beam-on-Floor lys, automatisk åpning v/programstopp og deaktivering. Er tilkoblet lekkarsjesensor (Høyax Aquasafe Lekkarsjestopper). Veggen ved kjøkkenbenk har malt trevegg montert i fiskebensmønster. Messingvask, messinghylle og blandebatteri samt andre messingdetaljer. I tillegg har kjøkkenet 3 stk sokkelskuffer som gir ekstra plass. Glasskap med lys under og inni - til de fineste glassene. Nedfelt stor vask , 50x40 cm i messing fra Tapwell og ett-greps blandebatteri i messing med uttrekkbar tut med dusjknapp. Skuffene har soft close , stikkontakt er nedfellt i benkeplaten. Og som om ikke det er nok, så får du også Opalum Kitchen Sound Unit (lydanlegg) integrert, som har fått designprisen Red Dot Award :) Kjøkkenet har også god plass til langt spisebord foran store vindusflater med panoramautsikt! Naturen blir en levende del av interiøret. Her endrer lyset seg gjennom dagen og viser vakre solnedganger i alle former og farger. Perfekt samlingspunkt for alle typer selskap! Gulvet har ekstra høy kvalitet - Herdet Tregulv fra Saga Hardwood som tåler hard belastning og har 27 cm brede 1-stavsbord. Vegger og tak har malte flater.
BAD/VASKEROM Badet er delvis oppusset etter byggeår, men fra ukjent årstall. Gulvet har fått fliser og dusjvegger samt downlights i himling. Termostatstyrt gulvvarme. Vegghengt servant-innredning med ett-greps blandebatteri og speil. Dusjvegger og dusjarmatur. Fordelerskap med rør i rør system og opplegg for vaskemaskin. Luftspalte for gjennomstrømning under dør. SOVEROM 1 Hovedsoverommet er veldig romslig med stort garderobeskap med Elfa kurvsystem i flere høyder samt skyvedører. Vegger og tak er tapetsert og malt. Gulvet har malt belegg. Spotskinne (firepunkts) i tak med justering. SOVEROM 2 Soverom/gjesterom vender mot svalgang, har nytt vindu og er delvis tapetsert og malt. Gulvet har belegg. ENTRÈ Romslig entre med tilhørende garderobeskap for ytterklær og sko. Herdet tregulv fra Saga Hardwood som på kjøkken og 3-armet justerbar spotlight i taket. Veggene er tapetsert. SPORTSBOD Boden er lokalisert mellom oppgang/heis og garasje.
FØLGER MED Alle integrerte hvitevarer på kjøkkenet. Garderobe soverom og entre. DYREHOLD er tillatt Borettslaget har egen FACEBOOKSIDE og er tilsluttet Bonords gruppe for beboere. OPPVARMING Elektrisk oppvarming, Gulvvarme i baderom. Det er ikke varmekilder i alle rom OVERTAGELSE Avklares i forbindelse med budgivning. ELBILLADER Tilrettelagt for montering av elbillader. VARMVANNSBEREDER ny 2019 VENTILASJON Mekanisk ventilasjon gjennom mekanisk vifte på kjøkken til bad , samt virker gjennom ventiler i vegg og vinduer og luftspalte under dører. STRØMFORBRUK er lavt YTTERDØR koblet til åpning via telefon
3 650 000 kr (Prisantydning) 656 890 kr (Andel av fellesgjeld) --- 4 306 890 kr (Pris inkl. fellesgjeld) Omkostninger 8 200 kr (HELP boligkjøperforsikring (valgfritt)) 545 kr (Tinglysing av pantedokument) 545 kr (Tinglysing av skjøte) --- 9 290 kr (Omkostninger totalt) --- 4 316 180 kr (Totalpris inkl. omkostninger) NB: Regnestykket forutsetter at det kun tinglyses én låneobligasjon og at eiendommen selges til prisantydning. Det tas forbehold om endringer i offentlige og private gebyrer. Selger er selv ansvarlig for følgende gebyr: 6 725 kr (Eierskiftegebyr) 545 kr (Panterett med urådighet)
Kommunenr: 5501
Gårdsnr: 18
Bruksnr: 427
Du møter selger direkte på visning - den personen som vet hvor sola kommer først inn om morgenen og hvor de beste skiløypene ligger. Få all informasjon fra første hånd og still spørsmål direkte til den som kjenner boligen best.
Legg inn bud enkelt og sikkert med BankID-verifisering. Du får SMS-varsler ved nye bud og kan følge budrunden i sanntid. Systemet er mer oversiktlig og lettere å bruke enn tradisjonelle meglersider.
Oppgjørsselskap med konsesjon fra Finanstilsynet håndterer alle formelle aspekter. Kontrakt signeres digitalt med BankID, og overtakelsesprotokollen gjennomføres enkelt på telefon. Alt foregår i henhold til avhendingsloven.


Her kan du sjekke hvordan Propr fungerer - helt uforpliktende.
Ring oss på 23 90 59 00 (9–16, ukedager), eller legg igjen ditt telefonnummer så ringer vi deg opp.
Chat: 9–19 på hverdager, 11–18 på søndager
Send e-post: post@propr.no
Ring oss: 23 90 59 00 (10–16, ukedager)