















































LILLESTRØM / Stortorget
Sentralt i Lillestrøm, lekker selveierleilighet i 5. etasje med balkong. Fra 2023 - Flytt rett inn
Prisantydning
Størrelse (BRA)
Internt bruksareal (BRA-I)
Boligtype
Eieform
Etasje
Fellesutgifter
- Tomteareal
- 953 m²
- Byggeår
- 2023
- Felleskost pr mnd
- 2 756 kr
- Kommunale avgifter
- 305 kr
- Tomtetype
- Eiet tomt
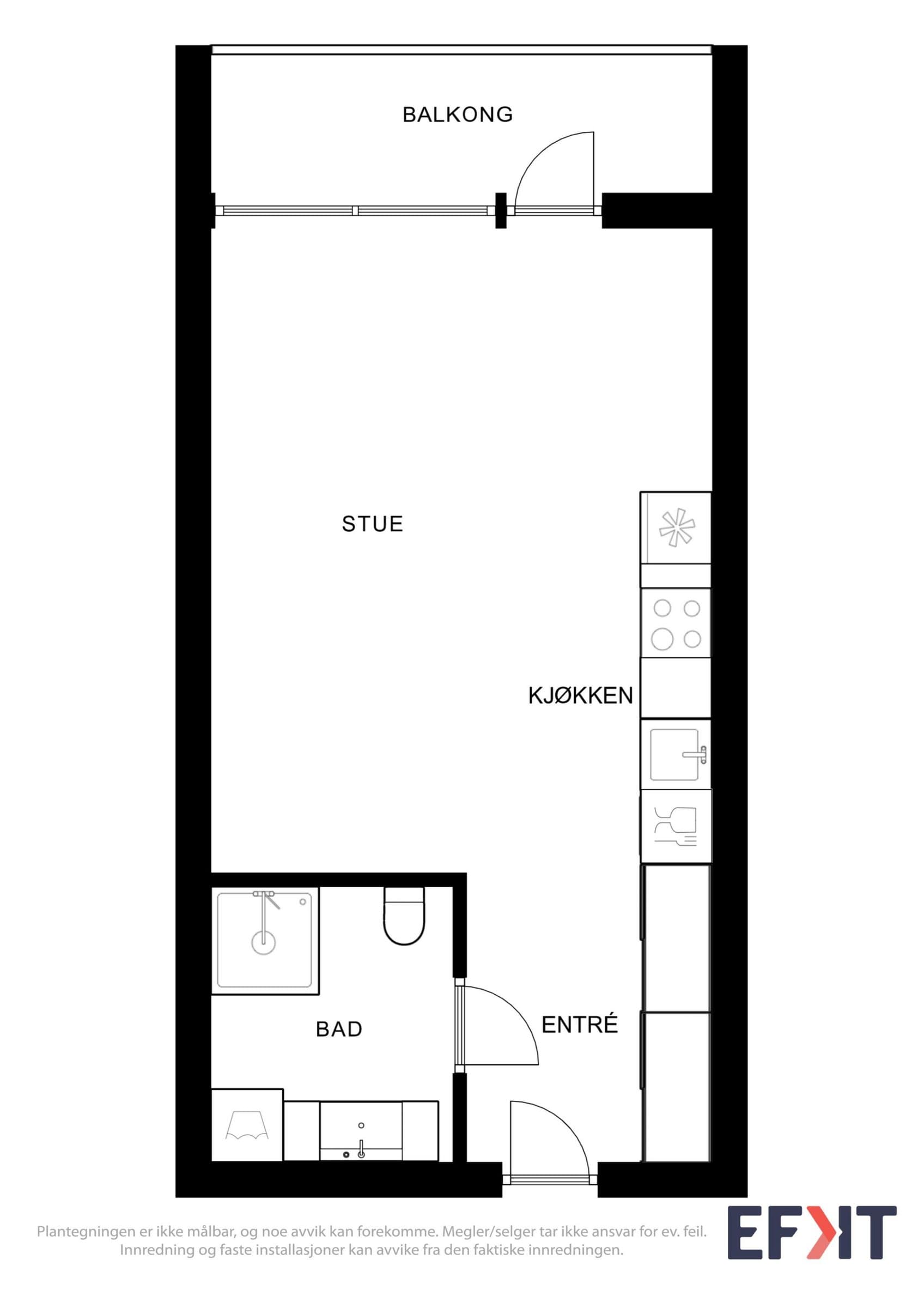
Romtyper
Baderom
Stue
Bod
Beliggenhet
Vi har gleden av å presentere delikat 1 - roms leilighet i 5. etasje på Landstads gate 60! Delikat 1 roms leilighet i 5. etasje med balansert ventilasjonsanlegg, vannbåren varme og ikke minst god beliggenheten, er leiligheten perfekt for deg/ dere som ønsker å ha kort vei til tog, mattbutikk, kino , treningssenter og mye midt i Lillestrøm. Leiligheten har en en god planløsning med romslig stue/kjøkkenløsning, herfra er det utgang til en fin balkong, og ved entreen har du delikat og lekkert bad. Bygget har heis, felles takterasse. Leiligheten har en arealeffektiv planløsning som utnytter hver kvdratmeter maksimalt. Det er 3 - stavs lys parkett på gulvet ( (Haro 4000 TC), og himling er holdt lyse. Badet har lekre fliser og innredning, samt regnfalssdusj og opplegg for vaskemaksin. Tilknyttet kjøkkenet er det garderobeskap, i tilegg har du praktisk kjellerbod. Kort fortalt: - Svært sentralt i Lillestrøm og ny fra 2023 - Perfekt for førstegangskjøp eller leilighet for utleie. - Lave felleskostnader - Gode oppbevaringsmuligheter - Sørvestvendt balkong - Vannbåren gulvvarmet - Bod i kjeller på 2.5 kvm
Annet
Det er ingen forkjøpsrett på boligen. Om du ikke har mulighet til å komme på visning, holder jeg gjerne privatvisning. Ta kontakt, så finner vi en tid. J
Omkostninger
10 900 kr (HELP boligkjøperforsikring (valgfritt)) 92 500 kr (Dokumentavgift) 545 kr (Tinglysing av pantedokument) 545 kr (Tinglysing av skjøte) --- 104 490 kr (Omkostninger totalt) --- 3 804 490 kr (Totalpris inkl. omkostninger) NB: Regnestykket forutsetter at det kun tinglyses én låneobligasjon og at eiendommen selges til prisantydning. Det tas forbehold om endringer i offentlige og private gebyrer. Selger er selv ansvarlig for følgende gebyr: 6 725 kr (Eierskiftegebyr) 545 kr (Panterett med urådighet)
Matrikkelinformasjon
Kommunenr: 3205
Gårdsnr: 81
Bruksnr: 2709
Seksjonsnr: 42
Trygg og profesjonell kjøpsprosess
- 1
Møt selger på visning
Du møter selger direkte på visning - den personen som vet hvor sola kommer først inn om morgenen og hvor de beste skiløypene ligger. Få all informasjon fra første hånd og still spørsmål direkte til den som kjenner boligen best.
- 2
Sikker budprosess med BankID
Legg inn bud enkelt og sikkert med BankID-verifisering. Du får SMS-varsler ved nye bud og kan følge budrunden i sanntid. Systemet er mer oversiktlig og lettere å bruke enn tradisjonelle meglersider.
- 3
Profesjonelt oppgjør og overtakelse
Oppgjørsselskap med konsesjon fra Finanstilsynet håndterer alle formelle aspekter. Kontrakt signeres digitalt med BankID, og overtakelsesprotokollen gjennomføres enkelt på telefon. Alt foregår i henhold til avhendingsloven.


Vurderer du å selge selv?
Her kan du sjekke hvordan Propr fungerer - helt uforpliktende.
Ring oss på 23 90 59 00 (9–16, ukedager), eller legg igjen ditt telefonnummer så ringer vi deg opp.
Aktuelt
Kundeservice
Chat: 9–19 på hverdager, 11–18 på søndager
Send e-post: post@propr.no
Ring oss: 23 90 59 00 (10–16, ukedager)