









































































LEINSTRAND / Skjetlein
Fin, velholdt og praktisk enebolig i barnevennlig område til salgs!
Prisantydning
Størrelse (BRA)
Internt bruksareal (BRA-I)
Boligtype
Eieform
Antall etasjer
- Tomteareal
- 696 m²
- Byggeår
- 1991
- Kommunale avgifter
- 24 000 kr
- Tomtetype
- Eiet tomt
Romtyper
Soverom
Baderom
Stue
Bod
Kjøkken
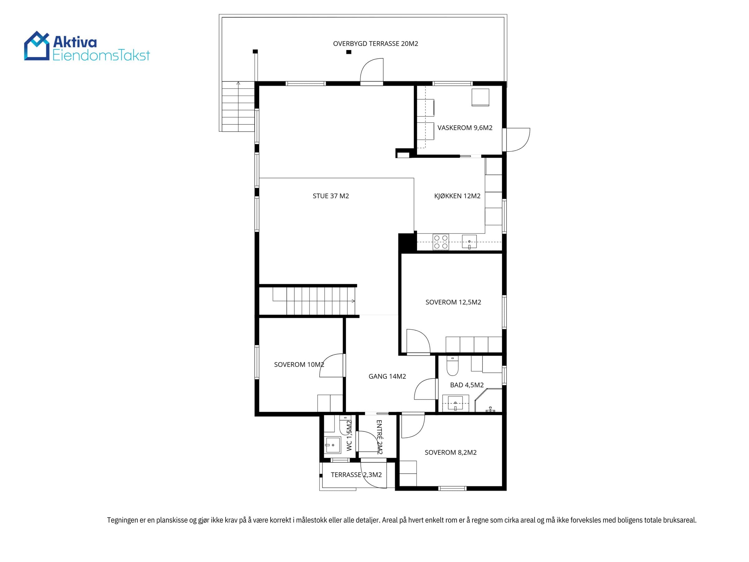
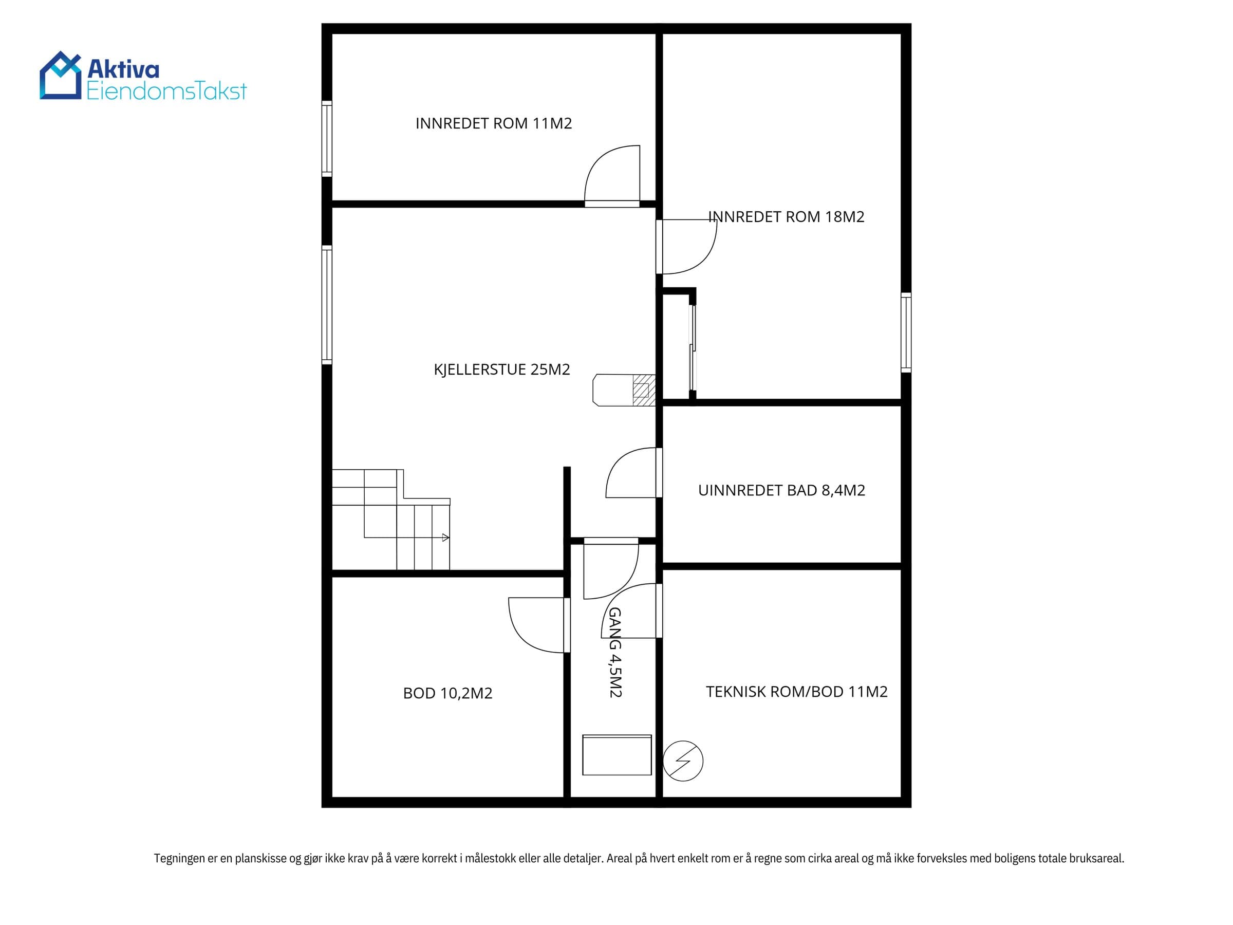
Om boligen
Skjetleinvegen 123 er en innholdsrik og sjarmerende enebolig fra 1991 med god planløsning og gjennomgående god standard. Boligen har lyse og romslige oppholdsrom, tre soverom på hovedplan, kjellerstue og flere innredede rom i underetasjen. Uteområdene er pent opparbeidet med hagedam, flere sitteplasser og terrasse. Her bor du fredelig og landlig, med flott turterreng rett utenfor døren. Samtidig kort vei til skole, barnehage, badestrand og Trondheim sentrum.
Beliggenhet
Boligen ligger i et rolig og landlig område med lite gjennomgangstrafikk og gode solforhold. Her bor du tett på naturen med flotte turmuligheter rett utenfor døren – både skog, mark og åpne jorder gir et variert og idyllisk nærmiljø. Området oppleves trygt og familievennlig, samtidig som det er kort kjøreavstand til dagligvarebutikk, skole og øvrige servicetilbud. En perfekt kombinasjon av landlig ro og praktisk tilgjengelighet.
Annet
Om du ikke har mulighet til å komme på visning, holder jeg gjerne privatvisning. Ta kontakt, så finner vi en tid.
Omkostninger
15 900 kr (HELP boligkjøperforsikring (valgfritt)) 132 000 kr (Dokumentavgift) 545 kr (Tinglysing av pantedokument) 545 kr (Tinglysing av skjøte) --- 148 990 kr (Omkostninger totalt) --- 5 428 990 kr (Totalpris inkl. omkostninger) NB: Regnestykket forutsetter at det kun tinglyses én låneobligasjon og at eiendommen selges til prisantydning. Det tas forbehold om endringer i offentlige og private gebyrer. Selger er selv ansvarlig for følgende gebyr: 545 kr (Panterett med urådighet)
Matrikkelinformasjon
Kommunenr: 5001
Gårdsnr: 172
Bruksnr: 11
Trygg og profesjonell kjøpsprosess
- 1
Møt selger på visning
Du møter selger direkte på visning - den personen som vet hvor sola kommer først inn om morgenen og hvor de beste skiløypene ligger. Få all informasjon fra første hånd og still spørsmål direkte til den som kjenner boligen best.
- 2
Sikker budprosess med BankID
Legg inn bud enkelt og sikkert med BankID-verifisering. Du får SMS-varsler ved nye bud og kan følge budrunden i sanntid. Systemet er mer oversiktlig og lettere å bruke enn tradisjonelle meglersider.
- 3
Profesjonelt oppgjør og overtakelse
Oppgjørsselskap med konsesjon fra Finanstilsynet håndterer alle formelle aspekter. Kontrakt signeres digitalt med BankID, og overtakelsesprotokollen gjennomføres enkelt på telefon. Alt foregår i henhold til avhendingsloven.


Vurderer du å selge selv?
Her kan du sjekke hvordan Propr fungerer - helt uforpliktende.
Ring oss på 23 90 59 00 (9–16, ukedager), eller legg igjen ditt telefonnummer så ringer vi deg opp.
Aktuelt
Kundeservice
Chat: 9–19 på hverdager, 11–18 på søndager
Send e-post: post@propr.no
Ring oss: 23 90 59 00 (10–16, ukedager)