































Mortensrud
Romslig 3-roms selveier toppleilighet med lav felleskost. V.v og fyring inkl. Fjordutsikt og garasjeplass m/EL- lading.
Prisantydning
Størrelse (BRA)
Internt bruksareal (BRA-I)
Boligtype
Eieform
Etasje
Fellesutgifter
- Tomteareal
- 16 635 m²
- Byggeår
- 1988
- Fellesgjeld
- 28 437 kr
- Felleskost pr mnd
- 4 584 kr
- Tomtetype
- Eiet tomt
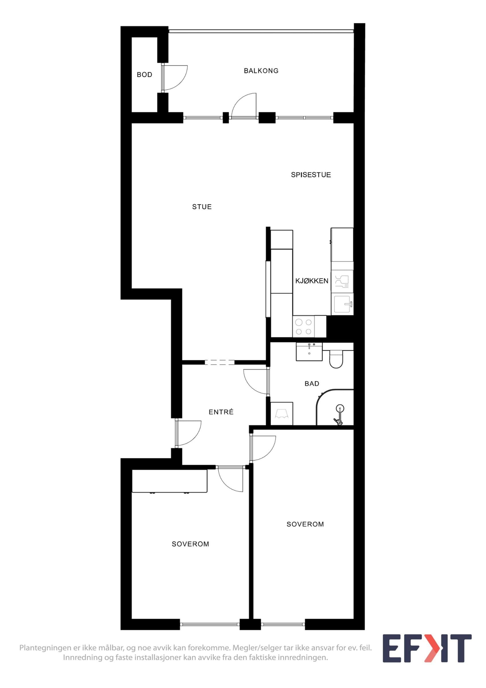
Romtyper
Soverom
Baderom
Stue
Bod
Kjøkken
Om boligen
Velkommen til en lys og romslig 3-roms selveierleillighet på lofsrudhøgda 281! Svært lave felleskostnader varmtvann, fjernvarme og internett er inkludert. God utleiemulighet. Leiligheten er i dag utleid for 20500kr Dette er en toppleilighet med fjordutsikt og hele 10kvm terrasse samt utvendig bod. Leiligheten inneholder entre, 2 store soverom, flislagt bad med opplegg og plass til vaskemaskin, kjøkken og en luftig stue. Leiligheten medfølger parkeringsplass i garasjeanlegg under bygningen med EL/lading montert. Det er også privat bod tilknyttet garasjen.
Beliggenhet
Beliggenheten er barnevennlig, trafikkstille og attraktiv, med umiddelbar nærhet til barnehager, barneskole og ungdomsskole, samt kort vei til T-bane, kjøpesenter, treningssenter og populære turområder. Nabolaget har trygge lekeområder, store grønne friområder og en lekeplass rett foran leiligheten.
Visning
Privatvisning kan gjennomføres før fellesvisning. Ta gjerne kontakt.
Omkostninger
3 850 000 kr (Prisantydning) 28 437 kr (Andel av fellesgjeld) --- 3 878 437 kr (Pris inkl. fellesgjeld) Omkostninger 10 900 kr (HELP boligkjøperforsikring (valgfritt)) 96 950 kr (Dokumentavgift) 545 kr (Tinglysing av pantedokument) 545 kr (Tinglysing av skjøte) --- 108 940 kr (Omkostninger totalt) --- 3 987 377 kr (Totalpris inkl. omkostninger) NB: Regnestykket forutsetter at det kun tinglyses én låneobligasjon og at eiendommen selges til prisantydning. Det tas forbehold om endringer i offentlige og private gebyrer. Selger er selv ansvarlig for følgende gebyr: 6 725 kr (Eierskiftegebyr) 545 kr (Panterett med urådighet)
Matrikkelinformasjon
Kommunenr: 301
Gårdsnr: 178
Bruksnr: 20
Seksjonsnr: 111
Trygg og profesjonell kjøpsprosess
- 1
Møt selger på visning
Du møter selger direkte på visning - den personen som vet hvor sola kommer først inn om morgenen og hvor de beste skiløypene ligger. Få all informasjon fra første hånd og still spørsmål direkte til den som kjenner boligen best.
- 2
Sikker budprosess med BankID
Legg inn bud enkelt og sikkert med BankID-verifisering. Du får SMS-varsler ved nye bud og kan følge budrunden i sanntid. Systemet er mer oversiktlig og lettere å bruke enn tradisjonelle meglersider.
- 3
Profesjonelt oppgjør og overtakelse
Oppgjørsselskap med konsesjon fra Finanstilsynet håndterer alle formelle aspekter. Kontrakt signeres digitalt med BankID, og overtakelsesprotokollen gjennomføres enkelt på telefon. Alt foregår i henhold til avhendingsloven.


Vurderer du å selge selv?
Her kan du sjekke hvordan Propr fungerer - helt uforpliktende.
Ring oss på 23 90 59 00 (9–16, ukedager), eller legg igjen ditt telefonnummer så ringer vi deg opp.
Aktuelt
Kundeservice
Chat: 9–19 på hverdager, 11–18 på søndager
Send e-post: post@propr.no
Ring oss: 23 90 59 00 (10–16, ukedager)