



















































Nardo
Koselig 2-roms i 1. etasje | Solrik veranda | God planløsning | Rolig område
Prisantydning
Størrelse (BRA)
Internt bruksareal (BRA-I)
Boligtype
Eieform
Etasje
Fellesutgifter
- Tomteareal
- 9 492 m²
- Byggeår
- 1967
- Fellesgjeld
- 473 642 kr
- Felleskost pr mnd
- 5 839 kr
- Tomtetype
- Eiet tomt
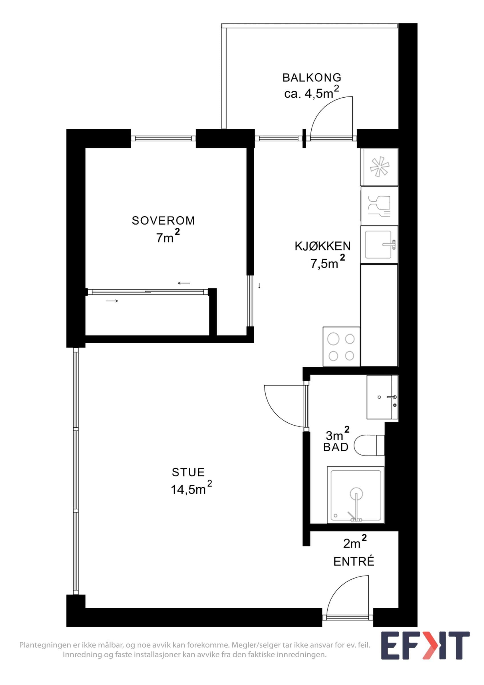
Romtyper
Soverom
Baderom
Stue
Bod
Kjøkken
Om boligen
2-roms leilighet i høy 1. etasje med sørvendt balkong og gode solforhold. Leiligheten ligger rolig til i enden av parkeringsområdet, med lite gjennomgangstrafikk og store grønne fellesarealer rett utenfor. Bygget er nylig rehabilitert med ny kledning, etterisolering, nye 3-lags vinduer, nye ytterdører og nytt ventilasjonssystem, noe som gir en mer energieffektiv og oppgradert bygningsmasse. Leiligheten disponerer både kjellerbod og loftsbod. Det er også en felleskjeller med sykkelparkering samt et avmerket disponibelt areal til leiligheten. Kort vei til NTNU, busstopp og Nardo Centeret.
Kvaliter verdt å nevne
*God planløsning med bra romfordeling *Stort innebygd garderobeskap *Sørvendt balkong med gode solforhold *Parkering i borettslag *Fulltidsansatt vaktmester *Ingen registrerte TG3 i tilstandsrapport *Nye vinduer og verandadør samt etterisolert for lavere strømforbruk. *Ny ventilasjonsløsning for bedre inneklima. *Rolig og attraktiv beliggenhet på Nardo/Othilienborg *Gangavstand til Nardo Centeret *Kort vei til NTNU Dragvoll og Gløshaugen *Gode kollektivforbindelser med busstopp *Nærhet til turområder i Estenstadmarka *Felles vaskekjeller tilgjengelig *Loftsbod og kjellerbod gir gode oppbevaringsmuligheter
Standard
Entré: Entréen har flis på gulv, malte panelplater på vegger og malt himling. Det er installert sikringsskap i gangen. Stue: Stuen har parkett på gulv og malte panelplater på vegger. Øvre del av nordligste vegg er skifer. Himlingen er malt og inneholder downlights. Det er tre vinduer i stuen. Gulvvarme og panelovn. Kjøkken: Kjøkkenet har parkett på gulv og malte panelplater på vegger. Skifer langs veggen over kjøkkenbenk. Himlingen med downlights er malt. Et vindu samt en verandadør. Gulvvarme. Integrerte hvitevarer inkluderer kjøl/fryseskap, mikrobølgeovn, oppvaskmaskin, platetopp (ny 2026) og stekeovn. Varmtvannsbereder lokalisert under benkeplate. Mekanisk avtrekksvifte over stekesone. Downlights under overskap. Hvitevarer på kjøkken medfølger. Soverom: Soverommet har laminatgulv og panel på vegger. Himlingen med downlights er malt. Det er bygd inn skyvedørsgarderobe med helspeil. Det er en ventilasjonsluke samt et vindu med luftespalte. Skyvedør fra kjøkken. Bad: Badet har flis på gulv og vegger. Himlingen er malt og inneholder downlights. Badet er utstyrt med dusjkabinett, servant med underskap, overskap og håndkletørker. Gulvvarme. Rørfordelingsskap og mekanisk avtrekk.
Beliggenhet
Leiligheten har en attraktiv og sentral beliggenhet på Nardo/Othilienborg i rolige omgivelser. Boligen ligger skjermet til i enden av parkeringsområdet med lite gjennomgangstrafikk og gode solforhold. Fra leiligheten er det sykkelavstand til NTNU Gløshaugen og Dragvoll, sentrum og Estenstadsmarka. Innenfor gangavstand finner du Nardo Centeret med dagligvarebutikk (Rema 1000), apotek, bakeri, blomsterbutikk, restaurant og legesenter. Området har gode kollektivforbindelser med busstopp i kort gangavstand og hyppige avganger mot sentrum i Trondheim samt St. Olavs Hospital, SINTEF, osv. Nærområdet byr på gode trenings- og fritidsmuligheter. Nissekollen kunstgress ligger ca. 1 km unna, og Othilienborg Discgolfbane finnes også i kort avstand fra boligen. Det er i tillegg treningssenter innen ca. 12 minutters gange. Området har store grønne fellesarealer og nærhet til fine turområder, som gir gode muligheter for tur og aktivitet gjennom hele året.
Fellesarealer
Borettslaget disponerer felles vaskekjeller i hvert bygg med vaskemaskin og tørketrommel. I tillegg disponerer leiligheten loftsbod, kjellerbod samt markert oppbevaringsareal i felles kjeller. Det er også sykkelparkering i kjelleren. Ta gjerne kontakt for bilder av boder. Det er etablert utvendig vannuttak (utekran) i tilknytning til bygget, noe som er praktisk ved blant annet rengjøring og vedlikehold. Borettslaget har romslige og opparbeidede fellesarealer med plen og grøntområder mellom bebyggelsen. Områdene oppleves som åpne og luftige, og gir gode uteoppholdsarealer for beboerne.
Rehabilitering i borettslaget
Boligen er en del av Nardosletta Borettslag, som er i sluttfasen av et omfattende rehabiliteringsprosjekt (oppstart 2024). Tiltakene omfatter blant annet: *Ny utvendig kledning *Tilleggsisolering av yttervegger og grunnmur *Utskifting til nye 3-lags vinduer *Nye ytterdører og balkongdører *Nye balkonger *Installasjon av nytt ventilasjonssystem *Tilleggsisolering av loft (der dette er aktuelt)
Parkering
Det finnes stor parkeringsplass i nærheten av boligen. Borettslaget disponerer et begrenset antall garasjeplasser som tildeles etter søknad til styret. Det er også etablert ladeløsning for elbil i borettslaget.
Økonomi
Felleskostnader er på 5 839,- per måned og kan justeres av styret ved behov. Felleskostnadene dekker blant annet: *Renter og avdrag på fellesgjeld *Drift og vedlikehold *Forsikring av bygget *Kommunale avgifter *Renhold av fellesarealer *Elektronisk fellesavtale via Telia (internett og tv) *Felles vaskemaskin og tørketrommel i kjeller
Visning
Visning vil bli avholdt etter avtale eller annonserte tidspunkt. Interessenter bes melde seg på visning på forhånd. Dersom annonsert visning ikke får påmeldte innen fastsatt frist, kan visning bli avlyst. Ta kontakt for å avtale privatvisning dersom oppsatt tidspunkt ikke passer.
Overtakelse og forkjøpsrett
Overtakelse etter nærmere avtale. Kjøper må godkjennes av styret i borettslaget. Videre gjelder forkjøpsrett etter borettslagets regler. Handelen er bindende mellom partene selv om styregodkjenning eller forkjøpsrettsavklaring ikke foreligger på overtakelsestidspunktet. Forkjøpsretten er ferdig forhåndsprøvd. Ta kontakt for å få opplyst hvor mange som har meldt sin interesse.
Løsøre og tilbehør
Boligen selges med følgende inkludert: *Integrerte hvitevarer på kjøkken (med mindre annet er spesifisert) *Fastmonterte garderobeskap *Vegghengt panelovn
Annet
Det er utført utvidet elkotroll etter anbefaling fra takstmann. I sammenheng med elkotroll ble FM radio i kjøkkenvegg erstattet med stikkontakt, dette ble gjort etter bildetagning. Dimmere på kjøkken ble også utbedret, i den sammeheng kommer de litt lenger ut ifra veggen enn bildene viser. Boligen er ikke tilknyttet Norgespris eller annen fast strømavtale. Kjøper står fritt til å velge strømleverandør, avtaletype og eventuelt Norgespris.
Omkostninger
2 250 000 kr (Prisantydning) 473 642 kr (Andel av fellesgjeld) --- 2 723 642 kr (Pris inkl. fellesgjeld) Omkostninger 8 406 kr (Forkjøpsrettsgebyr) 8 200 kr (HELP boligkjøperforsikring (valgfritt)) 545 kr (Tinglysing av pantedokument) 545 kr (Tinglysing av skjøte) --- 17 696 kr (Omkostninger totalt) --- 2 741 338 kr (Totalpris inkl. omkostninger) NB: Regnestykket forutsetter at det kun tinglyses én låneobligasjon og at eiendommen selges til prisantydning. Det tas forbehold om endringer i offentlige og private gebyrer. Selger er selv ansvarlig for følgende gebyr: 6 725 kr (Eierskiftegebyr) 545 kr (Panterett med urådighet)
Matrikkelinformasjon
Kommunenr: 5001
Gårdsnr: 79
Bruksnr: 22
Trygg og profesjonell kjøpsprosess
- 1
Møt selger på visning
Du møter selger direkte på visning - den personen som vet hvor sola kommer først inn om morgenen og hvor de beste skiløypene ligger. Få all informasjon fra første hånd og still spørsmål direkte til den som kjenner boligen best.
- 2
Sikker budprosess med BankID
Legg inn bud enkelt og sikkert med BankID-verifisering. Du får SMS-varsler ved nye bud og kan følge budrunden i sanntid. Systemet er mer oversiktlig og lettere å bruke enn tradisjonelle meglersider.
- 3
Profesjonelt oppgjør og overtakelse
Oppgjørsselskap med konsesjon fra Finanstilsynet håndterer alle formelle aspekter. Kontrakt signeres digitalt med BankID, og overtakelsesprotokollen gjennomføres enkelt på telefon. Alt foregår i henhold til avhendingsloven.


Vurderer du å selge selv?
Her kan du sjekke hvordan Propr fungerer - helt uforpliktende.
Ring oss på 23 90 59 00 (9–16, ukedager), eller legg igjen ditt telefonnummer så ringer vi deg opp.
Aktuelt
Kundeservice
Chat: 9–19 på hverdager, 11–18 på søndager
Send e-post: post@propr.no
Ring oss: 23 90 59 00 (10–16, ukedager)