































































TØNSBERG / Basberg
Basbergveien 117B, stor og lys kjedet enebolig/generasjonsbolig med utleieleilighet!
Prisantydning
Størrelse (BRA)
Internt bruksareal (BRA-I)
Boligtype
Eieform
Antall etasjer
- Tomteareal
- 1 235 m²
- Byggeår
- 2004
- Kommunale avgifter
- 18 758 kr
- Tomtetype
- Eiet tomt
Romtyper
Soverom
Baderom
Stue
Bod
Kjøkken
Om boligen
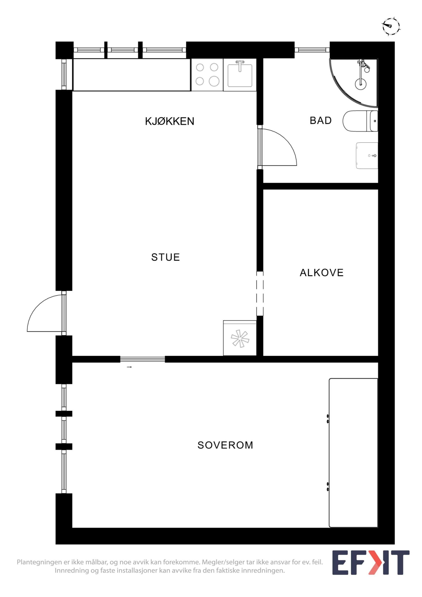
Velkommen til Basbergveien 117B, en stor og lys enebolig i kjede, med en ca. 50m2 stor utleieleilighet på bakkeplan. Nærhet til fasiliteter, men i landlige omgivelser med masse sol og utsikt. Boligen kan også fungere som generasjonsbolig, i tillegg til utleiedelen. Ca. kr 12.000 pr mnd i skattefrie inntekter. Boligen har tre halvplan, og det er livsløpsstandard på første plan. Panoramautsikt over kulturlandskap fra både hus og leilighet. Romslig dobbel garasje er integrert i huset, bergvarme, vannbåren gulvvarme og en moderne peisovn. Det er to piper i huset. En hems/mesanin kan etableres i stuen, som kan øke antallet soverom fra fire til fem. Størstedelen av huset er bygget i 2004. En mindre del er fra 1969, men ble renovert i 2004. Boligen er påkostet med innvendig trapp i heltre eik. Entreen har natursteinen Travertin og badet har store Porcelanosafliser. Huset har to kjøkken, stue, spisestue, tv-stue og et kontor, pluss 3 soverom. I tillegg har det et ekstra stort bad, et wc, et vaskerom og et teknisk rom. Bodplass er i garasje. Hele boligen er nymalt utvendig i september 2025. Skjermede uteplasser i lettstelt privat hage. Pergola med druer og blåregn over terrassen mot vest, og uteplass på gress mot øst. Utleiedelen har egen usjenert inngang, et stort soverom, en alkove, et allrom (kjøkken og stue), og et bad. Privat uteplass med utsikt over åker og eng følger med.
Beliggenhet
Beliggende åpent og solrikt til på en åskam i Slagendalen nord for Tønsberg. Fantastisk utsikt over dalen. Eiendommen har et nydelig japansk kirsebærtre som tuntre, som blomstrer i mai. Det er nærhet til flere sentra som Eik, Tolvsrød og Olsrød. Her bor det flere småbarnsfamilier i et godt bomiljø, med skoleskyss til de minste. Klokkeråsen barnehage ligger en kilometer unna, med gang- og sykkelsti hele veien.
Annet
Sameiet Eketun består av to eneboliger som er kjedet sammen via en kaldbod, teknisk definert som en tomannsbolig. Bergvarmen kan bidra med ca. 25-30% av energibehovet pr. år. Sydvendt tak, ideelt for framtidig solcelleanlegg med potensial til å produsere ca. 10.000 kWh i året. Ladestasjon for elbil 7,6 kW på husveggen. Stor parkeringsplass (1,5 plass er satt av til 117A). Se vedtekter og situasjonskart for mer informasjon. Basbergveien har kun 30 km fartsgrense, og blir ryddet raskt ved snøfall. Krystallysekrone medfølger ikke i handelen. Ta kontakt om du ønsker privat visning, i tilfelle det ikke passer for deg med felles visning. Jeg har boligselgerforsikring og anbefaler deg å tegne boligkjøperforsikring.
Omkostninger
15 900 kr (HELP boligkjøperforsikring (valgfritt)) 162 500 kr (Dokumentavgift) 545 kr (Tinglysing av pantedokument) 545 kr (Tinglysing av skjøte) --- 179 490 kr (Omkostninger totalt) --- 6 679 490 kr (Totalpris inkl. omkostninger) NB: Regnestykket forutsetter at det kun tinglyses én låneobligasjon og at eiendommen selges til prisantydning. Det tas forbehold om endringer i offentlige og private gebyrer. Selger er selv ansvarlig for følgende gebyr: 0 kr (Eierskiftegebyr) 545 kr (Panterett med urådighet)
Matrikkelinformasjon
Kommunenr: 3905
Gårdsnr: 89
Bruksnr: 48
Seksjonsnr: 2
Trygg og profesjonell kjøpsprosess
- 1
Møt selger på visning
Du møter selger direkte på visning - den personen som vet hvor sola kommer først inn om morgenen og hvor de beste skiløypene ligger. Få all informasjon fra første hånd og still spørsmål direkte til den som kjenner boligen best.
- 2
Sikker budprosess med BankID
Legg inn bud enkelt og sikkert med BankID-verifisering. Du får SMS-varsler ved nye bud og kan følge budrunden i sanntid. Systemet er mer oversiktlig og lettere å bruke enn tradisjonelle meglersider.
- 3
Profesjonelt oppgjør og overtakelse
Oppgjørsselskap med konsesjon fra Finanstilsynet håndterer alle formelle aspekter. Kontrakt signeres digitalt med BankID, og overtakelsesprotokollen gjennomføres enkelt på telefon. Alt foregår i henhold til avhendingsloven.


Vurderer du å selge selv?
Her kan du sjekke hvordan Propr fungerer - helt uforpliktende.
Ring oss på 23 90 59 00 (9–16, ukedager), eller legg igjen ditt telefonnummer så ringer vi deg opp.
Aktuelt
Kundeservice
Chat: 9–19 på hverdager, 11–18 på søndager
Send e-post: post@propr.no
Ring oss: 23 90 59 00 (10–16, ukedager)