





































HELGEROA / Amundrødfeltet
Koselig og romslig andelsleilighet over 3 plan, vestvendt og gode solforhold.
Prisantydning
Størrelse (BRA)
Internt bruksareal (BRA-I)
Boligtype
Eieform
Antall etasjer
Fellesutgifter
- Tomteareal
- 9 990 m²
- Byggeår
- 1975
- Fellesgjeld
- 109 659 kr
- Fellesformue
- 13 034 kr
- Felleskost pr mnd
- 5 610 kr
- Tomtetype
- Eiet tomt
Romtyper
Soverom
Baderom
Stue
Bod
Kjøkken
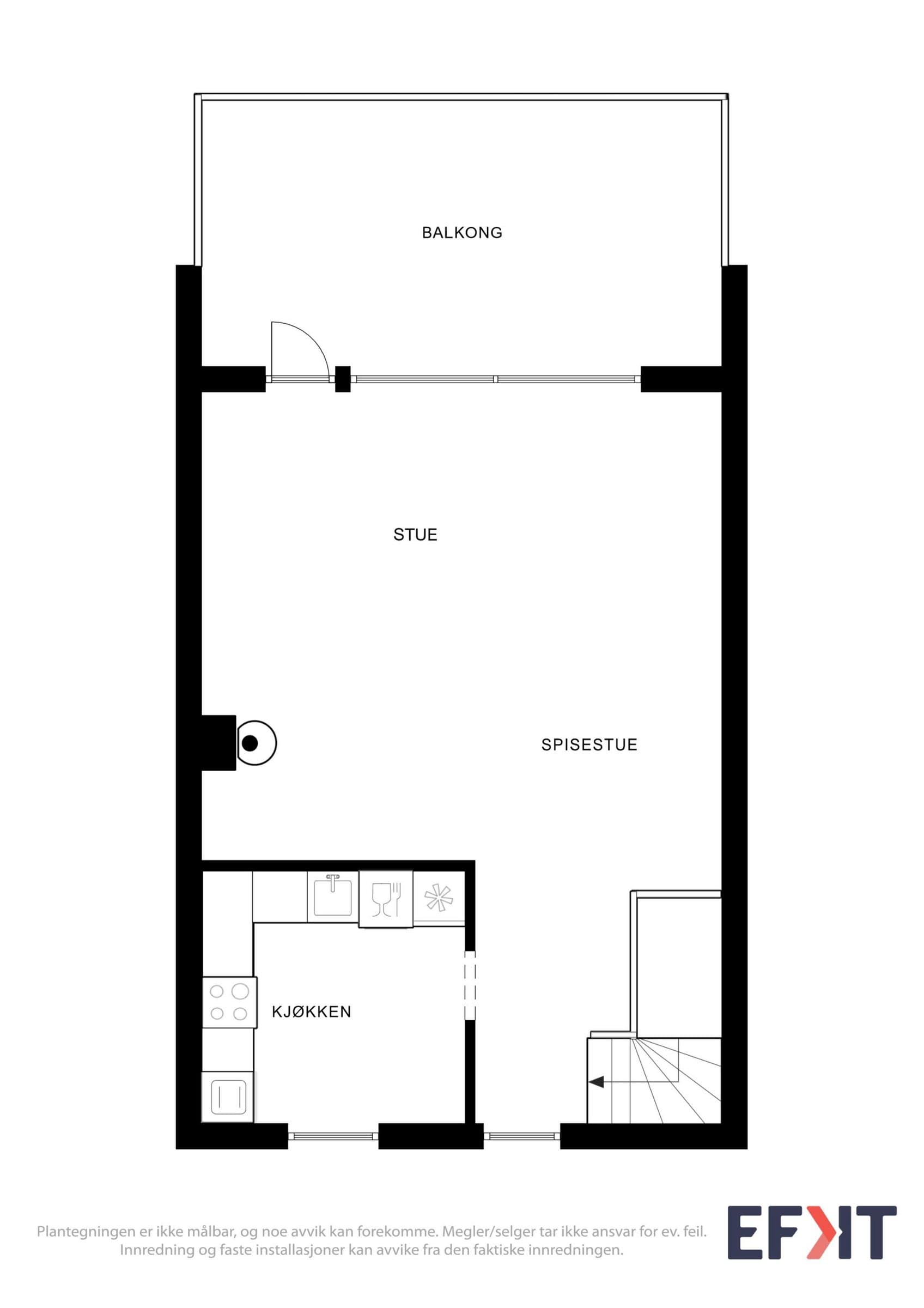
Om boligen
Velkommen til Amundrødveien 63. Leilighet i rekkehus over 3 plan. Leiligheten har gjennomgående god standard, 3 soverom og 2 bad, og har vestvendt stor solrik veranda i 2. etg., samt egen hage med markterrasse. Verandaen i 2.etg. byr på god utsikt og sen kveldssol sommertid. Boligen er oppgradert jevnlig senere år, kjeller renovert i 2015, ny veranda i 2019 kjøkken i 2021, baderomsinnredning på bad i 1 etg. i 2025. Hyggelig nabolag og kort vei til kollektivtransport og matbutikk. Parkeringsplasser med elbillademuligheter på borettslagets eiendom utenfor leiligheten.
Beliggenhet
Leiligheten ligger barnevennlig og attraktivt til i ende av blindvei på Amundrødfeltet mellom Helgeroa og Nevlunghavn i Larvik Kommune. I nærmiljøet finnes skole, barnehage, matbutikk (Søndersrødtunet), turområder og kollektivtransport.
Annet
Leiligheten ligger i rekke med 4 leiligheter. Inngjerdet egen hage med utgang fra rom i 1.etg. og adkomst utenifra. Utgang til vestvendt veranda fra stue i 2.etg. Terrassen er delvis overbygget, og har elektrisk markise. 1 etg. inneholder hovedinngang, entre, 3 soverom og bad. 2 etg. inneholder kjøkken og stue. Kjeller inneholder stor bod, gang, baderom/vaskerom og oppholdsrom med stort vindu som også fungerer som rømningsvei. Hele kjelleren har elektrisk gulv-varme og hele kjelleren er flisbelagt. Baderom i kjeller inneholder dusjkabinett, toalett, stor vask og opplegg for vaskemaskin mv. Det gjøres oppmerksom på at oppholdsrom i kjeller ikke er omsøkt og godkjent som hoveddel til boligen. Det er imidlertid mulig å søke om omgjøring fra tilleggsdel til hoveddel. Oppvarming: elektrisitet og vedovn i stue i 2. etg. Parkering på borettslagets eiendom ved siden av rekkehuset. Det er også lademulighet for elbil. Utvendig har borettslaget vedlikeholdsansvar. Strømforbruk i 2025: 15.216 kWh.
Andel fellesgjeld / formue
Andel fellesgjeld er kr. 109 659,- andel fellesformue er kr. 13.034,- pr. 2024 ifølge forretningsfører. Andel fellesgjeld og evt. fellesformue overtas av kjøper. Mnd. felleskostnader kr. 5.610,-. Disse inkluderer nedbetaling andel fellesgjeld, kommunale avgifter, strøm fellesareal, basis tv og bredbånd abonnement, utvendig boligforsikring, utvendig vedlikehold, forretningsførerhonorar og andre driftskostnader.
Boligbyggelaget
Det er borettslaget som eier eiendommen, mens andelseierne eier andeler i borettslaget. Andel i borettslag gir andelseier borett til og råderett over en nærmere bestemt enhet. Andelseierne har ikke personlig ansvar for borettslagets gjeld, men borettslagets løpende utgifter må dekkes av andelseierne gjennom månedlige fellesutgifter (husleie). Interessenter oppfordres til å sette seg inn i borettslagets vedtekter, husordensregler, regnskap, budsjett, årsberetning, vedtak fra årsmøte/generalforsamling m.m. SIKRINGSFOND Borettslaget er med i en sikringsordning mot tap av felleskostnader. Tilbyder er Skadeforsikringsselskapet Borettslagenes Sikringsordning AS. Borettslag som har tegnet forsikring kan si opp avtalen innen 1. desember med virkning fra kommende årsskifte. Etter borettslagslovens bestemmelser skal vedtak om oppsigelse av forsikringen gjøres av borettslagets generalforsamling. Forsikringsselskapet kan til enhver tid si opp en avtale med forsikringstaker dersom forsikrede ikke oppfyller de krav som er lagt til grunn ved første gangs forsikring. For øvrig gjelder forsikringsavtalelovens regler.
Adgang til Utleie
Det er begrenset adgang til å leie ut bolig i borettslag. Andelseier som bor i boligen selv, kan leie ut deler av boligen til andre uten godkjenning, jfm. borettslagssloven §5-4. Med styrets godkjenning og dersom nærmere angitte vilkår er oppfylt, kan boligen leies ut for opptil 3 år, jmf borettslagsloven §5-3 til 5-10. Hovedregel er at bare fysiske personer kan eie andel i borettslag, og ingen kan eie mer enn 1 andel, jmf. §4-1.
Forkjøpsrett for medlemmer / styregodkjennelse
Boligen lyses ut på forkjøpsrett i regi av borettslaget/boligbyggelaget etter at selger har akseptert bud på andelen, og fristen for avklaring er 8 -15 dager avhengig av salgstidspunkt. Konferer eventuelt med megler. Ansiennitetsregler: 1 - intern forkjøpsrett 2 - felles forkjøpsrett og medlemmer av LABO Borettslaget har vedtektsfestet forkjøpsrett for andelseiere og andre, jf. borettslagsloven § 4-11. Etter aksept av bud vil det bli avklart om forkjøpsretten benyttes. Borettslag har vedtektsfestet at ny andelseier skal godkjennes av styret, jf. borettslagsloven § 4-5. Ny andelseier skal godkjennes av styret i borettslaget. Dette kan ikke nektes uten saklig grunn. Dersom styret i borettslaget ikke godkjenner kjøper som ny andelseier, er kjøper likevel bundet av handelen og må eventuelt selger videre for egen regning. Godkjennelsen må foreligge før overtagelsen finner sted. Ved kjøp av bolig i tilknyttet borettslag må medlemskap tegnes hos Larvik Boligbyggelag umiddelbart, og senest ved kontraktskriving. Dette gjøres på www.labo.no, Dersom det skal være to(eller flere) eiere til boligen, må begge (alle) være medlem i Larvik Boligbyggelag. Medlemskapet er gyldig først når det er betalt. Ved avklaring av forkjøpsrett må samtlige kjøpere meldes Larvik Boligbyggelag innen fristen for annonsering. Gebyr for å benytte forkjøpsretten kr. 7.768,- inkl. mva. Betales av kjøper. Se www.labo.no for ytterligere informasjon om forkjøpsrett.
Matrikkelinformasjon
Kommunenr: 3909 Gårdsnr: 4092 Bruksnr: 154 Borettslag-navn: AMUNDRØD BORETTSLAG Borettslag-orgnummer: 953 366 185 Borettslag-andelsnummer: 6
Forretningsfører
Larvik Boligbyggelag 950 533 952 labo@labo.no 33 13 85 00
Tinglyste rettigheter og forpliktelser
Borettslaget har lovbestemt pant i den enkelte andel for ubetalte fellesutgifter og andre kostnader knyttet til forholdet mellom andelen og borettslaget jmf. borettslagsloven §5-20. Pantekravet kan ikke overstige 2G (G= folketrygdens grunnbeløp) Kommunen har legalpant i borettslagets eiendom som sikkerhet for betaling av kommunale avgifter. Legalpant er pant som følger av loven, og som ikke tinglyses. På borettslagets eiendom kan det være tinglyst kan det være tinglyst erklæringer som f.eks. rett til kommunen for å vedlikeholde rørsystemer for vann og kloak. Disse erklæringene kan ikke slettes. Det anbefales å se vedlagte dokumenter for ytterligere informasjon om eiendommen og borettslaget.
Tilstandsrapport
Se vedlagte tilstandsrapport av 3.11.2025. Det forutsettes at man setter seg godt inn i tilstandsrapporten og gjør seg kjent med innholdet i denne.
Øvrige kjøpsforhold
Boligkjøperforsikring Det kan kjøpes boligkjøperforsikring via HELP. Boligselgerforsikring Selger har tegnet boligselgerforsikring. Overtagelse Etter nærmere avtale. Angi ønsket overtagelse ved budgivning. Forsikring Frem til overtagelse vil eiendommen være forsikret av selger. Det er kjøpers ansvar å påse at eiendommen er fullverdiforsikret etter overtagelse. Budgiving Bud kan legges inn trygt og enkelt via annonsens "gi bud-knapp" som finnes i annonsen.
Lovanvendelse
Eiendommen selges etter reglene i avhendingsloven. Eiendommen skal overleveres kjøper i tråd med det som er avtalt. Det er derfor viktig at kjøper setter seg grundig inn i alle dokumenter. Kjøper anses kjent med forhold som er tydelig beskrevet og vedlagt i annonsen. Forhold som er beskrevet i salgsdokumentene kan ikke påberopes som mangler. Dette gjelder uavhengig av om kjøper har lest dokumentene. Alle interessenter oppfordres til å undersøke eiendommen nøye, gjerne sammen med fagkyndig før bud gis. Kjøper som velger å kjøpe usett kan ikke gjøre gjeldende som mangel noe han burde blitt kjent med ved å besiktige eiendommen. Hvis eiendommen ikke er i samsvar med det kjøperen må kunne forvente ut ifra alder, type og synlig tilstand, kan det være en mangel. Det samme gjelder hvis det er holdt tilbake eller gitt uriktige opplysninger om eiendommen. Dette gjelder likevel bare dersom man kan gå ut i fra at det virket inn på avtalen at opplysningen ikke ble gitt eller at feil opplysninger ikke ble rettet i tide på en tydelig måte. En bolig som har blitt brukt i en viss tid, har vanligvis blitt utsatt for slitasje og skader kan ha oppstått. Slik bruks-slitasje må kjøper regne med, og det kan avdekkes enkelte forhold etter overtakelse som nødvendiggjør utbedringer. Normal slitasje og skader som nødvendiggjør utbedring, er innenfor hva kjøper må forvente og vil ikke utgjøre en mangel. Ved beregning av et eventuelt prisavslag eller erstatning, må kjøper selv dekke tap/kostnader opp til et beløp på kr 10 000 (egenandel). Egenandel kommer først på tale når det er konstatert mangel ved eiendommen. Hvis kjøper ikke er forbruker, selges eiendommen "som den er", og selgers ansvar er da begrenset, jf. avhl. § 3-9, første ledd 2. pkt. Avhl. § 3-3 (2) fravikes, og hvorvidt et innendørs arealavvik karakteriseres som en mangel vurderes etter avhl. § 3-8. Informasjon om kjøpers undersøkelsesplikt, herunder oppfordringen om å undersøke eiendommen nøye, gjelder også for kjøpere som ikke anses som forbrukere.
Omkostninger
3 450 000 kr (Prisantydning) 109 659 kr (Andel av fellesgjeld) --- 3 559 659 kr (Pris inkl. fellesgjeld) Omkostninger 8 200 kr (HELP boligkjøperforsikring (valgfritt)) 545 kr (Tinglysing av pantedokument) 545 kr (Tinglysing av skjøte) --- 9 290 kr (Omkostninger totalt) --- 3 568 949 kr (Totalpris inkl. omkostninger) NB: Regnestykket forutsetter at det kun tinglyses én låneobligasjon og at eiendommen selges til prisantydning. Det tas forbehold om endringer i offentlige og private gebyrer. Selger er selv ansvarlig for følgende gebyr: 545 kr (Panterett med urådighet) 0 kr (Eierskiftegebyr)
Matrikkelinformasjon
Kommunenr: 3909
Gårdsnr: 4092
Bruksnr: 154
Trygg og profesjonell kjøpsprosess
- 1
Møt selger på visning
Du møter selger direkte på visning - den personen som vet hvor sola kommer først inn om morgenen og hvor de beste skiløypene ligger. Få all informasjon fra første hånd og still spørsmål direkte til den som kjenner boligen best.
- 2
Sikker budprosess med BankID
Legg inn bud enkelt og sikkert med BankID-verifisering. Du får SMS-varsler ved nye bud og kan følge budrunden i sanntid. Systemet er mer oversiktlig og lettere å bruke enn tradisjonelle meglersider.
- 3
Profesjonelt oppgjør og overtakelse
Oppgjørsselskap med konsesjon fra Finanstilsynet håndterer alle formelle aspekter. Kontrakt signeres digitalt med BankID, og overtakelsesprotokollen gjennomføres enkelt på telefon. Alt foregår i henhold til avhendingsloven.


Vurderer du å selge selv?
Her kan du sjekke hvordan Propr fungerer - helt uforpliktende.
Ring oss på 23 90 59 00 (9–16, ukedager), eller legg igjen ditt telefonnummer så ringer vi deg opp.
Aktuelt
Kundeservice
Chat: 9–19 på hverdager, 12–20 på søndager
Send e-post: post@propr.no
Ring oss: 23 90 59 00 (10–16, ukedager)