























































Sjarmerende og komfortabel brukshytte på Reime med koselig atmosfære. Hytten er 81 kvm boareal fordelt på en etasje, pluss hems til lek eller lagring. I hovedstuen er det høyt under taket og en flott ovn som gjør rommet til et godt sted å være. Hytta er barnevennlig og ligger i flott turterreng, vinter såvel som sommer og høst. Det er også gode bademuligheter i nærheten, i vann eller i kulp. Hytta kombinerer gammelt og nytt, der mye innvendig og utvendig er oppgradert de siste årene. Hytta har vært mye i bruk av tidligere eiere.
Sverrdalen er en fredelig og naturskjønn del av Reime, med kort vei til skiløyper og toppturer. Hytten ligger lunt og skjermet til, med god avstand til annen bebyggelse. Her kan man nyte frisk luft og flott utsikt uansett hvilken årstid det er. For skiinteresserte er Raundalen et av de beste områdene for toppturer i Voss, med blant annet Olsskavlen og Hondalsnuten like i nærheten. Sommerstid er det også fint å sykle turer i dalen, med lite trafikk og med utsikt til gårder og majestetisk natur. Reime har et aktivt og inkluderende lokalmiljø, med regelmessige tilstelninger rundt høytider. Påskerennet på Reime arrangeres like i nærheten, der barneskiløypen går rundt hytta vår (!) Ulikt mange andre hyttegrender er miljøet på Reime er ikke større enn at man etterhvert kjenner igjen naboer og hyttefolk, og hilser når man treffes.
Det er ingen forkjøpsrett på hytten. Det er mulig å avtale privat visning dersom tidpunktet for visning ikke passer.
Hytta har tre soverom. I rommene er det sengeplasser til 5 voksne og 3 barn (180 cm lengde).
Bygning, generelt Bygningen er oppført i varierende materialer fra normal byggeskikk i byggeårene. Den er senere modernisert og pusset opp i flere trinn. Praktisk planløsning og normalt gode kvaliteter Grunn og fundamenter Naturstein på antatt faste masser. Gulv på grunn Kult, morene og jord i krypkjeller. Betonggulv i deler av kjeller. Noe fukt på gulv i jordkjeller, forøvrig virker blindkjeller tørr. God utluftning. Yttervegger Dels bindingsverk, dels laftet plank. Utvendig kledning skiftet i 2021, tre av fire vegger. Takkonstruksjoner Sadeltak av sperr, delvis isolert. Taktekking og membraner Bølgeblikktak skiftet til tretak 2017, inkludert nye takrenner. Vinduer Vinduer på kjøkken, stue og to soverom ble skiftet til tolags Frekhaug vinduer med gjennomgående sprosser i 2018. Gulvsystemer Etasjeskiller av trebjelkelag. Isolert mot blindkjeller med min.ull. Gulvbord, belegg og fliser. Tregulv slipt i 2014. Kjøkkeninnredning Nytt IKEA-kjøkken satt opp i 2015. Påkostninger: Skiftet gulvbord og etterisolert i stue år 2000. Etterisolert under kjeller i 2015. Tilstand: Noe brukslitasje. Ikke-bærende vegger Innvendige vegger er platet og malt, dels panelt, dels synlig liggende plank. Himlinger inkl taklister Himlinger er dels panelt, dels platet og gipset. Trapper og ramper Tretrapp fra stue til hems Piper, plassbygde ildsteder Pipe med tilknyttet peis og vedovn (ny i 2018). Peis ikke lenger i bruk. Kamin i kjøkkenområde. Fungerer, men ikke i bruk.
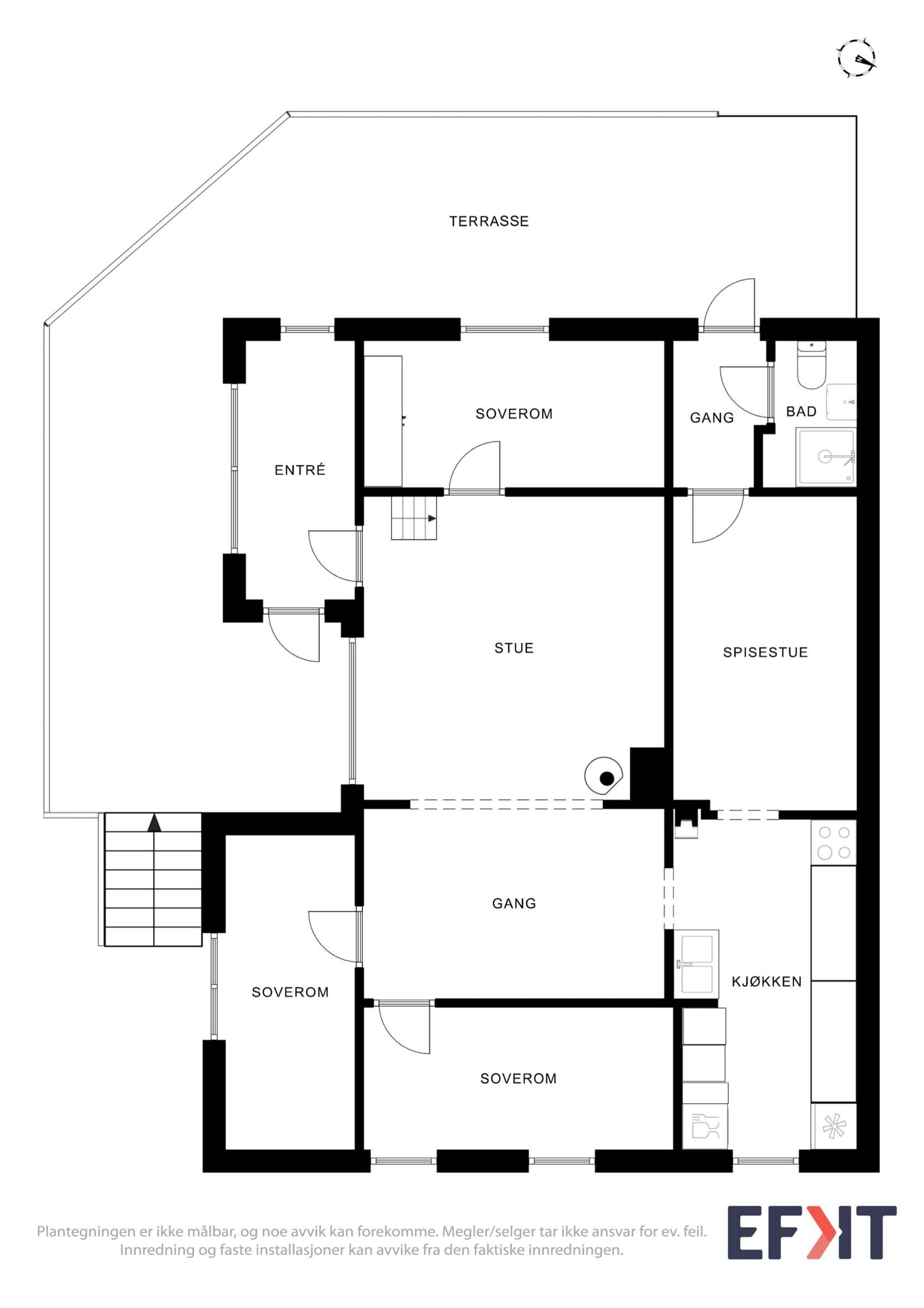
Innhold Hytten inneholder: spisestue, tv-stue, kjøkken, 3 soverom, vinterhage, wc/dusj, gang, hems og krypkjeller. Areal 1.etg: 81m2 Følgende rom inngår i primærareal: Spisestue, tv-stue, kjøkken, 3 soverom, wc, vinterhage og gang. Standard Vindfang med fliser på gulv. Panel på vegger og i tak. Bad med vannklosett. Fliser på gulv. Panel på vegger og i tak. Fliser og dusjvegger oppgradert i 2022. Spisestue med tregulv. Vegger med tømmer og tapet. Panel i tak. Hengende IKEA-skap. IKEA-Kjøkken med hvite fronter. Oppvaskmaskin. Slipt furugulv. Plater i tak. Vedovn. To soverom med tregulv og 1 med teppe. Panel på vegger. Gips og plater i tak. Stue med tregulv. Tømmer vegger og tapet. Panel og malte tak. Varmepumpe og vedovn. Vinterhage med utgang til stor inngjerdet terrasse. Stuen har panel på vegger og i tak. Tregulv. Liten hems til lekerom eller lagring. Hytten har totalt åtte sengeplasser. Markise på terrasse. Enkel kjeller til lagring av ski og utstyr. Utstyr Varmepumpe Markise Oppvarming Varmepumpe Vedovn Panelovner Tomten Arealet er basert på beregninger som selger har fått utført på bakgrunn av skyldskifte med dagboknr. 763. Tinglyst 21.08 1953. Kommunen har ikke grunnlag for å opplyse arealet på tomten. Parkering Sommerparkering for to biler på egen tomt. Vinterparkering for en bil på felles parkeringsplass. Selger har betalt ca. 1000,- kr årlig for parkering. Vei/vann/avløp Egen brønn. Tett septik, kommunal tømming. I følge selger skal eier av gnr. 141 bnr. 3 i Voss kommune ha rett til tinglyst veirett til sin eiendom. Offentlige/kommunale avgifter Tøming av septiktank ca. kr. 1000 Utleie Det er ikke kjent at det foreligger offentligrettslige regler som er til hinder for at hele eiendommen leies ut. Konsesjon Eiendommen er konsesjonsfri. Odel Det er ikke odel på eiendommen. Diverse Noe bruksslitasje på gulv. Eiendommens betegnelse Gnr. 141 Bnr. 26 og Gnr. 141 Bnr. 35 i Voss kommune
15 900 kr (HELP boligkjøperforsikring (valgfritt)) 47 250 kr (Dokumentavgift) 545 kr (Tinglysing av pantedokument) 545 kr (Tinglysing av skjøte) --- 64 240 kr (Omkostninger totalt) --- 1 954 240 kr (Totalpris inkl. omkostninger) NB: Regnestykket forutsetter at det kun tinglyses én låneobligasjon og at eiendommen selges til prisantydning. Det tas forbehold om endringer i offentlige og private gebyrer. Selger er selv ansvarlig for følgende gebyr: 545 kr (Panterett med urådighet)
Kommunenr: 4621
Gårdsnr: 141
Bruksnr: 26
Du møter selger direkte på visning - den personen som vet hvor sola kommer først inn om morgenen og hvor de beste skiløypene ligger. Få all informasjon fra første hånd og still spørsmål direkte til den som kjenner boligen best.
Legg inn bud enkelt og sikkert med BankID-verifisering. Du får SMS-varsler ved nye bud og kan følge budrunden i sanntid. Systemet er mer oversiktlig og lettere å bruke enn tradisjonelle meglersider.
Oppgjørsselskap med konsesjon fra Finanstilsynet håndterer alle formelle aspekter. Kontrakt signeres digitalt med BankID, og overtakelsesprotokollen gjennomføres enkelt på telefon. Alt foregår i henhold til avhendingsloven.


Her kan du sjekke hvordan Propr fungerer - helt uforpliktende.
Ring oss på 23 90 59 00 (9–16, ukedager), eller legg igjen ditt telefonnummer så ringer vi deg opp.
Chat: 9–19 på hverdager, 11–18 på søndager
Send e-post: post@propr.no
Ring oss: 23 90 59 00 (10–16, ukedager)