















































































Prisantydning
Størrelse (BRA)
Internt bruksareal (BRA-I)
Boligtype
Eieform
Antall etasjer
- Tomteareal
- 907 m²
- Byggeår
- 1951
- Kommunale avgifter
- 39 000 kr
- Tomtetype
- Festet tomt
- Festenummer (Fnr)
- 36
Romtyper
Soverom
Baderom
Stue
Bod
Kjøkken
Om boligen
Denne flotte tomannsboligen i Kirkenes byr på romslige 254 kvm fordelt på 2 boenheter over tre etasjer og kjeller. Boligen har en god standard med blant annet garasje og 2 innkjørsler, 3 balkong/terrasser, peis og en koselig hage som skaper en avslappende atmosfære. Med en sentral beliggenhet og barnevennlige omgivelser, passer denne boligen perfekt for familier som ønsker komfortabel og praktisk boform. Ta kontakt for å oppleve denne flotte boligen selv!
Beliggenhet
Boligen ligger i en stille gate, med umiddelbar nærhet til skole, barnehage og Kirkenes Sentrum
Annet
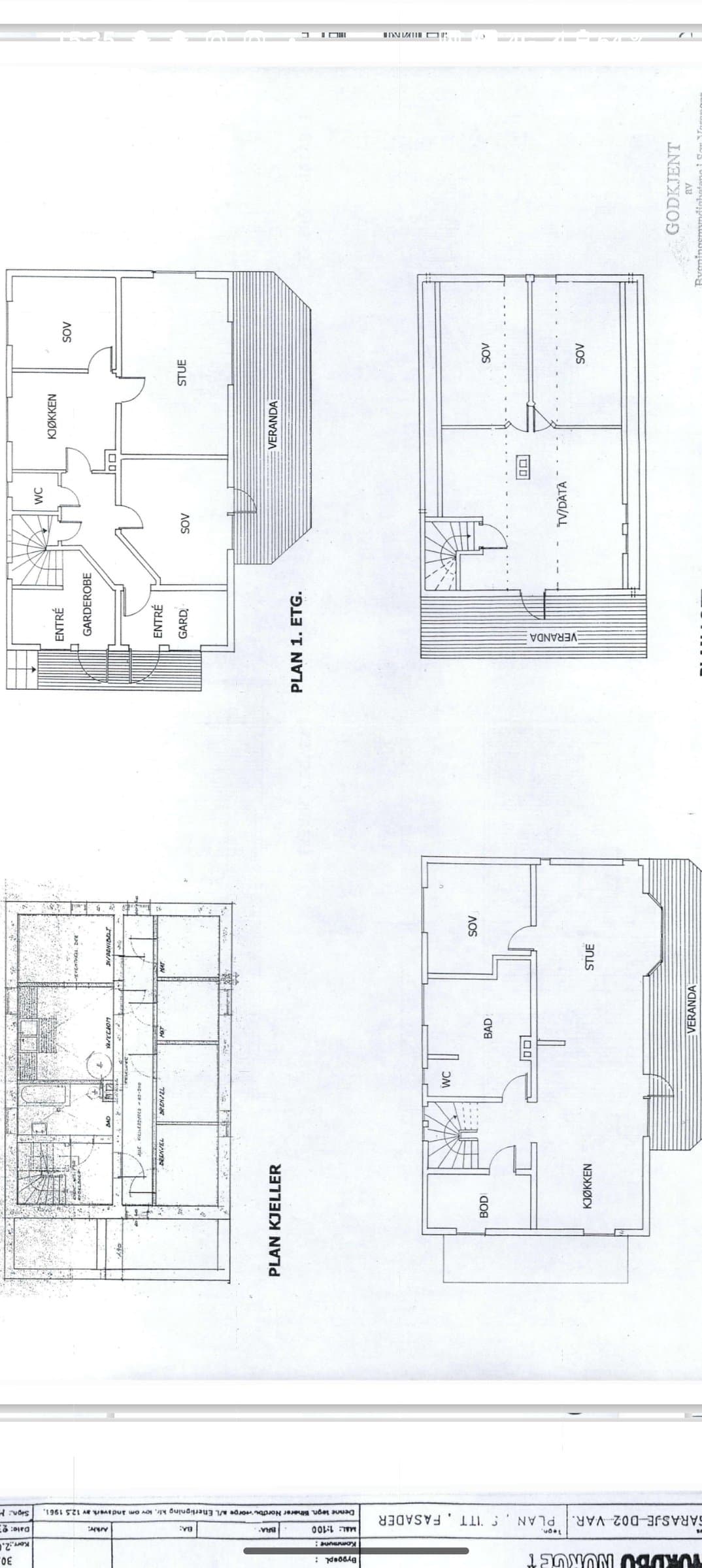
2 boenheter, med hovedleilighet i 2. Og 3. Etg og og sekundær leilighet i 1. Etasje, med bad og vaskerom i kjeller Hovedleilighet: 1. Etasje: stor yttergang, med flislagt gulv og skyvedørsgarderobe. 2. Etasje: åpen stue-kjøkkenløsning, hovedsoverom, stort bad med badstue og bod/vaskerom, stor veranda mot hagen. 3. Etasje: stor loftstue med utgang til balkong med utsikt mot sentrum, 2 soverom Sekundær leilighet 1. Etasje: yttergang med skyvedørsgarderobe, 2 soverom, toalettrom, kjøkken og stue. Kjeller: gang, bad og vaskerom. Kjeller: 4 boder, gangarealer, vaskerom, utvendig kjellerdør/trapp. Uisolert garasje på 34 m2 med elektrisk portåpner.
Utleie
Begge boenheter er utleid pr. idag, ny kjøper overtar leieboere etter nærmere avtale. Hovedleilighet utleid med 3 måneders oppsigelsestid, men med borett frem til 30.06, med mindre annet avtales.
Omkostninger
15 900 kr (HELP boligkjøperforsikring (valgfritt)) 110 000 kr (Dokumentavgift) 545 kr (Tinglysing av pantedokument) 545 kr (Tinglysing av skjøte) --- 126 990 kr (Omkostninger totalt) --- 4 526 990 kr (Totalpris inkl. omkostninger) NB: Regnestykket forutsetter at det kun tinglyses én låneobligasjon og at eiendommen selges til prisantydning. Det tas forbehold om endringer i offentlige og private gebyrer. Selger er selv ansvarlig for følgende gebyr: 545 kr (Panterett med urådighet)
Matrikkelinformasjon
Kommunenr: 5605
Gårdsnr: 27
Bruksnr: 3
Festenr: 36
Trygg og profesjonell kjøpsprosess
- 1
Møt selger på visning
Du møter selger direkte på visning - den personen som vet hvor sola kommer først inn om morgenen og hvor de beste skiløypene ligger. Få all informasjon fra første hånd og still spørsmål direkte til den som kjenner boligen best.
- 2
Sikker budprosess med BankID
Legg inn bud enkelt og sikkert med BankID-verifisering. Du får SMS-varsler ved nye bud og kan følge budrunden i sanntid. Systemet er mer oversiktlig og lettere å bruke enn tradisjonelle meglersider.
- 3
Profesjonelt oppgjør og overtakelse
Oppgjørsselskap med konsesjon fra Finanstilsynet håndterer alle formelle aspekter. Kontrakt signeres digitalt med BankID, og overtakelsesprotokollen gjennomføres enkelt på telefon. Alt foregår i henhold til avhendingsloven.


Vurderer du å selge selv?
Her kan du sjekke hvordan Propr fungerer - helt uforpliktende.
Ring oss på 23 90 59 00 (9–16, ukedager), eller legg igjen ditt telefonnummer så ringer vi deg opp.
Aktuelt
Kundeservice
Chat: 9–19 på hverdager, 12–20 på søndager
Send e-post: post@propr.no
Ring oss: 23 90 59 00 (10–16, ukedager)