



































Prisantydning
Størrelse (BRA)
Internt bruksareal (BRA-I)
Boligtype
Eieform
Antall etasjer
- Tomteareal
- 2 252 m²
- Byggeår
- 1952
- Kommunale avgifter
- 6 000 kr
- Tomtetype
- Eiet tomt
Romtyper
Soverom
Baderom
Stue
Bod
Kjøkken
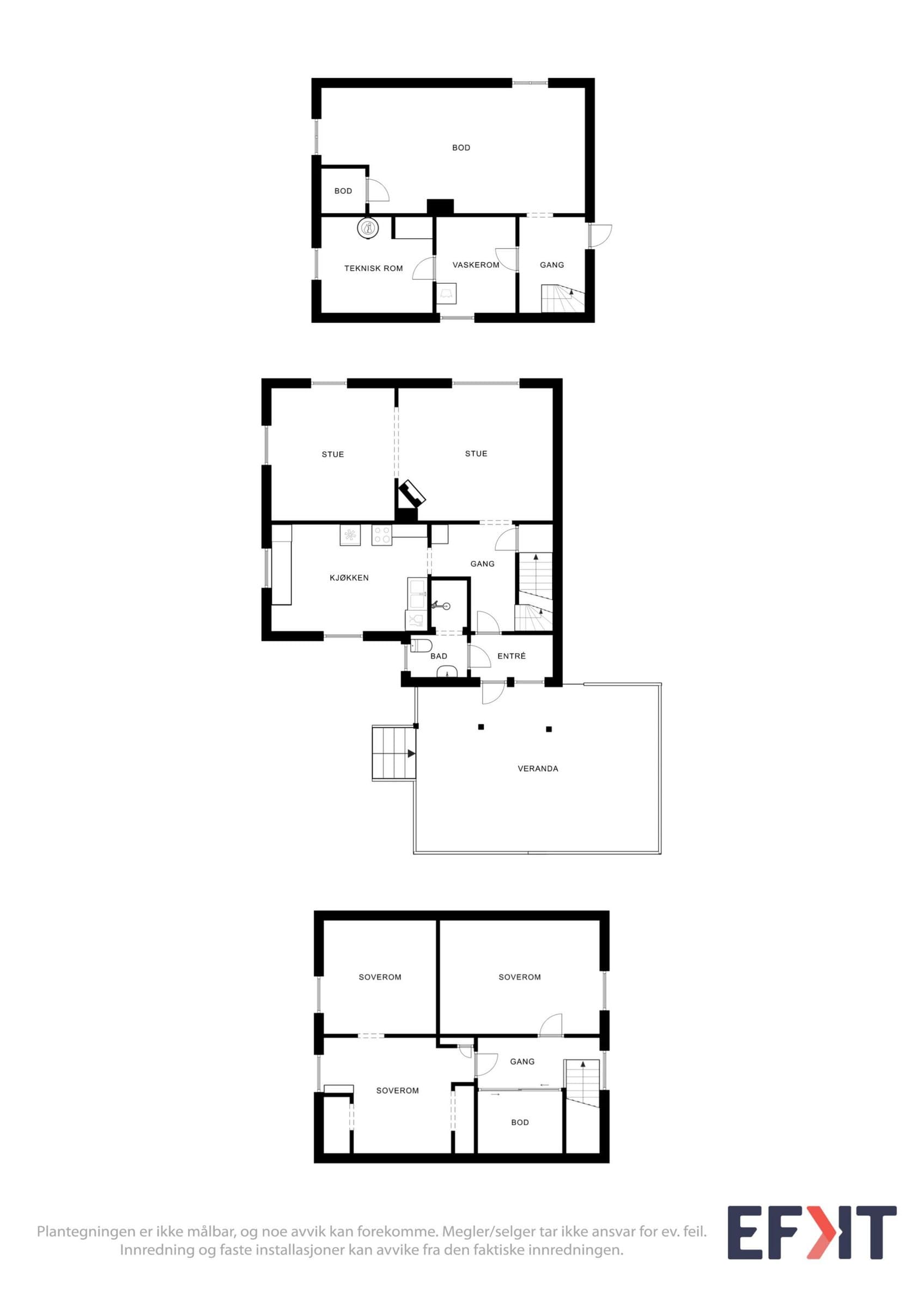
Om boligen
Innholdsrik enebolig over tre plan – flotte muligheter i rolige omgivelser Innholdsrik enebolig beliggende i landlige og rolige omgivelser i Åsnes kommune. Boligen går over tre plan og byr på romslige arealer, god planløsning og et solid utgangspunkt for videre tilpasning etter egne ønsker. Boligen inneholder kjeller, 1. etasje og 2. etasje. 1. etasje består av entré, stue, kjøkken og bad. I 2. etasje finner man gang og tre soverom. Kjelleren gir gode lagrings- og bruksarealer. Det er utført flere oppgraderinger i senere år, herunder etterisolering av yttervegger, grunnmur og loft, samt oppgradering av sikringsskap og installasjon av elbillader. Eiendommen fremstår som romslig og funksjonell, med fleksible løsninger som gir gode muligheter for å skape et personlig hjem. Eiendommen ligger på en tomt med landlig preg og fine utearealer rundt boligen. Her bor man tilbaketrukket og rolig, med god plass både inne og ute. Dette er en spennende eiendom med mange muligheter – et godt valg for deg som ønsker en romslig enebolig i rolige omgivelser.
Beliggenhet
Boligen ligger i et etablert område langs RV2 øst for Flisa i Åsnes kommune. Ca 2 km til Flisa sentrum hvor du finner skoler og de fleste fasiliteter som kjøpesenter, bank, apotek og hyggelige forretninger. For den treningsglade finner du også treningssenter og idrettsanlegg på Flisa. Støy fra veg må påregnes.
Annet
Visning Visninger gjennomføres fredag, lørdag og søndag. Tidspunkt avtales etter nærmere avtale.
Omkostninger
15 900 kr (HELP boligkjøperforsikring (valgfritt)) 31 250 kr (Dokumentavgift) 545 kr (Tinglysing av pantedokument) 545 kr (Tinglysing av skjøte) --- 48 240 kr (Omkostninger totalt) --- 1 298 240 kr (Totalpris inkl. omkostninger) NB: Regnestykket forutsetter at det kun tinglyses én låneobligasjon og at eiendommen selges til prisantydning. Det tas forbehold om endringer i offentlige og private gebyrer. Selger er selv ansvarlig for følgende gebyr: 545 kr (Panterett med urådighet)
Matrikkelinformasjon
Kommunenr: 3418
Gårdsnr: 92
Bruksnr: 14
Trygg og profesjonell kjøpsprosess
- 1
Møt selger på visning
Du møter selger direkte på visning - den personen som vet hvor sola kommer først inn om morgenen og hvor de beste skiløypene ligger. Få all informasjon fra første hånd og still spørsmål direkte til den som kjenner boligen best.
- 2
Sikker budprosess med BankID
Legg inn bud enkelt og sikkert med BankID-verifisering. Du får SMS-varsler ved nye bud og kan følge budrunden i sanntid. Systemet er mer oversiktlig og lettere å bruke enn tradisjonelle meglersider.
- 3
Profesjonelt oppgjør og overtakelse
Oppgjørsselskap med konsesjon fra Finanstilsynet håndterer alle formelle aspekter. Kontrakt signeres digitalt med BankID, og overtakelsesprotokollen gjennomføres enkelt på telefon. Alt foregår i henhold til avhendingsloven.


Vurderer du å selge selv?
Her kan du sjekke hvordan Propr fungerer - helt uforpliktende.
Ring oss på 23 90 59 00 (9–16, ukedager), eller legg igjen ditt telefonnummer så ringer vi deg opp.
Aktuelt
Kundeservice
Chat: 9–19 på hverdager, 12–20 på søndager
Send e-post: post@propr.no
Ring oss: 23 90 59 00 (10–16, ukedager)