







































Uranienborg
Stilren og arealeffektiv leilighet bak Slottet - lave fellesutgifter, strøm og oppvarming inkludert
Prisantydning
Størrelse (BRA)
Internt bruksareal (BRA-I)
Boligtype
Eieform
Etasje
Fellesutgifter
- Tomteareal
- 688 m²
- Byggeår
- 1919
- Fellesgjeld
- 20 197 kr
- Felleskost pr mnd
- 2 582 kr
- Kommunale avgifter
- 0 kr
- Tomtetype
- Eiet tomt
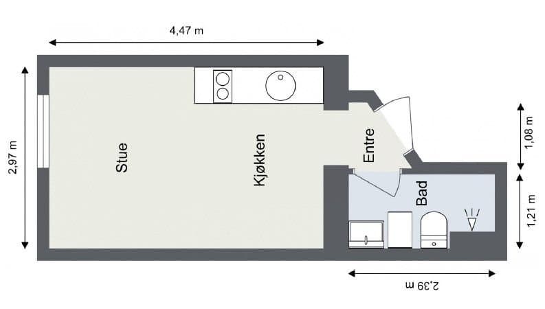
Romtyper
Baderom
Stue
Kjøkken
Om boligen
Pris kan diskuteres ved rask overtakelse. Ta gjerne kontakt for privat visning. Velkommen til en sjelden mulighet bak Slottet! Denne lys og skjermede 1-roms leiligheten ligger i 4. etasje med heis, og vender mot en rolig, lukket bakgård. Her får du en velholdt og innflytningsklar bolig med nytt bad fra 2022 og nytt vindu fra 2025. Felleskostnadene inkluderer varmtvann, strøm, oppvarming og internett, noe som gjør dette til et enkelt og bekymringsfritt hjem. Beliggenheten er rolig, men sentral – kort vei til Majorstuen, Nationaltheatret, Frogner og offentlig kommunikasjon. Perfekt som førstegangskjøp eller som utleieobjekt. Høydepunkter - Nytt bad 2022 - Nytt vindu 2025 - STRØM, OPPVARMING, VARMTVANN OG INTERNETT INKLUDERT I FELLESKOSTNADENE - Heis - Hyggelig lukket bakgård med felles sittegruppe - Rolig, men sentral beliggenhet - Kjellerbod på ca. 4 kvm - Takhøyde på rett under 2,9 meter Nøkkelinformasjon Boligtype: Selveierleilighet Adresse: Camilla Colletts vei 15, 0258 Oslo – vendt mot indre gård Gnr/Bnr/Snr: 213/52/28 (ideell andel 1/1) i Oslo kommune Selger: Nåværende eier Kjøpesum og omkostninger: - Pris: 3 550 000,- -Andel fellesgjeld: 20 197,- -Totalpris inkl. fellesgjeld: 3 570 197,- Omkostninger ved salg: -Dokumentavgift (2,5 %): 95 000,- -Takstrapport: 5 000,- -Eierskiftegebyr: 6 725 ,- -Flyttegebyr: 1 000,- -Pantattest kjøper: 260,- -Tinglyst pantedokument: 545,- -Tinglyst skjøte: 545,- -Grunnpakke Propr.no: ca. 25 000,- Merk: Beregningene forutsetter at det kun tinglyses et pantedokument, og at eiendommen selges til prisantydning. Offentlige avgifter kan endres. Andel fellesgjeld/formue overtas av kjøper.
Beliggenhet
Leiligheten ligger på en av Oslos mest attraktive adresser, på Uranienborg/Frogner, med kort vei til byens beste fasiliteter. Nærområdet byr på et variert utvalg av caféer, restauranter, butikker, barnehager og skoler, i tillegg til hotell og servicetilbud. For den som ønsker grøntområder og rekreasjon, ligger Uranienborgparken rett ved døren, og både Slottsparken og Frognerparken er kun en kort spasertur unna. De populære handlegatene Bogstadveien og Hegdehaugsveien ligger også i nærheten, med et bredt utvalg av butikker, spisesteder og caféer. Camilla Colletts vei strekker seg som en forlengelse av Skovveien fra Riddervolds plass, hvor du finner lokale klesbutikker, caféer, frisører og salonger. Veien og området preges av elegante bygårder med vakre fasader og små, velstelte forhager, og Camilla Colletts vei regnes som en av byens mest fasjonable adresser. Gode kollektivforbindelser gjør det enkelt å komme seg rundt i Oslo, med buss, trikk og T-bane like i nærheten. Kort vei til Nationaltheatret, Aker Brygge og Oslo sentrum (ca. 2 km) gjør beliggenheten både sentral og attraktiv.
Annet
Det er ingen forkjøpsrett på boligen. Om du ikke har mulighet til å komme på visning, holder jeg gjerne privatvisning. Ta kontakt, så finner vi en tid. Jeg har tegnet boligselgerforsikring, og anbefaler også kjøper å tegne boligkjøperforsikring. Vi mottar bud fra i morgen, og alle bud blir behandlet raskt og seriøst.
Omkostninger
3 550 000 kr (Prisantydning) 20 197 kr (Andel av fellesgjeld) --- 3 570 197 kr (Pris inkl. fellesgjeld) Omkostninger 10 900 kr (HELP boligkjøperforsikring (valgfritt)) 89 250 kr (Dokumentavgift) 545 kr (Tinglysing av pantedokument) 545 kr (Tinglysing av skjøte) --- 101 240 kr (Omkostninger totalt) --- 3 671 437 kr (Totalpris inkl. omkostninger) NB: Regnestykket forutsetter at det kun tinglyses én låneobligasjon og at eiendommen selges til prisantydning. Det tas forbehold om endringer i offentlige og private gebyrer. Selger er selv ansvarlig for følgende gebyr: 6 725 kr (Eierskiftegebyr) 545 kr (Panterett med urådighet)
Matrikkelinformasjon
Kommunenr: 301
Gårdsnr: 213
Bruksnr: 52
Seksjonsnr: 28
Trygg og profesjonell kjøpsprosess
- 1
Møt selger på visning
Du møter selger direkte på visning - den personen som vet hvor sola kommer først inn om morgenen og hvor de beste skiløypene ligger. Få all informasjon fra første hånd og still spørsmål direkte til den som kjenner boligen best.
- 2
Sikker budprosess med BankID
Legg inn bud enkelt og sikkert med BankID-verifisering. Du får SMS-varsler ved nye bud og kan følge budrunden i sanntid. Systemet er mer oversiktlig og lettere å bruke enn tradisjonelle meglersider.
- 3
Profesjonelt oppgjør og overtakelse
Oppgjørsselskap med konsesjon fra Finanstilsynet håndterer alle formelle aspekter. Kontrakt signeres digitalt med BankID, og overtakelsesprotokollen gjennomføres enkelt på telefon. Alt foregår i henhold til avhendingsloven.


Vurderer du å selge selv?
Her kan du sjekke hvordan Propr fungerer - helt uforpliktende.
Ring oss på 23 90 59 00 (9–16, ukedager), eller legg igjen ditt telefonnummer så ringer vi deg opp.
Aktuelt
Kundeservice
Chat: 9–19 på hverdager, 11–18 på søndager
Send e-post: post@propr.no
Ring oss: 23 90 59 00 (10–16, ukedager)