















































































RØLDAL / Håra
Pen og klassisk selveierleilighet i barnevennlig område, med heis fra garasje. God planløsning
Prisantydning
Størrelse (BRA)
Internt bruksareal (BRA-I)
Boligtype
Eieform
Etasje
Fellesutgifter
- Tomteareal
- 4 156 m²
- Byggeår
- 2010
- Felleskost pr mnd
- 1 056 kr
- Kommunale avgifter
- 669 kr
- Tomtetype
- Eiet tomt
Romtyper
Baderom
Bod
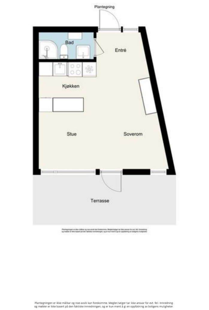
Om boligen
Leiligheten har gjennomgående god standard med parkett og helfliset bad. Leiligheten fremstår lys og fin med vegger malt i moderne farger. Rolig og fin beliggenhet bort fra hovedveien, med flott utsikt mot Røldalsvatnet. Flott balkong perfekt til å nyte morgensolen. I slutten av 2019 ble leiligheten oppusset. Vegger og lister ble malt i moderne og tidsriktige farger. Gulvet ble slipt og lakket Leiligheten selges møblert og med det utstyret som befinner seg der. Alle møblene ble i følge selger kjøpt nye i 2019. Pynteting og personlige eiendeler vil bli fjernet før overtagelse. Man kommer inn i gangen med fliser og varme i gulvet. Stor skyvedørsgarderobe som gir godt med oppbevaringsplass. Flott kjøkken med komfyr, koketopp, kjøleskap og oppvaskmaskin. Praktisk kjøkkenøy som gir ekstra oppbevarings- og benkeplass. Det er plassert en vaskemaskin i kjøkkenøyen, som selger opplyser at det ikke er godkjenning for. Kjøkkenøyen fungerer veldig bra som en naturlig romdeler. Lyst og fint helfliset bad med varme i gulvet. Badet inneholder veggmontert toalett, vask, speil og dusjløsning med garnityr.
Annet
Matrikkel Gnr. 30, bnr. 184, snr. 14 Leiligheten er en del av Hordatun Hotell og tilbyr på den måten det lille ekstra. Det er resepsjon i 1. etasje som også har en hyggelig lobbybar med peis og restaurant. I sokkeletasjen finner man baren, med komfortable sittegrupper. Om vinteren er det live musikk i baren, afterski, quiz og mye gøy. Parkeringsplass og bod i felles parkeringsanlegg. Hvit skinn sovesofa ligger på FINN-kode: 436772546. Maleriet som henger over sengen pr. dd er limt fast og vil ikke bli fjernet. Tilstandsrapport vil bli utført i desember 2025.
Beliggenhet
Leiligheten ligger i fine omgivelser, og med flott utsikt over Røldalsvatnet. Rolig beliggenhet, bort fra hovedveien. Røldal skisenter er ca 4 km fra leiligheten med flotte heiser/trekk, inklusive eget barnetrekk. Korlevoll skistadion er ca 12 km fra boligen, med bra løypenett, inklusive lysløype. Det er også et godt utgangspunkt for lengre skiturer innover fjellet. Dyrskarrennet blir arrangert hvert år. Langrennsløyper også på Haukeli (ca 20 km fra hytta) og lokalt i Røldalsområdet. Røldalsterassen med restaurant ligger også ca 3 km fra boligen, her finner du også ladesasjon for Tesla. Det er ca 3 km til Røldal sentrum med blant annet dagligvarebutikk og bensinstasjon. Det er mye fine turterreng i sommer- og høstsesong. Boligen har sentral beliggenhet for turområder både på Seljestad, i Saudafjellet, mot Haukeli og i nærområdet (f.eks. Blåbergdalen, Stordalsnibba og Røldalsfjellet). Skal du til Trolltunga er det ca 45 min. frå leiligheten til parkering i Skjeggedal.
Visning
Visning 14.desember 13:00-15:00 ellers kun privat visning. Du/dere må kontakte en av eierne for å avtale privat visning. Kontakt Svein Hestetun 906 83 379 eller Marit Espeland 938 56 306. Overtakelse etter nærmere avtale mellom partene.
Området - Adresse:
Leilighets nr. A116, Håra 20 Postnummer 5760 Poststed RØLDAL. Kommune Ullensvang Kommunenummer 4618. Ta av til Hordatun hotell noen kilometer etter skisenteret og Røldalsterrassen på E134. Søk "Kart, veibeskrivelse og kjørerute - map/maps i 1881". Ved å trykke på kartet får du enkelt tilgang til en reiserute fra din start destinasjon til boligen. Offentlig kommunikasjon: Boligen ligger nær offentlig kommunikasjon med bussforbindelse. Det går buss fra hotellet til Skitrekket - Se bussruter
Byggemåte
Lavblokk oppført over fire etasjer hovedsakelig i betong og tre.
Bebyggelsen
Bebyggelsen i nærområdet består av bolighus og hytter, samt leilighetskompleks.
Adgang til utleie
Leiligheten har pr. i dag ingen fast avtale om utleie via hotellets resepsjon. (www.hordatun.no) Totalsum avhengig av utleie, eier får 70% av hotellets leieinntekter. En kan fritt benytte leiligheten selv, ringer opp for å reservere den, dersom man inngår avtale. Da betales kun en liten sum for rent sengetøy og leiligheten fremstår som ett hotellrom. Mulighet for å benytte hotellets fasiliteter som bar og restaurant som drives av Hordatun Drift AS www.hordatun.no.
Parkering og Bod
Parkeringsplass i garasjeanlegg. Felles gjesteparkering. Parkeringsplass og bod ca. 5-6kvm i felles parkeringsanlegg. Lade mulighet: kan bestilles til garasjen ettersom strøm er fremlagt, men ny eier knytter seg selv til parkeringsplass for egen leilighet i Håra 20, om ønskelig.
Generelt - Avhendingslova
Lov om avhending av fast eigedom (avhendingslova/avhl.) av 3. juli 1992 regulerer kjøper og selgers rettigheter og plikter ved overdragelse av fast eiendom og andeler i borettslag. I henhold til avhl. § 3-4 skal eiendommen, når annet ikke er avtalt, overdras med innredninger og utstyr som etter lov, forskrift eller annet offentlig vedtak skal følge med. Det samme gjelder varig innredning og utstyr som enten er fastmontert eller er særskilt tilpasset bygningen, jf. avhl. § 3-5. Loven inneholder ingen detaljert oversikt over hva som omfattes av «innredning og utstyr», og over hva som skal regnes som «fastmontert eller særskilt tilpasset». Partene kan fritt avtale hva som skal følge med eiendommen ved salg. Bransjens liste over løsøre og tilbehør som skal følge med eiendommen, er en del av avtalen mellom kjøper og selger dersom ikke annet er opplyst i salgsoppgaven, kjøper har tatt forbehold i bud eller avtale på annen måte er inngått. Der intet annet er avtalt, vil løsøre og tilbehør medfølge slik dette fremkommer av avhl. § 3-4 og § 3-5 og denne oversikt. Loven inneholder ingen detaljert oversikt over hva som omfattes av «innredning og utstyr», og over hva som skal regnes som «fastmontert eller særskilt tilpasset». En del møbler og inventar kan følge med, men kun etter avtale.
Bestemmelser tiltak mot hvitvasking / kjøpers innbetaling
I henhold til lov om hvitvasking og terrorfinansiering Vi som selger velger å gjennomføre kontrolltiltak ovenfor kjøper. Dette innebærer at kjøper må bekrefte sin identitet, på bakgrunn av fremvist gyldig legitimasjon. Dersom ingen gyldig legitimasjon kan ikke vi gjennomføre salg og transaksjon. Kjøper oppfordres til å innbetale kjøpesummen som ikke kommer fra låneinstitusjon, i en samlet innbetaling fra egen konto i norsk bank.
Omkostninger
10 900 kr (HELP boligkjøperforsikring (valgfritt)) 37 500 kr (Dokumentavgift) 545 kr (Tinglysing av pantedokument) 545 kr (Tinglysing av skjøte) --- 49 490 kr (Omkostninger totalt) --- 1 549 490 kr (Totalpris inkl. omkostninger) NB: Regnestykket forutsetter at det kun tinglyses én låneobligasjon og at eiendommen selges til prisantydning. Det tas forbehold om endringer i offentlige og private gebyrer. Selger er selv ansvarlig for følgende gebyr: 6 570 kr (Eierskiftegebyr) 545 kr (Panterett med urådighet)
Matrikkelinformasjon
Kommunenr: 4618
Gårdsnr: 30
Bruksnr: 184
Seksjonsnr: 14
Trygg og profesjonell kjøpsprosess
- 1
Møt selger på visning
Du møter selger direkte på visning - den personen som vet hvor sola kommer først inn om morgenen og hvor de beste skiløypene ligger. Få all informasjon fra første hånd og still spørsmål direkte til den som kjenner boligen best.
- 2
Sikker budprosess med BankID
Legg inn bud enkelt og sikkert med BankID-verifisering. Du får SMS-varsler ved nye bud og kan følge budrunden i sanntid. Systemet er mer oversiktlig og lettere å bruke enn tradisjonelle meglersider.
- 3
Profesjonelt oppgjør og overtakelse
Oppgjørsselskap med konsesjon fra Finanstilsynet håndterer alle formelle aspekter. Kontrakt signeres digitalt med BankID, og overtakelsesprotokollen gjennomføres enkelt på telefon. Alt foregår i henhold til avhendingsloven.


Vurderer du å selge selv?
Her kan du sjekke hvordan Propr fungerer - helt uforpliktende.
Ring oss på 23 90 59 00 (9–16, ukedager), eller legg igjen ditt telefonnummer så ringer vi deg opp.
Aktuelt
Kundeservice
Chat: 9–19 på hverdager, 12–20 på søndager
Send e-post: post@propr.no
Ring oss: 23 90 59 00 (10–16, ukedager)