















































































RÅHOLT / Eidsvoll
Tiltalende & velholdt familiebolig m. ildsted og garasje | Modernisert |Attraktivt boområde!
Prisantydning
Størrelse (BRA)
Internt bruksareal (BRA-I)
Boligtype
Eieform
Antall etasjer
- Tomteareal
- 1 271 m²
- Byggeår
- 1954
- Kommunale avgifter
- 18 085 kr
- Tomtetype
- Eiet tomt
Romtyper
Soverom
Baderom
Stue
Bod
Kjøkken
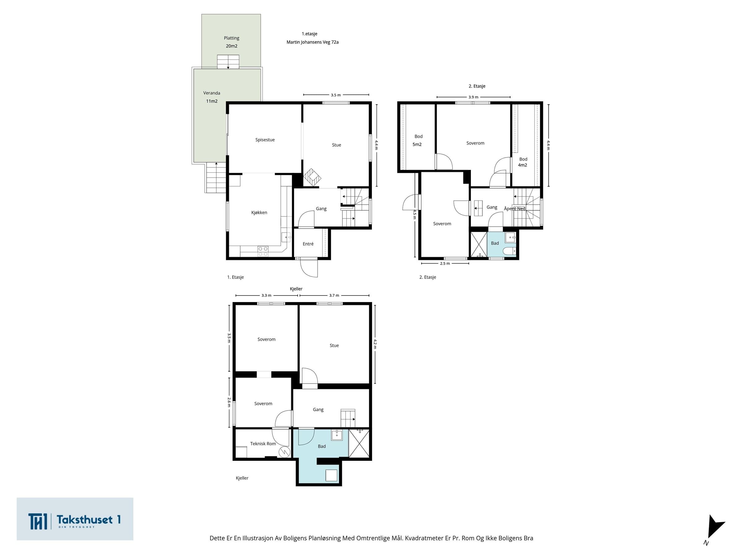
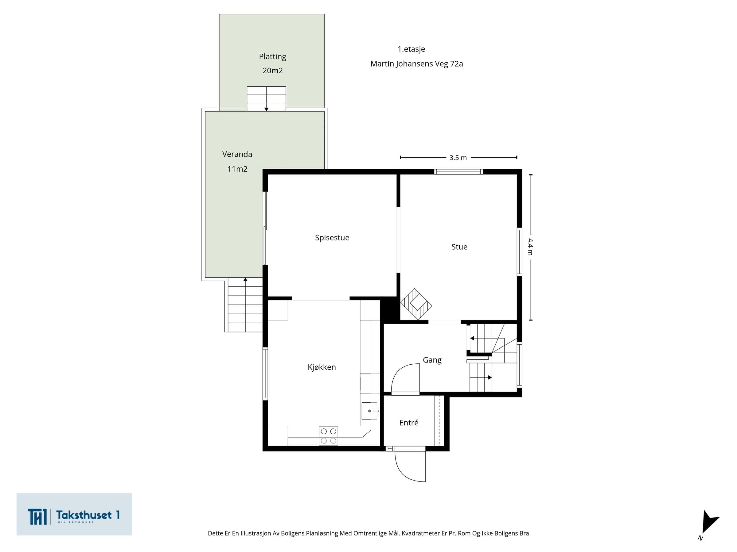
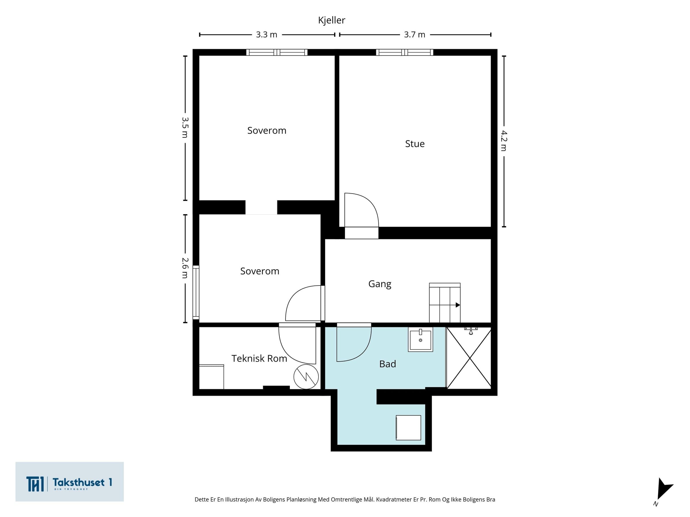
Om boligen
Velkommen til Martin Johansens vei 72A! Moderne og innholdsrik halvpart av tomannsbolig med solrik hage – attraktiv beliggenhet på Råholt Det er med stor glede vi presenterer Martin Johansens vei 72A – en smakfullt modernisert og svært tiltalende vertikaldelt tomannsbolig beliggende i et rolig, etablert og barnevennlig nabolag på populære Råholt. Her bor du i grønne omgivelser med kort vei til både natur og kollektivtransport, kun ca. 2,7 km fra Eidsvoll Verk stasjon – perfekt for pendlere med ca. 30 minutter til Oslo med tog. Boligen er opprinnelig fra 1954, men fremstår i dag som en oppgradert og moderne bolig med flere vesentlige oppgraderinger – blant annet et stilrent IKEA-kjøkken fra 2020, nyere bad, samt oppussede overflater som gir en gjennomgående lys og delikat atmosfære. Hovedpunkter: - Romslig og lys stue med utgang til solrik terrasse på ca. 11 kvm - Åpen og moderne kjøkkenløsning fra IKEA - To pene og oppgraderte baderom - 3 soverom med god størrelse - Fullt innredet og anvendelig kjelleretasje på ca. 68 kvm BRA (2020) – Perfekt som ekstra oppholdsrom, hjemmekontor eller hobbyrom Stor, seksjonert hage med gode solforhold – ideell for både lek og sosiale sammenkomster Med kort vei til skole, barnehager, dagligvare og flotte turområder, samt enkel adkomst til buss og tog, er dette en bolig som passer perfekt for både unge par, småbarnsfamilier og pendlere. Dette er en sjelden mulighet til å sikre seg en moderne, innflyttingsklar bolig i et populært og voksende boligområde – velkommen hjem til en visning!
Beliggenhet
Velkommen til et familievennlig boligområde på Råholt Alt du trenger – rett utenfor døren og i nærområde! Drømmer du om å bo i et trygt, moderne og sentralt boligområde med alle fasiliteter i umiddelbar nærhet? Da bør du ta en nærmere titt på denne eiendommen – perfekt beliggende på Råholt, i Eidsvoll kommune. Her bor du i gangavstand til alt – skoler, barnehager, kjøpesenter, togstasjon og flotte rekreasjonsområder. Beliggenheten er rett og slett suveren: Få minutters avstand til Amfi Eidsvoll – et moderne kjøpesenter med over 50 butikker, vinmonopol, serveringssteder, treningssenter (Trento) og helsesenter. Kun få minutters avstand til Eidsvoll verk stasjon med hyppige togavganger – 5 min til Gardermoen og kun 30 min til Oslo S! Kort vei til dagligvarebutikker som Kiwi, Rema 1000, Spar og Coop Extra og m.m. Gangavstand til Råholt skole, barnehager og fritidstilbud Dette er et område som kombinerer det urbane med det naturnære. Her finner du idylliske turområder som Skaubanen, Hurdalssjøen og lysløyper rett i nærheten – perfekt for både løping, sykling, ski og rulleskitrening. For de badeglade finnes det både strand og småbåthavn ved Hurdalssjøen, samt Råholt bad – et moderne svømmeanlegg med både innendørs og utendørs boblebad, stupetårn og klorfritt vann. Området byr også på: Idrettsanlegg, treningssentre, fotballbaner og alpinmuligheter Variert fritidstilbud for både store og små. Enkel adkomst med bil til Eidsvoll Verk (ca. 3 min), Gardermoen (ca. 16 min) og Oslo (ca. 45 min) Dette er et ideelt sted å etablere seg – enten du er en aktiv familie, pendler eller førstegangskjøper som ønsker nærhet til både by og natur. Med alle servicetilbud og transportmuligheter rett i nærheten, får du her en praktisk og komfortabel hverdag. Adkomst: Ved å trykke på kartet i annonsen får du enkelt tilgang til en spesifisert reiserute fra ønsket startdestinasjon til den aktuelle boligen.
Kommunaleavgifter / gebyrer:
Kommunale gebyrer er fakturert til kr. 18 085,- i 2024. Opplysninger er hentet den 08.10.2025 via infoLand/Eidsvoll kommune fordelt på følgende; Avløp 4 194,10 kr Eiendomsskatt 5 210,00 kr Feiing 525,68 kr Renovasjon 4 603,00 kr Vann 3 551,95 kr Sum= 18 084,73 kr Kommunale gebyrer er en kombinasjon av forskudd, abonnement og enkeltgebyrer fakturert etter levert tjeneste. Det kan forekomme variasjoner i avgiftene som følge av forbruk og eventuelle endringer i gebyrer/avgifter. Se vedlagt pdf. Eiendomsskatt: Det er eiendomsskatt på boliger, fritidsboliger og eiendommer i kommunen. Eiendomsskatten er beregnet til kr. 5 210,- i 2024. og inkluderer i kommunale avgifter. Faktura for eiendomsskatt sendes den som er registrert eier av eiendommen på faktureringstidspunktet. Ved eierskifte må kjøper og selger gjøre opp betalingen av eiendomsskatten seg i mellom.
Formuesverdi
Ifølge Skatteetaten var formuesverdien for inntektsåret 2024: Som primærbolig er verdien beregnet til kr. 1 017 956,- som forutsetter at boligen brukes som fast bopæl / Primær bolig. ifølge Skatteetatens beregning. Som sekundærbolig kr. 4 071 823,- ved annen bruk / sekundær bolig av eiendommen ifølge Skatteetatens beregning. Formuesverdien justeres normalt årlig, og det henvises til Skatteetatens websider dersom ytterligere informasjon er ønskelig.
Tilstandsrapport og byggemåte:
Byggemåte/teknisk: Vertikaldelt tomannsbolig med saltak tekket med takstein. Yttervegger i reisverk utvendig kledd med panel og teglstein. Etasjeskillere i tre. Grunnmur i antatt betong. Bygget erfundamentert med støpt såle til antatt faste masser. Det er ukjent byggegrunn, men antatt plasstøpt betong med pusslag på innsiden. Grunnmur og fundamenter Støpt betongfundament. Støpt betong grunnmur. Fuktsikring og drenering: Drenssystem fra byggeår og ny drenering er utført i 2020. Terrengforhold: Flatt terreng rundt huset. (TG2) Vurdering av avvik: • Noe svakere fall eller flatt terreng inn mot grunnmur og dermed muligheter for vannansamlinger. Konsekvens/tiltak: Det bør foretas terrengjusteringer. Informasjon om byggemåte er hentet fra vedlagt tilstandsrapport. Oppsummering av avvik med tilstandsgrad 2 (TG2) og tilstandsgrad 3 (TG3) fra vedlagt tilstandsrapport:
Annet
- Det er ingen forkjøpsrett på boligen. Om du ikke har mulighet til å komme på visning, holder jeg gjerne privatvisning. Ta kontakt, så finner vi en tid. - Plantegningene er på vei fra takstmannen og blir publisert snarest mulig. - Det er tegnet boligselgerforsikring. Vi anbefaler interessenter boligkjøperforsikring.
Omkostninger
15 900 kr (HELP boligkjøperforsikring (valgfritt)) 95 000 kr (Dokumentavgift) 545 kr (Tinglysing av pantedokument) 545 kr (Tinglysing av skjøte) --- 111 990 kr (Omkostninger totalt) --- 3 911 990 kr (Totalpris inkl. omkostninger) NB: Regnestykket forutsetter at det kun tinglyses én låneobligasjon og at eiendommen selges til prisantydning. Det tas forbehold om endringer i offentlige og private gebyrer. Selger er selv ansvarlig for følgende gebyr: 545 kr (Panterett med urådighet)
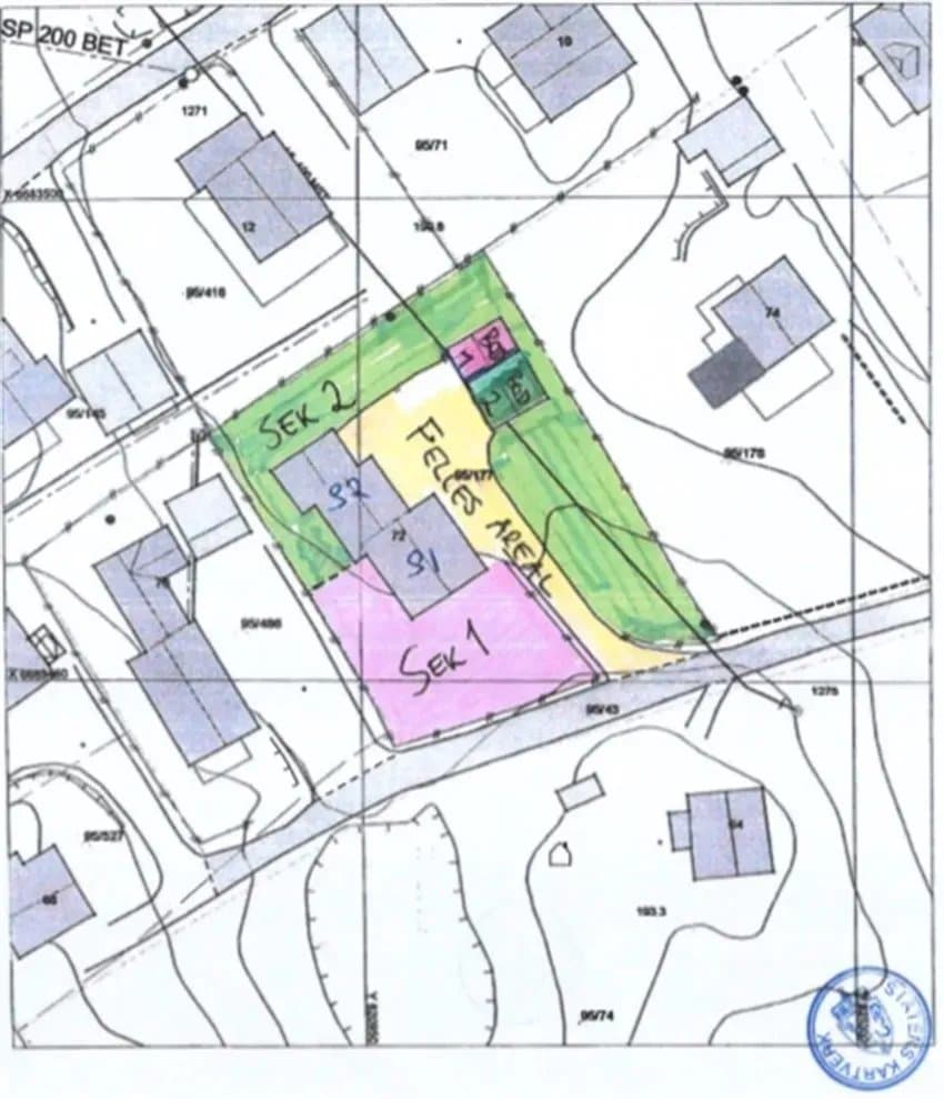
Matrikkelinformasjon
Kommunenr: 3240
Gårdsnr: 95
Bruksnr: 177
Seksjonsnr: 1
Trygg og profesjonell kjøpsprosess
- 1
Møt selger på visning
Du møter selger direkte på visning - den personen som vet hvor sola kommer først inn om morgenen og hvor de beste skiløypene ligger. Få all informasjon fra første hånd og still spørsmål direkte til den som kjenner boligen best.
- 2
Sikker budprosess med BankID
Legg inn bud enkelt og sikkert med BankID-verifisering. Du får SMS-varsler ved nye bud og kan følge budrunden i sanntid. Systemet er mer oversiktlig og lettere å bruke enn tradisjonelle meglersider.
- 3
Profesjonelt oppgjør og overtakelse
Oppgjørsselskap med konsesjon fra Finanstilsynet håndterer alle formelle aspekter. Kontrakt signeres digitalt med BankID, og overtakelsesprotokollen gjennomføres enkelt på telefon. Alt foregår i henhold til avhendingsloven.


Vurderer du å selge selv?
Her kan du sjekke hvordan Propr fungerer - helt uforpliktende.
Ring oss på 23 90 59 00 (9–16, ukedager), eller legg igjen ditt telefonnummer så ringer vi deg opp.
Aktuelt
Kundeservice
Chat: 9–19 på hverdager, 12–20 på søndager
Send e-post: post@propr.no
Ring oss: 23 90 59 00 (10–16, ukedager)