





























































OS
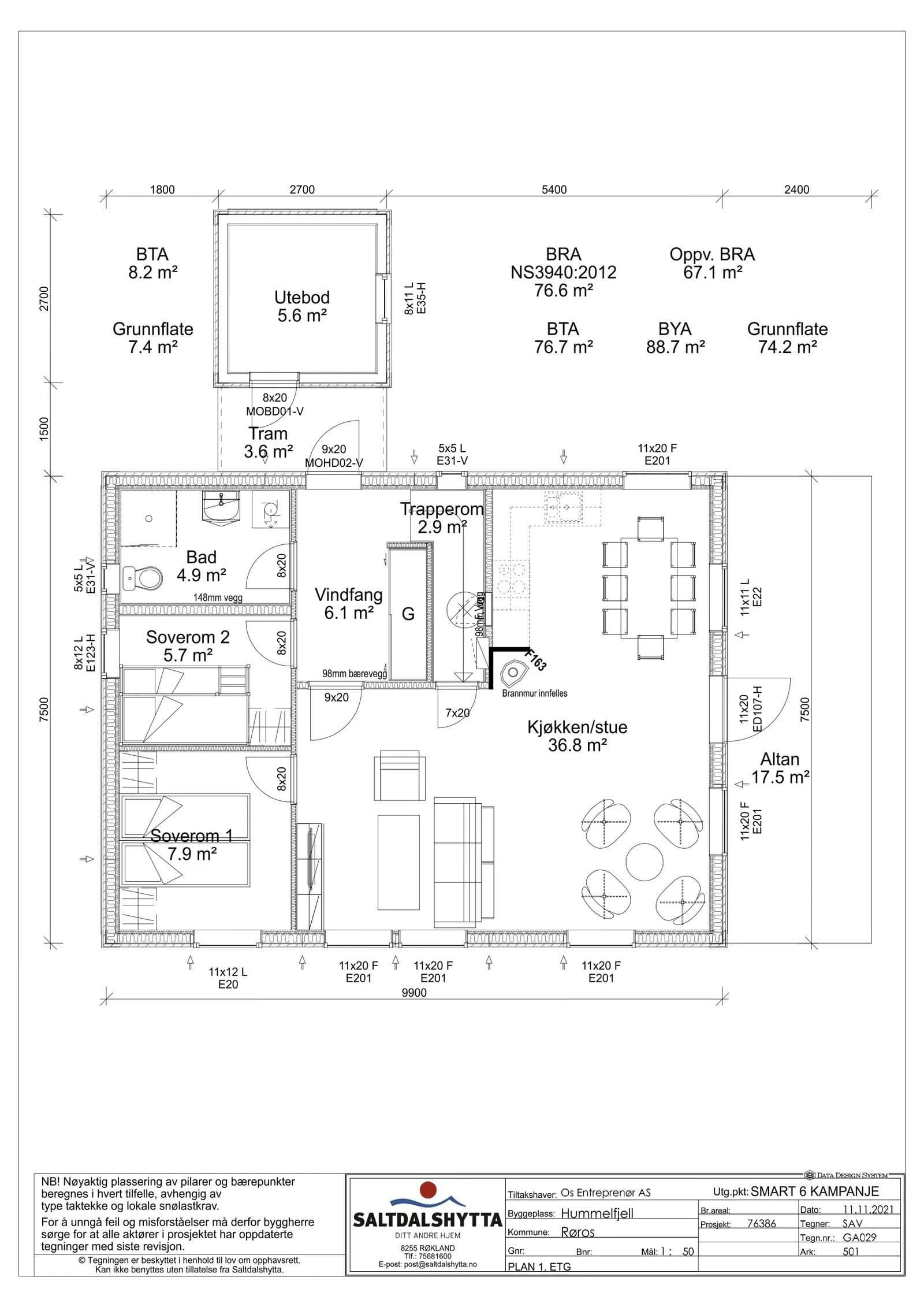
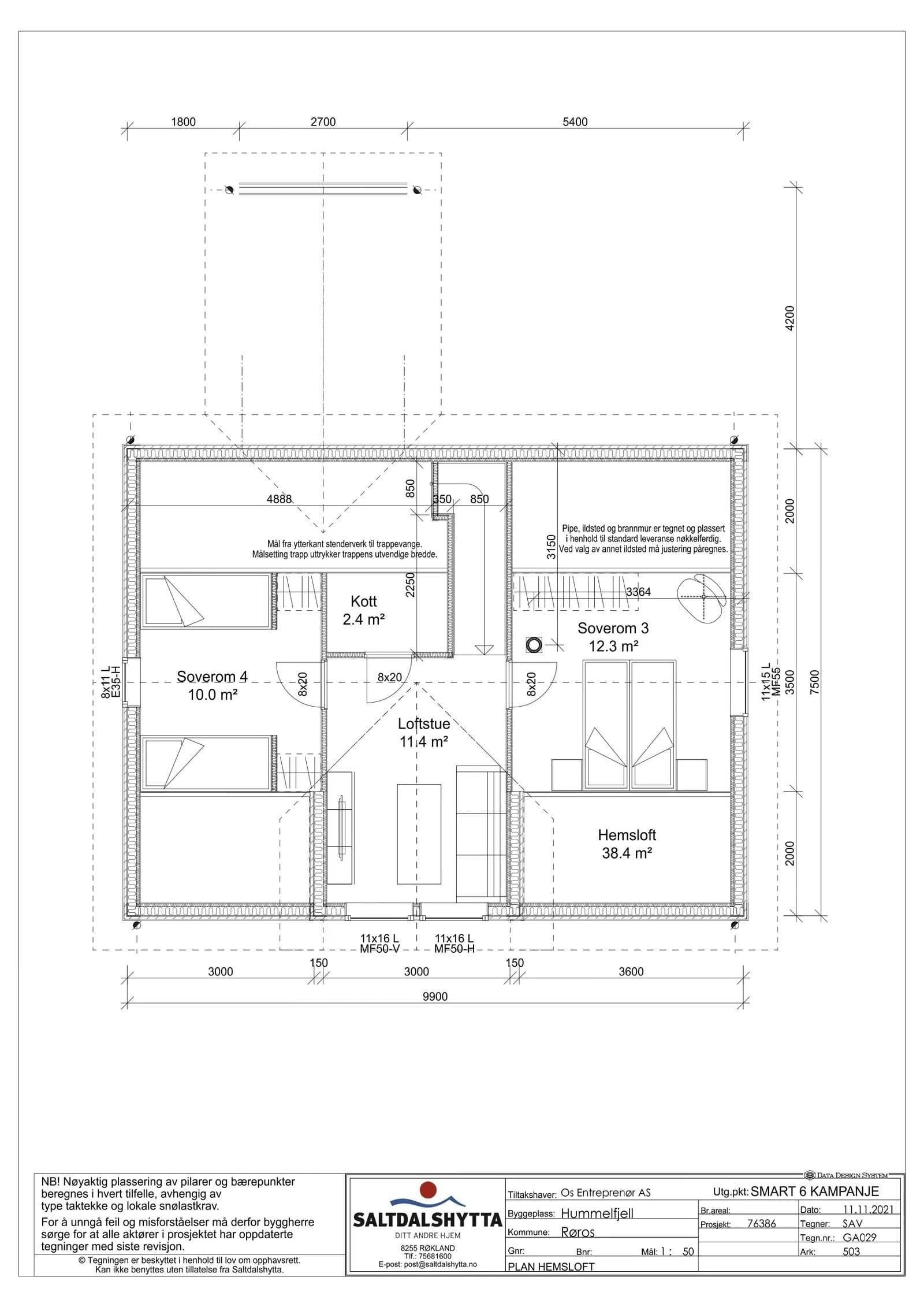
Velkommen til Koivollveien 19! Her er du svært nære alpin- og langrennsanlegg, men likevel innerst i en blindvei. Samtidig har du flott utsikt over Os og kan også se helt til Røros. Hytta ble levert av Saltdalshytta og bygd av Nordbohus Os entreprenør, som har gjort en fabelaktig jobb! Hytta er innholdsrik og moderne med mange gode kvaliteter og topp beliggenhet i Hummelfjell. Hytta ble ferdig oktober 2022 og har en meget god standard. Vi skulle gjerne beholdt den, men på grunn av flytting til annen landsdel ser vi oss dessverre nødt til å selge. Kvaliteter verdt å nevne: - All jobb i hytta er utført av fagmenn. Boligmappen inneholder masse informasjon. - Hytta er aldri brukt til utleie og det har aldri vært husdyr der. - Peisen: Nordpeis Salzburg C Convection. En varmelagringspeis på over 1000 kg som er helt fantastisk til å avgi varme over lengre tid. - Varmekabler i alle bruksrom med individuell styring. - Smart hus Z-wave-system koblet til nett som styrer varmen, slik at man på en enkel måte kan varme opp hytta. (styreenhet: Fibaro Homecenter 3 lite) - 230V brannvarslere i alle soverom og stue som også har bevegelsessensor og er koblet til smart hus-løsningen. - Flere lys er også koblet til smart-hus løsningen. - Utepeis: Nordpeis Roma Garden hvor man kan både grille med kull og fyre med ved. - Easee elbil-lader satt til 16A. - Vakker trehytte for barna (se bilde) - Utebod for praktisk kald oppbevaring av ski og andre ting. - Stor terrasse som omkranser halve hytta. - Parkeringsplass for fire biler. Det er mulig å bygge garasje uten byggesøknad. - Store vinduer på utsiktssiden. - Kjøkken fra JKE Design med kvalitetshvitevarer fra Siemens. - Køyesenger i 1. etasje er plassbygd og følger med. De er 2 meter lang. 90cm bred på topp og 150 bred cm på bunn. - Toppmatet vaskemaskin på bad følger med. - Annet møblement kan diskuteres.
Den sjarmerende hytten i Os i Østerdalen er en drøm for friluftsentusiaster. Med 2 etasjer og 100 kvm plass tilbyr den komfortabel innkvartering i vakre omgivelser. Hytten har enkel tilgang til alpinanlegg, bilvei helt frem til døren, offentlig vann/kloakk, peis, utendørs ildsted, utsikt, innlagt strøm, turterreng, innlagt vann og elbil-lading for enkel og praktisk opphold. Den generelle standarden på hytten er moderne og velholdt, og den er et ideelt tilfluktssted for de som ønsker å komme seg bort fra hverdagens stress og nyte naturen i fred og ro.
Det installeres nå vannmåler slik at de kommunale avgiftene vil gå ned betydelig avhengig av forbruk. Hytta har Norgespris på størm. Dette følger strømmåleren og ikke kunde.
15 900 kr (HELP boligkjøperforsikring (valgfritt)) 94 970 kr (Dokumentavgift) 545 kr (Tinglysing av pantedokument) 545 kr (Tinglysing av skjøte) --- 111 960 kr (Omkostninger totalt) --- 3 910 960 kr (Totalpris inkl. omkostninger) NB: Regnestykket forutsetter at det kun tinglyses én låneobligasjon og at eiendommen selges til prisantydning. Det tas forbehold om endringer i offentlige og private gebyrer. Selger er selv ansvarlig for følgende gebyr: 545 kr (Panterett med urådighet)
Kommunenr: 3430
Gårdsnr: 114
Bruksnr: 508
Du møter selger direkte på visning - den personen som vet hvor sola kommer først inn om morgenen og hvor de beste skiløypene ligger. Få all informasjon fra første hånd og still spørsmål direkte til den som kjenner boligen best.
Legg inn bud enkelt og sikkert med BankID-verifisering. Du får SMS-varsler ved nye bud og kan følge budrunden i sanntid. Systemet er mer oversiktlig og lettere å bruke enn tradisjonelle meglersider.
Oppgjørsselskap med konsesjon fra Finanstilsynet håndterer alle formelle aspekter. Kontrakt signeres digitalt med BankID, og overtakelsesprotokollen gjennomføres enkelt på telefon. Alt foregår i henhold til avhendingsloven.


Her kan du sjekke hvordan Propr fungerer - helt uforpliktende.
Ring oss på 23 90 59 00 (9–16, ukedager), eller legg igjen ditt telefonnummer så ringer vi deg opp.
Chat: 9–19 på hverdager, 11–18 på søndager
Send e-post: post@propr.no
Ring oss: 23 90 59 00 (10–16, ukedager)