

























































VÅLER I SOLØR / Våler
Koselig og romslig enebolig med terrasse, ildsted og garasje
Prisantydning
Størrelse (BRA)
Internt bruksareal (BRA-I)
Boligtype
Eieform
Antall etasjer
- Tomteareal
- 2 614 m²
- Byggeår
- 1969
- Kommunale avgifter
- 18 000 kr
- Tomtetype
- Eiet tomt
Romtyper
Soverom
Baderom
Stue
Bod
Kjøkken
Om boligen
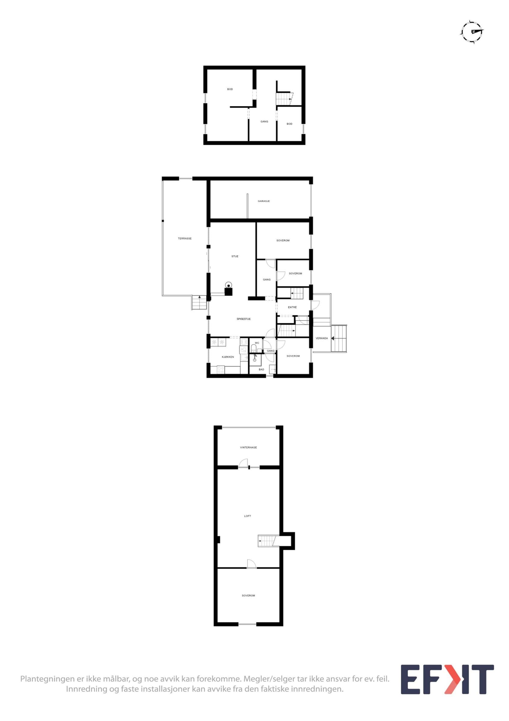
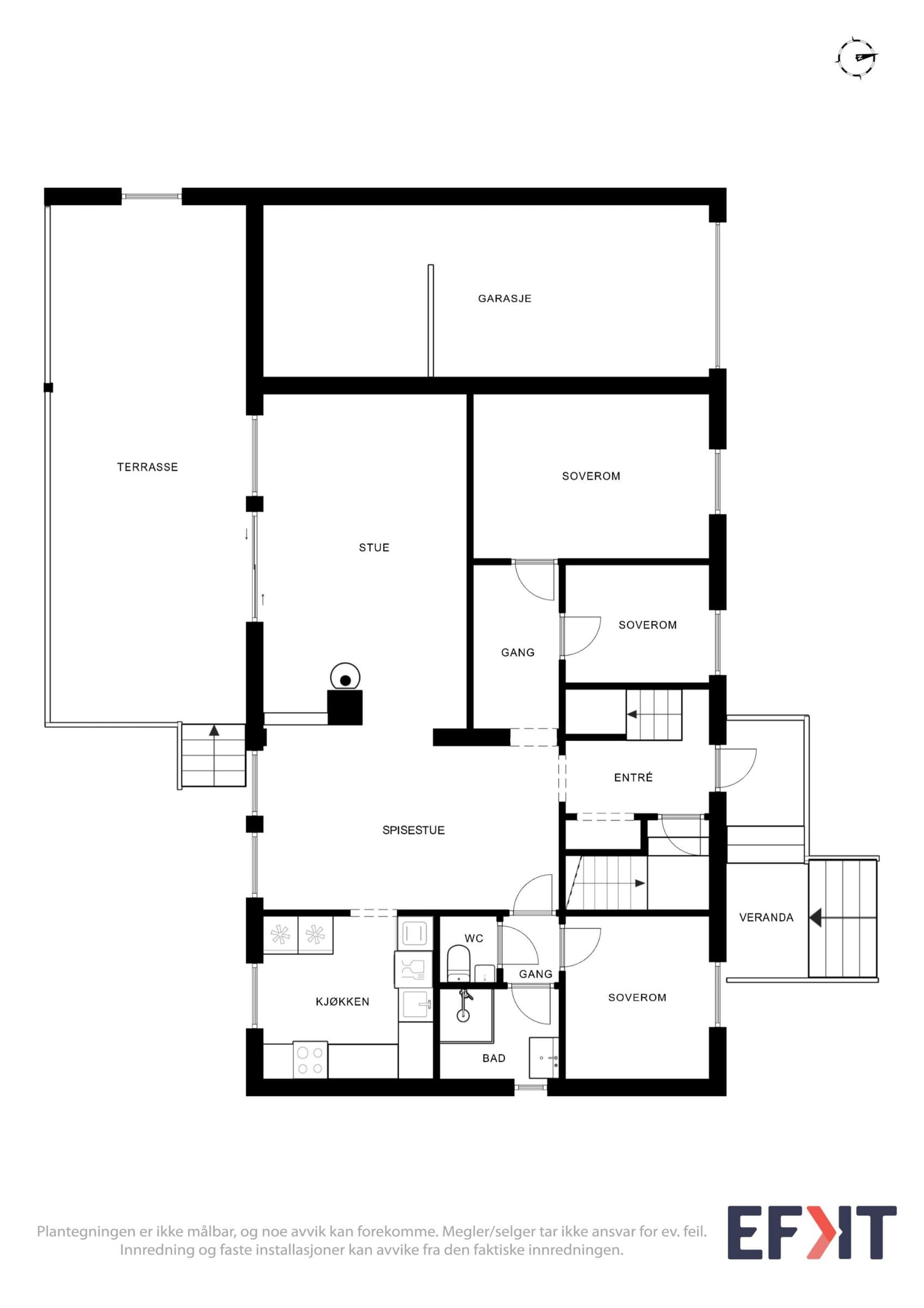
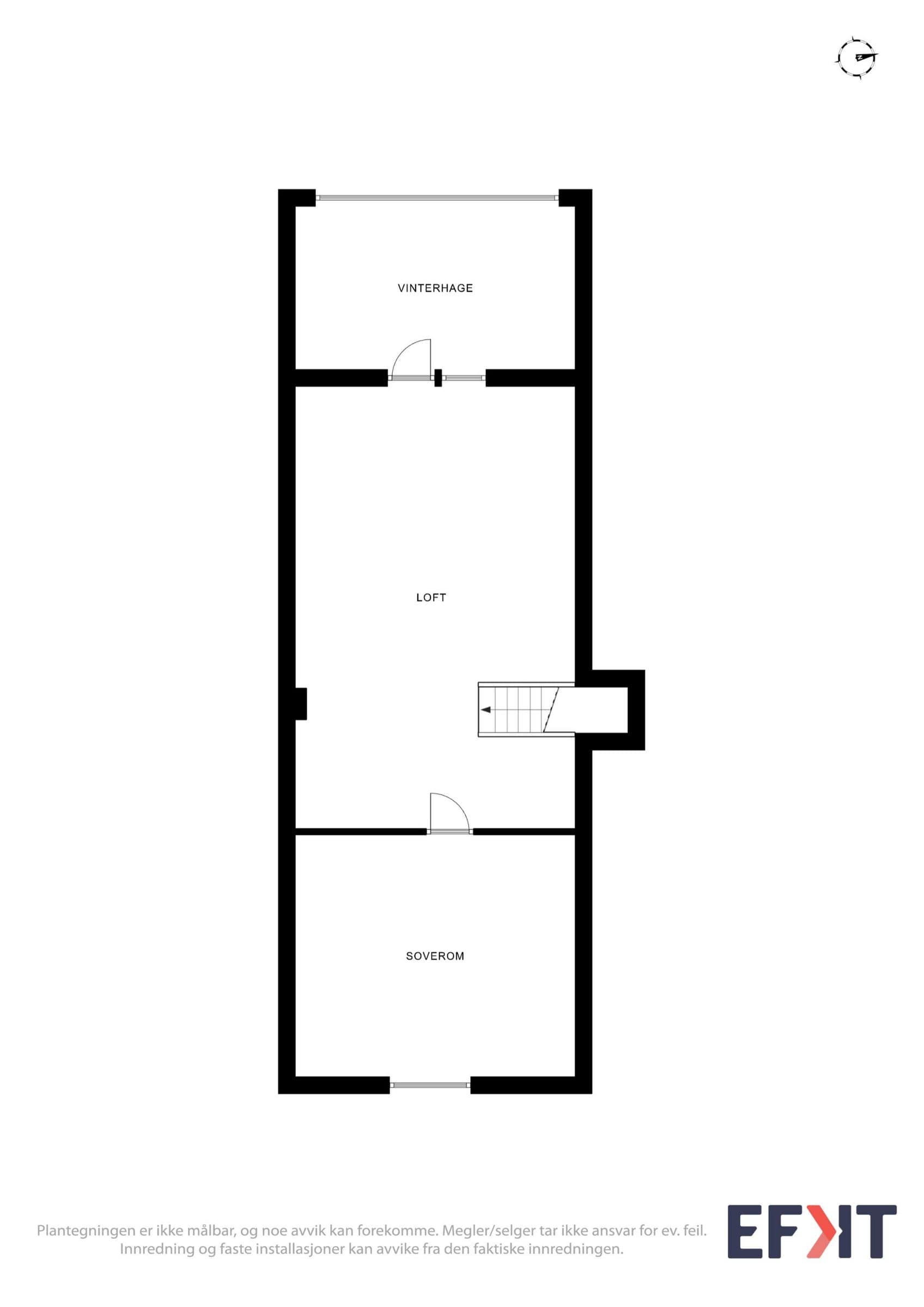
Koselig og romslig 6-roms enebolig med garasje, stor tomt og landlig beliggenhet. Boligen ble oppusset i 2025 og inneholder: entré, bad, stue, kjøkken og tre soverom i 1. etasje. I 2. etasje finner du et soverom samt en lys loftstue med utgang til balkong. Det er lagt nye laminatgulv i alle oppholdsrom. Kjøkkenet er utstyrt med alle nødvendige hvitevarer. Sørvendt, solrik terrasse med gode uteplasser. Kort vei til kollektivtransport, matbutikk og bensinstasjon. Privat visning kan avtales.
Beliggenhet
Landlig beliggenhet nær småbruk og skogsområder. Kun ca. 4 km til butikk, bensinstasjon, barnehage, skoler og flere utesteder. Solør Videregående skole og NAF Trafikksenter ligger også i nærheten. Gode bussforbindelser i alle retninger.
Annet
Medfølgende hvitevarer: Platetopp, ventilator, stekeovn, mikrobølgeovn, oppvaskmaskin, kjøleskap og fryseskap. Elvia har hatt el-kontroll, med noen få avvik som nå er rettet opp i. Privat visning kan avtales.
Omkostninger
15 900 kr (HELP boligkjøperforsikring (valgfritt)) 38 750 kr (Dokumentavgift) 545 kr (Tinglysing av pantedokument) 545 kr (Tinglysing av skjøte) --- 55 740 kr (Omkostninger totalt) --- 1 605 740 kr (Totalpris inkl. omkostninger) NB: Regnestykket forutsetter at det kun tinglyses én låneobligasjon og at eiendommen selges til prisantydning. Det tas forbehold om endringer i offentlige og private gebyrer. Selger er selv ansvarlig for følgende gebyr: 545 kr (Panterett med urådighet)
Matrikkelinformasjon
Kommunenr: 3419
Gårdsnr: 46
Bruksnr: 30
Trygg og profesjonell kjøpsprosess
- 1
Møt selger på visning
Du møter selger direkte på visning - den personen som vet hvor sola kommer først inn om morgenen og hvor de beste skiløypene ligger. Få all informasjon fra første hånd og still spørsmål direkte til den som kjenner boligen best.
- 2
Sikker budprosess med BankID
Legg inn bud enkelt og sikkert med BankID-verifisering. Du får SMS-varsler ved nye bud og kan følge budrunden i sanntid. Systemet er mer oversiktlig og lettere å bruke enn tradisjonelle meglersider.
- 3
Profesjonelt oppgjør og overtakelse
Oppgjørsselskap med konsesjon fra Finanstilsynet håndterer alle formelle aspekter. Kontrakt signeres digitalt med BankID, og overtakelsesprotokollen gjennomføres enkelt på telefon. Alt foregår i henhold til avhendingsloven.


Vurderer du å selge selv?
Her kan du sjekke hvordan Propr fungerer - helt uforpliktende.
Ring oss på 23 90 59 00 (9–16, ukedager), eller legg igjen ditt telefonnummer så ringer vi deg opp.
Aktuelt
Kundeservice
Chat: 9–19 på hverdager, 12–20 på søndager
Send e-post: post@propr.no
Ring oss: 23 90 59 00 (10–16, ukedager)