



































SPYDEBERG / Løken
Smakfull og attraktiv 4-roms tomannsbolig i barnevennlig område med hage
Prisantydning
Størrelse (BRA)
Internt bruksareal (BRA-I)
Boligtype
Eieform
Antall etasjer
Fellesutgifter
- Tomteareal
- 2 406 m²
- Byggeår
- 2006
- Fellesgjeld
- 0 kr
- Fellesformue
- 136 698 kr
- Felleskost pr mnd
- 4 082 kr
- Tomtetype
- Eiet tomt
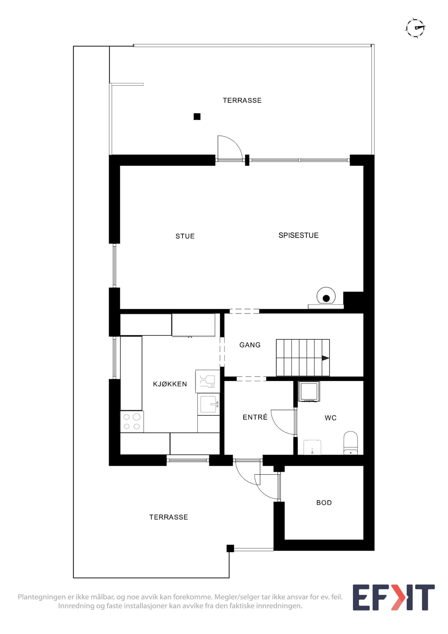
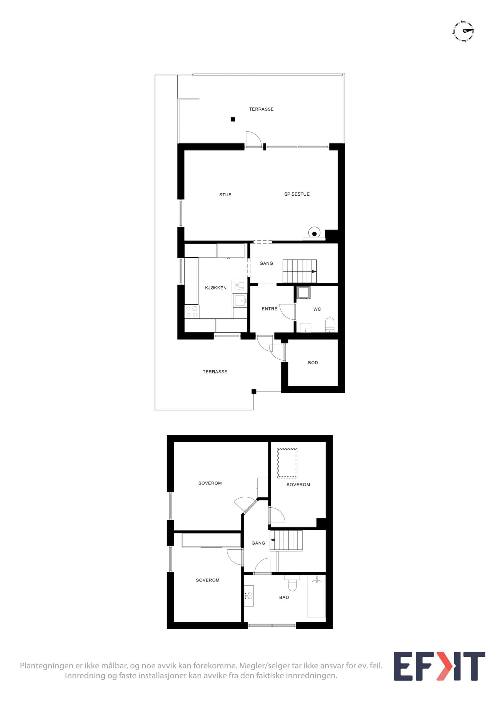
Romtyper
Soverom
Baderom
Stue
Bod
Kjøkken
Om boligen
Velkommen til Grååsveien 69 - en innbydende tomannsbolig over to etasjer med flotte uteplasser og tre soverom! Boligens første etasje inneholder en flislagt entré - vaskerom med toalett - kjøkken - stue med peisovn og utgang til solrik terrasse på ca. 20 kvm. I andre etasje ligger boligens 3 soverom og et romslig flislagt bad med dusj og WC. I andre etasje har man også tilgang til boligens loft. Oppgang via nedfellbar stige. Gulvlagt med mulighet for lagring. Boligen har en utvendig bod på 5 kvm ved inngangspartiet. Standard: Det utvendige vedlikeholdet er i regi av borettslaget. Boligen ble sist malt i 2024 og det ble byttet markiser i 2025. Det fremstår godt vedlikeholdt. Kjøkken: praktisk kjøkken med mye skapplass. Kjøkkeninnredningen ble skiftet i 2011. Hvitevarer medfølger. Det er heltre eik benkeplate. Vaskerommet i første etasje har fliser på gulv og er delvis flislagt på veggen. Rommet inneholder toalett, innredning med servant, opplegg for vaskemaskin, 200 liters varmtvannsbereder samt fordelerskap og vannmålere og elektriske varmekabler i gulvet. Badet i andre etasje er romslig og har fliser på gulv og vegger. Det inneholder veggmontert toalett, badekar med dusj/glassvegg, innredning med servant og speil, det er elektriske varmekabler i gulvet. Oppvarming - Elektriske varmekabler i 1.etasje og bad i 2.etasje. - Peisovn i stuen Parkering Det er avsatt to oppstillingsplasser til denne enheten. Felleskostnadene dekker kommunale avgifter, TV, internett, utvendig forsikring, snøbrøyting, forretningsførsel med mer.
Beliggenhet
Grååsveien 69 har en fin beliggenhet i innerste del av Grååsen. Området er et populært og veletablert boligområde. Eiendommen ligger i en blindvei med fine, merkede turstier rett ved. Barnehage på nedre del av Grååsen. Uteplassen er meget solrik og med noe utsyn mot vest. Det er ca 1,5 km til Spydeberg sentrum med jernbaneforbindelse til bl.a. Oslo. Området består hovedsakelig av villa og småhusbebyggelse.
Annet
Om du ikke har mulighet til å komme på visning, så ta kontakt, så finner vi en tid.
Omkostninger
8 200 kr (HELP boligkjøperforsikring (valgfritt)) 545 kr (Tinglysing av pantedokument) 545 kr (Tinglysing av skjøte) --- 9 290 kr (Omkostninger totalt) --- 3 459 290 kr (Totalpris inkl. omkostninger) NB: Regnestykket forutsetter at det kun tinglyses én låneobligasjon og at eiendommen selges til prisantydning. Det tas forbehold om endringer i offentlige og private gebyrer. Selger er selv ansvarlig for følgende gebyr: 545 kr (Panterett med urådighet) 0 kr (Eierskiftegebyr)
Matrikkelinformasjon
Kommunenr: 3118
Gårdsnr: 431
Bruksnr: 158
Trygg og profesjonell kjøpsprosess
- 1
Møt selger på visning
Du møter selger direkte på visning - den personen som vet hvor sola kommer først inn om morgenen og hvor de beste skiløypene ligger. Få all informasjon fra første hånd og still spørsmål direkte til den som kjenner boligen best.
- 2
Sikker budprosess med BankID
Legg inn bud enkelt og sikkert med BankID-verifisering. Du får SMS-varsler ved nye bud og kan følge budrunden i sanntid. Systemet er mer oversiktlig og lettere å bruke enn tradisjonelle meglersider.
- 3
Profesjonelt oppgjør og overtakelse
Oppgjørsselskap med konsesjon fra Finanstilsynet håndterer alle formelle aspekter. Kontrakt signeres digitalt med BankID, og overtakelsesprotokollen gjennomføres enkelt på telefon. Alt foregår i henhold til avhendingsloven.


Vurderer du å selge selv?
Her kan du sjekke hvordan Propr fungerer - helt uforpliktende.
Ring oss på 23 90 59 00 (9–16, ukedager), eller legg igjen ditt telefonnummer så ringer vi deg opp.
Aktuelt
Kundeservice
Chat: 9–19 på hverdager, 12–20 på søndager
Send e-post: post@propr.no
Ring oss: 23 90 59 00 (10–16, ukedager)