





































SARPSBORG / BREVIK
Nyoppført bolig på Brevik – moderne, praktisk og klar for innflytting!
Prisantydning
Størrelse (BRA)
Internt bruksareal (BRA-I)
Boligtype
Eieform
Etasje
Fellesutgifter
- Tomteareal
- 110 m²
- Byggeår
- 2025
- Fellesgjeld
- 630 242 kr
- Felleskost pr mnd
- 7 954 kr
- Tomtetype
- Festet tomt
- Festenummer (Fnr)
- 5
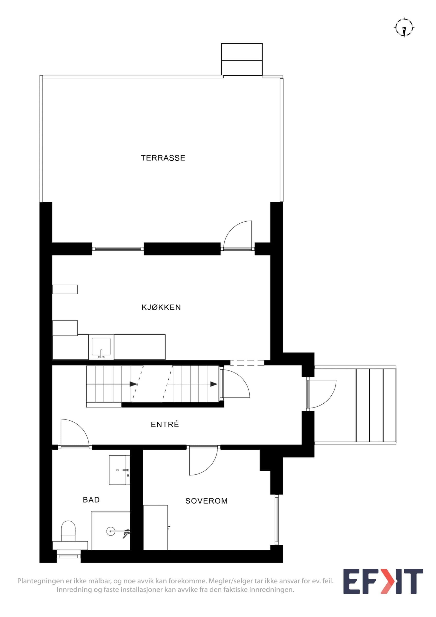
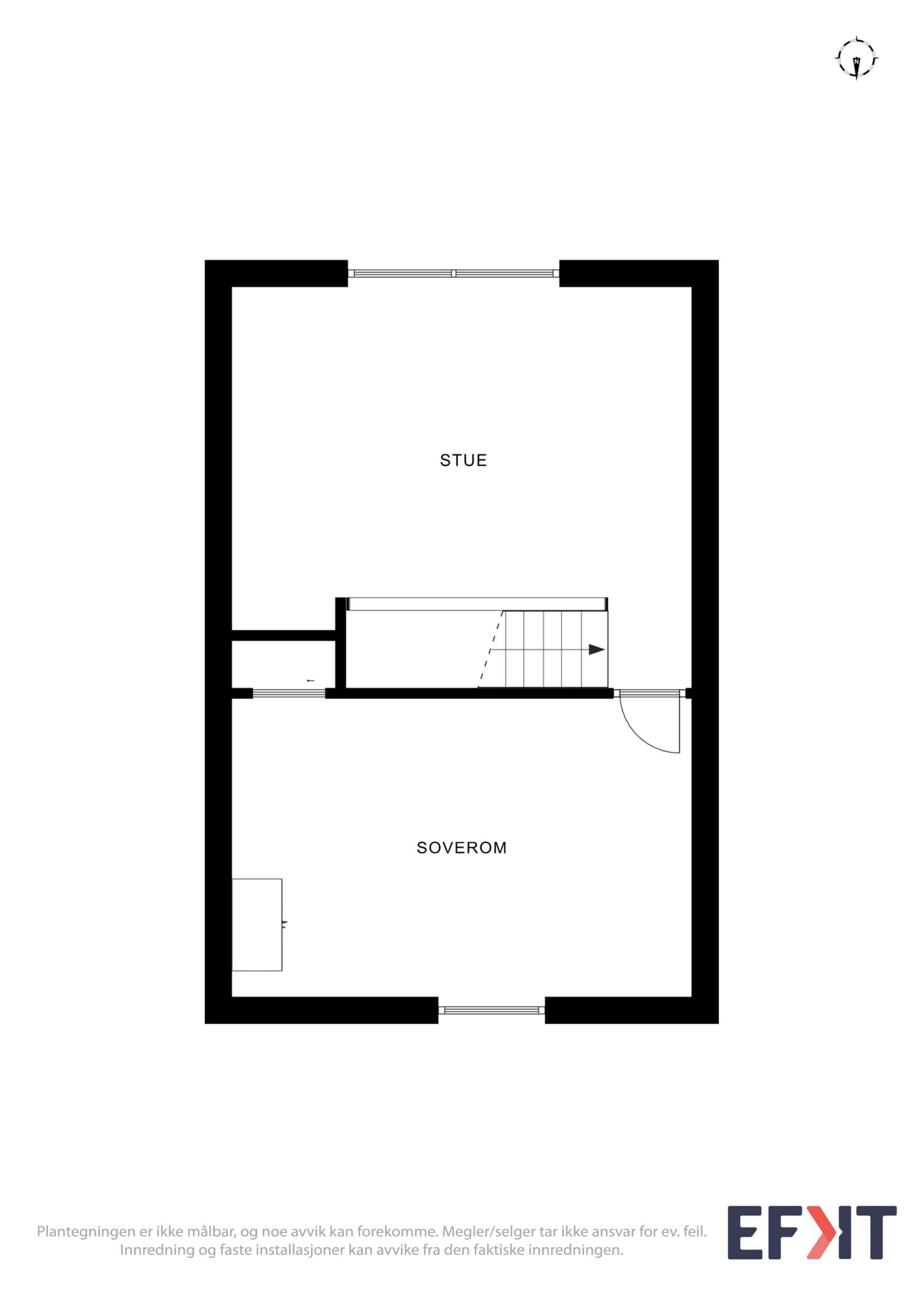
Romtyper
Soverom
Baderom
Stue
Bod
Kjøkken
Om boligen
Drømmer du om en helt ny bolig med moderne løsninger og høy standard? Da bør du se nærmere på denne flotte boligen! Her er alt splitter nytt – fra grunnmur til tak – og du får 5 års reklamasjonsrett for ekstra trygghet. Boligen er et enderekkehus med to lyse soverom og egen kjeller med et stort rom som kan brukes som hjemmekontor eller hobbyrom. Badet har varmekabler for ekstra komfort, og hele boligen er utstyrt med topp moderne løsninger som rør-i-rør-system og eget ventilasjonsanlegg. Boligen ligger i et stille og barnevennlig område med hyggelige naboer, kort vei til skole, kjøpesenter, Sarpsborg stadion og Sparta ishall – alt innenfor bomringen. Her får du også en stor og solrik balkong, perfekt for rolige morgener eller hyggelige kvelder. En innflyttingsklar bolig hvor alt er nytt, praktisk og bygget for fremtiden! Det tas forbehold om feil i annonsen.
Beliggenhet
Rolig nabolag med hyggelige naboer som alltid har en liten samtale på lur. Det er gåavstand til skole, kjøpesenter og Sarpsborg sentrum
Annet
I tilstandsrapporten står det at det er 3stk TG2 feil og 1stk TG1 feil, dette er tatt med de ansvarlige for reklamasjon og blir rettet på fortløpende. Boligen har forkjøpsrett da denne er en del av terneveien borettslag. Er det noe du lurer på så ikke nøl med å sende melding eller å ringe for en prat. Visninger kan tas privat om dette ønskes. Send en melding eller ring så finner vi tid som passer.
Omkostninger
2 950 000 kr (Prisantydning) 630 242 kr (Andel av fellesgjeld) --- 3 580 242 kr (Pris inkl. fellesgjeld) Omkostninger 8 200 kr (HELP boligkjøperforsikring (valgfritt)) 545 kr (Tinglysing av pantedokument) 545 kr (Tinglysing av skjøte) --- 9 290 kr (Omkostninger totalt) --- 3 589 532 kr (Totalpris inkl. omkostninger) NB: Regnestykket forutsetter at det kun tinglyses én låneobligasjon og at eiendommen selges til prisantydning. Det tas forbehold om endringer i offentlige og private gebyrer. Selger er selv ansvarlig for følgende gebyr: 545 kr (Panterett med urådighet) 5 800 kr (Eierskiftegebyr)
Matrikkelinformasjon
Kommunenr: 3105
Gårdsnr: 2087
Bruksnr: 6
Festenr: 5
Trygg og profesjonell kjøpsprosess
- 1Møt selger på visningDu møter selger direkte på visning - den personen som vet hvor sola kommer først inn om morgenen og hvor de beste skiløypene ligger. Få all informasjon fra første hånd og still spørsmål direkte til den som kjenner boligen best. 
- 2Sikker budprosess med BankIDLegg inn bud enkelt og sikkert med BankID-verifisering. Du får SMS-varsler ved nye bud og kan følge budrunden i sanntid. Systemet er mer oversiktlig og lettere å bruke enn tradisjonelle meglersider. 
- 3Profesjonelt oppgjør og overtakelseOppgjørsselskap med konsesjon fra Finanstilsynet håndterer alle formelle aspekter. Kontrakt signeres digitalt med BankID, og overtakelsesprotokollen gjennomføres enkelt på telefon. Alt foregår i henhold til avhendingsloven. 


Vurderer du å selge selv?
Her kan du sjekke hvordan Propr fungerer - helt uforpliktende.
Ring oss på 23 90 59 00 (9–16, ukedager), eller legg igjen ditt telefonnummer så ringer vi deg opp.
Aktuelt
Kundeservice
Chat: 9–19 på hverdager, 12–20 på søndager
Send e-post: post@propr.no
Ring oss: 23 90 59 00 (10–16, ukedager)