



















































Rødtvet
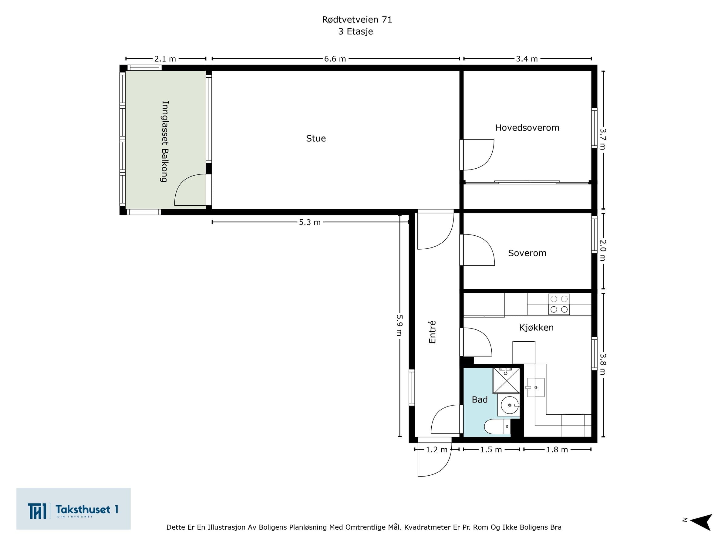
Velkommen til Rødtvetveien 71 – en gjennomgående, romslig og særdeles tiltalende 3-roms leilighet med flott utsyn mot grønne fellesområder Leiligheten ligger i byggets 3. etasje og har en luftig og arealeffektiv planløsning som kombinerer funksjonalitet og trivsel på en harmonisk måte. Her bor du i rolige omgivelser, samtidig som du har umiddelbar nærhet til både marka og kollektivtransport – perfekt for deg som ønsker å bo sentralt, men med grønne kvaliteter rett utenfor døren. Stuen fremstår som lys og innbydende med store vindusflater som slipper inn rikelig med naturlig dagslys. Herfra er det utgang til en vestvendt, innglasset balkong med svært gode solforhold – en utvidelse av boligen som kan nytes store deler av året og fungerer som en lun og behagelig uteplass, både sommer og vinter. Kjøkkenet er adskilt og levert av IKEA, med integrerte hvitevarer og en gjennomtenkt barløsning ved vinduet – et naturlig sted å starte dagen med en kopp kaffe og utsikt mot frodige omgivelser. Løsningen gir godt med benke- og oppbevaringsplass, og kjøkkenet fremstår som både funksjonelt og hyggelig. Videre har leiligheten et eldre, men velholdt baderom som gir rom for personlig tilpasning over tid, samt to romslige soverom med plass til både dobbeltseng og garderobeløsninger. Noen av boligens gode kvaliteter: - Gjennomgående og romslig 3-roms leilighet - Innglasset vestvendt balkong med gode solforhold - Separat kjøkken med integrerte hvitevarer og hyggelig spiseplass - Lys og luftig stue med utgang til balkong - To gode soverom med fleksible møbleringsmuligheter - Barnevennlig og grønt boområde med kort vei til marka - Gode kollektivforbindelser til sentrum og øvrige bydeler - Dette er en bolig som passer perfekt for både par, små familier og enslige som verdsetter en kombinasjon av natur, komfort og praktisk beliggenhet. - For mer info om standarden se tilstandsrapporten. Velkommen til visning – her vil du raskt føle deg hjemme!
Bygningen ble oppført i 1961 og er konstruert med bærende elementer, etasjeskillere og leilighetsskillende vegger i betong og murverk. Ytterveggene består av betongkonstruksjoner, med utvendig fasade forblendet med korrugerte plater. Grunnmuren er i betong, og det antas at fundamenteringen er utført på faste, komprimerte masser. Takkonstruksjonen er flat og oppført i armert betong, tekket med papp eller shingel. Vinduer og balkongdører er utført med trerammer og isolerglass, og ble skiftet i 2017 som en del av et felles tiltak i regi av borettslaget. Balkongen er oppført som en stål- og betongkonstruksjon. Gulvet er tekket med membran, og rekkverket er i aluminium med glassfelt. Balkongen er innglasset med skyvbare og åpningsbare glasspartier som gir fleksibilitet i bruk gjennom året.
Bakkely Borettslag ligger på Øvre Kalbakken i Oslo og består av totalt 322 andelsleiligheter. Borettslaget er registrert i Foretaksregisteret med organisasjonsnummer 954 721 345. Eiendommen omfatter gårds- og bruksnummer 90/270 og 90/312, og inkluderer følgende adresser: Kristian Bogneruds vei 2, 4, 6 og 8 samt Rødtvetveien 30–38 og 55–71. Organisatorisk informasjon Andelsnummer: 295 Forretningsfører: PHM Forvaltning AS Forsikring: Profinans (Protector Forsikring) Polisenummer: 2860217‑1.1 Planlagt vedlikehold i 2025 Styret har varslet følgende tiltak for kommende periode: Utskifting av brannslukkingsapparater Oppgradering av ventilasjon i lavblokker Kartlegging av VVS (bad/sluk) og stoppekraner Veggvask i trappeoppganger Etablering av nye sykkelstativer Langsiktig vedlikeholdsplan (tidspunkt ikke fastsatt) Utskifting av inngangspartier og bodvinduer i lavblokker Forbedring av drenering og grunnforhold Etablering av leskur for traktor- og vedlikeholdsutstyr Brannsikringstiltak, inkludert utskifting av brannvinduer og -dører Fasadevask av gavlvegger Oppføring av nye utendørs sykkelboder Utbedring av teknisk tilstand på tak (rør, isolasjon, klemringer) innen 1–2 år Heisprosjekt Styret anbefaler utskifting av heisene i høyblokkene grunnet hyppige driftsproblemer og høye vedlikeholdskostnader. Kostnadene er estimert til ca. 4 millioner kroner. Prosjektet vurderes som en prioritert oppgave i kommende budsjett og kan medføre økt fellesgjeld. Utskifting bør gjennomføres innen fem år. Tekniske og økonomiske oppdateringer Varmtvannsberedere og varmepumper i høyblokka må skiftes. Anbudsprosess pågår. Heisrådgivere AS har utført delvis reparasjon, men anbefaler full utskifting. Proline AS har inspisert avløpsrør; ingen skader funnet. Ny vurdering anbefales om 10 år. Rentekostnadene på felleslån er redusert med 0,4 prosentpoeng etter reforhandling med Handelsbanken. Besparelse: ca. 127 000 kroner årlig. Pågående reforhandling av avtaler for brannalarm og forsikring. Andre tiltak og beboerinformasjon: Spørreundersøkelse om elbillading planlegges høsten 2025 for å kartlegge interesse og vurdere muligheter for installasjon. Rentokil vil i sommer utføre skadedyrbekjempelse (skjeggkre) i Rødtvetveien 55–61. Eventuelle spørsmål rettes til Rentokil (tlf. 333 14 000, skadenr. 2025039). Tiltaket dekkes av borettslagets forsikring hos Norsk Hussopp Forsikring. Mer informasjon: For oppdatert informasjon, vedtekter og nyheter, se borettslagets offisielle side: 👉 bakkely-borettslag.styret.com
Tomten er en felles festet eiendom tilhørende borettslaget, med et totalareal på 18 030,70 m². Arealet er pent opparbeidet og består av plen, beplantning, samt områder tilrettelagt for lek og opphold. Det finnes asfalterte interne veier og parkeringsarealer, og eiendommen ligger i et relativt flatt terreng som gir god tilgjengelighet for beboerne. Tomten er festet, med en festekontrakt som løper i 90 år fra 15. juni 1961. Nåværende festetid utløper 15. juni 2051 og skal fornyes med tiden.
Attraktiv 3-roms leilighet i naturskjønne omgivelser på Rødtvet/Kalbakken Velkommen til et attraktivt boligområde på Rødtvet og Kalbakken – en perfekt kombinasjon av byliv og naturnær beliggenhet. Denne moderne 3-roms leiligheten ligger i rolige og grønne omgivelser, med en sydvestvendt balkong som gir gode solforhold og utsikt mot frodig natur. Her tilbys en sjelden mulighet til å bo i tilbaketrukne og familievennlige omgivelser – uten å gi avkall på urbane kvaliteter. Beliggenheten gir enkel tilgang til offentlig transport med gangavstand til både buss, T-bane og tog. Dette gjør det lett å pendle til Oslos sentrum eller andre deler av byen, samtidig som området gir et rolig avbrekk fra storbyens tempo. I nærområdet finner man Kalbakken nærsenter, samt større kjøpesentre som Stovner Senter og Linderud Senter. Disse tilbyr et bredt spekter av butikker, dagligvareforretninger, apotek, banktjenester og øvrige servicetilbud – alt innen kort rekkevidde. For friluftsinteresserte utgjør Lillomarka et naturlig utgangspunkt for helårsaktiviteter. Området byr på et variert turterreng med merkede stier, skiløyper og sykkelruter. Her er det rike muligheter for rekreasjon og naturopplevelser året rundt. Den unike kombinasjonen av nærhet til både marka og byen gjør dette til et svært ettertraktet boområde – spesielt for barnefamilier og etablerere. Borettslaget er godt vedlikeholdt og har en pent opparbeidet felles tomt på over 4 700 m². Området er utstyrt med interne gangveier, biloppstillingsplasser, lekeområder og sosiale soner med sittegrupper – godt tilrettelagt for både småbarnsfamilier og beboere i alle livsfaser. Parkeringsmuligheter tilbys etter venteliste, og det finnes også gateparkering i tråd med gjeldende bestemmelser. Boligen ligger i et veletablert område med et bredt spekter av servicetilbud. Det er kort vei til både barnehager og skoler for alle alderstrinn, samt et rikt tilbud av fritidsaktiviteter. I nærområdet finnes blant annet idrettsanlegg, treningssentre som SATS og Fresh Fitness, svømmehall og bibliotek. I tillegg er Nordmarka lett tilgjengelig med sine mange tur- og aktivitetsmuligheter. Området preges av grønne lunger og stille boligveier – som for eksempel Flaengrenda – og gir beboerne en naturskjønn og harmonisk ramme rundt hverdagen. Dette gjør området velegnet for dem som søker et boligmiljø preget av ro, nærhet til naturen og god tilgjengelighet til byens fasiliteter. Sammenfattet representerer denne boligen en attraktiv helhet av moderne bokomfort, sentral beliggenhet og naturnær livsstil – ideell for familier, par og enkeltpersoner som ønsker det beste fra to verdener.
Tinglyste rettigheter og forpliktelser Servitutter/rettigheter: Borettslag - legalpant: Kommunen har legalpant i borettslagets eiendom som sikkerhet for betaling av kommunale avgifter. Legalpant er pant som følger av loven, og som ikke tinglyses. På borettslagets eiendom kan det være tinglyst erklæringer som f eks rett for kommunen til å vedlikeholde rørsystemer for vann- og kloakk. Disse erklæringene kan ikke slettes. Kontakt for nærmere informasjon. Borettslaget har lovbestemt pant i den enkelte andel for ubetalte fellesutgifter og andre kostnader knyttet til forholdet mellom andelen og borettslaget, jf. borettslagsloven § 5-20. Pantekravet kan ikke overstige 2 G (2 ganger Folketrygdens grunnbeløp). Følgende servitutter er tinglyst i borettslagets eiendom: For servitutter eldre enn fradelingsdato og eventuelle arealoppføringer som kan ha betydning for denne matrikkelenhet henvises det til avgivereiendommen. Ta kontakt for mer informasjon. Offentlige forhold Vei / Vann / Avløp: Eiendommen er tilknyttet offentlig vann- og avløpsnett via private stikk- og fellesledninger. Vi gjør oppmerksom på at private ledninger vedlikeholdes for eiers regning. Ferdigattest eller midl. brukstillatelse Ferdigattest er utstedt: Midlertidig brukstillatelse er utstedt: Det foreligger godkjente og byggemeldte tegninger i kommunens arkiver på boligen og (garasjen). Når det gjelder boligen er det noe avvik fra disse: (påfør event. endringer) Ferdigattest utstedes ikke lenger for tiltak det er søkt om før 01.01.1998, jf. plan og bygningsloven § 21-10 femte ledd.
Det er muligheter for å leie p‑plass og garasjeplass i regi av borettslaget. Videre er det gratis parkering i bydelen og ladestasjoner rett utenfor. Det kan være muligheter for å leie garasje eller parkeringsplass dersom det er ledig kapasitet. Parkering koster pt. 150 kr per måned. En rekke garasjeplasser med venteliste kan også leies. Gateparkering etter gjeldende bestemmelser. Det er ellers gratis gateparkering i Rødtvetveien, Kristian Bogneruds vei m.m som reguleres av områdets gjeldende bestemmelser.
3 900 000 kr (Prisantydning) 95 508 kr (Andel av fellesgjeld) --- 3 995 508 kr (Pris inkl. fellesgjeld) Omkostninger 8 200 kr (HELP boligkjøperforsikring (valgfritt)) 545 kr (Tinglysing av pantedokument) 545 kr (Tinglysing av skjøte) --- 9 290 kr (Omkostninger totalt) --- 4 004 798 kr (Totalpris inkl. omkostninger) NB: Regnestykket forutsetter at det kun tinglyses én låneobligasjon og at eiendommen selges til prisantydning. Det tas forbehold om endringer i offentlige og private gebyrer. Selger er selv ansvarlig for følgende gebyr: 545 kr (Panterett med urådighet) 6 570 kr (Eierskiftegebyr)
Kommunenr: 301
Gårdsnr: 90
Bruksnr: 312
Du møter selger direkte på visning - den personen som vet hvor sola kommer først inn om morgenen og hvor de beste skiløypene ligger. Få all informasjon fra første hånd og still spørsmål direkte til den som kjenner boligen best.
Legg inn bud enkelt og sikkert med BankID-verifisering. Du får SMS-varsler ved nye bud og kan følge budrunden i sanntid. Systemet er mer oversiktlig og lettere å bruke enn tradisjonelle meglersider.
Oppgjørsselskap med konsesjon fra Finanstilsynet håndterer alle formelle aspekter. Kontrakt signeres digitalt med BankID, og overtakelsesprotokollen gjennomføres enkelt på telefon. Alt foregår i henhold til avhendingsloven.


Her kan du sjekke hvordan Propr fungerer - helt uforpliktende.
Ring oss på 23 90 59 00 (9–16, ukedager), eller legg igjen ditt telefonnummer så ringer vi deg opp.
Chat: 9–19 på hverdager, 11–18 på søndager
Send e-post: post@propr.no
Ring oss: 23 90 59 00 (10–16, ukedager)