











































































GJETTUM / Dønski-Rud
Stort renovert enderekkehus med hage, garasjeplass og elbillader
Prisantydning
Størrelse (BRA)
Internt bruksareal (BRA-I)
Boligtype
Eieform
Antall etasjer
Fellesutgifter
- Tomteareal
- 22 781 m²
- Byggeår
- 1979
- Fellesgjeld
- 1 357 649 kr
- Fellesformue
- 159 010 kr
- Felleskost pr mnd
- 12 918 kr
- Tomtetype
- Eiet tomt
Romtyper
Soverom
Baderom
Stue
Bod
Kjøkken
Om boligen
Lekkert og betydelig renovert enderekkehus (2021-2023) med gjennomgående høy standard. Boligen ligger i et rolig område, perfekt for småbarnsfamilier. Her er det kort vei til skoler, barnehager og diverse servicefasiliteter. Området har et bredt aktivitetstilbud, med en rekke tur- og rekreasjonsmuligheter. Borettslaget er veldrevet, har stor lekeplass og flere sosiale grupper som blant annet trimgruppe, ølbryggelag, hagegruppe og snekkergruppe. Boligen har god planløsning, og inneholder blant annet kjøkken, stue, 4 soverom, bad, separat toalett, vaskerom, kjellerstue og stor innebod. Fra stuen i første etasje er det direkte adkomst til en trivelig uteplass med platting og en sjarmerende hagedel på ca 140 kvm. Hagen er vesentlig opparbeidet med et nydelig magnoliatre, flere hagebed og bærbusker. Høydepunkter o Betydelig renovert o Lyst og arealeffektivt o Gode oppbevaringsmuligheter o 4 soverom o Fellesområder med gressplen og lekeplass o Garasjeplass m/elbillader o Fin uteplass o Veldrevet borettslag m/IN ordning Parkering Parkering på parkeringsplass med elbillader i felles garasjeanlegg i kjelleren under høyblokkene. Nr 71. Gjesteparkering ute.
Beliggenhet
Med sentral beliggenhet på Gjettum er det enkelt å komme seg rundt. Bærum sykehus, dagligvarebutikker som Coop Dønski og Bunnpris Gjettum, samt kollektivtransport, ligger i gangavstand. Buss til Sandvika eller Oslo tar du fra holdeplass kun 6 minutter unna, og med bil er det 5 minutter til innfartsparkering for T-banen. Til fots tar det ca. 20–25 minutter langs en hyggelig tursti til Sandvika sentrum, som byr på et rikt utvalg av butikker, kafeer, restauranter og kulturtilbud. Kolsås senter ligger også i nærheten. For den friluftsinteresserte byr området på flotte muligheter – enten det er tur og trening ved Kolsåstoppen og Dælivann, eller strandliv og båtturer fra Kalvøya og Kadettangen. Vestmarka, Kolsåstoppen og kirkerudbakken er kun en kort kjøretur unna, med turstier, skiløyper og alpint. Området er ideelt for en aktiv livsstil, med svømmehaller og Bærum idrettspark i nærheten – med flerbrukshall, friidrettshall, skøytebane, rulleskibane og fotballhall. Bebyggelse Området består av boligblokker, eneboliger og småhusbebyggelse. Tomt Fellestomt, 22781 m2. Tomten tilhører borettslaget, men andelen disponerer hageområdet. Det er i tillegg store fellesarealer med asfalterte gangveier, sittegrupper og lekeplass. Meget barnevennlig med god plass mellom bygningene og skjermet fra biltrafikk. Skole/Barnehage Barnehager o Helgerud meninghetsbarnehage (1-5år) 5 min o Dønski barnehage (1-5år) 5 min Eiendommen sokner til: o Levre barneskole (1-7 kl.) o Hauger Ungdomsskole (8-10 kl.) Offentlig kommunikasjon o Buss: Sykehusveien 6 min (160, 204, 210A, 210B, 215A, 215B) o T-bane: Hauger 17 min o Tog: Sandvika togstasjon 14 min med buss, 28 min å gå o Bil: Oslo Sentrum 24 min
Innhold
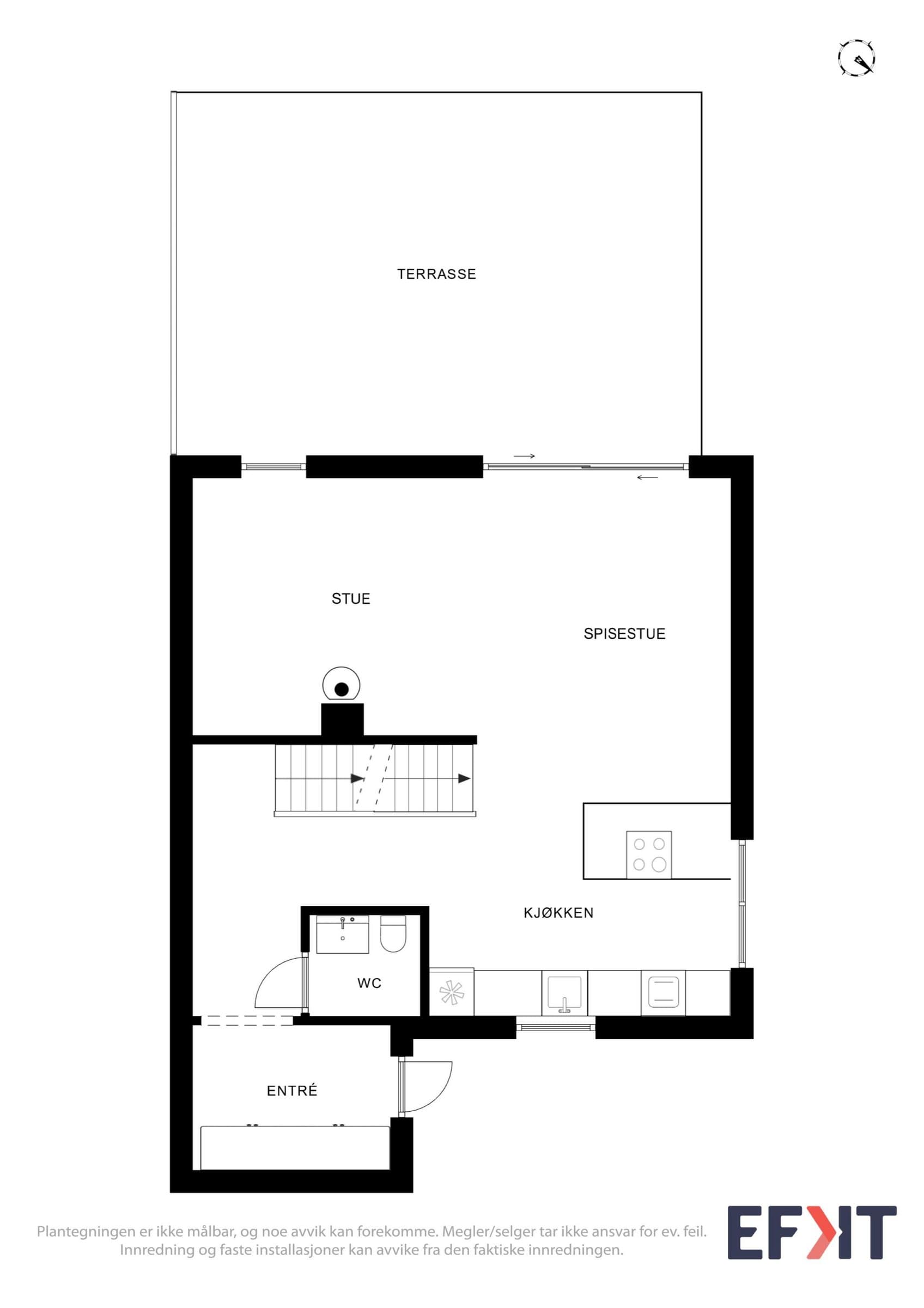
Boligen går over 3 plan og inneholder; Kjelleretasje: Gang, innredet kjellerstue, soverom, vaskerom og bod. 1.etasje: Entré, gang, wc, kjøkken/stue. 2.etasje: Gang, bad, 3 soverom. Byggemåte Rekkehusbygning som består av 4 enheter. Grunnmur og fundamenter er av betong. Støpt betonggulv i kjelleretasjen. Drenering fra byggeåret. Taktekking med asfalttakshingel. Takrenner, nedløpsrør og beslag for øvrig av plastbelagt stål. Areal rekkehus BRA-i: 157 m2 BRA: 157 m2 P-rom: 144 m2 S-rom: 13 m2 TBA (Terrasse): 34 m2 BRA-e (Utvendig sportsbod): 5 m2 Boder Boligen disponerer en innvendig bod i kjelleren på 12.5 kvm og en utvendig sportsbod på ca 5 kvm.
Første etasje
Entre Luftig entré med stor garderobe til oppbevaring. Fra entréen er det videre adkomst til wc og kjøkken/stue. Garderobeskap i gang medfølger ikke. Kjøkken Moderne og praktisk kjøkken fra 2021. Kjøkkenet er innredet og designet med tanke på funksjonalitet og har godt med benk- og skap/skuffeplass. Grønne grepsfrie fronter, laminat benkeplate med oppvaskkum og ett-greps blandebatteri. Integrerte hvitevarer og platetopp med integrert ventilator. Romslig spiseplass med plass til stort spisebord (opp til 10 personer). Stue Stuen har plass til stor sofa, har en flott ny peisovn fra 2021, samt signaturvegg behandlet med farget sparkel. Fra stuen er det utgang via stor skyvedør til ny, romslig terrasse. Toalett Bad, wc og vaskerom ble renovert i 2021. Alle har gulvvarme. Toalett i 1.etg er praktisk og moderne. Utført med flislagt gulv, samt malte vegger og himling. Toalettet er utstyrt med servantseksjon med skuffer og vegghengt toalett.
Andre etasje
Bad Badet er moderne og luksuriøst utstyrt med delikat badekar, fossefalldusj bak glassvegg med skyvedør og plassbygd hylle- og skapløsning. Det er malt himling med innfelte downlights, samt flislagt gulv og vegger. Badet har en terrakotta-farget signaturvegg av fargesparkel. Soverom Det er 4 soverom i boligen, tre i andre etasje og ett i kjelleren. Soverommene i andre etasje har godt med lys og plass til seng, garderobemuligheter og annet soveromsmøblement. Hovedsoverom er romslig og spesielt delikat med store vinduer og signaturvegger behandlet med farget sparkel. Gang Romslig gang med plass til store garderobeskap eller hjemmekontor.
Kjeller & Uteområde
Kjellerstue Ny og luksuriøs kjellerstue fra 2023, med lydabsorberende akustikkplater i taket og mørke vegger. Både kjellerstue og soverom i kjelleretasje har varmefolie i gulvet som gir en varm og behagelig atmosfære, selv på kalde vinterdager. Kinoutstyr og fastmonterte sonoshøytalere i bolig følger ikke med, men selger er fleksibel på å selge dette om det er ønskelig. Soverom Nyetablert soverom i kjeller er inspisert av takstmann. Det har godkjent rømningsvei og det er innvilget ferdigattest for bruksendring av kjellerrom fra tilleggsdel til hoveddel. Vaskerom Vaskerom i kjelleretasje er praktisk og delikat. Det er opplegg for vaskemaskin og tørketrommel. Det har høyskap og benkeskap, samt stor benkeplate av laminat med komposittvask. Her er det godt med arbeidsplass og oppbevaringsmuligheter. Bod Stor innvendig bod på 12.5 kvm med fastmontert hylleløsning på 3 av 4 vegger og praktisk verktøystasjon. Rommet kan ved enkle modifikasjoner (fastmontert kasse mot vegg) få godkjent rømningsvei også fra dette rommet. Terrasse/uteområde Stor terrasse med spesialbygde blomsterkasser og benk som medfølger. Stor plass til sittegruppe, spisebord og grillområde. Her er det gode solforhold med sol til langt ut på kvelden. Hagen er vesentlig opparbeidet med et nydelig magnoliatre, flere hagebed og bærbusker. Overflater Vegger: Hovedsakelig malte flater, malte betongvegger i kjeller. Flere rom har farget sparkel som gir et moderne og delikat preg. Gulv: Primært eksklusiv høytrykkslaminat. Et soverom i 2.etg, samt bod i kjeller har eikeparkett. Fliser på bad og wc. Vaskerom har gulvbelegg i vinyl. Himling: Primært malte overflater. Kjellerstue av lydabsorberende akustikkplater.
Energi & Dokumentasjon
Oppvarming Elektrisk oppvarming med panelovner, samt peisovn i stue i første etasje. Varmekabler på bad, wc, vaskerom, kjellerstue og soverom i kjeller. Dokumentasjon Ferdigattest fra byggedato 06.11.79. Ferdigattest - erstatte bærevegg med limtredrager 08.09.2025. Ferdigattest - tilbygg, fasadeendring samt bruksendring kjeller 30.09.2025. Samsvarserklæring fra elektrisk arbeid (Elektroidé AS) 29.02.2024. Sluttrapport for Bad, wc og vaskerom (Fliskunstnerne AS) 10.09.2025.
Økonomi/drift
Eiendomsskatt Det er ikke eiendomsskatt i Bærum per i dag. Felleskostnader Totale felleskostnader pr. månedlige intervall 12 918 kr. IN Kapitalkostnader 8 258 kr. Strøm 46 kr. Fibernett 326 kr. Felleskostnader 4288 kr. Sum andel fellesgjeld (kun lån) kr 1 357 649,01,-, pr. dags dato. Det er mulighet for individuell nedbetaling på hele eller deler av fellesgjeld (IN-lån). Faste løpende kostnader Utover felleskostnader må det påregnes utgifter til bl.a. energiforbruk/varme og innboforsikring. Spesifikasjoner av fellesgjeld Lånenummer: 98207903922 Bank: OBOS-banken AS Annuitetslån, 4 terminer per år. Rentesats per 03.09.2025 dato, 5.10% Saldo per 01.10.2025: Restsaldo: 102 943 824 Andel av saldo: 1 357 649 Innfrielsesdato: 30.12.2049 Forsikring med polisenummer Gjensidige Forsikring ASA Polisenummer: 90014596 Formueverdi Formueverdi for inntekstsåret 2024: Som primærbolig kr. 909 720 Som sekundærbolig kr. 3 638 880,- Borettslag Helgerud Terrasse borettslag. Orgnr: 951388653 Forretningsfører OBOS Styregodkjenning En andelseier har rett til å overdra sin andel, men erververen må godkjennes av borettslaget for at ervervet skal bli gyldig overfor borettslaget. Borettslaget kan nekte godkjenning når det er saklig grunn til det. Forkjøpsrett Det foreligger forkjøpsrett for borettslagets medlemmer og USBL medlemmer. Forhåndsavklaring er igangsatt. Usbls medlemmer har frist til fredag, 10.10.2025 kl 23:59 for å gjøre forkjøpsretten gjeldende. Ta kontakt med selger eller forretningsfører for ytterligere opplysninger om meldefristen.
Annet
Renovasjon & oppgraderinger Følgende oppgradering er gjennomfør de senere årene. 2025: - Malt og bygd plassbygd pult i soverom i andre etasje. 2023: - Renovert soverom i kjeller - Renovert gang kjeller - Renovert kjellerstue - Lagt gulvvarme i kjellerstue og soverom 2022: - Taktekking skiftet, i regi av borettslaget. 2021: I 2021 ble det gjennomført store renovasjoner primært i første og andre etasje: - Etablert bad i 2. etasje. - Utvidet og renovert toalett-rom i 1. etasje. - Etablert vaskerom i kjeller. - Fasade: Utvidet inngangsparti. Etablert to lysgraver og satt inn to vinduer i kjeller. - Oppgradert det elektriske anlegget (se samsvarserklæringer). - Oppgradert installasjoner for vann- og avløp. - Lagt gulvvarme i toalett-rom, entre og bad. - Soverom: Renovert 2 soverom i andre etasje. - Renovert trapp og gang i første og andre etasje - Renovert kjøkken og stue. 2020: - Borettslaget har gjennomført utskiftning av vinduer og terrassedører samt ny utvending kledning og etterisolering. Radonmåling Det er ikke foretatt målinger av radonforkomst i boligen, men ngus kart over radonforekomstrisiko viser på salgstidspunktet moderat til lav risiko for radon. Deres laveste nivå. Vi oppfordrer kjøper til å undersøke videre. Dyrehold Dyrehold er tillat iht. husordensreglene.
Offentlige forhold - Forpliktelser, rettigheter og servitutter
Forpliktelser, rettigheter og servitutter Eiendommens servitutter følger av dens grunnbokblad. For servituttet eldre enn fradelingsdato og eventuelle arealoppføringer som kan ha betydning for denne matrikkelenhet henvises det til hovedbruk / avgivereiendommen. For festenummer gjelder henvisningen servitutter eldre enn festekontrakten. Utdrag fra grunnbok: 2009/844899-1/200 06.11.2009 FELLES PANTEDOK BOR.INNSK Beløp: NOK 43 050 000 Panthaver: BOLIGBYGGELAGET USBL LØPENR: 10578016 2017/701001-1/200 29.06.2017 21:00 ** PRIORITETSBESTEMMELSE VEKET FOR: PANTEDOKUMENT 2017/658484-1 2020/3071040-1/200 23.09.2020 15:34 PANTEDOKUMENT Beløp: NOK 124 000 000 Panthaver: OBOS-BANKEN AS ORG.NR: 911 986 884 ELEKTRONISK INNSENDT GRUNNDATA 1978/917222-1/100 09.10.1978 REGISTRERING AV GRUNN Denne matrikkelenhet utskilt fra: KNR: 3201 GNR: 85 BNR: 1 2020/1565959-1/200 01.01.2020 00:00 OMNUMMERERING VED KOMMUNEENDRING Tidligere: KNR: 0219 GNR: 85 BNR: 58 2024/81274-1/200 01.01.2024 00:00 OMNUMMERERING VED KOMMUNEENDRING Tidligere: KNR: 3024 GNR: 85 BNR: 58 For eventuelle utleggs- og arrestforretninger, samt forbehold tatt ved avhendelse, som tinglyses samme dag som andre frivillige rettsstiftelser, gjelder særskilte prioritetsregler, se tinglysingsloven § 20 andre ledd og § 21 tredje ledd. Borett Borettslaget eier tomten og borettslagsandelene har borett. Hver andel gir enerett til å bruke en bolig i borettslaget og rett til å nytte fellesarealer til det de er beregnet eller vanlig brukt til, og til annet som er i samsvar med tiden og forholdene. (Se opplysninger om borett i borettslagets vedtekter 4.1 Borett.)
Offentlige forhold - Utleie, reguleringer og vei/vann/kloakk
Utleie Iht.brl. § 5-4 (2) har andelseier mulighet til korttidsleie i opptil 30 dager i løpet av året. Andelseier kan ikke uten samtykke fra styret i borettslaget overlate bruken av boligen til andre. Andelseier kan overlate boligen til andre i inntil 3 år hvis andelseier har bodd i boligen i minst 1 av de siste 2 årene, jf. Borettslagsloven §5-5. Godkjenning kan bare nektes dersom brukerens forhold gir saklig grunn til det. Godkjenning kan nektes dersom brukeren ikke kunne blitt andelseier. Utleie i andre tilfeller kan godkjennes ved særlige grunner, jf. Borettslagslova §5-6. Se også borettslagets vedtekter og konferer selger ved spørsmål. Regulering - 202101: Kommuneplanens arealdel 2022-2042 - 2016018: Områderegulering Franzefoss - 1973180: Reguleringsplan for Helgerud/Dønski/Hamang/Evje Energidepartementet har gitt Statnett konsesjon til en kraftledning på 420 kilovolt (kV) fra Hamang transformatorstasjon i Bærum til Smestad transformatorstasjon i Oslo, via Bærum transformatorstasjon. Departementet har bestemt at ledningen skal bygges som et kabelanlegg i grøft og tunnel. Dette betyr at høyspentledningen som går over sykehusparkeringen sør for nabolaget skal legges i bakken. (https://www.regjeringen.no/no/aktuelt/ny-kraftledning-mellom-hamang-og-smestad-skal-legges-som-kabel-i-bakken/id3031947/) Vi oppfordrer kjøper til å sette seg inn i reguleringer gjeldende for området. Vei/vann/kloakk Eiendommen har adkomst via offentlig vei. Eiendommen er tilknyttet kommunalt ledningsnett via private stikkledninger. Borettslaget er selv ansvarlig for private stikkledninger til bygningen.
Omkostninger
7 620 000 kr (Prisantydning) 1 357 649 kr (Andel av fellesgjeld) --- 8 977 649 kr (Pris inkl. fellesgjeld) Omkostninger 7 938 kr (Gebyr for forhåndsavklaring) 8 200 kr (HELP boligkjøperforsikring (valgfritt)) 545 kr (Tinglysing av pantedokument) 545 kr (Tinglysing av skjøte) --- 17 228 kr (Omkostninger totalt) --- 8 994 877 kr (Totalpris inkl. omkostninger) NB: Regnestykket forutsetter at det kun tinglyses én låneobligasjon og at eiendommen selges til prisantydning. Det tas forbehold om endringer i offentlige og private gebyrer. Selger er selv ansvarlig for følgende gebyr: 545 kr (Panterett med urådighet) 6 570 kr (Eierskiftegebyr)
Matrikkelinformasjon
Kommunenr: 3201
Gårdsnr: 85
Bruksnr: 58
Trygg og profesjonell kjøpsprosess
- 1
Møt selger på visning
Du møter selger direkte på visning - den personen som vet hvor sola kommer først inn om morgenen og hvor de beste skiløypene ligger. Få all informasjon fra første hånd og still spørsmål direkte til den som kjenner boligen best.
- 2
Sikker budprosess med BankID
Legg inn bud enkelt og sikkert med BankID-verifisering. Du får SMS-varsler ved nye bud og kan følge budrunden i sanntid. Systemet er mer oversiktlig og lettere å bruke enn tradisjonelle meglersider.
- 3
Profesjonelt oppgjør og overtakelse
Oppgjørsselskap med konsesjon fra Finanstilsynet håndterer alle formelle aspekter. Kontrakt signeres digitalt med BankID, og overtakelsesprotokollen gjennomføres enkelt på telefon. Alt foregår i henhold til avhendingsloven.


Vurderer du å selge selv?
Her kan du sjekke hvordan Propr fungerer - helt uforpliktende.
Ring oss på 23 90 59 00 (9–16, ukedager), eller legg igjen ditt telefonnummer så ringer vi deg opp.
Aktuelt
Kundeservice
Chat: 9–19 på hverdager, 12–20 på søndager
Send e-post: post@propr.no
Ring oss: 23 90 59 00 (10–16, ukedager)