



































GAMLE FREDRIKSTAD / Gamlebyen
Sentral, pen og lys selveierleilighet. God planløsning
Prisantydning
Størrelse (BRA)
Internt bruksareal (BRA-I)
Boligtype
Eieform
Etasje
Fellesutgifter
- Byggeår
- 2018
- Fellesgjeld
- 33 965 kr
- Felleskost pr mnd
- 1 397 kr
- Kommunale avgifter
- 12 860 kr
- Tomtetype
- Eiet tomt
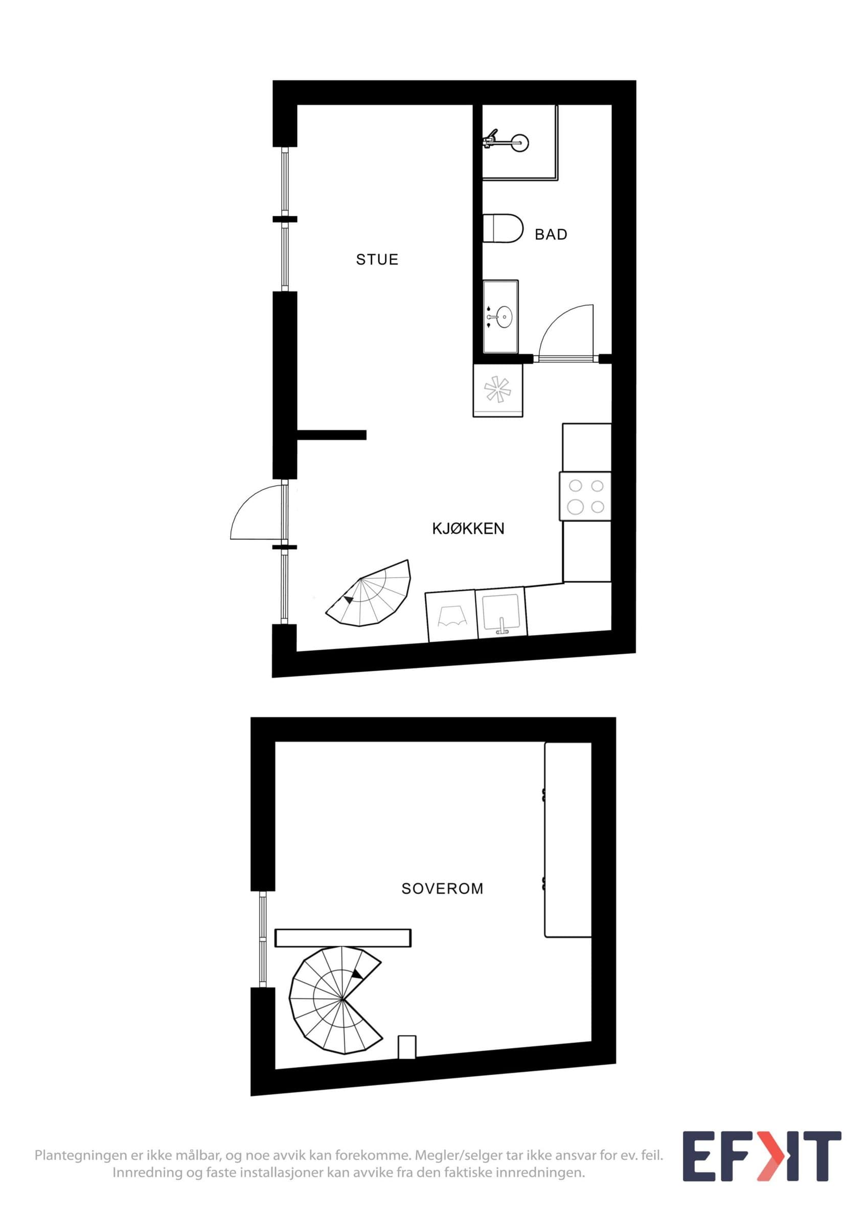
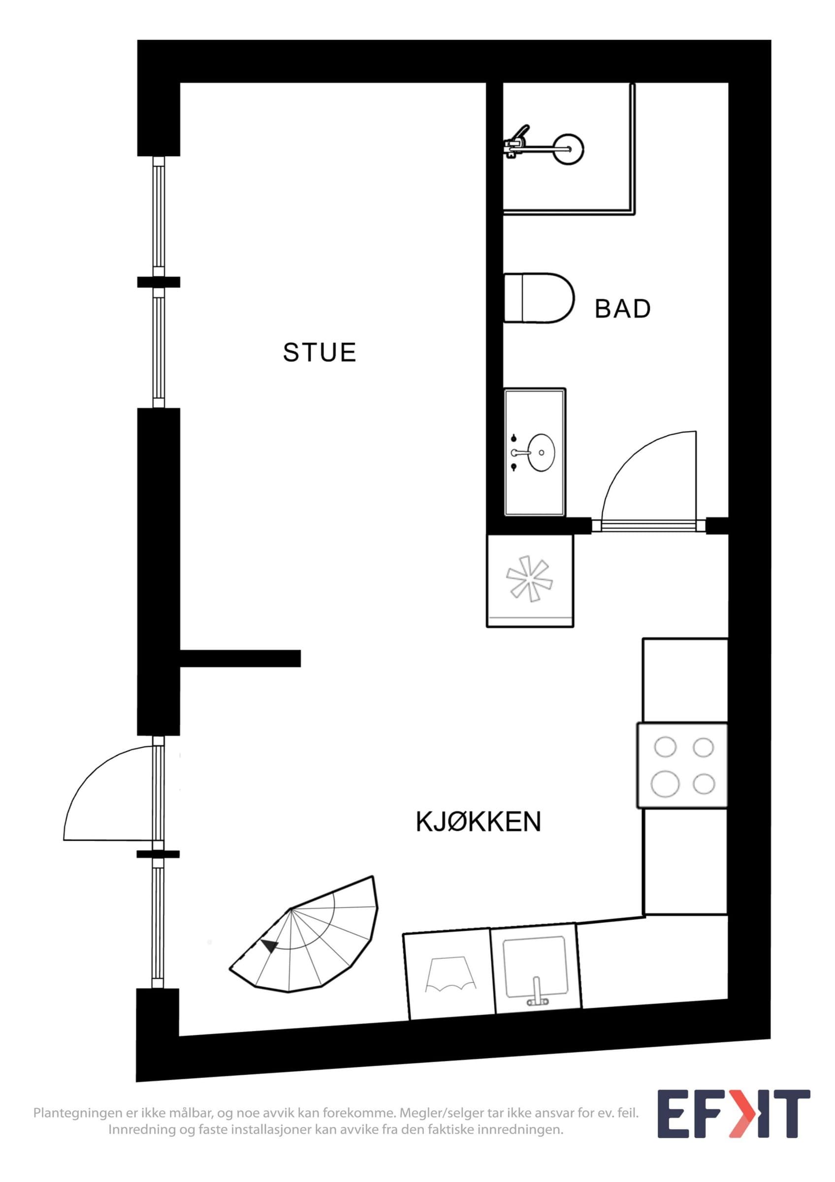
Romtyper
Soverom
Baderom
Stue
Bod
Kjøkken
Beliggenhet
Voldportgaten 75 ligger i et attraktivt område i sentrum av ærverdige og vakre Gamlebyen i Fredrikstad kommune. Dette er Nordens best bevarte festningsby med voller, brosteinsbelagte gater og 1700- tallshus. Området består av eldre og vernet bolig- og næringsbebyggelse. I Gamlebyen kan man nyte mat/drikke fra hyggelige caféer / restauranter og for øvrig oppleve den spesielle atmosfæren denne delen av Fredrikstad innehar. Her er det flere museum, kirke, koselige detaljbutikker samt lørdagsmarked på sommeren. Det er utsikt mot nærområdet med noe begrenset solforhold i bakgård pga. omkringliggende bebyggelse. Her er man i et stille og rolig område med et utvalg av hyggelige fortausbutikker. Kort vei til skole, barnehage, lekeplass, golfbane og Kongstenhallen. Fra Gamlebyen er det hyppig og gratis ferjeforbindelse til Fredrikstad sentrum.
Om boligen
Hele leiligheten er totalrenovert i 2017/2018. Innvendig er det en gjennomgående bra standard, og bruks slitasjen anses som normal på innvendige overflater. Gulv er belagt med fliser og laminat. Vegger er kledd med panelplater, fliser og malte, slette vegger. Det er himlingsplater i tak. Leiligheten har en enkel og praktisk planløsning. Kjøkkenet har innredning med profilerte fronter og laminat benkeplate. Det er opplegg for frittstående hvitevarer, og ventilator er knyttet til avtrekk. Kjøkkenet som var nytt i 2017/2018 er i bra stand og har sjarmerende takbjelker i tre med innfelt downlights. Åpen stue/kjøkkenløsning, lyst og pent. Badet er flislagt og innredet med dusj hjørne, vegg hengt toalett, servant og innredning med speil og lys. Det er oppvarming via varmekabel og utlufting via elektrisk vifte. Vaskemaskinen er plassert på kjøkkenet. Rett ved inngangen er en fin vindeltrapp som fører opp til 2. etasje og soverommet. Her er det svært høyt under taket, og lyst og luftig, og det er god plass for kontorpult og oppbevaring av klær. Lyd-/brannskille mot naboleiligheten har blitt forbedret under renoveringen i 2017/2018. Elektrisk anlegg Sikringsskap har automatsikringer og er plassert i fellesgang. 32 A overspenningsvern og totalt 7 fordelingskurser med automatsikringer. Skjult elektrisk anlegg som ble nytt under oppussingen i 2017/2018. VVS-installasjoner Vannrør av typen plast (rør-i-rør) og avløprør av PVC (plast). Rørskap med drenering plassert på baderommet. Varmtvannsbereder på 120 l er plassert på baderommet. Alt innvendig røropplegg og utvendig VA frem til offentlig i gate er skiftet i 2017/2018. Hvitevarer og ute møbler inngår ikke, men her kan det avtales pris ved kjøp, disse er kjøpt i 2022 så disse er så som nytt. I tillegg er det blitt fornyet ett røykvarsler system som er direkt koblet til Fredrikstad brannvesen, dette er det ingen kostnader på, det blir dekket av Fredrikstad kommune, grunnen til dette er at Gamlebyen er en verneverdig by, det satt opp en varsler i 1.etg og en i 2etg/soverom.
Annet
Sjarmerende og oppusset selveierleilighet - Totalrenovert i 2017/2018 - Lave felleskostnader Velkommen til Voldportgaten 75 - dette er en moderne og oppusset selveierleilighet i sjarmerende Gamlebyen. Leiligheten fremstår som innbydende med en smart og arealeffektiv planløsning. Her finner man blant annet stue, bad, kjøkken og hems med soverom. Hele leiligheten er totalrenovert i 2017/2018 og har en tiltalende og god standard. Her har man mulighet til å bosette seg idylliske Gamlebyen. Sameiet har lave felleskostnader på kr. 1397,-. Voldportgaten 75 ligger i et attraktivt område i sentrum av ærverdige og vakre Gamlebyen i Fredrikstad kommune. Dette er Nordens best bevarte festningsby med voller, brosteinsbelagte gater og 1700- tallshus. Området består av eldre og vernet bolig- og næringsbebyggelse. Flere flotte kaféer, restauranter, museer en spasertur unna.
Areal
Selveierleilighet Bruksareal 1.etg. BRA: 25 m². Kjøkken, stue og bad 2.etg. BRA: 15 m². Soverom Primærrom 1.etg. P-rom: 25 m². Kjøkken, stue og bad 2.etg. P-rom: 15 m². Soverom Sekundærrom 1.etg. S-rom: 0 m². 2.etg. S-rom: 0 m². ANTALL SOVEROM 1 Se for øvrig informasjon under punktet «areal», og eventuell kommentar under «innhold» feltet.
Eierform
Eier (eierseksjon) Eierforholdet reguleres av eierseksjonsloven av 16.06 2017 nr. 65. Med eierseksjon forstås sameieandel i bebygd eiendom med tilknyttet enerett til bruk av bolig. Ingen kan direkte eller indirekte erverve mer en to boligseksjoner i et boligsameie jf. eierseksjonsloven § 23. Dersom et erverv har funnet sted i strid med eierseksjonslovens regler kan Kartverket nekte overskjøting. Dersom overskjøting blir nektet, er kjøper likevel forpliktet til å gjennomføre handelen med selger, og oppgjør til selger vil finne sted tross manglende overskjøting. Seksjonseiere kan holdes solidarisk ansvarlig for andres mislighold av fellesutgiftene i forhold til sin sameiebrøk. I følge Eierseksjonsloven skal det foreligge vedtekter i et sameie. Vedtektene kan endres iht. bestemmelsene i lov om eierseksjon. Manglende sameievedtekter medfører ikke at det er et «ulovlig» sameie, men sameierne anbefales å bidra til at det opprettes slike vedtekter som loven tilsier.
Omkostninger
2 815 000 kr (Prisantydning) 33 965 kr (Andel av fellesgjeld) --- 2 848 965 kr (Pris inkl. fellesgjeld) Omkostninger 10 900 kr (HELP boligkjøperforsikring (valgfritt)) 71 200 kr (Dokumentavgift) 545 kr (Tinglysing av pantedokument) 545 kr (Tinglysing av skjøte) --- 83 190 kr (Omkostninger totalt) --- 2 932 155 kr (Totalpris inkl. omkostninger) NB: Regnestykket forutsetter at det kun tinglyses én låneobligasjon og at eiendommen selges til prisantydning. Det tas forbehold om endringer i offentlige og private gebyrer. Selger er selv ansvarlig for følgende gebyr: 3 125 kr (Eierskiftegebyr) 545 kr (Panterett med urådighet)
Matrikkelinformasjon
Kommunenr: 3107
Gårdsnr: 302
Bruksnr: 80
Seksjonsnr: 5
Trygg og profesjonell kjøpsprosess
- 1
Møt selger på visning
Du møter selger direkte på visning - den personen som vet hvor sola kommer først inn om morgenen og hvor de beste skiløypene ligger. Få all informasjon fra første hånd og still spørsmål direkte til den som kjenner boligen best.
- 2
Sikker budprosess med BankID
Legg inn bud enkelt og sikkert med BankID-verifisering. Du får SMS-varsler ved nye bud og kan følge budrunden i sanntid. Systemet er mer oversiktlig og lettere å bruke enn tradisjonelle meglersider.
- 3
Profesjonelt oppgjør og overtakelse
Oppgjørsselskap med konsesjon fra Finanstilsynet håndterer alle formelle aspekter. Kontrakt signeres digitalt med BankID, og overtakelsesprotokollen gjennomføres enkelt på telefon. Alt foregår i henhold til avhendingsloven.


Vurderer du å selge selv?
Her kan du sjekke hvordan Propr fungerer - helt uforpliktende.
Ring oss på 23 90 59 00 (9–16, ukedager), eller legg igjen ditt telefonnummer så ringer vi deg opp.
Aktuelt
Kundeservice
Chat: 9–19 på hverdager, 12–20 på søndager
Send e-post: post@propr.no
Ring oss: 23 90 59 00 (10–16, ukedager)