

































































HOVIN I GAULDAL
Fantastisk og tiltalende 4-roms halvpart av tomannsbolig i barnevennlig område med terrasse og carport
Prisantydning
Størrelse (BRA)
Internt bruksareal (BRA-I)
Boligtype
Eieform
Antall etasjer
- Tomteareal
- 980 m²
- Byggeår
- 2020
- Kommunale avgifter
- 16 000 kr
- Tomtetype
- Eiet tomt
Romtyper
Soverom
Baderom
Stue
Bod
Kjøkken
Om tomten
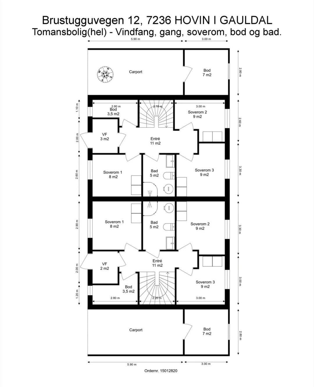
Velkommen til Brustugguvegen 12 - og denne stilige halvparten ferdigstilt i 2020. Eiendommen ligger fint til i et barnevennlig boligområde med gangavstand til skole og barnehage. Fra boligen tar det ca. 20 minutter til Melhus og ca. 40 minutter til Sentrum av Trondheim. Togstasjonen og E6 gjør det enkelt å pendle til/fra. Kvaliteter du vil sette pris på: - Praktisk planløsning og utstrakte vindusflater som sikrer rikelig med naturlig dagslys. - Lekkert kjøkken fra Norema med integrerte hvitevarer. - Romslig stue med god plass til både sitte- og spisegruppe. - Sørvestvendt balkong med gode solforhold. - To pent flislagte bad med gulvvarme, hvor et også har opplegg for vaskemaskin. - Tre store soverom med plass til garderobe. - Carport med sportsbod.
Omkostninger
15 900 kr (HELP boligkjøperforsikring (valgfritt)) 80 000 kr (Dokumentavgift) 545 kr (Tinglysing av pantedokument) 545 kr (Tinglysing av skjøte) --- 96 990 kr (Omkostninger totalt) --- 3 296 990 kr (Totalpris inkl. omkostninger) NB: Regnestykket forutsetter at det kun tinglyses én låneobligasjon og at eiendommen selges til prisantydning. Det tas forbehold om endringer i offentlige og private gebyrer. Selger er selv ansvarlig for følgende gebyr: 545 kr (Panterett med urådighet)
Matrikkelinformasjon
Kommunenr: 5028
Gårdsnr: 238
Bruksnr: 294
Seksjonsnr: 2
Trygg og profesjonell kjøpsprosess
- 1
Møt selger på visning
Du møter selger direkte på visning - den personen som vet hvor sola kommer først inn om morgenen og hvor de beste skiløypene ligger. Få all informasjon fra første hånd og still spørsmål direkte til den som kjenner boligen best.
- 2
Sikker budprosess med BankID
Legg inn bud enkelt og sikkert med BankID-verifisering. Du får SMS-varsler ved nye bud og kan følge budrunden i sanntid. Systemet er mer oversiktlig og lettere å bruke enn tradisjonelle meglersider.
- 3
Profesjonelt oppgjør og overtakelse
Oppgjørsselskap med konsesjon fra Finanstilsynet håndterer alle formelle aspekter. Kontrakt signeres digitalt med BankID, og overtakelsesprotokollen gjennomføres enkelt på telefon. Alt foregår i henhold til avhendingsloven.


Vurderer du å selge selv?
Her kan du sjekke hvordan Propr fungerer - helt uforpliktende.
Ring oss på 23 90 59 00 (9–16, ukedager), eller legg igjen ditt telefonnummer så ringer vi deg opp.
Aktuelt
Kundeservice
Chat: 9–19 på hverdager, 11–18 på søndager
Send e-post: post@propr.no
Ring oss: 23 90 59 00 (10–16, ukedager)