































ULSET / Blokkhaugen
Trivelig 2-roms andelsleilighet sentralt i Åsane, med vestvendt balkong
Prisantydning
Størrelse (BRA)
Internt bruksareal (BRA-I)
Boligtype
Eieform
Etasje
Fellesutgifter
- Tomteareal
- 15 288 m²
- Byggeår
- 1976
- Fellesgjeld
- 118 096 kr
- Fellesformue
- 18 710 kr
- Felleskost pr mnd
- 4 764 kr
- Tomtetype
- Eiet tomt
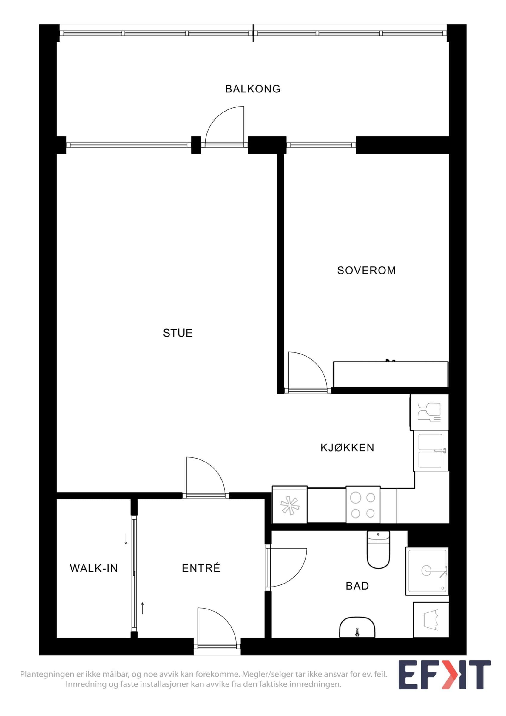
Romtyper
Soverom
Baderom
Stue
Bod
Kjøkken
Om boligen
Leiligheten har stue med åpen løsning til kjøkkenet. Soverommet er på 11,1 m2 og har en romslig skyvedørsgarderobe. Bad med dusjkabinett og opplegg til vaskemaskin. Romslig gang med godt med oppbevaringsmuligheter. Det er varmekabler på bad og i stue/kjøkken. Tilhørende 2 eksterne boder.
Beliggenhet
Leiligheten ligger sentralt i Åsane med Åsane senter som nærmeste nabo. Det er også svært kort avstand til Åsane terminal med hyppige buss avganger i alle retninger. Busser til Bergen sentrum går ca hvert 5. min og i rushtiden går det også ekspressbusser mellom Åsane terminal og Bergen sentrum. Gangavstand til bland annet Horisont, Åsane Arena og flere fine turområder.
Annet
Varmtvann, TV og internett inkludert i fellesutgiftene. Det er ikke garasjeplass med leiligheten, men det kan leies gjennom borettslaget med eller uten elbil-lader. 450 kr per mnd med elbil-lader og 350 per mnd uten. Det er forkjøpsrett i dette borettslaget.
Omkostninger
2 490 000 kr (Prisantydning) 118 096 kr (Andel av fellesgjeld) --- 2 608 096 kr (Pris inkl. fellesgjeld) Omkostninger 300 kr (Innmelding i BOB) 8 200 kr (HELP boligkjøperforsikring (valgfritt)) 545 kr (Tinglysing av pantedokument) 545 kr (Tinglysing av skjøte) --- 9 590 kr (Omkostninger totalt) --- 2 617 686 kr (Totalpris inkl. omkostninger) NB: Regnestykket forutsetter at det kun tinglyses én låneobligasjon og at eiendommen selges til prisantydning. Det tas forbehold om endringer i offentlige og private gebyrer. Selger er selv ansvarlig for følgende gebyr: 545 kr (Panterett med urådighet) 6 570 kr (Eierskiftegebyr)
Matrikkelinformasjon
Kommunenr: 4601
Gårdsnr: 188
Bruksnr: 202
Trygg og profesjonell kjøpsprosess
- 1
Møt selger på visning
Du møter selger direkte på visning - den personen som vet hvor sola kommer først inn om morgenen og hvor de beste skiløypene ligger. Få all informasjon fra første hånd og still spørsmål direkte til den som kjenner boligen best.
- 2
Sikker budprosess med BankID
Legg inn bud enkelt og sikkert med BankID-verifisering. Du får SMS-varsler ved nye bud og kan følge budrunden i sanntid. Systemet er mer oversiktlig og lettere å bruke enn tradisjonelle meglersider.
- 3
Profesjonelt oppgjør og overtakelse
Oppgjørsselskap med konsesjon fra Finanstilsynet håndterer alle formelle aspekter. Kontrakt signeres digitalt med BankID, og overtakelsesprotokollen gjennomføres enkelt på telefon. Alt foregår i henhold til avhendingsloven.


Vurderer du å selge selv?
Her kan du sjekke hvordan Propr fungerer - helt uforpliktende.
Ring oss på 23 90 59 00 (9–16, ukedager), eller legg igjen ditt telefonnummer så ringer vi deg opp.
Aktuelt
Kundeservice
Chat: 9–19 på hverdager, 12–20 på søndager
Send e-post: post@propr.no
Ring oss: 23 90 59 00 (10–16, ukedager)