

















































ELVERUM / Texas-Travbanen
Oppgradert enebolig med garasje og hage. Med utleiemulighet.
Prisantydning
Størrelse (BRA)
Internt bruksareal (BRA-I)
Boligtype
Eieform
Antall etasjer
- Tomteareal
- 806 m²
- Byggeår
- 1925
- Tomtetype
- Eiet tomt
Romtyper
Soverom
Baderom
Stue
Bod
Kjøkken
Om boligen
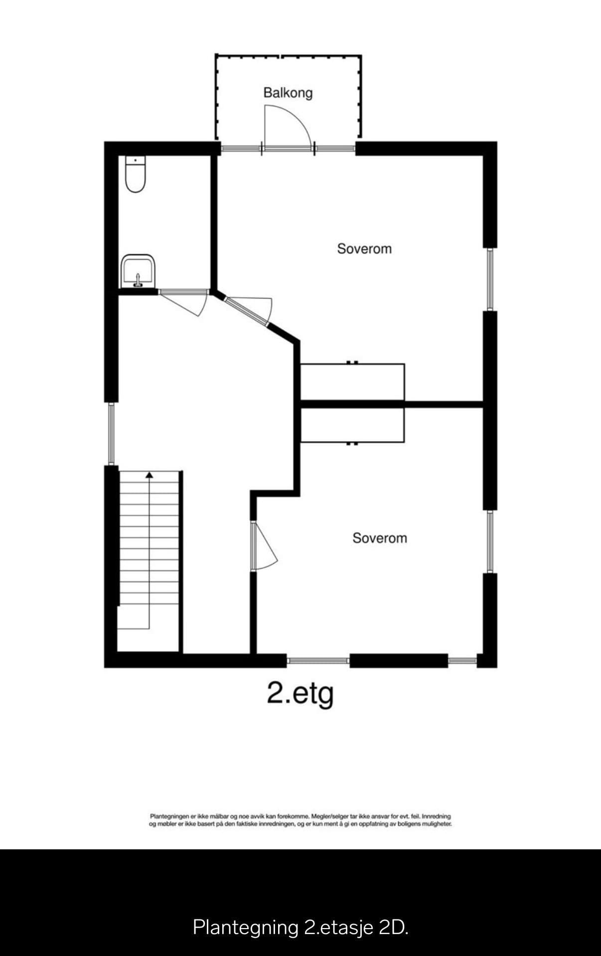
Velkommen til Vestad og Grundsetvegen 1C! Her kan vi presentere en enebolig med familivennlig beliggenhet, i et godt etablert boligområde på Vestad. Eneboligen har stue, kjøkken, bad, toalettrom og to soverom fordelt på to etasjer. Kjeller med god lagringsplass. Frittstående dobbelgarasje Eiendommen har fått flere oppgraderinger, som blant annet nytt tak i 2021 og ny kjøkkeninnredning i 2017 og det er gjort diverse overflatebehandlinger innvendig.
Beliggenhet
Eiendommen ligger ca. 2 km fra Elverum sentrum, og det er kort vei både til nærbutikk, barneskole, barnehage og høyskole. Nærhet til oppkjørte skiløyper på vinterstid
Annet
Mulighet for skattefri utleie.
Omkostninger
15 900 kr (HELP boligkjøperforsikring (valgfritt)) 47 370 kr (Dokumentavgift) 545 kr (Tinglysing av pantedokument) 545 kr (Tinglysing av skjøte) --- 64 360 kr (Omkostninger totalt) --- 1 959 360 kr (Totalpris inkl. omkostninger) NB: Regnestykket forutsetter at det kun tinglyses én låneobligasjon og at eiendommen selges til prisantydning. Det tas forbehold om endringer i offentlige og private gebyrer. Selger er selv ansvarlig for følgende gebyr: 545 kr (Panterett med urådighet)
Matrikkelinformasjon
Kommunenr: 3420
Gårdsnr: 13
Bruksnr: 148
Trygg og profesjonell kjøpsprosess
- 1
Møt selger på visning
Du møter selger direkte på visning - den personen som vet hvor sola kommer først inn om morgenen og hvor de beste skiløypene ligger. Få all informasjon fra første hånd og still spørsmål direkte til den som kjenner boligen best.
- 2
Sikker budprosess med BankID
Legg inn bud enkelt og sikkert med BankID-verifisering. Du får SMS-varsler ved nye bud og kan følge budrunden i sanntid. Systemet er mer oversiktlig og lettere å bruke enn tradisjonelle meglersider.
- 3
Profesjonelt oppgjør og overtakelse
Oppgjørsselskap med konsesjon fra Finanstilsynet håndterer alle formelle aspekter. Kontrakt signeres digitalt med BankID, og overtakelsesprotokollen gjennomføres enkelt på telefon. Alt foregår i henhold til avhendingsloven.


Vurderer du å selge selv?
Her kan du sjekke hvordan Propr fungerer - helt uforpliktende.
Ring oss på 23 90 59 00 (9–16, ukedager), eller legg igjen ditt telefonnummer så ringer vi deg opp.
Aktuelt
Kundeservice
Chat: 9–19 på hverdager, 12–20 på søndager
Send e-post: post@propr.no
Ring oss: 23 90 59 00 (10–16, ukedager)