













































































Majorstuen
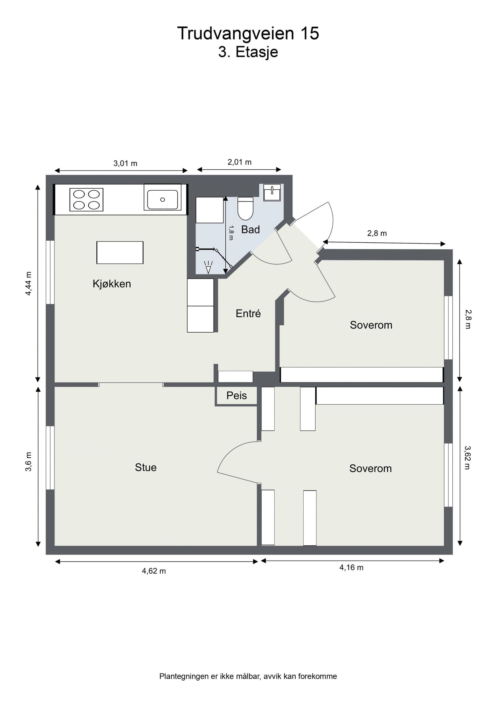
Svært lekker og totalrenovert 3-roms leilighet i 3.etasje i bygård sentralt på Majorstua. Leiligheten har etter oppussing en gjennomtenkt og god planløsning med store rom, estetisk pene og smarte løsninger som blant annet mye garderobeplass. Ellers består leiligheten av: entré, bad, kjøkken, stue og to soverom, samt tilgang til solrik og stor brannbalkong med plass til sittegruppe. 1-stavs eikeparkett med deilig gulvvarme. God takhøyde og store vindusflater. -Totalrenovert i 2019 -All dokumentasjon foreligger! -Varme i alle gulv -Skjult elektrisk anlegg med tilfredsstillende mange stikkontakter -Soverommene vendt mot bakgård -Stemningsfull peis -Høy standard -Plassbygde skap/garderobe (over 11 meter totalt) -Plassbygd bokhylle med underskap -3 boder med masse oppbevaringsplass (kjeller og loft) -Lave felleskostnader -Godt drevet aksjelag -Dyrehold tillatt
Leiligheten har en svært god beliggenhet. Det er stille og rolig her, men om man går et lite minutt, så går det busser i ulike retninger, det samme med trikkene, for ikke å snakke om t-banen, som tar deg til Nasjonalteateret på få minutter. Vi kan bruke under 30 minutter fra vi går ut døra, til vi står i sikkerhetskontrollen på Gardermoen. Man har alt i umiddelbar nærhet. Cafeer, restauranter, puber, klesbutikker (Bogstadveien), senter (vinmonopol), dagligvarer (også åpent søndager), bibliotek, parker og lekeplasser. Det er med tungt hjerte at leiligheten selges og vi flytter bort fra dette fine nabolaget.
Om du ikke har mulighet til å komme på oppsatt visning, holder jeg gjerne privatvisning. Ta kontakt på melding / tekstmeldig, så finner vi en tid. Salgsoppgaven vil bli oppdatert med flere dokumenter etterhvert.
Det er godt med parkeringsplasser og jeg har aldri hatt vanskeligheter med å finne plass. Selv om man kommer sent hjem. De vanskeligste dagene har jeg måtte gå 200 meter. Det er også et godt tilbud for EL-biler med mange ladeplasser i umiddelbar nærhet. I tillegg til den nyoppussede bensinstasjonen med både hurtigladere og vaskehall. Om man ønsker garasjeplass finnes det både til salgs og leie i umiddelbar nærhet.
8 700 000 kr (Prisantydning) 64 815 kr (Andel av fellesgjeld) --- 8 764 815 kr (Pris inkl. fellesgjeld) Omkostninger 8 200 kr (HELP boligkjøperforsikring (valgfritt)) 3 500 kr (Noteringsgebyr pant) 7 981 kr (Transportgebyr) --- 19 681 kr (Omkostninger totalt) --- 8 784 496 kr (Totalpris inkl. omkostninger) NB: Regnestykket forutsetter at det kun tinglyses én låneobligasjon og at eiendommen selges til prisantydning. Det tas forbehold om endringer i offentlige og private gebyrer. Selger er selv ansvarlig for følgende gebyr: 3 500 kr (Noteringsgebyr urådighet/pantsperre)
Kommunenr: 301
Gårdsnr: 46
Bruksnr: 18
Du møter selger direkte på visning - den personen som vet hvor sola kommer først inn om morgenen og hvor de beste skiløypene ligger. Få all informasjon fra første hånd og still spørsmål direkte til den som kjenner boligen best.
Legg inn bud enkelt og sikkert med BankID-verifisering. Du får SMS-varsler ved nye bud og kan følge budrunden i sanntid. Systemet er mer oversiktlig og lettere å bruke enn tradisjonelle meglersider.
Oppgjørsselskap med konsesjon fra Finanstilsynet håndterer alle formelle aspekter. Kontrakt signeres digitalt med BankID, og overtakelsesprotokollen gjennomføres enkelt på telefon. Alt foregår i henhold til avhendingsloven.


Her kan du sjekke hvordan Propr fungerer - helt uforpliktende.
Ring oss på 23 90 59 00 (9–16, ukedager), eller legg igjen ditt telefonnummer så ringer vi deg opp.
Chat: 9–19 på hverdager, 11–18 på søndager
Send e-post: post@propr.no
Ring oss: 23 90 59 00 (10–16, ukedager)