















































































KAUTOKEINO / Kautokeino-Hánnomaras
Midt i Kautokeino, nært alt. Bud mottatt med frist 11/4
Prisantydning
Størrelse (BRA)
Internt bruksareal (BRA-I)
Boligtype
Eieform
Etasje
Fellesutgifter
- Tomteareal
- 1 681 m²
- Byggeår
- 1970
- Felleskost pr mnd
- 1 500 kr
- Kommunale avgifter
- 22 745 kr
- Tomtetype
- Eiet tomt
Romtyper
Soverom
Baderom
Stue
Bod
Kjøkken
Om tomten
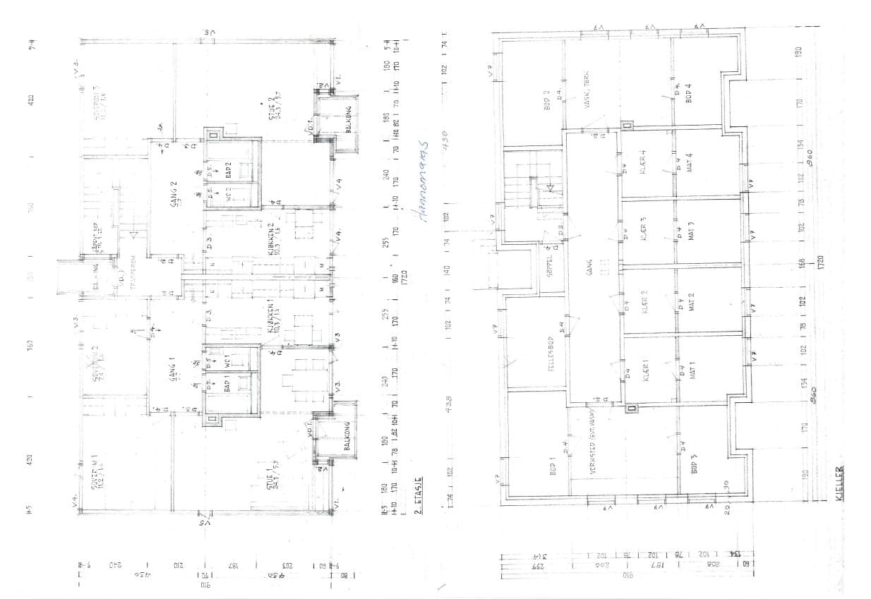
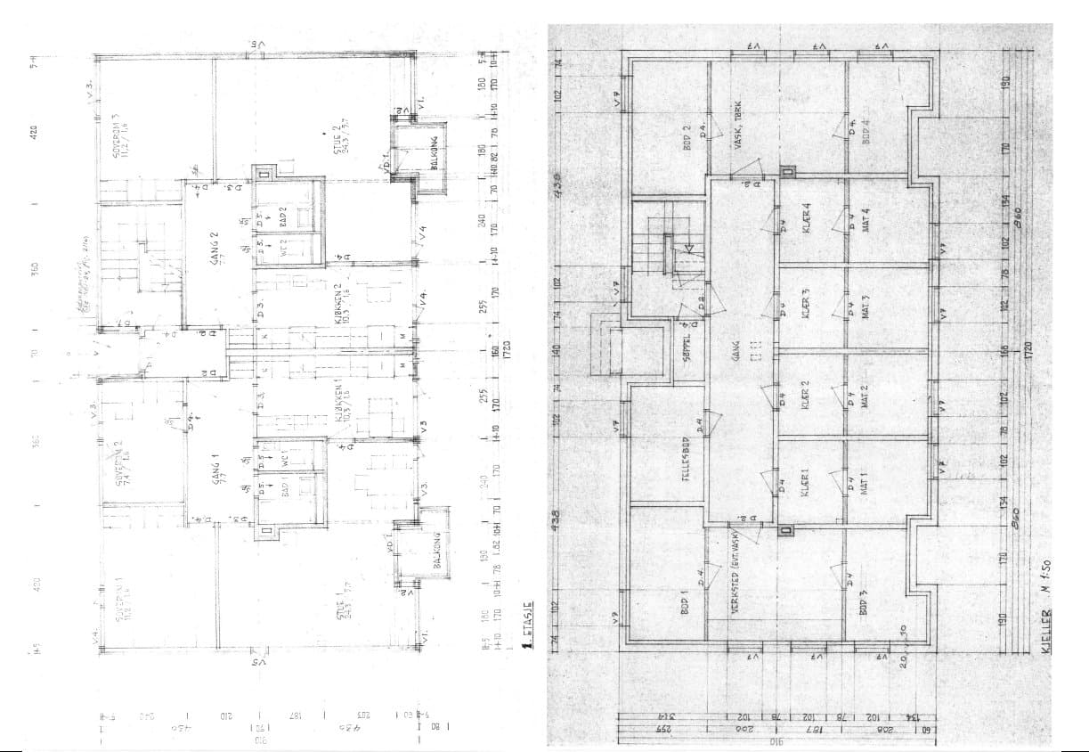
2-roms leilighet beliggende i 2. etasje i 4-mannsbolig. Leiligheten er har et pent fargevalg i stue og kjøkkendel. Boligen ligger sentralt til i Kautokeino, med gangavstand til sentrum. Leiligheten har en fin planløsning og 2 boder i kjelleren. Leiligheten er av eldre dato, så oppussing må påregnes. Interessenter oppfordres til å sette seg godt inn i tilstandsrapportene for leiligheten og bygget, samt selgers egenerklæring. Innvendig standard er som følger: Gulv: Laminat og belegg Vegger: Trepanel og malte veggplater. Tak: Himlingsplater.
Beliggenhet
Boligen ligger sentralt til i Kautokeino, med gangavstand til sentrum med butikker og servicetilbud. Det er gangavstand til både barnehage, barne- og ungdomsskolen, Samisk videregående skole og Reindriftsskole samt Samisk høyskole. Nærmeste nabo til Thon Hotell kautokeino, også kort vei til flere arbeidsplasser i sentrum, Coop Ekstra og Bakteharji (Bygdas idrettshall og storstue).
Annet
NB! Vedlagt er takst fra 2022, men ny takst er bestilt og vil foreligge før påske.
Omkostninger
9 900 kr (HELP boligkjøperforsikring (valgfritt)) 33 750 kr (Dokumentavgift) 545 kr (Tinglysing av pantedokument) 545 kr (Tinglysing av skjøte) --- 44 740 kr (Omkostninger totalt) --- 1 394 740 kr (Totalpris inkl. omkostninger) NB: Regnestykket forutsetter at det kun tinglyses én låneobligasjon og at eiendommen selges til prisantydning. Det tas forbehold om endringer i offentlige og private gebyrer. Selger er selv ansvarlig for følgende gebyr: 545 kr (Panterett med urådighet)
Matrikkelinformasjon
Kommunenr: 5612
Gårdsnr: 3
Bruksnr: 724
Seksjonsnr: 3
Trygg og profesjonell kjøpsprosess
- 1
Møt selger på visning
Du møter selger direkte på visning - den personen som vet hvor sola kommer først inn om morgenen og hvor de beste skiløypene ligger. Få all informasjon fra første hånd og still spørsmål direkte til den som kjenner boligen best.
- 2
Sikker budprosess med BankID
Legg inn bud enkelt og sikkert med BankID-verifisering. Du får SMS-varsler ved nye bud og kan følge budrunden i sanntid. Systemet er mer oversiktlig og lettere å bruke enn tradisjonelle meglersider.
- 3
Profesjonelt oppgjør og overtakelse
Oppgjørsselskap med konsesjon fra Finanstilsynet håndterer alle formelle aspekter. Kontrakt signeres digitalt med BankID, og overtakelsesprotokollen gjennomføres enkelt på telefon. Alt foregår i henhold til avhendingsloven.


Vurderer du å selge selv?
Her kan du sjekke hvordan Propr fungerer - helt uforpliktende.
Ring oss på 23 90 59 00 (9–16, ukedager), eller legg igjen ditt telefonnummer så ringer vi deg opp.
Aktuelt
Kundeservice
Chat: 9–19 på hverdager, 11–18 på søndager
Send e-post: post@propr.no
Ring oss: 23 90 59 00 (10–16, ukedager)