



















































Vestli, Oslo
Unik 6-roms toppleilighet | Totalrenovert 2025 | 2 bad | 2 balkonger | 2 boder | Garasje | Perfekt planløsning | MÅ SES!
Prisantydning
Størrelse (BRA)
Internt bruksareal (BRA-I)
Boligtype
Eieform
Etasje
Fellesutgifter
- Tomteareal
- 17 898 m²
- Byggeår
- 1976
- Fellesgjeld
- 453 198 kr
- Fellesformue
- 9 328 kr
- Felleskost pr mnd
- 5 602 kr
- Tomtetype
- Eiet tomt
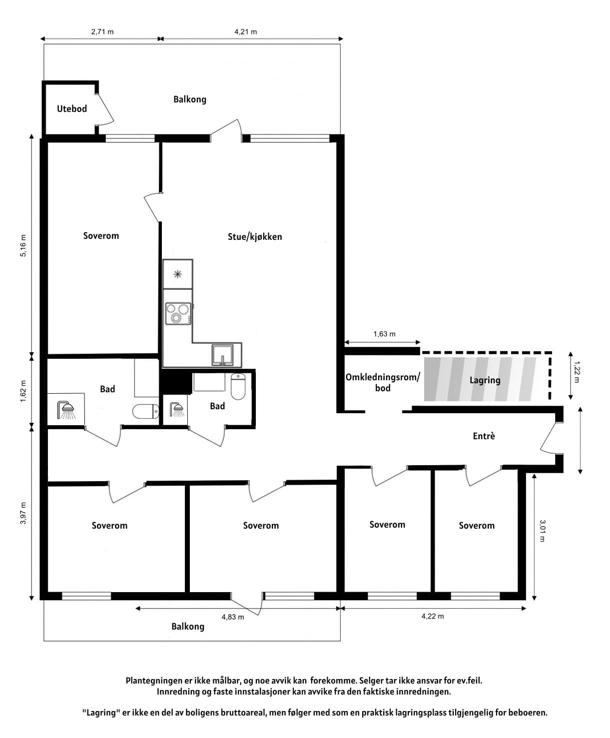
Romtyper
Soverom
Baderom
Stue
Bod
Kjøkken
Om boligen
Denne totalrenoverte og romslige perlen kombinerer moderne komfort med en rolig og sentral beliggenhet – perfekt for både familier og investorer. Inne: - Totalrenovert i 2024–2025! - To stilrene bad fra 2025 med fliser, varmekabler, downlights og opplegg for vaskemaskin. - Lys og romslig med inntil 5 soverom – fleksibel og gjennomtenkt planløsning. - Gjennomgående moderne standard – slette vegger, nye gulv og lekre detaljer. - To tilgjengelige boder – én stor innvendig bod (med ekstra plass som ikke er medregnet i BRA) og én utebod på balkong. Ute: - To solrike balkonger på ca. 20 m² – nyt morgensol i øst og kveldssol i vest. - Magisk utsikt med sjøgløtt mot Oslofjorden. Andre høydepunkter: - Fellesutgifter inkluderer internett/TV, varmtvann a-konto og garasjeplass. - Garasje i lukket anlegg – med mulighet for elbillading. - 1 minutt til T-bane, dagligvare og apotek – kort vei til Stovner senter, skoler og barnehager - Marka rett utenfor – ideelt for tur, ski og friluftsliv. - Mulighet for romutleie – perfekt for deg som ønsker ekstra inntekt. Her får du en innflyttingsklar toppleilighet med høy kvalitet, smarte løsninger og en beliggenhet som gir deg det beste av byliv og naturnær ro. Nyt morgenkaffen på den ene balkongen og avslutt dagen i solnedgangen på den andre – dette er hjemmet som gir deg alt. Følgende medfølger: integrerte hvitevarer, inkludert kjøleskap, lamper. Medfølger ikke: Vaskemaskin på badet medfølger ikke.
Beliggenhet
Skjermet, grønt og sentralt – det beste fra to verdener: Leiligheten har en rolig og grønn beliggenhet, samtidig som du har direkte og enkel tilgang til Oslo sentrum – kun ca. 100 meter til Vestli T-banestasjon, med linje 4 og 5 som tar deg til sentrum på ca. 30 minutter. Vestli er et populært og familievennlig område med kort vei til dagligvarebutikker, skoler, barnehager og flotte rekreasjonsområder i Lillomarka – perfekt for både hverdagsmosjon og helgeturer. Her får du det beste av to verdener: natur og stillhet rett utenfor døren, kombinert med byens puls og servicetilbud innen rekkevidde. Et ideelt valg for deg som ønsker en komfortabel, praktisk og balansert hverdag.
Overtakelse
- Leiligheten er klar for ny eier, og overtakelse kan skje raskt og etter avtale. Her har du muligheten til å flytte rett inn i en totalrenovert bolig – helt uten ventetid.
Viktig informasjon
- Dyrehold er tillatt med søknad til styret. - Forkjøpsrett gjelder – for andelseiere i borettslaget og øvrige OBOS-medlemmer. - Boligselgerforsikring er tegnet. - Budgivere må kunne fremvise gyldig finansieringsbevis. - Det er ingen dok.avgift.
Kontakt og visning
- Kan du ikke komme på oppsatt visning? Ta kontakt for privatvisning.
Omkostninger
4 800 000 kr (Prisantydning) 453 198 kr (Andel av fellesgjeld) --- 5 253 198 kr (Pris inkl. fellesgjeld) Omkostninger 8 200 kr (HELP boligkjøperforsikring (valgfritt)) 545 kr (Tinglysing av pantedokument) 545 kr (Tinglysing av skjøte) --- 9 290 kr (Omkostninger totalt) --- 5 262 488 kr (Totalpris inkl. omkostninger) NB: Regnestykket forutsetter at det kun tinglyses én låneobligasjon og at eiendommen selges til prisantydning. Det tas forbehold om endringer i offentlige og private gebyrer. Selger er selv ansvarlig for følgende gebyr: 545 kr (Panterett med urådighet) 6 570 kr (Eierskiftegebyr)
Matrikkelinformasjon
Kommunenr: 301
Gårdsnr: 99
Bruksnr: 116
Trygg og profesjonell kjøpsprosess
- 1
Møt selger på visning
Du møter selger direkte på visning - den personen som vet hvor sola kommer først inn om morgenen og hvor de beste skiløypene ligger. Få all informasjon fra første hånd og still spørsmål direkte til den som kjenner boligen best.
- 2
Sikker budprosess med BankID
Legg inn bud enkelt og sikkert med BankID-verifisering. Du får SMS-varsler ved nye bud og kan følge budrunden i sanntid. Systemet er mer oversiktlig og lettere å bruke enn tradisjonelle meglersider.
- 3
Profesjonelt oppgjør og overtakelse
Oppgjørsselskap med konsesjon fra Finanstilsynet håndterer alle formelle aspekter. Kontrakt signeres digitalt med BankID, og overtakelsesprotokollen gjennomføres enkelt på telefon. Alt foregår i henhold til avhendingsloven.


Vurderer du å selge selv?
Her kan du sjekke hvordan Propr fungerer - helt uforpliktende.
Ring oss på 23 90 59 00 (9–16, ukedager), eller legg igjen ditt telefonnummer så ringer vi deg opp.
Aktuelt
Kundeservice
Chat: 9–19 på hverdager, 12–20 på søndager
Send e-post: post@propr.no
Ring oss: 23 90 59 00 (10–16, ukedager)