















































































TANA / Vestre Seida-Holmfjell
Påkostet og velstelt enebolig med terrasse og garasje. Idyllisk beliggenhet!
Prisantydning
Størrelse (BRA)
Internt bruksareal (BRA-I)
Boligtype
Eieform
Antall etasjer
- Tomteareal
- 2 448 m²
- Byggeår
- 2020
- Kommunale avgifter
- 17 063 kr
- Tomtetype
- Festet tomt
Romtyper
Soverom
Baderom
Stue
Bod
Kjøkken
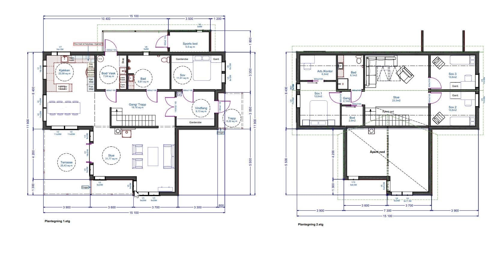
Om boligen
Velkommen til en flott mulighet! Denne eneboligen ligger i et rolig og attraktivt område ved elvebredden i Vestre Seida, Tana kommune. Boligen har 4 romslige soverom, med gode oppbevarings muligheter. Du kan nyte to lyse oppholdsstuer og et stort, moderne kjøkken med fantastisk utsikt. Fra kjøkkenvinduet kan du se Tanabru og det spektakulære lysshowet som finner sted om kvelden. Huset er innredet med moderne løsninger og smartstyring for en enklere hverdag. Uteområdet er godt etablert med en stor plen og asfaltert innkjørsel. Eiendommen har også en stor flott garasje med god lagringsplass i 2. etg, noe som gir ekstra fleksibilitet. Dette er et perfekt hjem for deg som ønsker både komfort og stil!
Beliggenhet
Eiendommen ligger i enden av et rolig boligfelt, noe som gir en privat og fredelig atmosfære. Elvebredden er bare et steinkast unna, perfekt for naturopplevelser og rekreasjon. De naturskjønne omgivelsene utenfor stuevinduet gir en fantastisk utsikt. Eiendommen er solfylt, noe som gir et lyst og trivelig innemiljø. Dette er et perfekt sted for deg som ønsker å nyte naturen samtidig som du har nærhet til Tana Bru sentrum som ligger 3 minutter unna, hvor du finner lokale fasiliteter som butikker, skoler, barnehager og fritidsaktiviteter.
Smarthus og teknisk installasjon
Huset har smarte styringssystemer for blandt annent all belysning, musikk og varme, noe som gir en moderne og praktisk løsning for hverdagen. Innebygde Sonos-høyttalere er plassert på kjøkken og bad, og kan enkelt styres via husets innebygde iPads eller egen mobiltelefon. Boligen har varmekabler i alle rom i 1. etasje (utenom utebod), samt varmefolie i alle oppholdsrom i 2. etasje. Det er etablert balansert ventilasjon (Flexit S4) med fuktsensorer på begge bad og trykkvakt på kjøkkenhette. Ventilasjonsanlegget sikrer godt inneklima, mens den innebygde sentralstøvsugeren langs kjøkkengulvet og vindfang er perfekt for å håndtere smuler og holde det rent uten mye ekstra arbeid. Dette gir en komfortabel og funksjonell bo opplevelse. Andre systemer som er en del av smarthuset er hvitevarer, ventilasjon, brannalarmsystem, ytterdører/garasjeport, Gulvvarme og varmepumpe i garasjen. Det er etablert ca 1500m2 med gressplen, klargjort for robotklipper med guidekabel og strømuttak. Eiendommen har en asfaltert overflate på 550m2. Dette gjør det enklere å holde uteområdene rene og vedlikeholde ett pent og ryddig miljø. Asfalten gir også en praktisk løsning for parkering og bevegelse rundt eiendommen. Her er det muligheter for å skape et hjem du vil trives i mange år fremover. Ta kontakt for mer informasjon eller for å avtale visning.
Omkostninger
14 700 kr (HELP boligkjøperforsikring (valgfritt)) 189 750 kr (Dokumentavgift) 545 kr (Tinglysing av pantedokument) 545 kr (Tinglysing av skjøte) --- 205 540 kr (Omkostninger totalt) --- 7 795 540 kr (Totalpris inkl. omkostninger) NB: Regnestykket forutsetter at det kun tinglyses én låneobligasjon og at eiendommen selges til prisantydning. Det tas forbehold om endringer i offentlige og private gebyrer. Selger er selv ansvarlig for følgende gebyr: 545 kr (Panterett med urådighet)
Matrikkelinformasjon
Kommunenr: 5628
Gårdsnr: 13
Bruksnr: 360
Trygg og profesjonell kjøpsprosess
- 1
Møt selger på visning
Du møter selger direkte på visning - den personen som vet hvor sola kommer først inn om morgenen og hvor de beste skiløypene ligger. Få all informasjon fra første hånd og still spørsmål direkte til den som kjenner boligen best.
- 2
Sikker budprosess med BankID
Legg inn bud enkelt og sikkert med BankID-verifisering. Du får SMS-varsler ved nye bud og kan følge budrunden i sanntid. Systemet er mer oversiktlig og lettere å bruke enn tradisjonelle meglersider.
- 3
Profesjonelt oppgjør og overtakelse
Oppgjørsselskap med konsesjon fra Finanstilsynet håndterer alle formelle aspekter. Kontrakt signeres digitalt med BankID, og overtakelsesprotokollen gjennomføres enkelt på telefon. Alt foregår i henhold til avhendingsloven.


Vurderer du å selge selv?
Her kan du sjekke hvordan Propr fungerer - helt uforpliktende.
Ring oss på 23 90 59 00 (9–16, ukedager), eller legg igjen ditt telefonnummer så ringer vi deg opp.
Aktuelt
Kundeservice
Chat: 9–19 på hverdager, 12–20 på søndager
Send e-post: post@propr.no
Ring oss: 23 90 59 00 (10–16, ukedager)