

























































-Ta kontakt for visning- Ny og moderne selveierleilighet på Borgenhaugen. Flytt rett inn!
Prisantydning
Størrelse (BRA)
Internt bruksareal (BRA-I)
Boligtype
Eieform
Etasje
Fellesutgifter
- Tomteareal
- 2 953 m²
- Byggeår
- 2024
- Felleskost pr mnd
- 2 000 kr
- Kommunale avgifter
- 14 920 kr
- Tomtetype
- Eiet tomt
Romtyper
Soverom
Baderom
Stue
Kjøkken
Om boligen
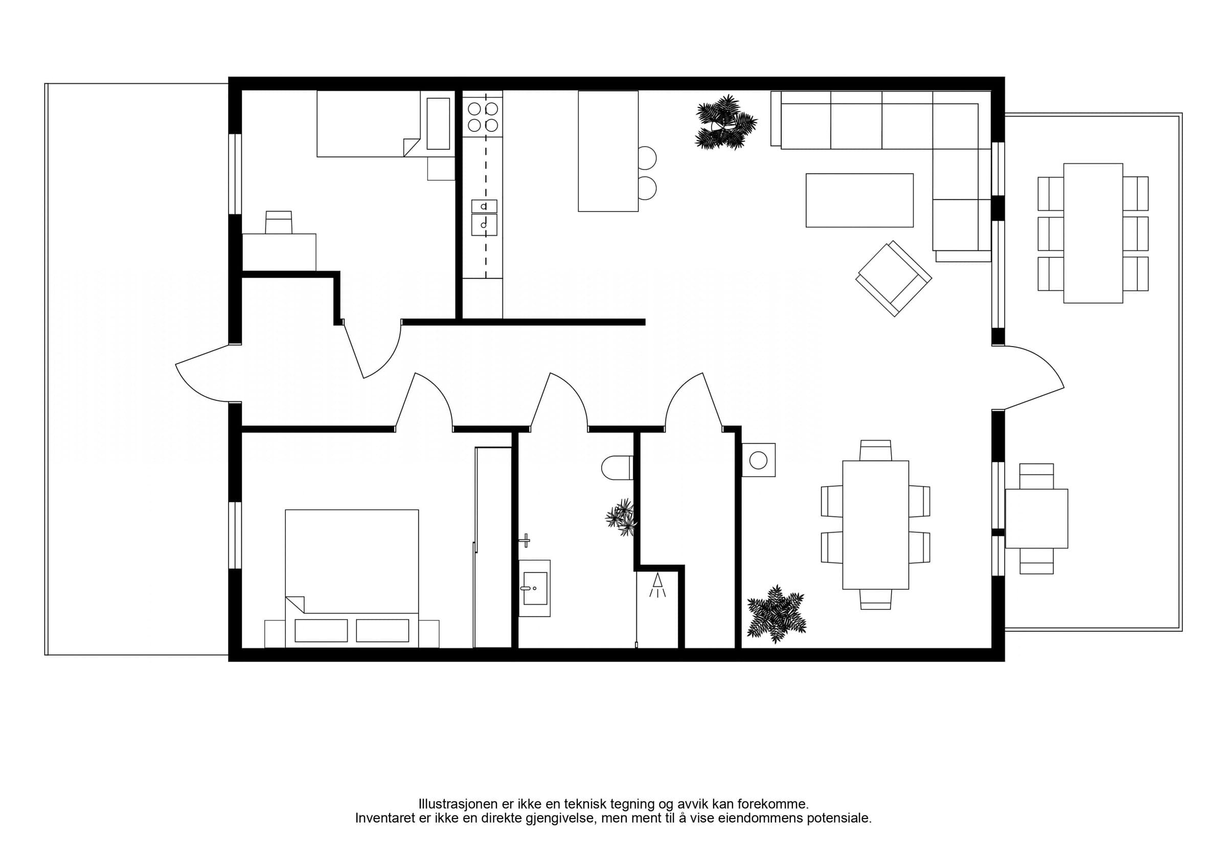
Flott leilighet oppført i 2024, beliggende i et moderne, funkispreget bygg. Leiligheten ligger i andre etasje, og den består av entrè, to soverom, stue med åpen kjøkkenløsning, bad, vaskerom/teknisk rom. I tillegg er det egen garasje på 45 kvm, i byggets underetasje. Her er det god plass til både bil(er) og oppbevaring. Fra stua er det utgang til en veranda på ca. 20 kvm, og ved inngangspartiet, som ligger mot vest, er det svalgang med plass for en koselig sittegruppe. Leiligheten ble levert med en gjennomgående god standard, også er det foretatt nødvendige tilvalg etter overtakelsen utover det som var standard leveranse. Utover standard leveranse, er det på kjøkkenet satt inn koketopp, stekeovn, oppvaskmaskin og kombinert kjøl- og fryseskap. I 3 av underskapene er hyllene oppgradert med originale skuffer til innredningen. På hovedsoverommet er det satt inn stor skyvedørsgarderobe med fronter i eik, i dansk design, og med en innholdsrik innredning. I entréen er det satt inn skyvedørsgarderobe med fronter i eik, i dansk design. Kort og langt heng, og skuffer. På baderommet er det satt inn dobbelt høyskap. På soverommene er det montert plissègardiner i alle vinduene, og det er montert lameller i vinduene i stuen. På teknisk rom/vaskerom er det montert en ny plassbesparende varmtvannsbereder, for mer effektiv utnyttelse av rommet med hensyn til plassering av vaskemaskin og tørketrommel. TA KONTAKT FOR VISNING
Beliggenhet
Leiligheten ligger sentralt på Borgenhaugen med kort vei til skoler, barnehage, butikker, bakeriutsalg, kafe osv. Du finner tre treningssentre, Sporty, Spenst og Sky som ligger i nærområdet. Skjeberg Golfbane ligger kun et par kilometer unna, og det er gangavstand til Isesjø, og frilufsområder med gode turmuligheter ligger i umiddelbar nærhet. På Bjørnemyr bor du sentralt, likevel landlig i rolige omgivelser.
Annet
Det er ingen forkjøpsrett på boligen. Om du ikke har mulighet til å komme på oppsatt fellesvisning, holder vi selvfølgelig privatvisning. Ta kontakt, så finner vi en tid. TA KONTAKT FOR VISNING.
Omkostninger
9 900 kr (HELP boligkjøperforsikring (valgfritt)) 117 370 kr (Dokumentavgift) 545 kr (Tinglysing av pantedokument) 545 kr (Tinglysing av skjøte) --- 128 360 kr (Omkostninger totalt) --- 4 823 360 kr (Totalpris inkl. omkostninger) NB: Regnestykket forutsetter at det kun tinglyses én låneobligasjon og at eiendommen selges til prisantydning. Det tas forbehold om endringer i offentlige og private gebyrer. Selger er selv ansvarlig for følgende gebyr: 6 385 kr (Eierskiftegebyr) 545 kr (Panterett med urådighet)
Matrikkelinformasjon
Kommunenr: 3105
Gårdsnr: 1051
Bruksnr: 864
Seksjonsnr: 16
Trygg og profesjonell kjøpsprosess
- 1
Møt selger på visning
Du møter selger direkte på visning - den personen som vet hvor sola kommer først inn om morgenen og hvor de beste skiløypene ligger. Få all informasjon fra første hånd og still spørsmål direkte til den som kjenner boligen best.
- 2
Sikker budprosess med BankID
Legg inn bud enkelt og sikkert med BankID-verifisering. Du får SMS-varsler ved nye bud og kan følge budrunden i sanntid. Systemet er mer oversiktlig og lettere å bruke enn tradisjonelle meglersider.
- 3
Profesjonelt oppgjør og overtakelse
Oppgjørsselskap med konsesjon fra Finanstilsynet håndterer alle formelle aspekter. Kontrakt signeres digitalt med BankID, og overtakelsesprotokollen gjennomføres enkelt på telefon. Alt foregår i henhold til avhendingsloven.


Vurderer du å selge selv?
Her kan du sjekke hvordan Propr fungerer - helt uforpliktende.
Ring oss på 23 90 59 00 (9–16, ukedager), eller legg igjen ditt telefonnummer så ringer vi deg opp.
Aktuelt
Kundeservice
Chat: 9–19 på hverdager, 11–18 på søndager
Send e-post: post@propr.no
Ring oss: 23 90 59 00 (10–16, ukedager)