















































































FILTVET / Røstad-Ek
Filtvet - småbruksdrømmen på 6,3 mål, totalrehabilitert hus med anneks, låve og ny stor garasje
Prisantydning
Størrelse (BRA)
Internt bruksareal (BRA-I)
Boligtype
Eieform
Antall etasjer
- Tomteareal
- 6 300 m²
- Byggeår
- 1913
- Kommunale avgifter
- 9 762 kr
- Tomtetype
- Eiet tomt
Romtyper
Soverom
Baderom
Stue
Bod
Kjøkken
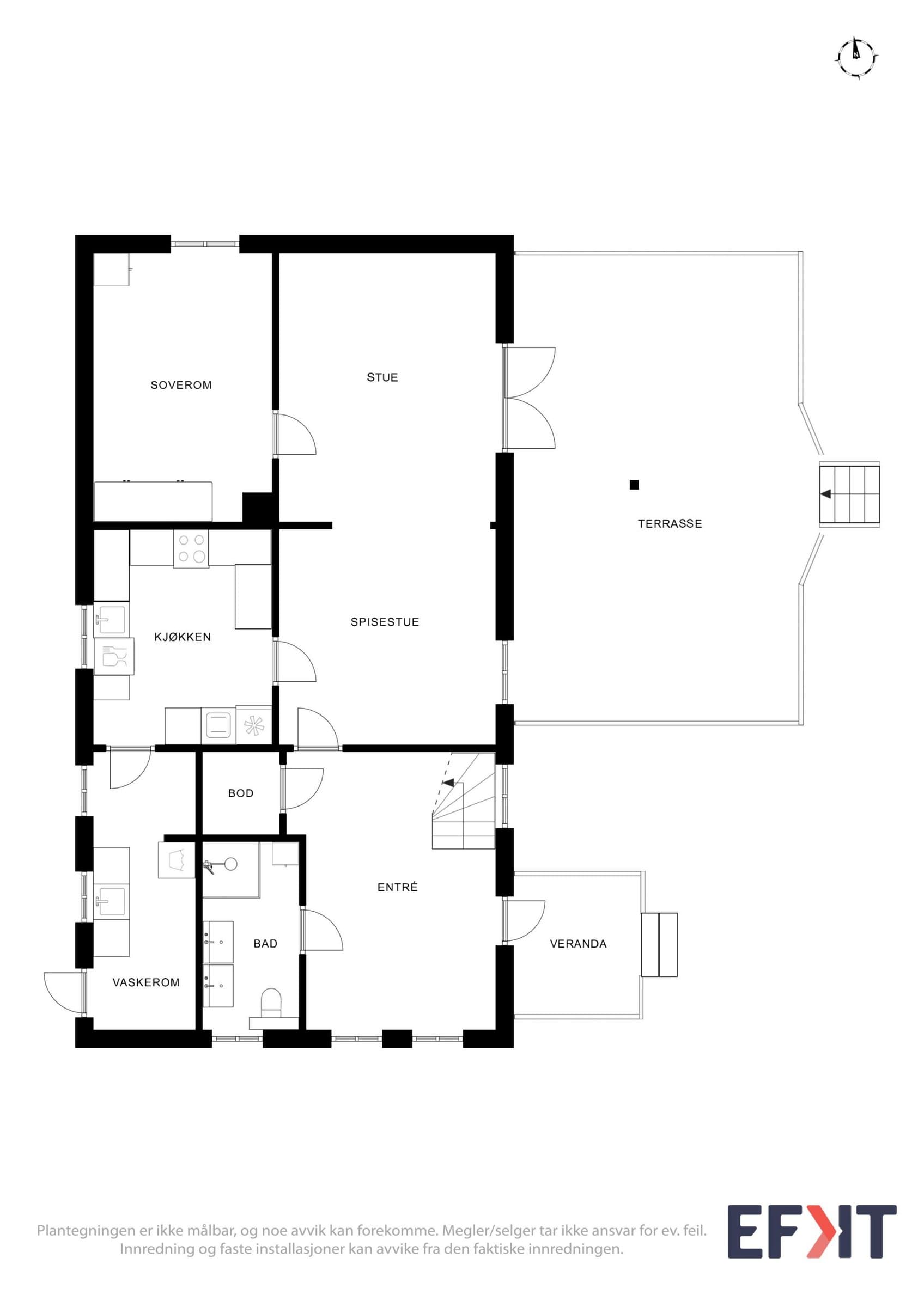
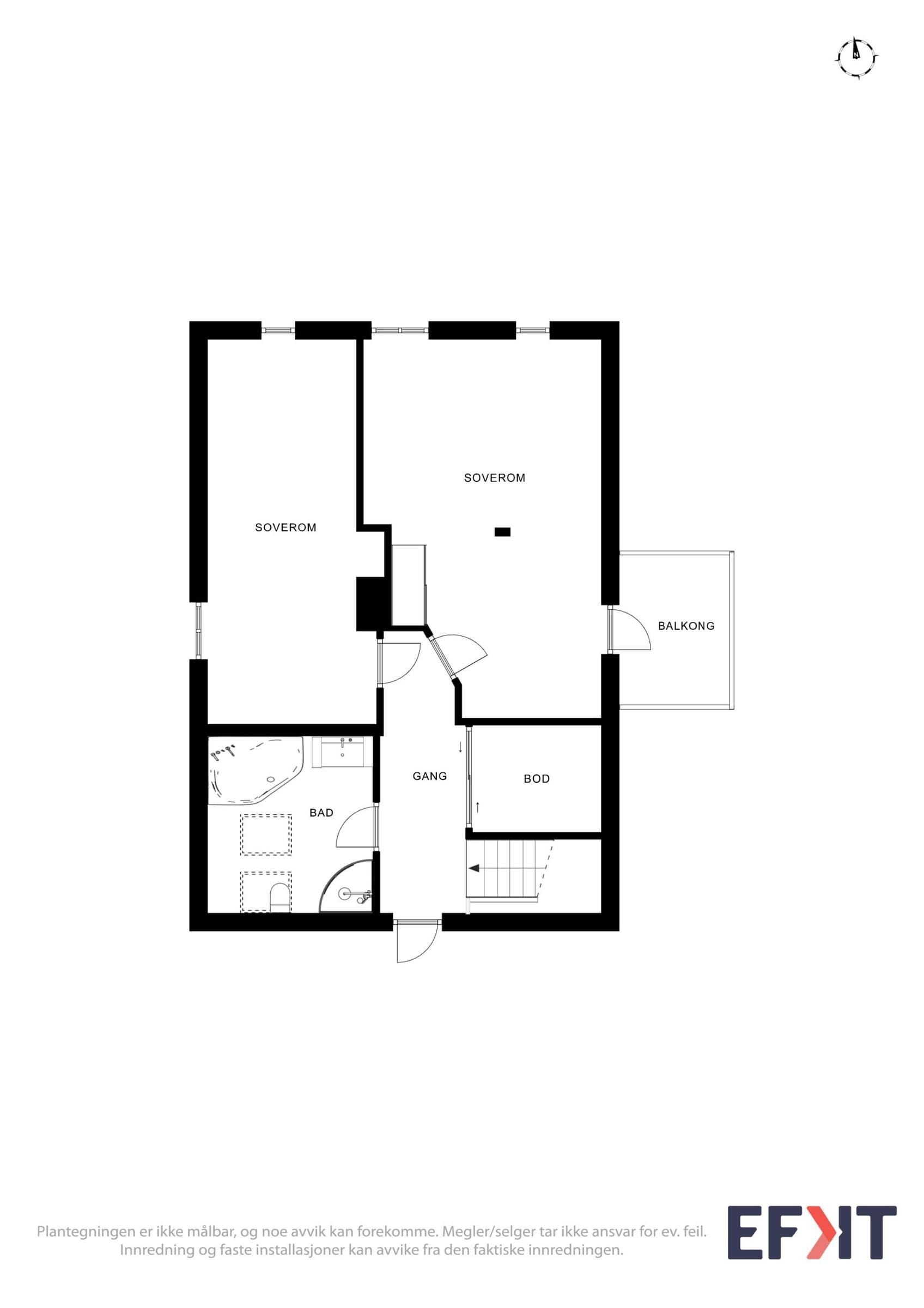
Om boligen
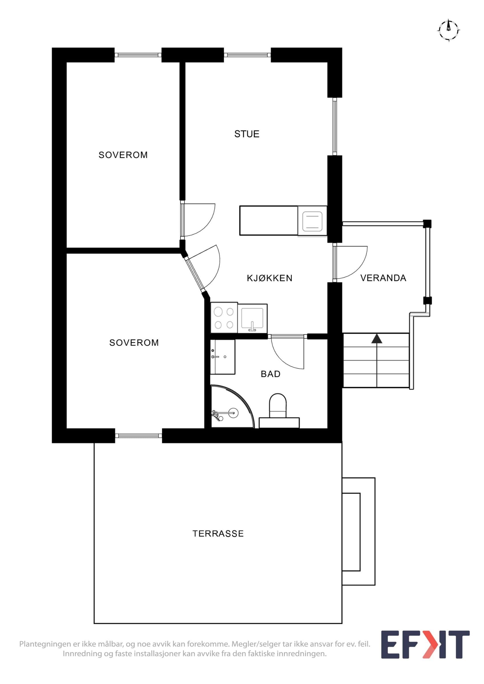
Med tungt hjerte selger vi drømmestedet våres som ligger i midten av naturen, 160 moh. Huset er fra 1913 og ble total rehabilitert fra 2006 til 2018. Boligen inneholder: 1.etasje: gang, bad, garderobe, spisestue, kjøkken, vaskerom, stue, soverom 2.etasje: gang, bad, garderobe, 2 soverom I 1.etasje er det vannbåren gulvvarme i alle rom, i 2.etasje er det viftekonvektorer. Oppvarming skjer med pelletskjele eller vedovn med vannkappe i stua. Fra våren til høsten kommer varmen fra 3 solfanger. Teknisk rom med pelletskjele ble oppført i 2017. I tillegg finnes et uthus fra 2013 på 41m2 med bad, 2 soverom og stue, en låve på ca. 64m2, en stor garasje på 44 m2 fra 2022 med 2 port (det ene porten er 3,50 høy) med løftebukk til bil, pluss en liten anneks og en brakke. Stor hage omringet av trær inkludert grønnsakshage med drivhus og en koselig bålplass.
Beliggenhet
Eiendommen ligger i rolige og barnevennlige omgivelser med gode solforhold, sjøgløtt fra takterrassen, tett mot skogen med mange turmuligheter og rett ved siden av skiløypen, men med kort avstand til Tofte med butikker, lege, apotek, restauranter, skole, barnehager og flere strender.
Annet
Eiendommen er ikke knyttet til offentlig vann og avløp (1 andel i Filtvet Vannverk og privat kloakk), i tillegg blir det brukt en gammel brønn til hagevanning. Det er ingen forkjøpsrett på boligen. Om du ikke har mulighet til å komme på visning, holder jeg gjerne privatvisning. Ta kontakt, så finner vi en tid. Jeg har tegnet boligselgerforsikring, og anbefaler også kjøper å tegne boligkjøperforsikring.
Omkostninger
14 700 kr (HELP boligkjøperforsikring (valgfritt)) 167 250 kr (Dokumentavgift) 545 kr (Tinglysing av pantedokument) 545 kr (Tinglysing av skjøte) --- 183 040 kr (Omkostninger totalt) --- 6 873 040 kr (Totalpris inkl. omkostninger) NB: Regnestykket forutsetter at det kun tinglyses én låneobligasjon og at eiendommen selges til prisantydning. Det tas forbehold om endringer i offentlige og private gebyrer. Selger er selv ansvarlig for følgende gebyr: 545 kr (Panterett med urådighet)
Matrikkelinformasjon
Kommunenr: 3203
Gårdsnr: 340
Bruksnr: 4
Trygg og profesjonell kjøpsprosess
- 1
Møt selger på visning
Du møter selger direkte på visning - den personen som vet hvor sola kommer først inn om morgenen og hvor de beste skiløypene ligger. Få all informasjon fra første hånd og still spørsmål direkte til den som kjenner boligen best.
- 2
Sikker budprosess med BankID
Legg inn bud enkelt og sikkert med BankID-verifisering. Du får SMS-varsler ved nye bud og kan følge budrunden i sanntid. Systemet er mer oversiktlig og lettere å bruke enn tradisjonelle meglersider.
- 3
Profesjonelt oppgjør og overtakelse
Oppgjørsselskap med konsesjon fra Finanstilsynet håndterer alle formelle aspekter. Kontrakt signeres digitalt med BankID, og overtakelsesprotokollen gjennomføres enkelt på telefon. Alt foregår i henhold til avhendingsloven.


Vurderer du å selge selv?
Her kan du sjekke hvordan Propr fungerer - helt uforpliktende.
Ring oss på 23 90 59 00 (9–16, ukedager), eller legg igjen ditt telefonnummer så ringer vi deg opp.
Aktuelt
Kundeservice
Chat: 9–19 på hverdager, 12–20 på søndager
Send e-post: post@propr.no
Ring oss: 23 90 59 00 (10–16, ukedager)