







































Blefjell syd
Koselig tradisjonell hytte, nær skiløyper og alpinanlegg. Innlagt strøm. Bilvei frem.
Prisantydning
Størrelse (BRA)
Internt bruksareal (BRA-I)
Boligtype
Eieform
Antall etasjer
- Tomteareal
- 1 244 m²
- Byggeår
- 1961
- Kommunale avgifter
- 4 505 kr
- Tomtetype
- Festet tomt
- Festenummer (Fnr)
- 2
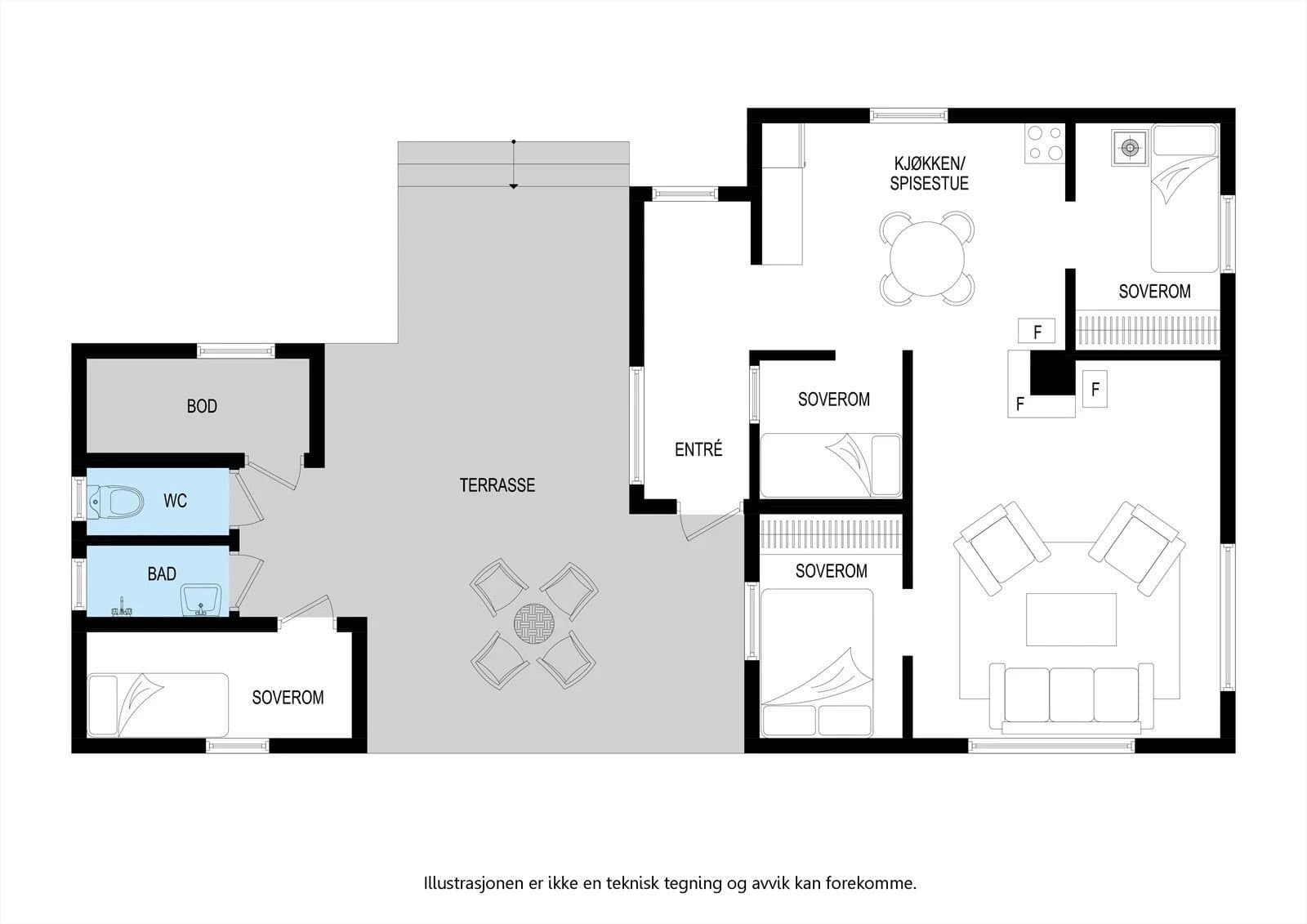
Romtyper
Soverom
Baderom
Stue
Bod
Kjøkken
Om boligen
Velkommen til Blefjell Sør. Her ligger man sentralt til på den søndre delen av Blefjell, med kort vei til en rekke fine plasser å starte turen fra. Her har man gangavstand til bl.a det populære stedet Blestua, og det er kort vei også til Gvelven kro, Blestølen, Nipeto med nye Blefjell Lodgen mv. Hytta har lysmalte innvendige overflater, og det er byttet vinduer i nyere tid. Hytta har innlagt strøm fra 2021. Hytta har en fin planløsning med hele 4 soverom. Det er også anneks til eiendommen med bod, toalettrom (forbrenningstoalett), soverom, og et rom til, som kan disponeres som vaskerom etc. Mulighet for tilkobling til VA (vann og avløp) like utenfor eiendommen. Helårsvei helt frem. Et fint sted å starte hyttedrømmen! Velkommen til en hyggelig visning!
Beliggenhet
Blefjell Sør byr på en fantastisk beliggenhet på fjellet, perfekt for friluftsentusiaster. Her finner du skiløyper, turstier, alpinanlegg, sykkelstier og fiskevann rett i nærheten, samt sjarmerende fjellkafeer. Et ideelt sted for både avslapning og aktiviteter året rundt!
Annet
NB. Matrikkelkart viser anneks liggende delvis inn på annen grunneiers tomt. Kartet er utdatert og viser feil. Annekset ble flyttet i 2024. Ta kontakt for privat visning!
Omkostninger
14 700 kr (HELP boligkjøperforsikring (valgfritt)) 32 500 kr (Dokumentavgift) 545 kr (Tinglysing av pantedokument) 545 kr (Tinglysing av skjøte) --- 48 290 kr (Omkostninger totalt) --- 1 348 290 kr (Totalpris inkl. omkostninger) NB: Regnestykket forutsetter at det kun tinglyses én låneobligasjon og at eiendommen selges til prisantydning. Det tas forbehold om endringer i offentlige og private gebyrer. Selger er selv ansvarlig for følgende gebyr: 545 kr (Panterett med urådighet)
Matrikkelinformasjon
Kommunenr: 3334
Gårdsnr: 14
Bruksnr: 2
Festenr: 2
Trygg og profesjonell kjøpsprosess
- 1
Møt selger på visning
Du møter selger direkte på visning - den personen som vet hvor sola kommer først inn om morgenen og hvor de beste skiløypene ligger. Få all informasjon fra første hånd og still spørsmål direkte til den som kjenner boligen best.
- 2
Sikker budprosess med BankID
Legg inn bud enkelt og sikkert med BankID-verifisering. Du får SMS-varsler ved nye bud og kan følge budrunden i sanntid. Systemet er mer oversiktlig og lettere å bruke enn tradisjonelle meglersider.
- 3
Profesjonelt oppgjør og overtakelse
Oppgjørsselskap med konsesjon fra Finanstilsynet håndterer alle formelle aspekter. Kontrakt signeres digitalt med BankID, og overtakelsesprotokollen gjennomføres enkelt på telefon. Alt foregår i henhold til avhendingsloven.


Vurderer du å selge selv?
Her kan du sjekke hvordan Propr fungerer - helt uforpliktende.
Ring oss på 23 90 59 00 (9–16, ukedager), eller legg igjen ditt telefonnummer så ringer vi deg opp.
Aktuelt
Kundeservice
Chat: 9–19 på hverdager, 11–18 på søndager
Send e-post: post@propr.no
Ring oss: 23 90 59 00 (10–16, ukedager)