















































































DRAMMEN / Bragernes sentrum
Påkostet, sentral og delikat 3-roms selveierleilighet over 3 plan med parkering og elbillader
Prisantydning
Størrelse (BRA)
Internt bruksareal (BRA-I)
Boligtype
Eieform
Etasje
Fellesutgifter
- Tomteareal
- 447 m²
- Byggeår
- 1804
- Felleskost pr mnd
- 0 kr
- Kommunale avgifter
- 12 830 kr
- Tomtetype
- Eiet tomt
Romtyper
Soverom
Baderom
Stue
Bod
Kjøkken
Om boligen
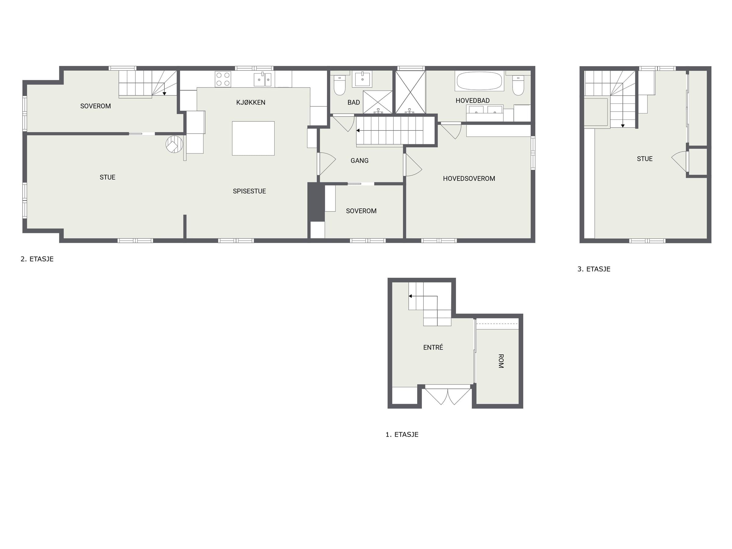
Velkommen til et påkostet og flott hjem i Bergstien 77 i Bragernesåsen, med god utsikt utover Drammen by. Leiligheten ligger i Johan Gottfried Schwenckes gamle brenneribygning fra 1804, som var Norges første potetbrennevinsbrenneri. Leiligheten ligger i hovedbygget fra 1804 og i tilbygget som ble bygd i 1911. Leiligheten går over tre plan med inngang i 1. etasje med stor gang, hovedplan i 2. etasje og innredet loft på 16m² (ikke godkjent for varig opphold). Hovedetasjen måler 102m² og består av gang, kjøkken/spisestue, stue, to bad, to soverom og ett innredet rom. Svært påkostet de siste årene: -2 nye bad i desember 2022. -nye vannrør. -ny smart varmtvannsbereder som gir både energibesparelse og brukervennlighet. -Nytt elektrisk anlegg. -Ble montert 8 nye vinduer i 2022. -Kjøkkenet ble totalrenovert i 2023 og fremstår som både stilfullt og funksjonelt, perfekt for matlaging og sosiale sammenkomster. -ny himling med trepanel og nye downlightsspotter i stue og kjøkken i 2023. -nytt laminatgulv gjennomgående i hele 2.etasjen 2023. -Forsterket takkonstruksjonen på halve bygget, samt etterisolert og ny himling på soverom og begge bad. -Forsterkning av underliggende tverrgående bærebjelke under badet. -Montert ny varmepumpe/aircondition på soverom Mai 2022. Tatt service på begge varmepumper mai 2024. -Utført rørinspeksjon av avløp september 2021. -opparbeidet gårdsplass sensommer 2025, med plass til 2 biler.
Beliggenhet
Attraktivt boligområde i Bragernesåsen, meget sentralt, med fantastisk flott utsikt til fjorden, sentrum og hele Drammensdalen. Gangavstand til tog, buss, marka, skoler, barnehager og sentrum. Gangavstand til nye Drammen sykehus.Boligen har gode solforhold.
Annet
Felles eiet tomt som tilhører sameiet. Tomten er fellesareal, men er inndelt i naturlige parseller for hver seksjon. I tillegg er det en teig på ca 63,8kvm. på felles tomt men tilhører denne seksjonen. Det betales ikke faste månedlige felleskostnader i sameiet annet enn felles husforsikring. Hver seksjonseier fordeler løpende vedlikehold og kostnader til daglig drift i henhold til eierbrøk. Om du ikke har mulighet til å komme på oppsatt visning, holder vi gjerne privatvisning. Ta kontakt, så finner vi en tid.
Omkostninger
9 900 kr (HELP boligkjøperforsikring (valgfritt)) 140 000 kr (Dokumentavgift) 545 kr (Tinglysing av pantedokument) 545 kr (Tinglysing av skjøte) --- 150 990 kr (Omkostninger totalt) --- 5 750 990 kr (Totalpris inkl. omkostninger) NB: Regnestykket forutsetter at det kun tinglyses én låneobligasjon og at eiendommen selges til prisantydning. Det tas forbehold om endringer i offentlige og private gebyrer. Selger er selv ansvarlig for følgende gebyr: 545 kr (Panterett med urådighet)
Matrikkelinformasjon
Kommunenr: 3301
Gårdsnr: 114
Bruksnr: 146
Seksjonsnr: 3
Trygg og profesjonell kjøpsprosess
- 1
Møt selger på visning
Du møter selger direkte på visning - den personen som vet hvor sola kommer først inn om morgenen og hvor de beste skiløypene ligger. Få all informasjon fra første hånd og still spørsmål direkte til den som kjenner boligen best.
- 2
Sikker budprosess med BankID
Legg inn bud enkelt og sikkert med BankID-verifisering. Du får SMS-varsler ved nye bud og kan følge budrunden i sanntid. Systemet er mer oversiktlig og lettere å bruke enn tradisjonelle meglersider.
- 3
Profesjonelt oppgjør og overtakelse
Oppgjørsselskap med konsesjon fra Finanstilsynet håndterer alle formelle aspekter. Kontrakt signeres digitalt med BankID, og overtakelsesprotokollen gjennomføres enkelt på telefon. Alt foregår i henhold til avhendingsloven.


Vurderer du å selge selv?
Her kan du sjekke hvordan Propr fungerer - helt uforpliktende.
Ring oss på 23 90 59 00 (9–16, ukedager), eller legg igjen ditt telefonnummer så ringer vi deg opp.
Aktuelt
Kundeservice
Chat: 9–19 på hverdager, 11–18 på søndager
Send e-post: post@propr.no
Ring oss: 23 90 59 00 (10–16, ukedager)