











































































MOSS / Bellevue/Helgerød
Jeløya/halvpart av vertikaldelt tomannsbolig/3soverom/lys & solrikt/3parkeringsplasser/ sentralt/badstue/skjermet hage!
Prisantydning
Størrelse (BRA)
Internt bruksareal (BRA-I)
Boligtype
Eieform
Antall etasjer
- Tomteareal
- 287 m²
- Byggeår
- 1971
- Kommunale avgifter
- 20 300 kr
- Tomtetype
- Eiet tomt
Romtyper
Soverom
Baderom
Stue
Bod
Kjøkken
Om boligen
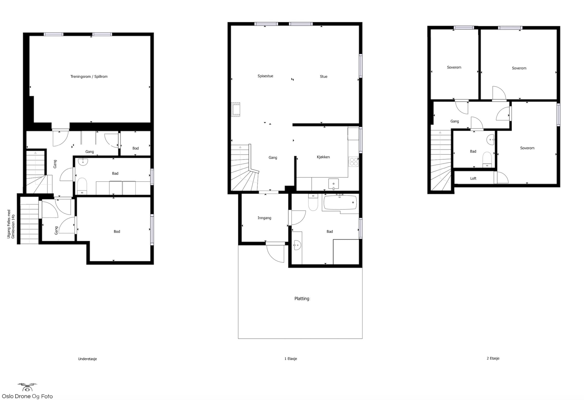
Bygningen ble oppført i 1971 og har blitt grundig oppgradert de siste årene. Med tre etasjer gir eiendommen et glimt av sjø fra vinduene i andre etasje som vender mot veien. 1. etasje: Romslig entre, baderom(infrarød badstue, badekar, varmekabler), kjøkken fra 2017 og hyggelig stue med peis. God plass til både en sofagruppe & et spisebord. 2. etasje: 3 soverom som er innredet med løse skap, et toalett med servant og et loft med god lagringsplass. Underetasje: treningsrom /hobbyrom, vaskerom og toalett med servant, 2 bod. Uteområde: Den koselige hagen, med en gressplen og en rekke frukttrær inkludert 3 epletrær, et kirsebærtre og et plommetre, tilfører en ekstra sjarm til eiendommen. Steinleggingen rundt terrassen og innkjørselen gir et stilig og velholdt utseende samtidig som det er praktisk og enkelt å vedlikeholde. Den solfylte terrassen på 22 m2 inviterer til lange, avslappende dager utendørs. Den inngjerdede hagen er ideell for familier med barn og eller hunder, da den gir en trygg og sikker utendørs lekeplass. Dette bidrar til en avslappet atmosfære og gir eierne muligheten til å nyte hagen uten bekymringer. Parkeringsplass: Plass til 3 biler ved innkjørselen, med en ladestasjon for elbiler, montert i veggen. Tilstandsrapport: Rapporten viser en normal og funksjonell standard, med tilstandsgrader 1, 2 og 3 som indikeres. Det må påregnes oppgradering & moderniseringstiltak for å opprettholde dagens krav og standarder. Noen av de nyere oppgraderingene inkluderer: - Ny kledning og vinduer mot veien i 2015 - Byttet tak i 2016 - Et nytt kjøkken fra 2017 - Drenering og isolering av murvegg i 2019 samt en ny terrasse på 22 m2 samme år - Steinlegging ble gjennomført i 2020 og en elbillader ble montert i 2022. Se vedlagte dokumenter for mer informasjon om vedlikehold og oppgraderinger fra perioden 2012-2024, tidligere salgsoppgaven og tilstandsrapporten.
Beliggenhet
Drømmer du om å bo i et sentralt, attraktivt og barnevennlig område? Da er denne boligen midt i blinken for deg! Her har du gangavstand til alt du trenger i hverdagen, inkludert butikker, skoler og offentlig transport. I tillegg til det praktiske tilbudet i nærområdet, finner du også en rekke badeplasser, strender, nydelige turområder, kulturlandskap og muligheter for båtliv rett i nærheten. Den ideelle beliggenheten gjør det enkelt å pendle til Oslo, med bare 1.1 km til Moss togstasjon(ca.12 minutter gange). Det tar kun 32 minutter med tog, noe som gjør det til et perfekt sted for pendlere. Om du liker å tilbringe tid ved sjøen, kan du ta en kort spasertur på ca. 600 meter til Fiske og Sjøbadet, en herlig badeplass med en barnevennlig sandstrand. Og når du trenger litt shopping, ligger Amfi Moss kjøpesenter bare 1.4 km unna. Familier med barn og ungdommer vil sette pris på de flere utvalgte kommunale og private barnehagene, skolene og videregående skolene som ligger innen 250 meter til 1.4 km avstand. Og for de som ønsker litt ekstra spenning, er det bare en 53 minutters kjøretur til Nordby kjøpesenter i Sverige. Denne boligen har virkelig alt man kan ønske seg for en praktisk og aktiv livsstil!
Annet
Det er ingen forkjøpsrett på boligen. Jeg har tegnet boligselgerforsikring. Boligen selges gjennom propr eiendom AS( en trygg, profesjonell og ryddig prosess). Les mer om propr her: https://propr.no/l/slik-er-det-a-kjope-bolig-gjennom-propr
Visning
Digital visning : Klikk på lenken under https://my.matterport.com/show/?m=Mhgi87wvny6 Om du ikke har mulighet til å komme på visning, holder jeg gjerne privat visning. Ta kontakt, så finner vi en tid.
Budvarsel
Hvis du ønsker å motta budvarsel, kan du trykke på "Meld interesse". Du vil deretter få oppdateringer når det kommer inn nye bud pr. SMS.
Omkostninger
14 700 kr (HELP boligkjøperforsikring (valgfritt)) 105 500 kr (Dokumentavgift) 545 kr (Tinglysing av pantedokument) 545 kr (Tinglysing av skjøte) --- 121 290 kr (Omkostninger totalt) --- 4 341 290 kr (Totalpris inkl. omkostninger) NB: Regnestykket forutsetter at det kun tinglyses én låneobligasjon og at eiendommen selges til prisantydning. Det tas forbehold om endringer i offentlige og private gebyrer. Selger er selv ansvarlig for følgende gebyr: 545 kr (Panterett med urådighet)
Matrikkelinformasjon
Kommunenr: 3103
Gårdsnr: 1
Bruksnr: 1110
Trygg og profesjonell kjøpsprosess
- 1
Møt selger på visning
Du møter selger direkte på visning - den personen som vet hvor sola kommer først inn om morgenen og hvor de beste skiløypene ligger. Få all informasjon fra første hånd og still spørsmål direkte til den som kjenner boligen best.
- 2
Sikker budprosess med BankID
Legg inn bud enkelt og sikkert med BankID-verifisering. Du får SMS-varsler ved nye bud og kan følge budrunden i sanntid. Systemet er mer oversiktlig og lettere å bruke enn tradisjonelle meglersider.
- 3
Profesjonelt oppgjør og overtakelse
Oppgjørsselskap med konsesjon fra Finanstilsynet håndterer alle formelle aspekter. Kontrakt signeres digitalt med BankID, og overtakelsesprotokollen gjennomføres enkelt på telefon. Alt foregår i henhold til avhendingsloven.


Vurderer du å selge selv?
Her kan du sjekke hvordan Propr fungerer - helt uforpliktende.
Ring oss på 23 90 59 00 (9–16, ukedager), eller legg igjen ditt telefonnummer så ringer vi deg opp.
Aktuelt
Kundeservice
Chat: 9–19 på hverdager, 12–20 på søndager
Send e-post: post@propr.no
Ring oss: 23 90 59 00 (10–16, ukedager)