































TOMASJORD / Tomasjordnes
Flott og attraktiv 3-roms selveierleilighet, med balkong, heis og garasjeplass.
Prisantydning
Størrelse (BRA)
Internt bruksareal (BRA-I)
Boligtype
Eieform
Etasje
Fellesutgifter
- Tomteareal
- 4 257 m²
- Byggeår
- 2005
- Felleskost pr mnd
- 4 956 kr
- Kommunale avgifter
- 12 556 kr
- Tomtetype
- Eiet tomt
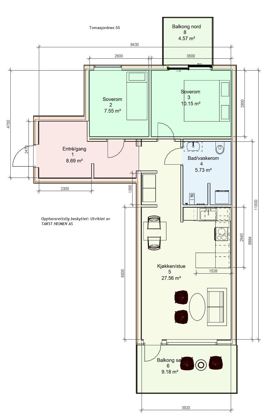
Romtyper
Soverom
Baderom
Stue
Bod
Kjøkken
Om tomten
Flott 3-roms selveierleilighet i fjerdeetasje med heis og garasje. Store vindusflater sikrer mye lysinnslipp og gjør leiligheten lys og trivelig. Leiligheten har 2 balkonger med nydelig utsikt og gode solforhold. Kabel-tv og internett er inkludert i fellesutgifter. Har god planløsning og moderne god standard som bl.a. flis, parkett og oppvarming gjennom vannbåren varme i gulv. Lave strømutgifter som følge av fjernvarmeanlegget. Kort vei til busstopp og matbutikk (5 min gange), barnehage, skoler, idrettsanlegg, båthavn og turløyper. Under 10 minutter med bil/buss gjennom Tromsøysund-tunnelen til UNN/UIT. På Tomasjordnes boligområde befinner seg barnehage, matvarebutikker (Eurospar og Rema), utendørs friområder med ballbinge, grøntområder, lekeapparater, kaipromenade og strandpromenade. Det finnes utendørs parkeringsplasser for gjester. Leiligheten har fast parkeringsplass, sportsbod og postkasse i garasjen.
Beliggenhet
Tomasjordnes er et rolig og familievennlig nabolag som ligger i Tomasjord, en liten bydel i Tromsø kommune. Nabolaget har et variert boligområde med eneboliger, rekkehus og leilighetskomplekser. Det er omgitt av vakker natur med fjell, skog og sjø, og tilbyr flotte turmuligheter og friluftsaktiviteter. I nærheten av leiligheten på Tomasjordnes brygge finner man grønne områder, lekeplasser, strandområde, treningssenter, alpinanlegg, kunstisbane og idrettsanlegg. Det er også gode muligheter for å dra på sykkelturer, gå på ski om vinteren og utforske den vakre naturen rundt Tromsø. Nabolaget har to kolonialbutikker i 5 min gangavstand, barnehager, skoler og fritidsaktiviteter, noe som gjør det til et attraktivt sted å bo for familier. Samtidig ligger sentrum av Tromsø bare en kort kjøretur unna og kort vei til universitetet/unn gjennom Tromsøysund-tunellen. Alt i alt tilbyr nabolaget i Tomasjordnes en perfekt kombinasjon av natur, rolig atmosfære og nærhet til byens fasiliteter, noe som gjør det til et ideelt sted å bo for de som søker en balansert livsstil.
Annet
De kommunale avgiftene er inkludert i de måndlige fellesutgiftene og ca stipulert pr år i annonsen. Visning: Visninger har påmelding. Dette for å kunne planlegge visningene best mulig, og ha god tid til de som kommer. Det er enkelt å melde seg på, og du kan like enkelt melde deg av. Visninger uten påmeldte deltakere kan bli avlyst.
Omkostninger
10 900 kr (HELP boligkjøperforsikring (valgfritt)) 104 750 kr (Dokumentavgift) 545 kr (Tinglysing av pantedokument) 545 kr (Tinglysing av skjøte) --- 116 740 kr (Omkostninger totalt) --- 4 306 740 kr (Totalpris inkl. omkostninger) NB: Regnestykket forutsetter at det kun tinglyses én låneobligasjon og at eiendommen selges til prisantydning. Det tas forbehold om endringer i offentlige og private gebyrer. Selger er selv ansvarlig for følgende gebyr: 0 kr (Eierskiftegebyr) 545 kr (Panterett med urådighet)
Matrikkelinformasjon
Kommunenr: 5501
Gårdsnr: 15
Bruksnr: 1519
Seksjonsnr: 77
Trygg og profesjonell kjøpsprosess
- 1
Møt selger på visning
Du møter selger direkte på visning - den personen som vet hvor sola kommer først inn om morgenen og hvor de beste skiløypene ligger. Få all informasjon fra første hånd og still spørsmål direkte til den som kjenner boligen best.
- 2
Sikker budprosess med BankID
Legg inn bud enkelt og sikkert med BankID-verifisering. Du får SMS-varsler ved nye bud og kan følge budrunden i sanntid. Systemet er mer oversiktlig og lettere å bruke enn tradisjonelle meglersider.
- 3
Profesjonelt oppgjør og overtakelse
Oppgjørsselskap med konsesjon fra Finanstilsynet håndterer alle formelle aspekter. Kontrakt signeres digitalt med BankID, og overtakelsesprotokollen gjennomføres enkelt på telefon. Alt foregår i henhold til avhendingsloven.


Vurderer du å selge selv?
Her kan du sjekke hvordan Propr fungerer - helt uforpliktende.
Ring oss på 23 90 59 00 (9–16, ukedager), eller legg igjen ditt telefonnummer så ringer vi deg opp.
Aktuelt
Kundeservice
Chat: 9–19 på hverdager, 12–20 på søndager
Send e-post: post@propr.no
Ring oss: 23 90 59 00 (10–16, ukedager)