





























































LYSAKER / Lysaker
Solrik og sydvendt 3-roms selveierleilighet i sjønært område, nylig oppusset med god planløsning. Garasje med lader
Prisantydning
Størrelse (BRA)
Internt bruksareal (BRA-I)
Boligtype
Eieform
Etasje
Fellesutgifter
- Tomteareal
- 5 577 m²
- Byggeår
- 1958
- Fellesgjeld
- 337 048 kr
- Felleskost pr mnd
- 7 852 kr
- Tomtetype
- Eiet tomt
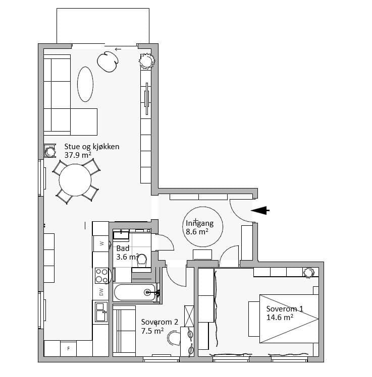
Romtyper
Soverom
Baderom
Stue
Bod
Kjøkken
Om boligen
Gjennomgående 3-roms arkitekttegnet selveierleilighet i høy 1. etasje. Leiligheten ble totalrenovert i 2022, og har gjennomgående svært høy standard, og består av: entré, bad, stue og to soverom. Gjennomgående fiskebeins-laminat, gipsede vegger og ellers malte, slette vegger i alle rom. Alle vinduer og balkong-dør skiftet til tre-lags isolerglass, samt skiftet ytterdør. El-anlegg totalrenovert i 2022, samt bad og kjøkken med alle tilhørende rør totalrenovert i 2022. Vegger og gulv mot naboer og fellesareal ble lydisolert. God takhøyde og store vinduer. Sørvendt balkong med svært gode solforhold. Hyggelig nabolag og kort vei til kollektivtransport, matbutikker, kafeer og annet. Leiligheten har egen parkeringsplass i garasje, med lader for elbil samt to boder på totalt 5kvm.
Om tomten
Stor åpen tomt med fire små blokker. Plen i mellom byggene hvor det er fint å sitte og slappe av på sommeren. Ligger i skråningen med utsikt mot Holtekilen og Fornebulandet. Michelets Vei stengt med port ved nr. 30, så det er begrenset med trafikk i gaten.
Beliggenhet
Familievennlig område med et stort utvalg skole og barnehager i gåavstand fra boligen. Kyststien på Fornebu - Strand like utenfor døren. Svært lett adkomst til Fornebu med badeplasser, idrettsplasser, park og handletilbud. Kun et par minutter gange til busstopp på E18, Nærbutikken, samt Fornebubanen når denne åpner. Gangavstand til Fornebu med gode kollektivmuligheter, handlesenter, kontorer og friluftsområder. Hyggelig nabolag med blanding av unge, barnefamilier og godt etablerte.
Annet
Boligen ligger svært fredelig til i skråningen mot Holtekilen, skjermet fra E18 bak en liten ås. E18 oppgraderes og legges i tunnel, noe som vil gjøre området enda fredeligere og behagelig for beboerne. Samtidig bygges det sykkelstier, parker og store grøntområder for beboere der E18 ligger i dag.
Omkostninger
6 200 000 kr (Prisantydning) 337 048 kr (Andel av fellesgjeld) --- 6 537 048 kr (Pris inkl. fellesgjeld) Omkostninger 9 900 kr (HELP boligkjøperforsikring (valgfritt)) 163 420 kr (Dokumentavgift) 545 kr (Tinglysing av pantedokument) 545 kr (Tinglysing av skjøte) --- 174 410 kr (Omkostninger totalt) --- 6 711 458 kr (Totalpris inkl. omkostninger) NB: Regnestykket forutsetter at det kun tinglyses én låneobligasjon og at eiendommen selges til prisantydning. Det tas forbehold om endringer i offentlige og private gebyrer. Selger er selv ansvarlig for følgende gebyr: 6 570 kr (Eierskiftegebyr) 545 kr (Panterett med urådighet)
Matrikkelinformasjon
Kommunenr: 3201
Gårdsnr: 14
Bruksnr: 539
Seksjonsnr: 3
Trygg og profesjonell kjøpsprosess
- 1
Møt selger på visning
Du møter selger direkte på visning - den personen som vet hvor sola kommer først inn om morgenen og hvor de beste skiløypene ligger. Få all informasjon fra første hånd og still spørsmål direkte til den som kjenner boligen best.
- 2
Sikker budprosess med BankID
Legg inn bud enkelt og sikkert med BankID-verifisering. Du får SMS-varsler ved nye bud og kan følge budrunden i sanntid. Systemet er mer oversiktlig og lettere å bruke enn tradisjonelle meglersider.
- 3
Profesjonelt oppgjør og overtakelse
Oppgjørsselskap med konsesjon fra Finanstilsynet håndterer alle formelle aspekter. Kontrakt signeres digitalt med BankID, og overtakelsesprotokollen gjennomføres enkelt på telefon. Alt foregår i henhold til avhendingsloven.


Vurderer du å selge selv?
Her kan du sjekke hvordan Propr fungerer - helt uforpliktende.
Ring oss på 23 90 59 00 (9–16, ukedager), eller legg igjen ditt telefonnummer så ringer vi deg opp.
Aktuelt
Kundeservice
Chat: 9–19 på hverdager, 11–18 på søndager
Send e-post: post@propr.no
Ring oss: 23 90 59 00 (10–16, ukedager)