













































































Skeikampen
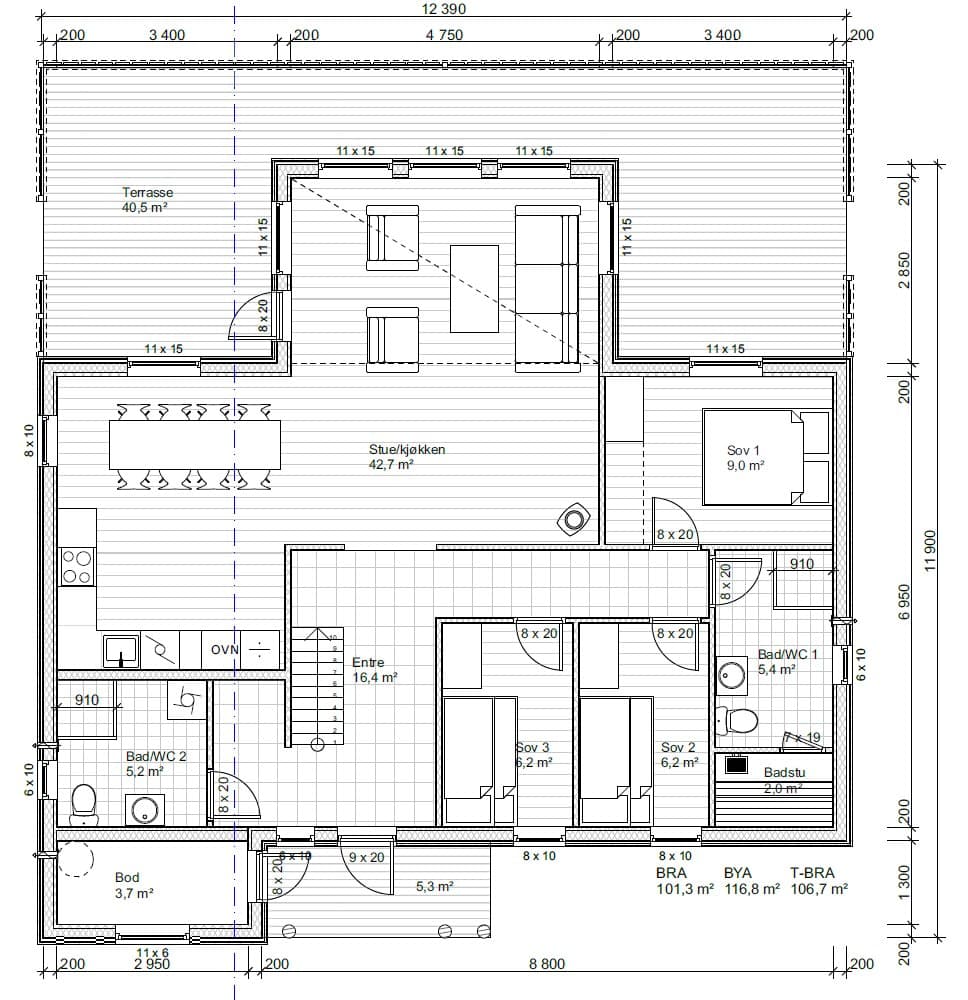
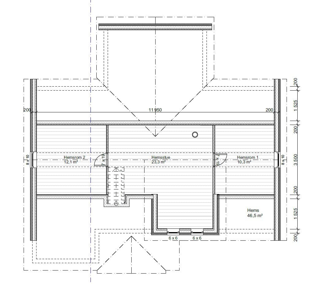
Stor familiehytte - her får du alt - 46m2 hems i tillegg til BRA - 5 soverom, 2 stuer, 2 bad, 12-18 sengeplasser
Prisantydning
Størrelse (BRA)
Internt bruksareal (BRA-I)
Boligtype
Eieform
Antall etasjer
- Tomteareal
- 1 020 m²
- Byggeår
- 2018
- Kommunale avgifter
- 24 794 kr
- Tomtetype
- Eiet tomt
Romtyper
Soverom
Baderom
Stue
Bod
Kjøkken
Om boligen
- Ta kontakt for visning! Velkommen! Flott familiehytte på Skeikampen! Denne hytten har alt! 46m2 hems i tillegg til BRA! Svært god planløsning, åpen og flott stue- og kjøkkenløsning og 3 soverom på hovedplan og 2 store soverom på hems med 2-4 sengeplasser på hvert rom samt kombinert TV-stue og lekerom med masse boltreplass! I tillegg er det 2 bad, en romslig entré, 2 oppvarmede boder og stor carport! Her er det masse plass! Hytten har vært innredet med fleksible sengeløsninger og inntil 18 sengeplasser! Hemsen er ikke målbar på grunn av takhøyde, og er derfor også unntatt eiendomsskatt. Arealet er svært praktisk og selvfølgelig fullt lovlig å bruke. Rømningsvindu fra begge hemsrommene. Hele 145m2 gulvareal til sammen! Fantastiske solforhold, og stor terrasse som går rundt hytten på både øst- og vestside, gjør at man kan velge om man vil sitte i solen eller skyggen hele dagen. Praktisk flat tomt gir perfekte forhold for lek for barna. Tomten er forhøyet i forhold til skiløypen, noe som gir maks utsyn men uten innsyn, og fantastiske akemuligheter rett utenfor hytteveggen. Fliser i entré og på bad, og børstet furugulv ellers. Furugulvet er lunt og fint, og børstet furu gir et litt mer bestandig gulv, men struktur som også gjør det mer sklisikkert. Stuen har flott laftepanel, og skyggepanel ellers i hytten, ferdig behandlet i fargen sjøsand. Stue, kjøkken, TV-stue, hemserom, entré og bad har dimbare LED-spotter, så man enkelt kan sette hyttestemningen slik man vil ha den. Hytten har grunnoppvarming med luft-luft varmepumpe. Denne er plassert i entré, og kombinert med varmekabel i gulvet gir dette veldig gode tørkeforhold. Varmekabel i gulv på begge bad. Panelovner i alle rom ellers. Det er klargjort for smarthussystem som kan styre alle varmekabler, varmtvannsbereder, panelovn i stuen og overvåker røykvarslere på soverom. Man må selv kjøpe ønsket sentral (z-wave). Varmepumpen har wifimodul og kan styres via egen app. Systemet er avhengig av internett. Det er innlagt fiber i hytten fra Eidsiva bredbånd. -
Beliggenhet
- Velkommen til Skeikampen – et eldorado for friluftsentusiaster og familier! Her kombineres storslått natur med et bredt aktivitetstilbud, enten du elsker ski, sykling, fotturer eller bare vil nyte fjellroen. Vinterparadis: Skeikampen er kjent for sine snøsikre vintre og milevis med velpreparerte langrennsløyper som starter rett utenfor døren. Alpinanlegget byr på varierte bakker for alle nivåer, og med lite kø er dette et perfekt sted for både store og små skientusiaster. Sommeridyll: Når snøen smelter, forvandles Skeikampen til et mekka for fjellturer, sykling og fiske. Her finner du en av Norges beste tilrettelagte sykkeldestinasjoner, med både familievennlige stier og utfordrende terreng for de mer erfarne. Enkel tilgjengelighet: Skeikampen ligger kun ca. 2.5 timer fra Oslo og 40 minutter fra Lillehammer, noe som gjør det lett å komme seg til og fra hytta – enten for en helg eller en lengre ferie. Med sin unike kombinasjon av naturopplevelser, aktiviteter og rekreasjon, er Skeikampen det perfekte stedet for deg som drømmer om en hytte hvor hver årstid har noe å by på. Grip sjansen til å bli en del av dette fantastiske fjelleventyret! -
Annet
- Overtakelse kan tidligst skje 1 måned etter kjøpekontrakt. Løse møbler og hjemmekino medfølger ikke. Fast innredning på kjøkken og bad medfølger selvfølgelig, inkludert integrerte hvite- og brunevarer på kjøkken. Hytten selges ved bruk av propr.no uten megler. Propr tilbyr trygge digitale budrunder og oppgjør vil skje gjennom profesjonelt oppgjørsselskap. Hytten selges med boligselgerforsikring gjennom Gjensidige. Skulle du være interessert i hytten, men ønsker å kjøpe gjennom eiendomsmegler er det fint om du også melder interesse. Vi forsøker først selv, men er ikke fremmed for å engasjere megler. -
Omkostninger
14 700 kr (HELP boligkjøperforsikring (valgfritt)) 154 750 kr (Dokumentavgift) 545 kr (Tinglysing av pantedokument) 545 kr (Tinglysing av skjøte) --- 170 540 kr (Omkostninger totalt) --- 6 360 540 kr (Totalpris inkl. omkostninger) NB: Regnestykket forutsetter at det kun tinglyses én låneobligasjon og at eiendommen selges til prisantydning. Det tas forbehold om endringer i offentlige og private gebyrer. Selger er selv ansvarlig for følgende gebyr: 545 kr (Panterett med urådighet)
Matrikkelinformasjon
Kommunenr: 3441
Gårdsnr: 180
Bruksnr: 67
Trygg og profesjonell kjøpsprosess
- 1
Møt selger på visning
Du møter selger direkte på visning - den personen som vet hvor sola kommer først inn om morgenen og hvor de beste skiløypene ligger. Få all informasjon fra første hånd og still spørsmål direkte til den som kjenner boligen best.
- 2
Sikker budprosess med BankID
Legg inn bud enkelt og sikkert med BankID-verifisering. Du får SMS-varsler ved nye bud og kan følge budrunden i sanntid. Systemet er mer oversiktlig og lettere å bruke enn tradisjonelle meglersider.
- 3
Profesjonelt oppgjør og overtakelse
Oppgjørsselskap med konsesjon fra Finanstilsynet håndterer alle formelle aspekter. Kontrakt signeres digitalt med BankID, og overtakelsesprotokollen gjennomføres enkelt på telefon. Alt foregår i henhold til avhendingsloven.


Vurderer du å selge selv?
Her kan du sjekke hvordan Propr fungerer - helt uforpliktende.
Ring oss på 23 90 59 00 (9–16, ukedager), eller legg igjen ditt telefonnummer så ringer vi deg opp.
Aktuelt
Kundeservice
Chat: 9–19 på hverdager, 11–18 på søndager
Send e-post: post@propr.no
Ring oss: 23 90 59 00 (10–16, ukedager)