



































































DRØBAK
Fin enebolig med stor utleiedel (13.900 pr.mnd.) Flytt rett inn. Jul i nytt hus?
Prisantydning
Størrelse (BRA)
Internt bruksareal (BRA-I)
Boligtype
Eieform
Antall etasjer
- Tomteareal
- 545 m²
- Byggeår
- 2005
- Kommunale avgifter
- 18 000 kr
- Tomtetype
- Eiet tomt
Romtyper
Soverom
Baderom
Stue
Bod
Kjøkken
Om tomten
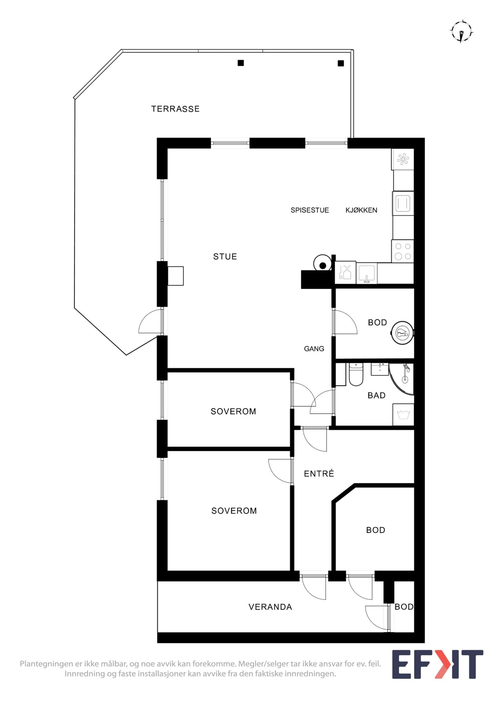
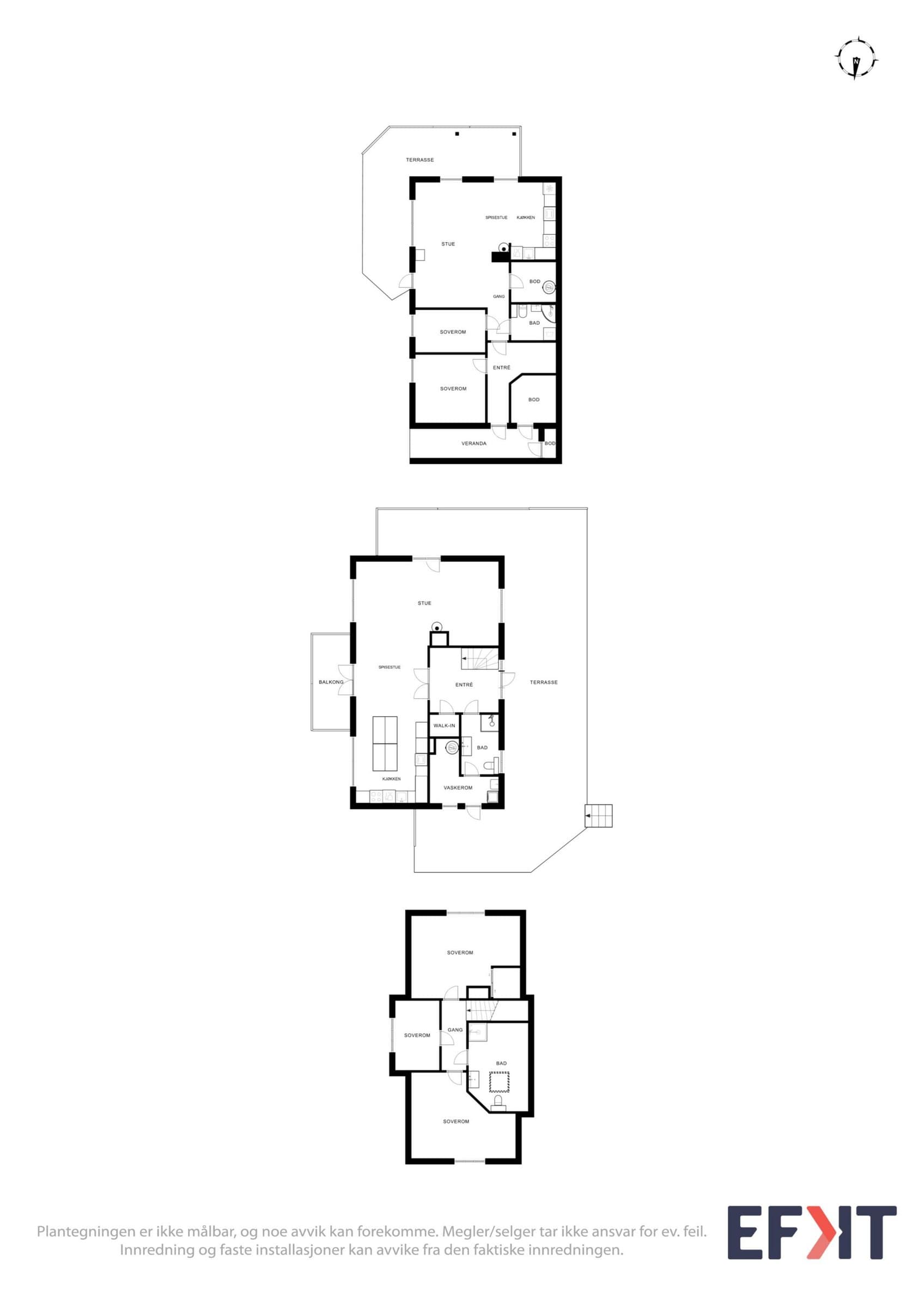
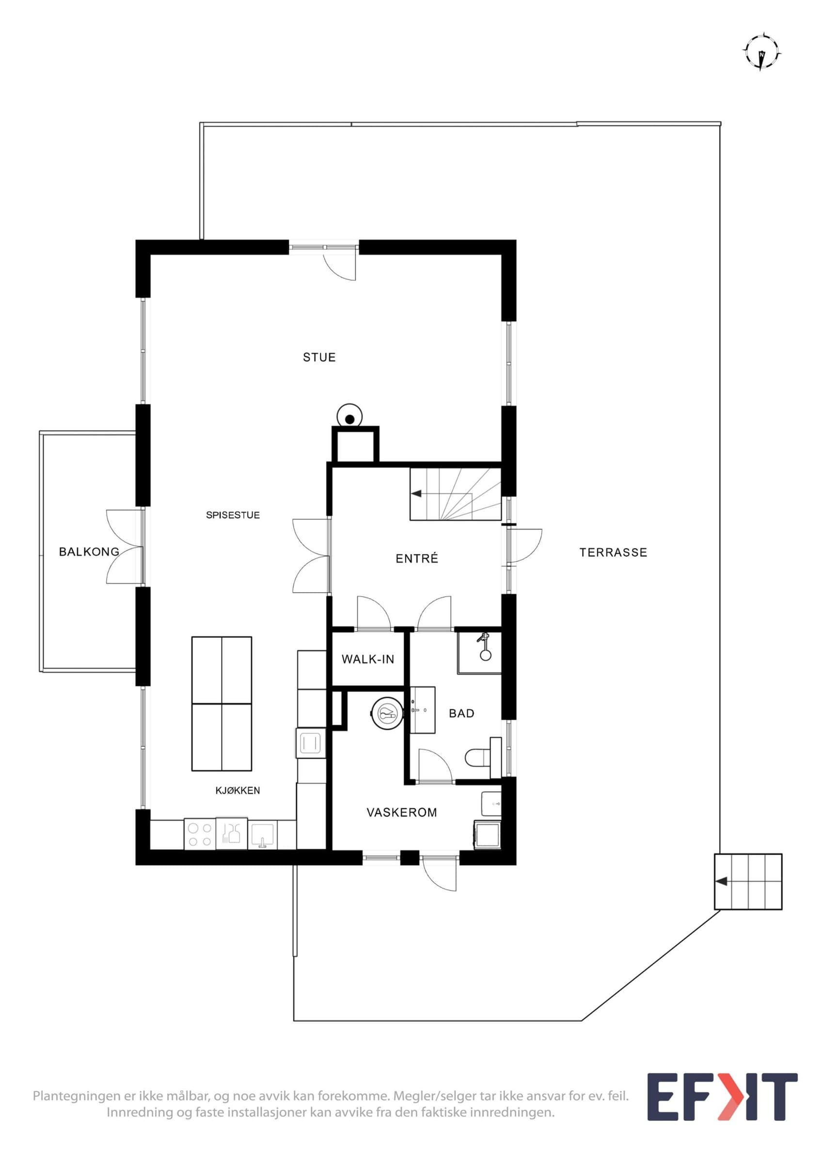
Fin enebolig med utleiedel. Betydelig oppgradert i 2021, boligen har gjennomgående god standard, hoveddel består av: entré, 2 bad, vaskerom, åpen stue/kjøkken løsning og 3 soverom. Badet i 2.etg. ble oppgradert i 2023. Boligen har beliggenhet i et rolig og barnevennlig område innerst i blindvei med utsikt over naturområder. Denne innholdsrike boligen har en sokkelleilighet på hele 78m2 og leies ut i dag for 13.900,-(pluss strøm).
Beliggenhet
Kort vei til barneskole og barnehage på Heer og til Frogn videregående skole. Bussholdeplass ligger like i nærheten hvor du kan ta buss til Oslo sentrum (ca.35 min.), denne går ca. hvert 10 min. i rushtiden. Nærbutikken er Kiwi på Heer. Kort vei til turområder, golfbane, kjøpesenter og Drøbak sentrum. Haneborg gård (Tomter mais) som nærmest nabo 😊
Annet
Nåværende leietaker ønsker videre leieforhold. Jeg kan anbefale han på det sterkeste da han er en rolig og pålitelig voksen mann.
Private visninger!
Bare ta kontakt så finner jeg ledig tid slik at det blir mulig å få sett huset når det passer deg/dere.😊
Kommentar tilstandsrapport:
1. Håndløper i trapp er fikset. 2. Rørlegger har fikset avløp i leiligheten
2.etg. - Gulvareal
Pga. skråtaket i 2.etg så er arealet oppført med 50m2. Gulvareal er målt til 72m2. Så her har man flere muligheter til å utnytte plassen bedre til f.eks. oppbevaring etc.
e-takst
Vedlagt ligger etakst fra kjent megler i 2023. Til info: Det er det autoriserte oppgjørsselskapet Norsk Eiendomsoppgjør AS som står for oppgjøret for et trygt kjøp.
Omkostninger
14 700 kr (HELP boligkjøperforsikring (valgfritt)) 203 750 kr (Dokumentavgift) 500 kr (Tinglysing av pantedokument) 500 kr (Tinglysing av skjøte) --- 219 450 kr (Omkostninger totalt) --- 8 369 450 kr (Totalpris inkl. omkostninger) NB: Regnestykket forutsetter at det kun tinglyses én låneobligasjon og at eiendommen selges til prisantydning. Det tas forbehold om endringer i offentlige og private gebyrer. Selger er selv ansvarlig for følgende gebyr: 500 kr (Panterett med urådighet)
Matrikkelinformasjon
Kommunenr: 3214
Gårdsnr: 19
Bruksnr: 103
Trygg og profesjonell kjøpsprosess
- 1
Møt selger på visning
Du møter selger direkte på visning - den personen som vet hvor sola kommer først inn om morgenen og hvor de beste skiløypene ligger. Få all informasjon fra første hånd og still spørsmål direkte til den som kjenner boligen best.
- 2
Sikker budprosess med BankID
Legg inn bud enkelt og sikkert med BankID-verifisering. Du får SMS-varsler ved nye bud og kan følge budrunden i sanntid. Systemet er mer oversiktlig og lettere å bruke enn tradisjonelle meglersider.
- 3
Profesjonelt oppgjør og overtakelse
Oppgjørsselskap med konsesjon fra Finanstilsynet håndterer alle formelle aspekter. Kontrakt signeres digitalt med BankID, og overtakelsesprotokollen gjennomføres enkelt på telefon. Alt foregår i henhold til avhendingsloven.


Vurderer du å selge selv?
Her kan du sjekke hvordan Propr fungerer - helt uforpliktende.
Ring oss på 23 90 59 00 (9–16, ukedager), eller legg igjen ditt telefonnummer så ringer vi deg opp.
Aktuelt
Kundeservice
Chat: 9–19 på hverdager, 12–20 på søndager
Send e-post: post@propr.no
Ring oss: 23 90 59 00 (10–16, ukedager)