







































































SARPSBORG / Jelsnes
Flott enebolig på pent opparbeidet tomt med gode solforhold. Stor terrasse, 4 soverom.
Prisantydning
Størrelse (BRA)
Internt bruksareal (BRA-I)
Boligtype
Eieform
Antall etasjer
- Tomteareal
- 913 m²
- Byggeår
- 1986
- Kommunale avgifter
- 22 500 kr
- Tomtetype
- Eiet tomt
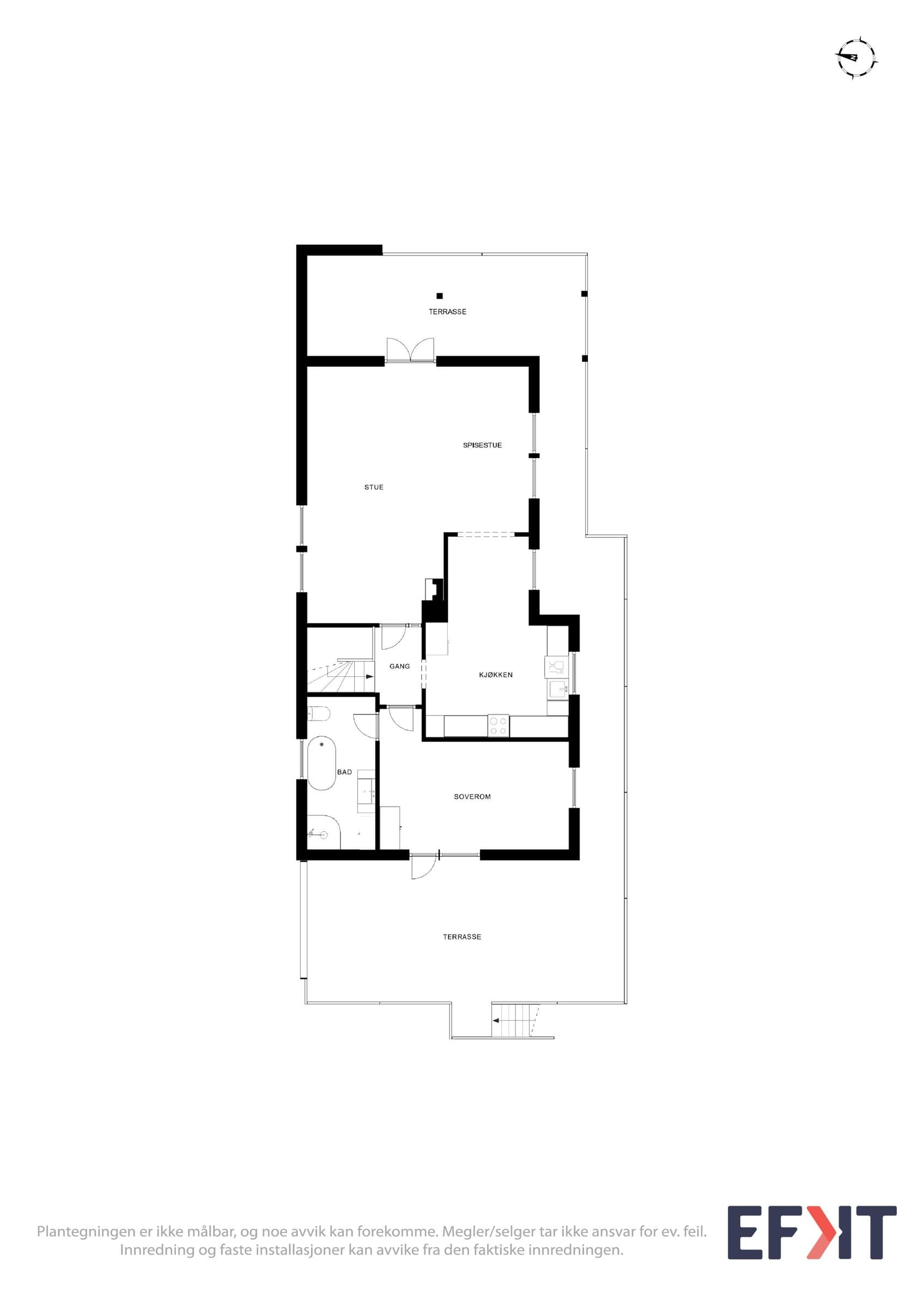
Romtyper
Soverom
Baderom
Stue
Bod
Kjøkken
Om boligen
Ta kontakt for visning. Det er utført og det blir gjort noe utbedringer i henhold til takstrapporten før overtakelse. Loft er bra. Ventilasjon er bra. Terrasse fra 2019 har også fått noen endringer. Dette har ikke blitt oppdatert i nåværende rapport. Kontakt for evt spørsmål. Romslig enebolig med 4 soverom og 2 bad av nyere tid. Huset har byttet de fleste overflater innvendig og fremstår som et pent, innflytningsklart hus. Dette er boligen for dere som ønsker god plass, eller skal huse hele familien. Tomten er stor med mulighet for flere ulike soner, som bålpanne plasser og beplantnings områder. Huset har hage på begge ender av huset, samt baksiden. Her er det plass til lek og aktiviteter. På tomten ligger det to garasjer, hvor en er satt opp i nyere tid. Dobbel garasjen er isolert. Det er også et isolert anneks/bod på 14m2. Terrassen går sammenhengende fra ende til ende på huset, hvor en av sidene har over bygg/tak. Dette gir rom for skjerming mot nedbør, samt forflytning etter solen. På terrassen kan solen nytes fra tidlig morgen til sent på kveld. Under terrassen er det en stor ute bod til diverse lagring. Boligen blir oppvarmet med varmekabler i store deler av underetasjen. Det er også to stk varmepumper, samt en vedovn.
Beliggenhet
Boligen ligger i et stille og rolig nabolag. Det er et fint sted og ferdes med mindre trafikk. Utmerket for barn og vokse opp. I nærområdet er det også gode turmuligheter i skog og mark, med flere utsikts topper. Det er flere bade og fiskeplasser. Boligen ligger også en kort gå tur unna barneskolen.
Annet
Om du ikke har mulighet til å komme på visning, holder jeg gjerne privatvisning. Ta kontakt, så finner vi en tid. Jeg har tegnet boligselgerforsikring, og anbefaler også kjøper å tegne boligkjøperforsikring.
Omkostninger
14 700 kr (HELP boligkjøperforsikring (valgfritt)) 103 750 kr (Dokumentavgift) 545 kr (Tinglysing av pantedokument) 545 kr (Tinglysing av skjøte) --- 119 540 kr (Omkostninger totalt) --- 4 269 540 kr (Totalpris inkl. omkostninger) NB: Regnestykket forutsetter at det kun tinglyses én låneobligasjon og at eiendommen selges til prisantydning. Det tas forbehold om endringer i offentlige og private gebyrer. Selger er selv ansvarlig for følgende gebyr: 545 kr (Panterett med urådighet)
Matrikkelinformasjon
Kommunenr: 3105
Gårdsnr: 2009
Bruksnr: 98
Trygg og profesjonell kjøpsprosess
- 1
Møt selger på visning
Du møter selger direkte på visning - den personen som vet hvor sola kommer først inn om morgenen og hvor de beste skiløypene ligger. Få all informasjon fra første hånd og still spørsmål direkte til den som kjenner boligen best.
- 2
Sikker budprosess med BankID
Legg inn bud enkelt og sikkert med BankID-verifisering. Du får SMS-varsler ved nye bud og kan følge budrunden i sanntid. Systemet er mer oversiktlig og lettere å bruke enn tradisjonelle meglersider.
- 3
Profesjonelt oppgjør og overtakelse
Oppgjørsselskap med konsesjon fra Finanstilsynet håndterer alle formelle aspekter. Kontrakt signeres digitalt med BankID, og overtakelsesprotokollen gjennomføres enkelt på telefon. Alt foregår i henhold til avhendingsloven.


Vurderer du å selge selv?
Her kan du sjekke hvordan Propr fungerer - helt uforpliktende.
Ring oss på 23 90 59 00 (9–16, ukedager), eller legg igjen ditt telefonnummer så ringer vi deg opp.
Aktuelt
Kundeservice
Chat: 9–19 på hverdager, 12–20 på søndager
Send e-post: post@propr.no
Ring oss: 23 90 59 00 (10–16, ukedager)