







































































SOLBERGELVA / KILLINGRUDALLEEN
Stor og innholdsrik enebolig med 4(5) soverom, 2 bad og 2 stuer. Hage med frukttrær og bærbusker
Prisantydning
Størrelse (BRA)
Internt bruksareal (BRA-I)
Boligtype
Eieform
Antall etasjer
- Tomteareal
- 957 m²
- Byggeår
- 1952
- Kommunale avgifter
- 18 000 kr
- Tomtetype
- Eiet tomt
Romtyper
Soverom
Baderom
Stue
Bod
Kjøkken
Om boligen
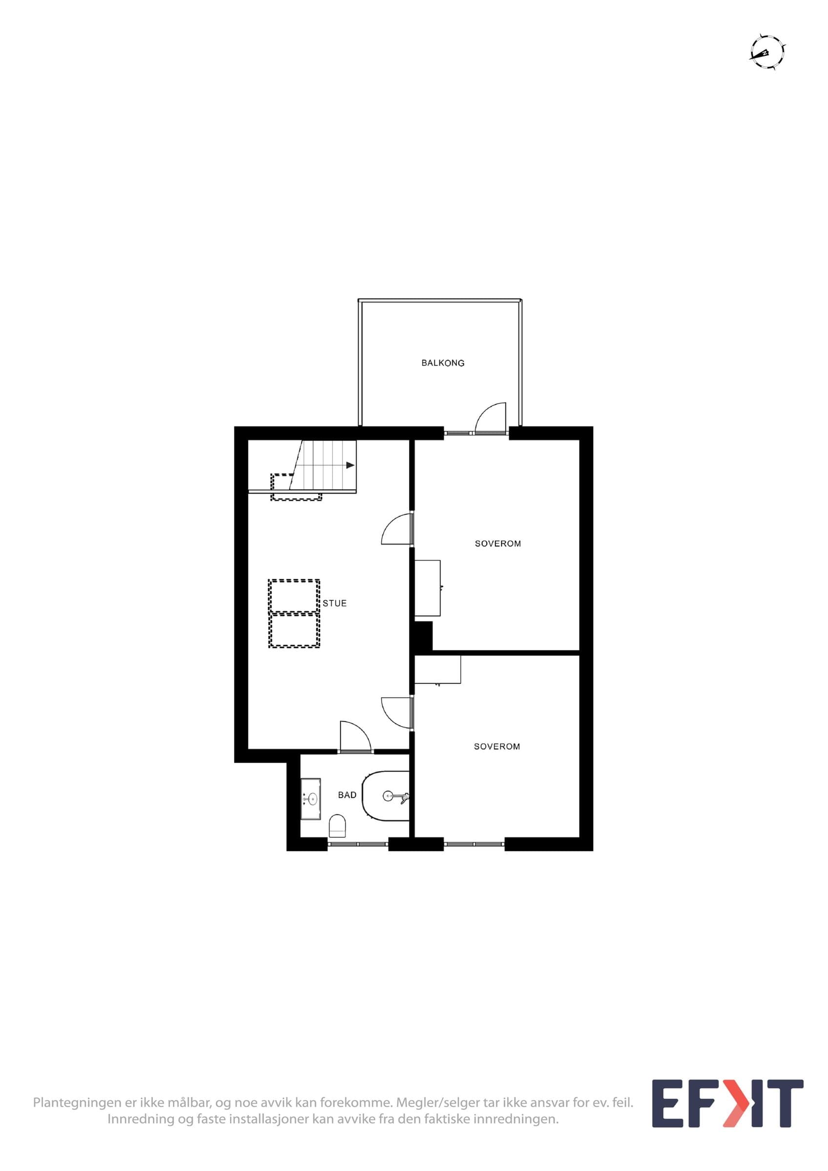
Enebolig med fin beliggenhet i et etablert stille attraktivt boligområda med nærhet til barnehage, skole, butikk, offentlig kommunikasjon og rikt idrettstilbud. Boligen har en solrik beliggenhet og den ligger skjermet uten gjennomgangstrafikk. Boligen har en stor og velstelt hage med rikelig plass til kjøkkenhage og dyrking. Her finner du blant annet frukttrær som plomme, pære og morell, i tillegg til jordbærplanter, asparges og solbærbusker. Hagen gir en flott mulighet for å dyrke egen mat og nyte hagen til fulle i sommersesongen. Terrassen har nye terrassebord med innbygget belysning som skaper en lun atmosfære på kveldstid. På 1.a etasje ligger kjøkkenet og en stue for de voksne samt bad, 2 soverom og kontor (soverom). Her er det plass for felles aktiviteter og Master soverom ligger i nær anslutning til 1 (2) barnerom. Boligen er lys og med innbydende overflater i nøytrale farger. På 2.a etasje ligger 2 soverom, et bad og en romslig stue der barna kan boltre seg. Boligen har blitt vesentlig oppgradert de siste årene og er blant annet etterisolert og med balansert ventilasjon, varmepumpe og vannbåren varme. Energivurdering "C".
Annet
Det er ingen forkjøpsrett på boligen. Om du ikke har mulighet til å komme på visning, holder vi gjerne privatvisning. Ta kontakt, så finner vi en tid.
Byggemåte
Velkommen til Killingrudalleen 18! En innholdsrik og tiltalende enebolig med høy standard og fin beliggenhet i et etablert stille attraktivt boligområde med nærhet til barnehage, skole, butikk, offentlig kommunikasjon og rikt idrettstilbud. Boligen har en solrik beliggenhet og den ligger i en blindvei uten gjennomgangstrafikk. Gjennomgående for boligen er et lyst og moderne uttrykk i oppussede deler med mye lys, stramme linjer, slette overflater. Videre er boligen utstyrt med balansert ventilasjon som sikrer et sundt og frist inneklima året rundet. Kjelleretasje Kjelleren er stor og oppusset i 2024. Det er god takhøyde. Devis drenert (ikke krypkjeller) i 2012 og etterisolert. Det er satt opp Flexit ventiler for god ventilasjon. Ny smart varmtvannsbereder i svart. Det må påregnes vedlikehold i krypkjeller gjennom drenering og luftventiler må åpnes. Første etasje Entre med varme i gulv. Eksklusiv tapet og delikate farger. Underetasjen er oppusset delvis i 2012, 2017 og 2023 og 2024. Master soverom , barnerom, kontor ble pusset opp i 2012. Alle rom ble etterisolert og det ble bytt vinduer. Det er tapetserte overflater og laminat på gulv i kontor og barnerom. I Master soverom er det en koselig peis. Gang har svarte marmorfliser. Entreen ble pusset opp i 2017 og er etterisolert og sikringsskapet er flyttet til kjeller. Stuen ble pusset opp i 2023 og alle vinduer ble bytt og det ble satt in foldedør mot veranda. Det er vannbåren varme i stue og i 2024 ble gang og trapp opp til første etasje malt med moderne farger og det ble lagt laminat i gang, entré og spiserom. Første etasje er stor og romslig. Andre etasje Meget pen andre etasje med moderne og nøytrale farger. Mye vindusflater som gir lys og luftig inntrykk. Bad er nyoppusset i 2024 liksom stuen. Det ble satt inn takvinduer. Det er vegg til vegg teppe i hele 2.a etasje unntatt på bad der det er fliser.
Omkostninger
14 700 kr (HELP boligkjøperforsikring (valgfritt)) 147 500 kr (Dokumentavgift) 545 kr (Tinglysing av pantedokument) 545 kr (Tinglysing av skjøte) --- 163 290 kr (Omkostninger totalt) --- 6 063 290 kr (Totalpris inkl. omkostninger) NB: Regnestykket forutsetter at det kun tinglyses én låneobligasjon og at eiendommen selges til prisantydning. Det tas forbehold om endringer i offentlige og private gebyrer. Selger er selv ansvarlig for følgende gebyr: 545 kr (Panterett med urådighet)
Matrikkelinformasjon
Kommunenr: 3301
Gårdsnr: 245
Bruksnr: 349
Trygg og profesjonell kjøpsprosess
- 1
Møt selger på visning
Du møter selger direkte på visning - den personen som vet hvor sola kommer først inn om morgenen og hvor de beste skiløypene ligger. Få all informasjon fra første hånd og still spørsmål direkte til den som kjenner boligen best.
- 2
Sikker budprosess med BankID
Legg inn bud enkelt og sikkert med BankID-verifisering. Du får SMS-varsler ved nye bud og kan følge budrunden i sanntid. Systemet er mer oversiktlig og lettere å bruke enn tradisjonelle meglersider.
- 3
Profesjonelt oppgjør og overtakelse
Oppgjørsselskap med konsesjon fra Finanstilsynet håndterer alle formelle aspekter. Kontrakt signeres digitalt med BankID, og overtakelsesprotokollen gjennomføres enkelt på telefon. Alt foregår i henhold til avhendingsloven.


Vurderer du å selge selv?
Her kan du sjekke hvordan Propr fungerer - helt uforpliktende.
Ring oss på 23 90 59 00 (9–16, ukedager), eller legg igjen ditt telefonnummer så ringer vi deg opp.
Aktuelt
Kundeservice
Chat: 9–19 på hverdager, 11–18 på søndager
Send e-post: post@propr.no
Ring oss: 23 90 59 00 (10–16, ukedager)