































BRØNNØYSUND / Salhus
Lekker og sjarmerende 4-roms tomannsbolig i 2. etasje med vestvendt balkong. Carport. Flott utsikt!
Prisantydning
Størrelse (BRA)
Internt bruksareal (BRA-I)
Boligtype
Eieform
Antall etasjer
Fellesutgifter
- Tomteareal
- 7 365 m²
- Byggeår
- 2014
- Fellesgjeld
- 1 987 424 kr
- Fellesformue
- 13 886 kr
- Felleskost pr mnd
- 15 535 kr
- Tomtetype
- Eiet tomt
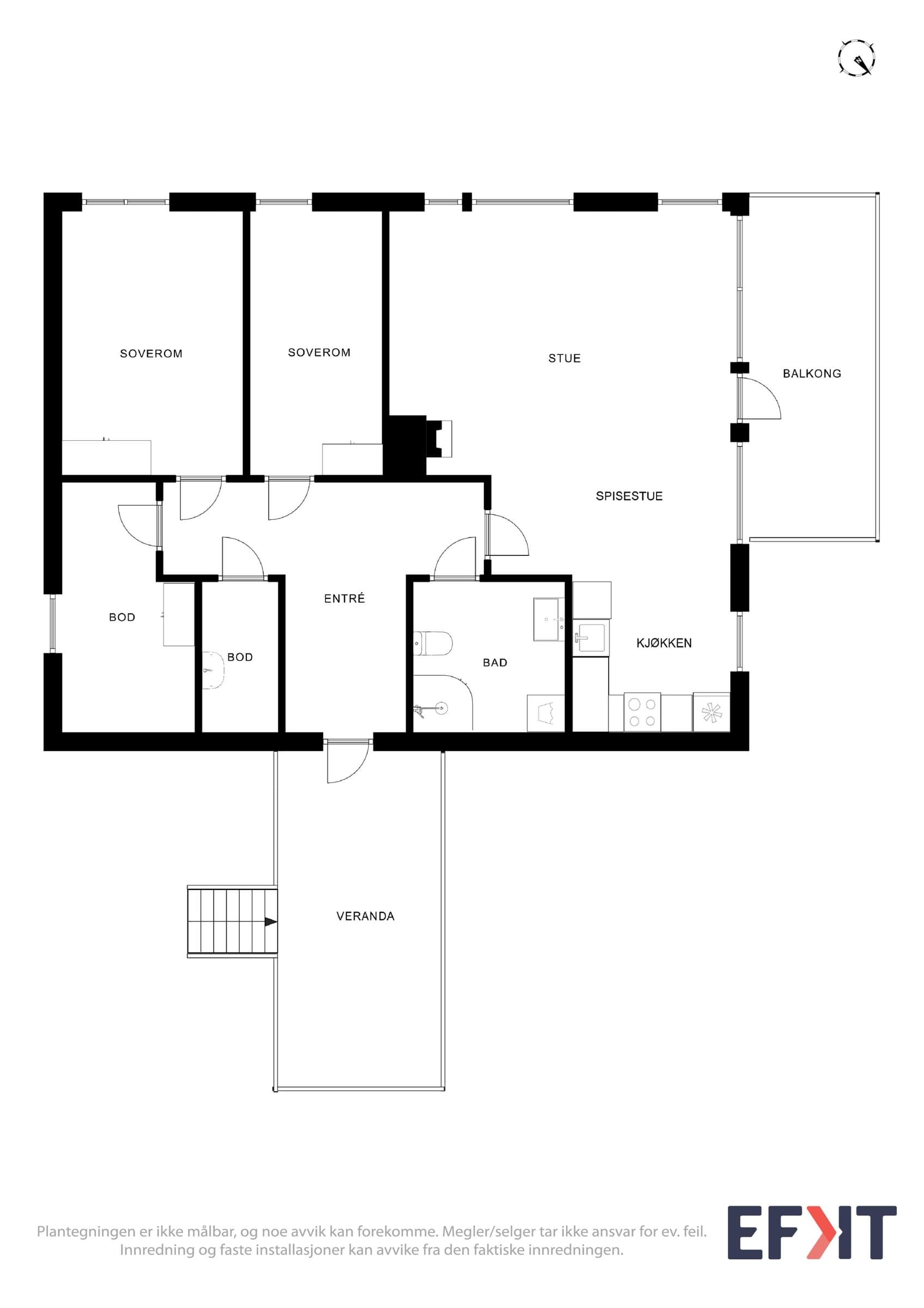
Romtyper
Soverom
Baderom
Stue
Bod
Kjøkken
Om boligen
Sjarmerende del av horisontaldelt 2-mannsbolig som ligger i 2. etasje. Åpen løsning mellom stue og kjøkken, med rikelig lysinnslipp fra store vindusflater. Fra stuen er det utgang til en vestvendt balkong med gode solforhold på ettermiddag/kveld. Vedovn sørger for god oppvarming på når man ønsker litt ekstra kos.
Beliggenhet
Boligen ligger i Salhusmarka Nord på Salhus i et boligområde med flermannsboliger og eneboliger. Kort vei til dagligvarer, skole, treningsenter, bilverksted og friområder. Det er ca. 2,3 km til Brønnøysund sentrum. Området er åpent, solrikt og barnevennlig uten gjennomgangstrafikk.
Annet
Forkjøpsrett avklares i etterkant av salg, se informasjon i eget vedlegg. Ansiennitetsregler: 1. Andelseierne i borettslaget 2. Medlem i MOBO eller felles ansiennitet Nye andelshavere må godkjennes av styret.
Omkostninger
1 000 000 kr (Prisantydning) 1 987 424 kr (Andel av fellesgjeld) --- 2 987 424 kr (Pris inkl. fellesgjeld) Omkostninger 8 200 kr (HELP boligkjøperforsikring (valgfritt)) 545 kr (Tinglysing av pantedokument) 545 kr (Tinglysing av skjøte) --- 9 290 kr (Omkostninger totalt) --- 2 996 714 kr (Totalpris inkl. omkostninger) NB: Regnestykket forutsetter at det kun tinglyses én låneobligasjon og at eiendommen selges til prisantydning. Det tas forbehold om endringer i offentlige og private gebyrer. Selger er selv ansvarlig for følgende gebyr: 545 kr (Panterett med urådighet) 5 995 kr (Eierskiftegebyr)
Matrikkelinformasjon
Kommunenr: 1813
Gårdsnr: 105
Bruksnr: 759
Trygg og profesjonell kjøpsprosess
- 1
Møt selger på visning
Du møter selger direkte på visning - den personen som vet hvor sola kommer først inn om morgenen og hvor de beste skiløypene ligger. Få all informasjon fra første hånd og still spørsmål direkte til den som kjenner boligen best.
- 2
Sikker budprosess med BankID
Legg inn bud enkelt og sikkert med BankID-verifisering. Du får SMS-varsler ved nye bud og kan følge budrunden i sanntid. Systemet er mer oversiktlig og lettere å bruke enn tradisjonelle meglersider.
- 3
Profesjonelt oppgjør og overtakelse
Oppgjørsselskap med konsesjon fra Finanstilsynet håndterer alle formelle aspekter. Kontrakt signeres digitalt med BankID, og overtakelsesprotokollen gjennomføres enkelt på telefon. Alt foregår i henhold til avhendingsloven.


Vurderer du å selge selv?
Her kan du sjekke hvordan Propr fungerer - helt uforpliktende.
Ring oss på 23 90 59 00 (9–16, ukedager), eller legg igjen ditt telefonnummer så ringer vi deg opp.
Aktuelt
Kundeservice
Chat: 9–19 på hverdager, 12–20 på søndager
Send e-post: post@propr.no
Ring oss: 23 90 59 00 (10–16, ukedager)