





































JESSHEIM / Åsmoen
Ubebodd og nylig ferdigstilt rekkehus m 3/sov, solrik terrasse, varmepumpe, carport, sportsbod. Innflyttingsklart.
Prisantydning
Størrelse (BRA)
Internt bruksareal (BRA-I)
Boligtype
Eieform
Antall etasjer
- Byggeår
- 2023
- Felleskost pr mnd
- 1 612 kr
- Tomtetype
- Eiet tomt
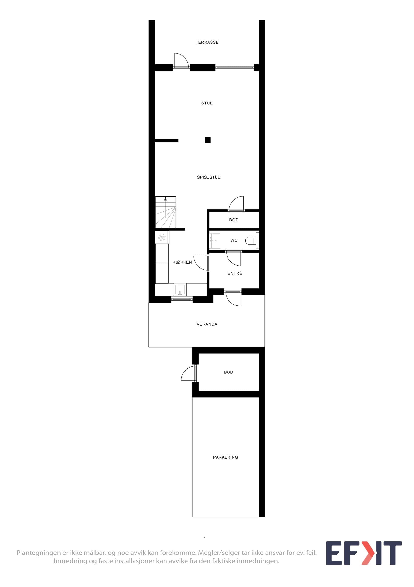
Romtyper
Soverom
Baderom
Stue
Bod
Kjøkken
Om boligen
Nå har du muligheten til å sikre deg et ubebodd rekkehus ferdigstilt i 2023. Huset er svært familievennlig i rolige og grønne omgivelser, sentralt på Jessheim. Her bor du i et skjermet og barnevennlig område, ideelt for barnefamilier. Boligens høydepunkter: - Fresht og ubebodd - Energi og kostnadeffektiv løsning med varmepumpe - Varmekabler i gulv i entre, bad og WC - Meget barnevennlig med fellles lekeplass, sosiale soner og grønne lunger - Kort vei til barnehage og skoler - Solrik hage og markterrasse - Romslig stue med direkte utgang til terrasse/hage - 3 soverom i 2. etasje - Praktisk bod i 2. etasje - 1 stk utvendig sportsbod - Carport og rikelig med gjesteparkering - Nærhet til butikker og Jessheim sentrum - Kort vei til Oslo og Gardermoen
Beliggenhet
Boligen ligger i et nyere ferdigstilt boligfelt med kort vei til togstasjonen som gir enkel tilgang til Oslo og Gardermoen. Barnevennlig rekkehustun med kort vei til naturomgivelser.
Annet
Det er ingen forkjøpsrett på boligen. Om du ikke har mulighet til å komme på visning, holder jeg gjerne privatvisning. Ta kontakt, så finner vi en tid. Boligen er klar for overtakelse.
Omkostninger
9 900 kr (HELP boligkjøperforsikring (valgfritt)) 124 750 kr (Dokumentavgift) 500 kr (Tinglysing av pantedokument) 500 kr (Tinglysing av skjøte) --- 135 650 kr (Omkostninger totalt) --- 5 125 650 kr (Totalpris inkl. omkostninger) NB: Regnestykket forutsetter at det kun tinglyses én låneobligasjon og at eiendommen selges til prisantydning. Det tas forbehold om endringer i offentlige og private gebyrer. Selger er selv ansvarlig for følgende gebyr: 6 385 kr (Eierskiftegebyr) 500 kr (Panterett med urådighet)
Matrikkelinformasjon
Kommunenr: 3209
Gårdsnr: 81
Bruksnr: 380
Seksjonsnr: 20
Trygg og profesjonell kjøpsprosess
- 1
Møt selger på visning
Du møter selger direkte på visning - den personen som vet hvor sola kommer først inn om morgenen og hvor de beste skiløypene ligger. Få all informasjon fra første hånd og still spørsmål direkte til den som kjenner boligen best.
- 2
Sikker budprosess med BankID
Legg inn bud enkelt og sikkert med BankID-verifisering. Du får SMS-varsler ved nye bud og kan følge budrunden i sanntid. Systemet er mer oversiktlig og lettere å bruke enn tradisjonelle meglersider.
- 3
Profesjonelt oppgjør og overtakelse
Oppgjørsselskap med konsesjon fra Finanstilsynet håndterer alle formelle aspekter. Kontrakt signeres digitalt med BankID, og overtakelsesprotokollen gjennomføres enkelt på telefon. Alt foregår i henhold til avhendingsloven.


Vurderer du å selge selv?
Her kan du sjekke hvordan Propr fungerer - helt uforpliktende.
Ring oss på 23 90 59 00 (9–16, ukedager), eller legg igjen ditt telefonnummer så ringer vi deg opp.
Aktuelt
Kundeservice
Chat: 9–19 på hverdager, 11–18 på søndager
Send e-post: post@propr.no
Ring oss: 23 90 59 00 (10–16, ukedager)