



























































ASKER/ Langenga 24
GI BUD Sentral 2-roms andelsleilighet, 11m2 terrasse med sjøutsikt. Takterasse. Mye sol. Moderne. Eksklusivt.
Prisantydning
Størrelse (BRA)
Internt bruksareal (BRA-I)
Boligtype
Eieform
Etasje
Fellesutgifter
- Byggeår
- 2024
- Fellesgjeld
- 1 745 000 kr
- Felleskost pr mnd
- 11 402 kr
- Tomtetype
- Eiet tomt
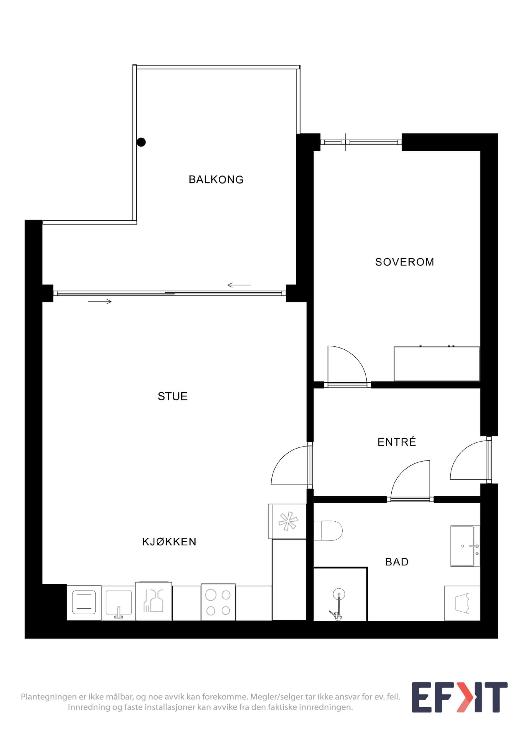
Romtyper
Soverom
Baderom
Stue
Bod
Kjøkken
Om boligen
Toppmoderne. Havutsikt fra terasse. Sentralt Asker. Ny des.2024. Høy standard. Lav strømregning.Takterasse. Masse sol. Stor 11m2 veranda.Det unike med leiligheten er 270-280 cm høyde under tak. Felleslånet er på 1750000.( andel på dette lånet. Se opplastet bilder) Praktisk bod. Følger med. Mulighet for kjøp av flere garasje plasser. Masse gjesteparkeringer.Takterasse.Barnevennlig.
Beliggenhet
Ser sjøen fra verandaen. Sentralt Asker. Buss rett utenfor døren. Leangbukta båtforening, rett nedenfor. Rolig. Fint turområde. Velodromen nærmeste nabo. Hestegård og Lenangbukta rett nedenfor.
Annet
Borettslags leilighet. Avdrag om 19 år. Lave strømregninger. 450kr.Gjennvinning. Vannvarme gulv. Fellesgjeld 1750.000 11.400 pr. mnd. inkludert fellesgjeld. Inkludert .tv.internett. Etc. Alle hvitevarer følger med. Ubrukt. Oppvaskemaskin. Ubrukt stekeovn. ( brukt 1 gang. Julaften) kombiskap. Høy standard. Takterasse.
Ny overskrift
Trenger ikke tilstandsrapport og takst på en leilighet som er ny og nettopp hatt 1 års befaring. Alt i orden. Ingen feil mangler.
Omkostninger
2 600 000 kr (Prisantydning) 1 745 000 kr (Andel av fellesgjeld) --- 4 345 000 kr (Pris inkl. fellesgjeld) Omkostninger 8 200 kr (HELP boligkjøperforsikring (valgfritt)) 545 kr (Tinglysing av pantedokument) 545 kr (Tinglysing av skjøte) --- 9 290 kr (Omkostninger totalt) --- 4 354 290 kr (Totalpris inkl. omkostninger) NB: Regnestykket forutsetter at det kun tinglyses én låneobligasjon og at eiendommen selges til prisantydning. Det tas forbehold om endringer i offentlige og private gebyrer. Selger er selv ansvarlig for følgende gebyr: 545 kr (Panterett med urådighet) 6 570 kr (Eierskiftegebyr)
Matrikkelinformasjon
Kommunenr: 3203
Gårdsnr: 55
Bruksnr: 814
Trygg og profesjonell kjøpsprosess
- 1
Møt selger på visning
Du møter selger direkte på visning - den personen som vet hvor sola kommer først inn om morgenen og hvor de beste skiløypene ligger. Få all informasjon fra første hånd og still spørsmål direkte til den som kjenner boligen best.
- 2
Sikker budprosess med BankID
Legg inn bud enkelt og sikkert med BankID-verifisering. Du får SMS-varsler ved nye bud og kan følge budrunden i sanntid. Systemet er mer oversiktlig og lettere å bruke enn tradisjonelle meglersider.
- 3
Profesjonelt oppgjør og overtakelse
Oppgjørsselskap med konsesjon fra Finanstilsynet håndterer alle formelle aspekter. Kontrakt signeres digitalt med BankID, og overtakelsesprotokollen gjennomføres enkelt på telefon. Alt foregår i henhold til avhendingsloven.


Vurderer du å selge selv?
Her kan du sjekke hvordan Propr fungerer - helt uforpliktende.
Ring oss på 23 90 59 00 (9–16, ukedager), eller legg igjen ditt telefonnummer så ringer vi deg opp.
Aktuelt
Kundeservice
Chat: 9–19 på hverdager, 12–20 på søndager
Send e-post: post@propr.no
Ring oss: 23 90 59 00 (10–16, ukedager)