















































































TØNSBERG / Husvik
Våkne opp til dette! Sjarmerende enebolig på ettertraktede Husvik ved Tønsberg. Sjøutsikt over skjærgården.
Prisantydning
Størrelse (BRA)
Internt bruksareal (BRA-I)
Boligtype
Eieform
Antall etasjer
- Tomteareal
- 628 m²
- Byggeår
- 1926
- Kommunale avgifter
- 15 540 kr
- Tomtetype
- Eiet tomt
Romtyper
Soverom
Baderom
Stue
Bod
Kjøkken
Om boligen
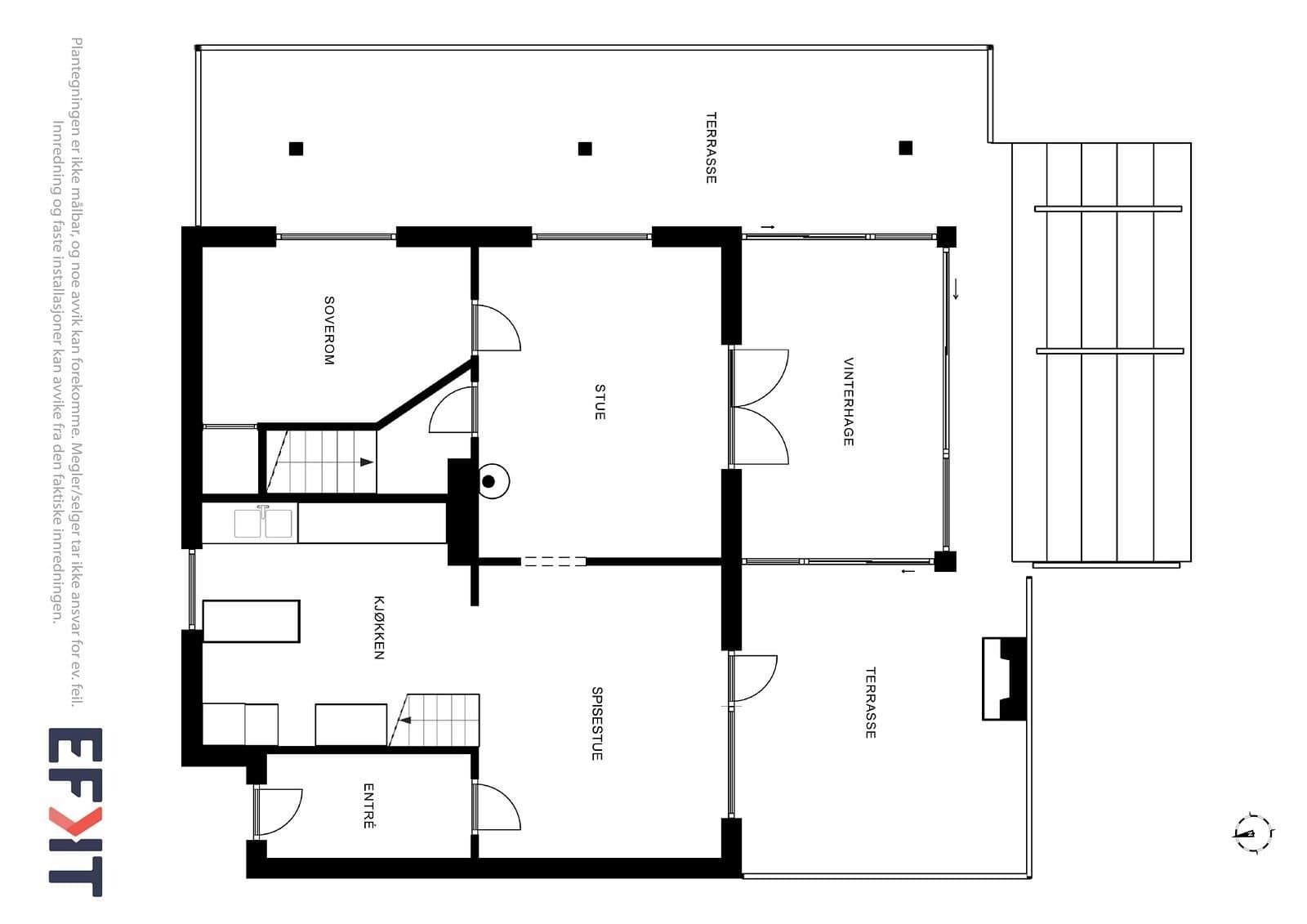
#Total BRA 136 kvm. Kjeller med lav takhøyde, tatt ikke med. Derfor BRA-i -103 .kvm. Sjarmerende stylet enebolig. Huset er malt innvendig i nøytrale farger og harmonerer med alderen og stilen. Totalt 5 rom og hage med havutsikt. 1.etasje: Gjennom den innbydende entréen kommer man inn i den romslige spisestuen som har åpen planløsning med sjarmerende buer mellom både kjøkken og stue. Dette gir effekt av fri flyt mellom rom og dermed følelse av ekstra plass . Etter entreen ble heltregulv lagt i 2005, og gulvet har bra kvalitet. Fra spisestuen kan du lett komme til terrassen med eksklusiv ute peis, samt sittegruppe. Spisestuen fører videre gjennom buen til kjøkkenet som er romslig med mange skap, hvitmalte glatte fronter og en ny svart benkeplate. Kjøkkenøya passer perfekt både som frokostbord og tilberedningsflate, eller buffet til gjestemåltider. Fra spisestuen kommer man gjennom en mindre bue inn i den romslige stua, der den energieffektive konveksjonsovnen er på plass som varmer opp hele huset på vinteren. Dør til soverom 3. Terrassedørene åpner ut i hagestua (bygd i 2023) og utgang til hagen, der man kan se sjøutsikten over skjærgården. I hagestua er det nok plass til å ha alle typer møbler. For eksempel er det mulighet for å sette et spisebord, der man kan nyte utsikten. Nybygd hagestua kan åpnes fullstendig på 3 sider med skyvedører til terrassen. På sommerdager er det svært behagelig å grille ute på terrassen med den fantastiske sjøutsikten. Det er et soverom også med nydelig havutsikt. 2.etasje: Du finner det store hovedsoverommet med opprinnelig tregulv og et annet soverom. Begge rommene har terrassedører ut til balkong med spektakulær panoramautsikt over skjærgården. Det store soverommet har også vindu mot Jarlsø. Du finner også et bad med nytt dusjkabinett I gangen er det 3 innebygde skap med mye plass. U. etasje: Komplett, trivelig kjeller med trepanel. Men med lav takhøyde. Altså kan ikke bli registrert som oppholdsrom. Gulvvarme. Vaskerom (flislagt). Soverom / hjemmekontor og toalett.
Beliggenhet
Eiendommen ligger i et veletablert og barnevennlig boligområde på Husvik i Tønsberg kommune ca. 5 km fra Tønsberg sentrum. Husvik ble nevnt i rangeringen av "Norges beste nabolag" som andre plass med mest fornøyde innbyggere med vedlikehold av uteområder. https://www.finn.no/realestate/artikler/aktuelt/her-er-norges-beste-nabolag?srsltid=AfmBOooKsaKjC2uSLDFh_bk6q7679q0KiUxUIMomEYU_9ZQOXklsMY4X Kun en liten spasertur til 3 populære barnevennlige badestrender Rødstein, Klopp og Jarlsø. Vestfolds mest populære strand Ringshaug ligger kun 10 min unna. Meget bra busstilbud med 111 og 115 som stopper på Jarlsøveien og Husvik skole henholdsvis. Opptil 4 avganger hver time, både tidlig og sent. Flint i nærheten har et flott idrettsanlegg med flere fotballbaner, tennisbaner samt sandvolleyball. I området ligger også Slagenhallen med et godt innendørstilbud. Gåavstand fra Husvik skole. Kort vei til Presterød Ungdomsskole. Ingen boplikt. Muligheter å søke om båtplass i nærheten. Nydelig å gå langs kyststien. 5 min å gå til Jarlsø der man har Joker (åpen til 21 alle dager i uken). I dette området finnes også kafé, frisør, hudpleiesalong samt treningssenter. Her har du din egen, usjenerte oase med vidstrakt sjøutsikt og fantastiske solforhold.
Terrasses og hage.
Vi har designet hagen, slik at du kan få mest mulig ut av hageområdet. Et sted hvor arrangementer med venner og familie fra 2 - 30 personer, kan få en spesiell opplevelse. Den har 44 kvm med terrasse inkludert eksklusiv ute peis og grill plass. Den 6 m lange utformede trappen passer perfekt til hagens struktur og forbinder hus og terrassene til en opparbeidet hage med 3 modne epletrær. Der finner man en 8 kvm hvileterrasse med sittebenk, i skyggen av et modent epletre. Det er en 126 kvm japansk inspirert hage (Narnia inspirert, som barn elsker) med 8 kvm pergola sitteplass og en fontene. Slapp av i en spesiell vindbeskyttet oase, nyt en te, cocktail eller til og med en sake. Belysningen gir nydelig stemning til sent på kvelden. For å fullføre den scenariske opplevelsen er det en kunstig foss og bekk, som pumpes opp fra din egen brønn. Bruk den som en forlengelse av huset. Der du kan mest fra vår, sommer og høst. Når kvelden nærmer seg, er det ingenting bedre enn å kose seg foran ute peisen og forlenge kvelden. Alt er klart ute, bare å flytte inne og ha en innflytelsesfest. Hagen er klar for enhver type begivenhet.
Dobbel garasje, parkering og fasiliteter.
En liten del av huset ble opprinnelig bygget i 1926. Det har vært oppusset kontinuerlig frem til i dag. Men har fortsatt beholdt atmosfæren og ærligheten til den opprinnelige bygningen. TV og WiFi:-Velg mellom Viasat eller Telenor som kabel leverandør. Har fått 1. års tilbud fra Viasat 950 kr per måned for TV og WiFi. Oppvarming:- Konveksjonspeisovn, varmepumpe, panelovn og gulvvarme kabel i kjeller. Oppvask- og vaskemaskin følger med. Elektrisk: Det foreligger samsvarserklæring fra 30.4.2024 av Åsgården Elektro Service As. Dobbel garasje bygget i 2018. Klar til å installere lading av el-biler. Ny belegningsstein og belysning langs innkjørsel. Godt parkering plass ute til ca 7 biler (kan være aktuelt med gjester) uten å telle dobbel garasje.
Annet
Om det fremkommer i rapporten er det registrert flere symptomer på avvik fra normal tilstand. Men stort sett som følge av alder, bruk og forventet levetid. Noen av avvikene må sees i sammenheng med den nye standardens strenge krav. Flere oppgraderinger og utbedringer må påregnes. Rapporten og selgers egenerklæring er en del av salgsoppgaven og må leses nøye før bud inngis. Kjøper overtar ansvaret for de opplysninger som fremkommer av salgsdokumentasjonen, og kan ikke gjøre gjeldende som mangel noe som burde vært kjent eller som ikke kan anses å ha betydning for avtalen. Det er ingen forkjøpsrett på boligen. Om du ikke har mulighet til å komme på visning, holder jeg gjerne privatvisning. Ta kontakt, så finner vi en tid. Jeg har tegnet boligselgerforsikring, og anbefaler også kjøper å tegne boligkjøperforsikring.
Omkostninger
14 700 kr (HELP boligkjøperforsikring (valgfritt)) 143 750 kr (Dokumentavgift) 500 kr (Tinglysing av pantedokument) 500 kr (Tinglysing av skjøte) --- 159 450 kr (Omkostninger totalt) --- 5 909 450 kr (Totalpris inkl. omkostninger) NB: Regnestykket forutsetter at det kun tinglyses én låneobligasjon og at eiendommen selges til prisantydning. Det tas forbehold om endringer i offentlige og private gebyrer. Selger er selv ansvarlig for følgende gebyr: 500 kr (Panterett med urådighet)
Matrikkelinformasjon
Kommunenr: 3905
Gårdsnr: 158
Bruksnr: 86
Seksjonsnr: 1
Trygg og profesjonell kjøpsprosess
- 1
Møt selger på visning
Du møter selger direkte på visning - den personen som vet hvor sola kommer først inn om morgenen og hvor de beste skiløypene ligger. Få all informasjon fra første hånd og still spørsmål direkte til den som kjenner boligen best.
- 2
Sikker budprosess med BankID
Legg inn bud enkelt og sikkert med BankID-verifisering. Du får SMS-varsler ved nye bud og kan følge budrunden i sanntid. Systemet er mer oversiktlig og lettere å bruke enn tradisjonelle meglersider.
- 3
Profesjonelt oppgjør og overtakelse
Oppgjørsselskap med konsesjon fra Finanstilsynet håndterer alle formelle aspekter. Kontrakt signeres digitalt med BankID, og overtakelsesprotokollen gjennomføres enkelt på telefon. Alt foregår i henhold til avhendingsloven.


Vurderer du å selge selv?
Her kan du sjekke hvordan Propr fungerer - helt uforpliktende.
Ring oss på 23 90 59 00 (9–16, ukedager), eller legg igjen ditt telefonnummer så ringer vi deg opp.
Aktuelt
Kundeservice
Chat: 9–19 på hverdager, 11–18 på søndager
Send e-post: post@propr.no
Ring oss: 23 90 59 00 (10–16, ukedager)