



















































UVDAL / Flåta
Moderne 4-roms fritidsleilighet i Uvdal skisenter Fantastisk utsikt og usjenert beliggenhet.
Prisantydning
Størrelse (BRA)
Internt bruksareal (BRA-I)
Boligtype
Eieform
Etasje
Fellesutgifter
- Tomteareal
- 3 256 m²
- Byggeår
- 2022
- Felleskost pr mnd
- 780 kr
- Kommunale avgifter
- 12 360 kr
- Tomtetype
- Eiet tomt
Romtyper
Soverom
Baderom
Stue
Bod
Kjøkken
Om boligen
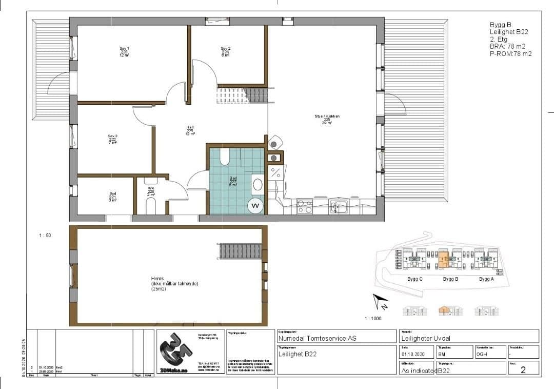
Velkommen til denne moderne 4-roms fritidsleiligheten ved foten av Hardangervidda, ferdigstilt i 2022. Leiligheten ligger i andre etasje og byr på et gjennomtenkt design med panelvegger og parkettgulv som gir den ekte hyttefølelsen. Gang og bad er flislagt, og det er varmekabler både i gang og på bad for ekstra komfort. Leiligheten har et hovedbad og et praktisk gjestetoalett (1,5 bad totalt). I tillegg er det en romslig hems på 20 m² som gir ekstra fleksibilitet for soveplasser eller oppbevaring. På den store østvendte balkongen kan du nyte morgenkaffen mens du ser på soloppgangen, mens på den mindre vestvendt balkong gir mulighet for ettermiddags- og kveldssol. Oppholdsrommet er dekket av vinduer fra gulv til tak, som fyller rommene med naturlig lys og gir en spektakulær utsikt utover dalen og fjellandskapet. Leiligheten har ekte ski in/ski out, perfekt for skientusiaster, og inkluderer en fast parkeringsplass. Videre er det en stor skyvedørsgarderobe i gangen samt en bod i yttergangen for praktisk oppbevaring skiutstyr og yttertøy.
Beliggenhet
Leiligheten ligger nederst i feltet på toppen av Uvdal Skisenter, et ettertraktet område for fritidsboliger. Her har du umiddelbar tilgang til alpinbakker og skiløyper, samtidig som du kan nyte roen og den vakre naturen i en lite trafikkert blindvei. Uvdal Skisenter ligger i nærheten av Hardangervidda, et eldorado for friluftsliv hele året. I tillegg er det kort vei til populære attraksjoner som Langedrag Naturpark (ca. én time unna) og Dagali Fjellpark (ca. 30 minutter unna). Dette er en ideell beliggenhet for både aktive familier og deg som ønsker avslapning i naturskjønne omgivelser. 2,5 timer fra Drammen og 3 timer fra Oslo.
Annet
Om det er ønskelig kan vi selge hytta med møbler. Visning avtales etter behov. Vi er åpen for at dere kan prøvebo hytta
Kontakt
Ikke nøl med å ta kontakt. Kan nås på 95553059 enten via telefon eller sms. Eventuelt kan du også sende e-post til trineli88@live.no
Omkostninger
14 700 kr (HELP boligkjøperforsikring (valgfritt)) 87 250 kr (Dokumentavgift) 500 kr (Tinglysing av pantedokument) 500 kr (Tinglysing av skjøte) --- 102 950 kr (Omkostninger totalt) --- 3 592 950 kr (Totalpris inkl. omkostninger) NB: Regnestykket forutsetter at det kun tinglyses én låneobligasjon og at eiendommen selges til prisantydning. Det tas forbehold om endringer i offentlige og private gebyrer. Selger er selv ansvarlig for følgende gebyr: 1 500 kr (Eierskiftegebyr) 500 kr (Panterett med urådighet)
Matrikkelinformasjon
Kommunenr: 3338
Gårdsnr: 10
Bruksnr: 119
Seksjonsnr: 8
Trygg og profesjonell kjøpsprosess
- 1
Møt selger på visning
Du møter selger direkte på visning - den personen som vet hvor sola kommer først inn om morgenen og hvor de beste skiløypene ligger. Få all informasjon fra første hånd og still spørsmål direkte til den som kjenner boligen best.
- 2
Sikker budprosess med BankID
Legg inn bud enkelt og sikkert med BankID-verifisering. Du får SMS-varsler ved nye bud og kan følge budrunden i sanntid. Systemet er mer oversiktlig og lettere å bruke enn tradisjonelle meglersider.
- 3
Profesjonelt oppgjør og overtakelse
Oppgjørsselskap med konsesjon fra Finanstilsynet håndterer alle formelle aspekter. Kontrakt signeres digitalt med BankID, og overtakelsesprotokollen gjennomføres enkelt på telefon. Alt foregår i henhold til avhendingsloven.


Vurderer du å selge selv?
Her kan du sjekke hvordan Propr fungerer - helt uforpliktende.
Ring oss på 23 90 59 00 (9–16, ukedager), eller legg igjen ditt telefonnummer så ringer vi deg opp.
Aktuelt
Kundeservice
Chat: 9–19 på hverdager, 12–20 på søndager
Send e-post: post@propr.no
Ring oss: 23 90 59 00 (10–16, ukedager)