







































































STADLANDET / Ytre Leikanger
*BUD MOTTATT* Flott enebolig med hage, terrasse og panoramautsikt over Leikong!
Prisantydning
Størrelse (BRA)
Internt bruksareal (BRA-I)
Boligtype
Eieform
Antall etasjer
- Tomteareal
- 1 057 m²
- Byggeår
- 2003
- Kommunale avgifter
- 22 715 kr
- Tomtetype
- Eiet tomt
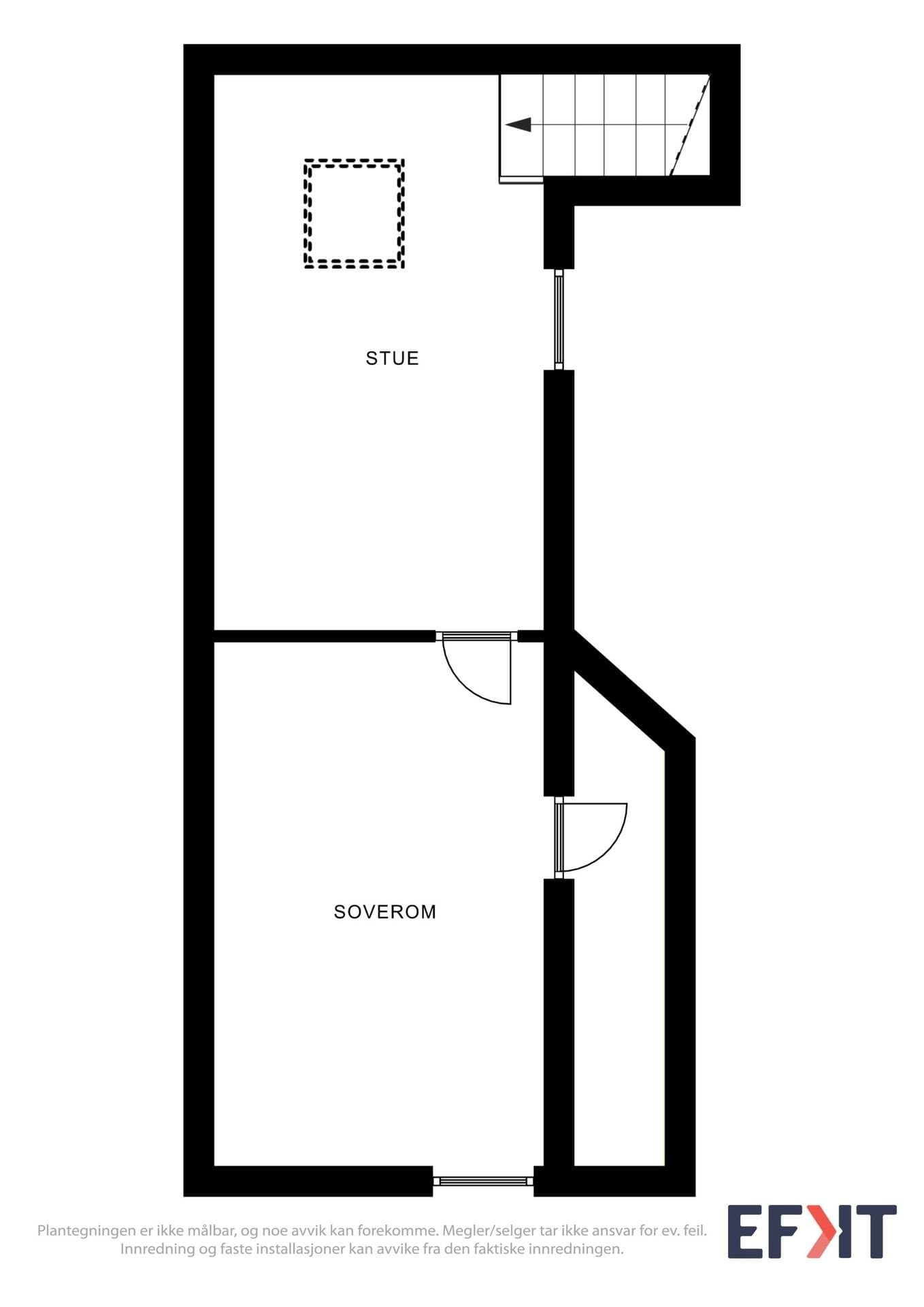
Romtyper
Soverom
Baderom
Stue
Bod
Kjøkken
Om boligen
🏡 Innbydende enebolig – klar for innflytting! 🏡 🔹 Lys og romslig – Perfekt for familier, enslige eller eldre, alt på ett plan. 🔹 To stuer – Én i 2. etasje og åpen kjøkken/stue-løsning i 1. etasje. 🔹 Tre soverom – Gode romløsninger for hele familien. 🔹 Eksklusivt kjøkken – Fossline-kjøkken med Silestone steinbenkeplate. 🔹 Moderne bad – Helfliset, ny innredning, dusjkabinett og vaskemaskin inkludert. 🔹 Landlig og barnevennlig – Rolig område med flott utsikt og trygge omgivelser. 🏡 Et hjem med sjel og kvalitet – opplev det selv! 📞 Ta kontakt for visning i dag!
Beliggenhet
🔹 Flott beliggenhet – Rolig og familievennlig i Øvre Stave Byggefelt. 🔹 Nær fasiliteter – Bare 2 min med bil til butikk, treningssenter, frisør og kafé. 🔹 Landlig og sentralt – Kombinerer fredelige omgivelser med kort vei til alt du trenger. 🔹 Nær Leikong/Korsen – Praktisk plassering med gode servicetilbud i nærheten.
Annet
📞 Ta kontakt for visning 🏡
Omkostninger
14 700 kr (HELP boligkjøperforsikring (valgfritt)) 78 750 kr (Dokumentavgift) 545 kr (Tinglysing av pantedokument) 545 kr (Tinglysing av skjøte) --- 94 540 kr (Omkostninger totalt) --- 3 244 540 kr (Totalpris inkl. omkostninger) NB: Regnestykket forutsetter at det kun tinglyses én låneobligasjon og at eiendommen selges til prisantydning. Det tas forbehold om endringer i offentlige og private gebyrer. Selger er selv ansvarlig for følgende gebyr: 545 kr (Panterett med urådighet)
Matrikkelinformasjon
Kommunenr: 4649
Gårdsnr: 225
Bruksnr: 58
Trygg og profesjonell kjøpsprosess
- 1
Møt selger på visning
Du møter selger direkte på visning - den personen som vet hvor sola kommer først inn om morgenen og hvor de beste skiløypene ligger. Få all informasjon fra første hånd og still spørsmål direkte til den som kjenner boligen best.
- 2
Sikker budprosess med BankID
Legg inn bud enkelt og sikkert med BankID-verifisering. Du får SMS-varsler ved nye bud og kan følge budrunden i sanntid. Systemet er mer oversiktlig og lettere å bruke enn tradisjonelle meglersider.
- 3
Profesjonelt oppgjør og overtakelse
Oppgjørsselskap med konsesjon fra Finanstilsynet håndterer alle formelle aspekter. Kontrakt signeres digitalt med BankID, og overtakelsesprotokollen gjennomføres enkelt på telefon. Alt foregår i henhold til avhendingsloven.


Vurderer du å selge selv?
Her kan du sjekke hvordan Propr fungerer - helt uforpliktende.
Ring oss på 23 90 59 00 (9–16, ukedager), eller legg igjen ditt telefonnummer så ringer vi deg opp.
Aktuelt
Kundeservice
Chat: 9–19 på hverdager, 11–18 på søndager
Send e-post: post@propr.no
Ring oss: 23 90 59 00 (10–16, ukedager)