



































Persbråten
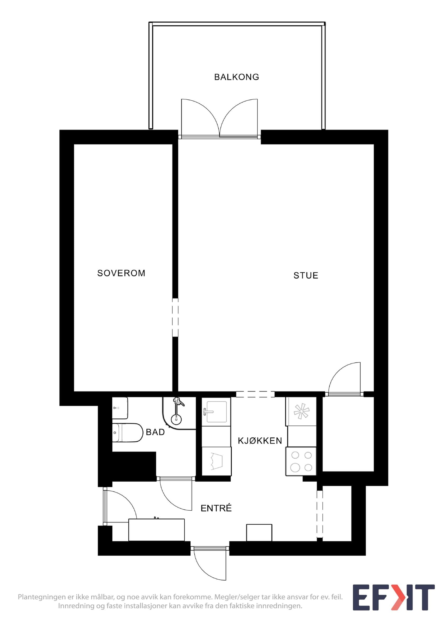
Velkommen til en flott og lys loftsleilighet i Persbråtan 11. Foruten stue, kjøkken, gang, bad og alkove er det to boder med gode oppbevaringsplasser og en bod i kjeller. Leiligheten har balkong på 5 kvm med solforhold og pent utsyn, uten gjenboere. Det er god planløsning, skråtak med god høyde under taket i stuen. Det er fellesvaskeri i borettslaget. I 2019 ble det innstallert bergvarmeanlegg. Det er et gratis parkeringsoblat som følger leiligheten. Persbråtan har også Elbil-lading.
Boligen ligger i et attraktivt område hvor det er flere dagligvarebutikker,blant annet Coop Extra. I nærheten har man rask tilgang til både Hovseter, Holmen T-banestasjon og bussholdeplass. Persbråtan er en enveiskjørt "hestesko" med innkjøring fra Sørkedalsveien, kun trafikkert av beboerne i Nordre Huseby Boligselskap. Husebyskogen ligger rett over veien for Persbråtan hvor det er fine turområder. På vinteren preppes løypene i skogen. Det er også lysløype. Njådhallen ligger i 10 minutters gange med Sats som treningssenter.
Et boligsalg gjennom Propr gir kjøper den samme tryggheten som ved salg gjennom en eiendomsmegler. Alle offentlige dokumenter, full boligsalgsrapport, egenerklæring og alle forsikringer er lagt til salgsoppgaven. Ta kontakt ved spørsmål eller ønske om privatvisning. Boligselgerforsikring er tegnet.
Felleskostandene inkluderer: Altibox, oppvarming med radiatorer, Kommunale avgifter mm.
3 600 000 kr (Prisantydning) 199 000 kr (Andel av fellesgjeld) --- 3 799 000 kr (Pris inkl. fellesgjeld) Omkostninger 8 200 kr (HELP boligkjøperforsikring (valgfritt)) 10 043 kr (Eierskifte-/transportgebyr) 4 150 kr (Noteringsgebyr pant) --- 22 393 kr (Omkostninger totalt) --- 3 821 393 kr (Totalpris inkl. omkostninger) NB: Regnestykket forutsetter at det kun tinglyses én låneobligasjon og at eiendommen selges til prisantydning. Det tas forbehold om endringer i offentlige og private gebyrer. Selger er selv ansvarlig for følgende gebyr: 4 150 kr (Noteringsgebyr urådighet/pantsperre)
Kommunenr: 301
Gårdsnr: 32
Bruksnr: 588
Du møter selger direkte på visning - den personen som vet hvor sola kommer først inn om morgenen og hvor de beste skiløypene ligger. Få all informasjon fra første hånd og still spørsmål direkte til den som kjenner boligen best.
Legg inn bud enkelt og sikkert med BankID-verifisering. Du får SMS-varsler ved nye bud og kan følge budrunden i sanntid. Systemet er mer oversiktlig og lettere å bruke enn tradisjonelle meglersider.
Oppgjørsselskap med konsesjon fra Finanstilsynet håndterer alle formelle aspekter. Kontrakt signeres digitalt med BankID, og overtakelsesprotokollen gjennomføres enkelt på telefon. Alt foregår i henhold til avhendingsloven.


Her kan du sjekke hvordan Propr fungerer - helt uforpliktende.
Ring oss på 23 90 59 00 (9–16, ukedager), eller legg igjen ditt telefonnummer så ringer vi deg opp.
Chat: 9–19 på hverdager, 11–18 på søndager
Send e-post: post@propr.no
Ring oss: 23 90 59 00 (10–16, ukedager)