





































































Ulven
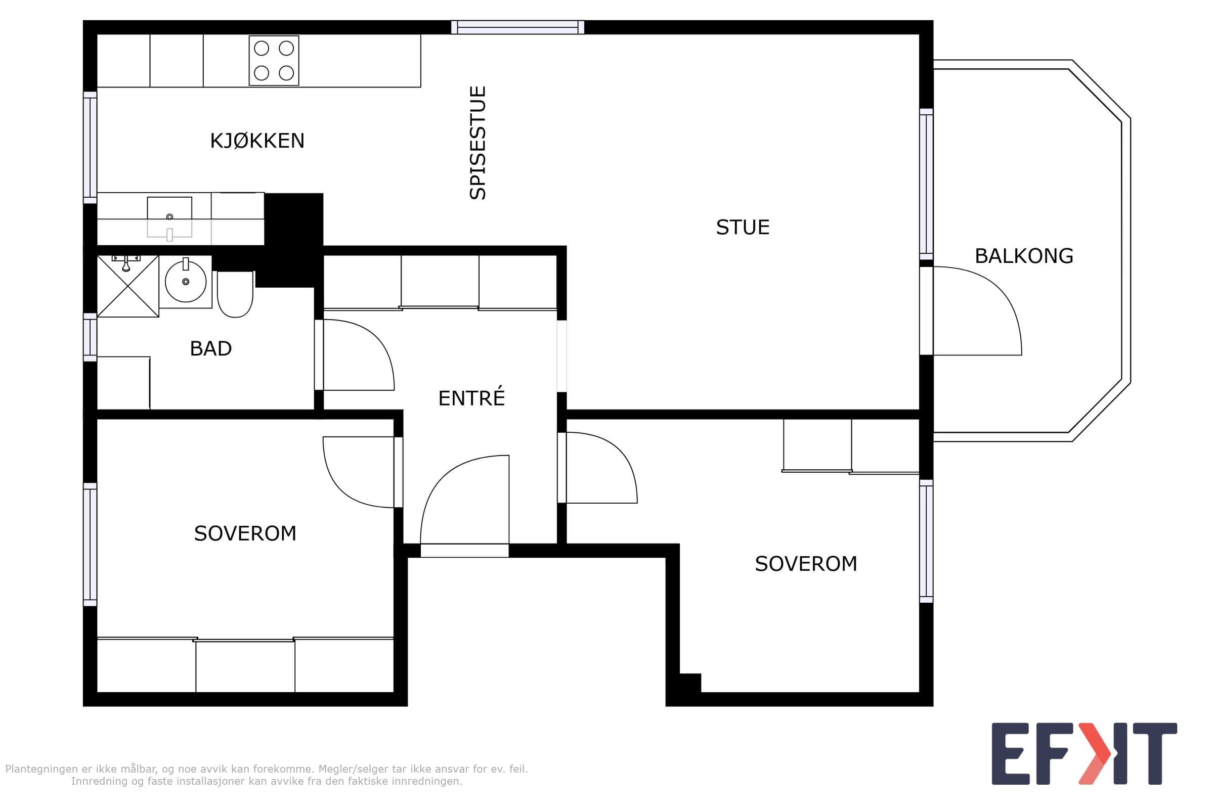
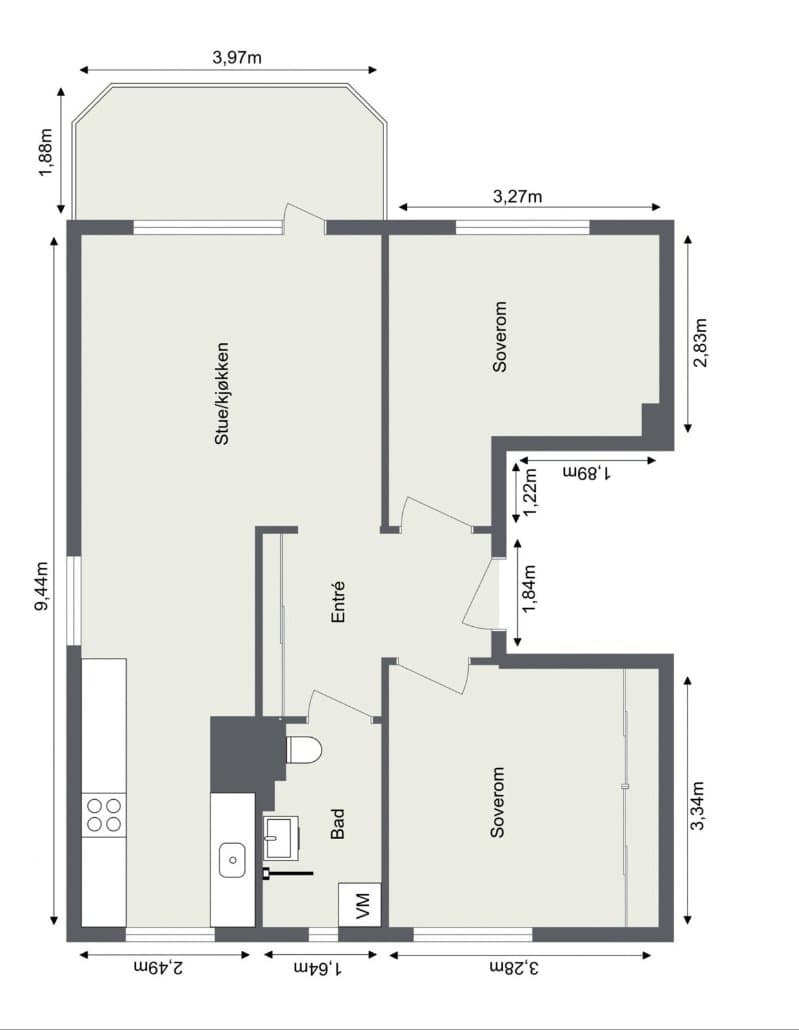
Velkommen til denne meget lekre 3-roms endeleilighet med solrik balkong på ca 7 kvm! Boligen holder en gjennomgående god standard med utsøkt farge- og materialvalg. Gulvflater er belagt med en-stavs parkett på gulv og overflater er malt i moderne fargekombinasjoner. Planløsningen er meget arealeffektiv og gjennomgående med vinduer på tre sider som sikrer gode lysforhold og en herlig atmosfære. God lagringsplass finnes i to disponible kjellerboder. Varmtvann og fyring er inkl. i felleskostnadene. Velkommen!
Leiligheten er sentrumsnær og attraktivt beliggende i en rolig blindvei på Ulven, skjermet for støy og gjennomgangstrafikk. Ulvenjordet ligger i nærheten, som er et felles grøntområde for alle borettslagene i området. Her er det blant annet opprettet parsellhage i regi av bydelen. Det er kort vei til det meste du trenger i hverdagen, samt kort vei til sentrum med både buss og T-bane.
Det er ingen forkjøpsrett på boligen. Om du ikke har mulighet til å komme på visning, holder jeg gjerne privatvisning. Ta kontakt, så finner vi en tid
Varmtvann, fyring, kabel-TV og bredbånd, nedbetaling av fellesgjeld, kommunale avgifter, felles bygningsforsikring, festeavgift, forretningsførsel, diverse honorarer, vaktmestertjenester, drift og vedlikehold.
4 350 000 kr (Prisantydning) 239 968 kr (Andel av fellesgjeld) --- 4 589 968 kr (Pris inkl. fellesgjeld) Omkostninger 8 200 kr (HELP boligkjøperforsikring (valgfritt)) 500 kr (Tinglysing av pantedokument) 500 kr (Tinglysing av skjøte) --- 9 200 kr (Omkostninger totalt) --- 4 599 168 kr (Totalpris inkl. omkostninger) NB: Regnestykket forutsetter at det kun tinglyses én låneobligasjon og at eiendommen selges til prisantydning. Det tas forbehold om endringer i offentlige og private gebyrer. Selger er selv ansvarlig for følgende gebyr: 500 kr (Panterett med urådighet) 6 385 kr (Eierskiftegebyr)
Kommunenr: 301
Gårdsnr: 131
Bruksnr: 64
Du møter selger direkte på visning - den personen som vet hvor sola kommer først inn om morgenen og hvor de beste skiløypene ligger. Få all informasjon fra første hånd og still spørsmål direkte til den som kjenner boligen best.
Legg inn bud enkelt og sikkert med BankID-verifisering. Du får SMS-varsler ved nye bud og kan følge budrunden i sanntid. Systemet er mer oversiktlig og lettere å bruke enn tradisjonelle meglersider.
Oppgjørsselskap med konsesjon fra Finanstilsynet håndterer alle formelle aspekter. Kontrakt signeres digitalt med BankID, og overtakelsesprotokollen gjennomføres enkelt på telefon. Alt foregår i henhold til avhendingsloven.


Her kan du sjekke hvordan Propr fungerer - helt uforpliktende.
Ring oss på 23 90 59 00 (9–16, ukedager), eller legg igjen ditt telefonnummer så ringer vi deg opp.
Chat: 9–19 på hverdager, 11–18 på søndager
Send e-post: post@propr.no
Ring oss: 23 90 59 00 (10–16, ukedager)