























































Prisantydning
Størrelse (BRA)
Internt bruksareal (BRA-I)
Boligtype
Eieform
Antall etasjer
- Tomteareal
- 600 m²
- Byggeår
- 1962
- Tomtetype
- Eiet tomt
Romtyper
Soverom
Baderom
Stue
Bod
Kjøkken
Om boligen
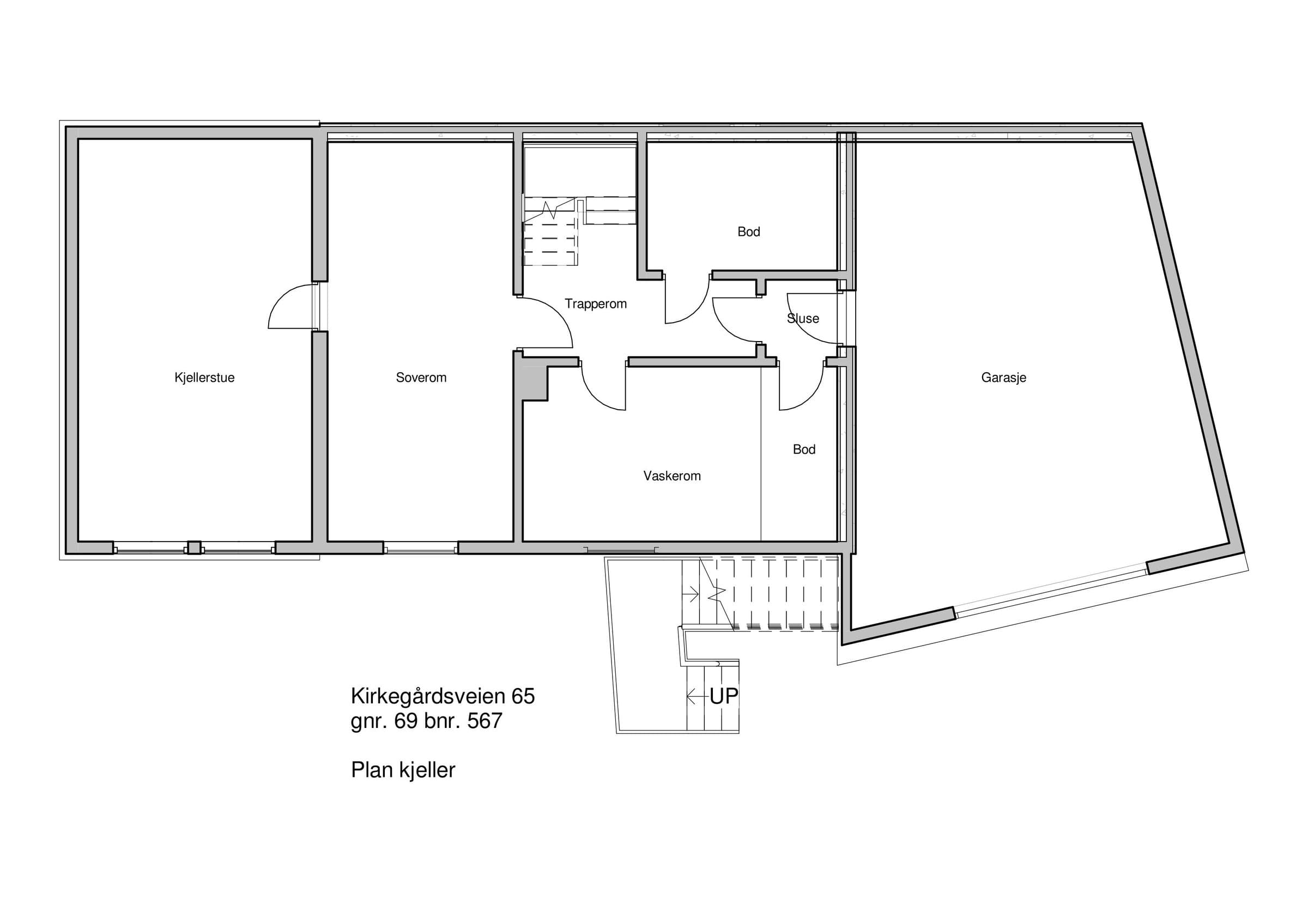
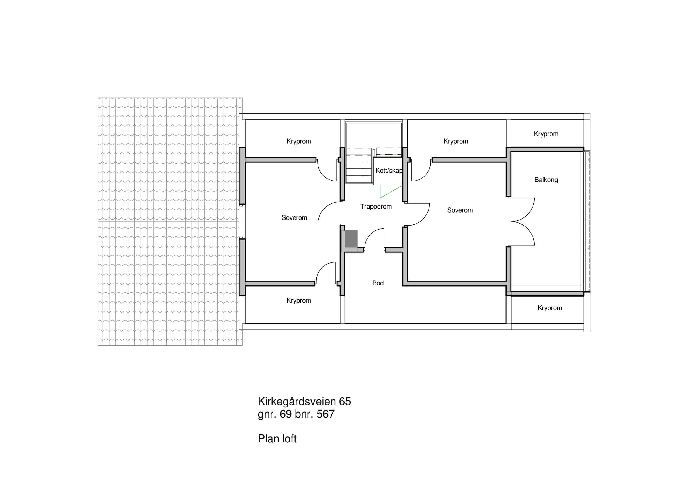
Koselig enebolig over tre etasjer med tre stuer, fire soverom, garasje, hage, uteplasser og uthus. Loftsetasjen har to soverom og en bod. Veranda mot morgensolen med utgang fra soverom. Hovedetasjen består av to stuer, kjøkken, gang, soverom, bad, og vindfang med et skjermet område /ekstra bodplass med skyvedørsgarderobe. Innerste stue i tilbygg har et lavere gulvnivå, åpen himling og åpen løsning mot spisestue og kjøkken. Varmekabler i gulv i yttergang og på bad. Varmepumpe og vedovn i stue. Utgang til terrasse mot sørvest og hage. I kjelleren/underetasjen er det ett soverom, kjellerstue, bod, gang, vaskerom med toalett, og sluse med utgang til romslig garasje. Hovedinngangen til boligen går via utvendig trapp til terrasse over garasjen. Rekkverket i trapp/terrasse er nytt (2024).
Beliggenhet
Boligen ligger i et trivelig nabolag sentralt på Skjervøy, med kort gangavstand til skole, barnehager, friområder og sentrum for øvrig - kort sagt; det meste.
Annet
Det er ingen forkjøpsrett på boligen. Ta kontakt for å avtale visning hvis ikke oppsatt tid passer!
Omkostninger
11 900 kr (HELP boligkjøperforsikring (valgfritt)) 75 000 kr (Dokumentavgift) 500 kr (Tinglysing av pantedokument) 500 kr (Tinglysing av skjøte) --- 87 900 kr (Omkostninger totalt) --- 3 087 900 kr (Totalpris inkl. omkostninger) NB: Regnestykket forutsetter at det kun tinglyses én låneobligasjon og at eiendommen selges til prisantydning. Det tas forbehold om endringer i offentlige og private gebyrer. Selger er selv ansvarlig for følgende gebyr: 500 kr (Panterett med urådighet)
Matrikkelinformasjon
Kommunenr: 5542
Gårdsnr: 69
Bruksnr: 567
Trygg og profesjonell kjøpsprosess
- 1
Møt selger på visning
Du møter selger direkte på visning - den personen som vet hvor sola kommer først inn om morgenen og hvor de beste skiløypene ligger. Få all informasjon fra første hånd og still spørsmål direkte til den som kjenner boligen best.
- 2
Sikker budprosess med BankID
Legg inn bud enkelt og sikkert med BankID-verifisering. Du får SMS-varsler ved nye bud og kan følge budrunden i sanntid. Systemet er mer oversiktlig og lettere å bruke enn tradisjonelle meglersider.
- 3
Profesjonelt oppgjør og overtakelse
Oppgjørsselskap med konsesjon fra Finanstilsynet håndterer alle formelle aspekter. Kontrakt signeres digitalt med BankID, og overtakelsesprotokollen gjennomføres enkelt på telefon. Alt foregår i henhold til avhendingsloven.


Vurderer du å selge selv?
Her kan du sjekke hvordan Propr fungerer - helt uforpliktende.
Ring oss på 23 90 59 00 (9–16, ukedager), eller legg igjen ditt telefonnummer så ringer vi deg opp.
Aktuelt
Kundeservice
Chat: 9–19 på hverdager, 12–20 på søndager
Send e-post: post@propr.no
Ring oss: 23 90 59 00 (10–16, ukedager)