































URANIENBORG
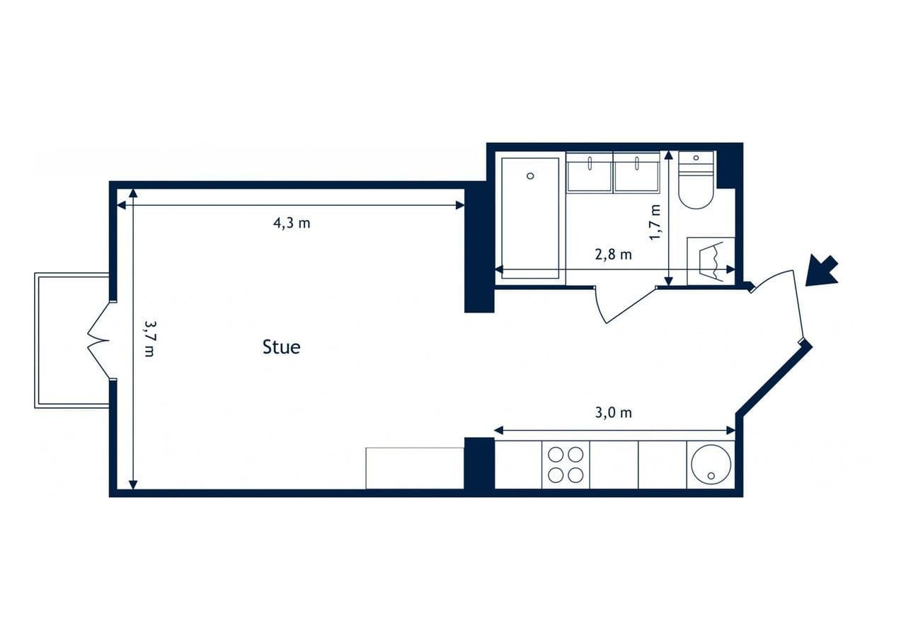
Perfekt beliggende eierleilighet i ærverdig bygg på Uranienborg, strategisk plassert mellom Uranienborgparken og Slottsparken. Representativt område med kun minutters gange til pulserende Bogstadveien/Hegdehaugsveien eller til Frogner/Solli plass med alt man trenger. Spasér avstand til sentrum/ Karl Johan. Camilla Collets vei 15 var tidligere et hotell, Ambassadeur park hotell, og er kjent for sin pene fasade i rosa pastell, i rekken med vakre klassiske gårder i gaten. -Stor 1-roms i ærverdig bygg med etterspurt adresse -5 etg. med heis -Usjenert og luftig -Nordvestvendt balk. med sol fra formiddag til kveld -Klassisk bygård fra 1919 -God takhøyde, 2,75 meter -Stort bad -Ny kjøkken kum, kran, stekeovn, platetopp og benkeplate. -Nytt kjøleskap i 2023 -Ny 1 stavs eikeparkett med hvit tone. -Lave strømutgifter. Fellesutgifter inkludert oppvarming og varmtvann! (bergvarme) -Stor sørøst vendt felles terrasse med gode solforhold -Fin og stor bod, felles sykkel rom
Fin og lys eierleilighet i en klassisk bygård fra 1919. Beliggende midt i hjertet av Uranienborg plassert mellom Uranienborgparken og Slottsparken. Representativt område med få minutters gange til Bogstadveien, Solli plass eller Karl Johan. Her finner man alt man kan ønske seg av cafeer, restauranter og shopping.
Om du ikke har mulighet til å komme på visning, holder jeg gjerne privatvisning. Ta kontakt, så finner vi en tid. Gjør oppmerksom på at sengen på bildene er stor. 180 cm bred.
3 990 000 kr (Prisantydning) 38 225 kr (Andel av fellesgjeld) --- 4 028 225 kr (Pris inkl. fellesgjeld) Omkostninger 500 kr (Tinglysing av pantedokument) 7 900 kr (HELP boligkjøperforsikring (valgfritt)) 100 700 kr (Dokumentavgift) 500 kr (Tinglysing av skjøte) --- 109 600 kr (Omkostninger totalt) --- 4 137 825 kr (Totalpris inkl. omkostninger) NB: Regnestykket forutsetter at det kun tinglyses én låneobligasjon og at eiendommen selges til prisantydning. Det tas forbehold om endringer i offentlige og private gebyrer. Selger er selv ansvarlig for følgende gebyr: 6 385 kr (Eierskiftegebyr) 500 kr (Panterett med urådighet)
Kommunenr: 301
Gårdsnr: 213
Bruksnr: 52
Seksjonsnr: 32
Du møter selger direkte på visning - den personen som vet hvor sola kommer først inn om morgenen og hvor de beste skiløypene ligger. Få all informasjon fra første hånd og still spørsmål direkte til den som kjenner boligen best.
Legg inn bud enkelt og sikkert med BankID-verifisering. Du får SMS-varsler ved nye bud og kan følge budrunden i sanntid. Systemet er mer oversiktlig og lettere å bruke enn tradisjonelle meglersider.
Oppgjørsselskap med konsesjon fra Finanstilsynet håndterer alle formelle aspekter. Kontrakt signeres digitalt med BankID, og overtakelsesprotokollen gjennomføres enkelt på telefon. Alt foregår i henhold til avhendingsloven.


Her kan du sjekke hvordan Propr fungerer - helt uforpliktende.
Ring oss på 23 90 59 00 (9–16, ukedager), eller legg igjen ditt telefonnummer så ringer vi deg opp.
Chat: 9–19 på hverdager, 11–18 på søndager
Send e-post: post@propr.no
Ring oss: 23 90 59 00 (10–16, ukedager)